Property
Account |
| Property ID: | 30225 | Abbreviated Legal Description: | DIXIE LOTS 1 THRU 6 BLK A; LESS PTN FOR PUBLIC RD ROW/EASEMENT TAKE |
| Parcel Number: | 370826517401 | Agent Code: | |
| Type: | Real | | |
| Tax Area: | 310 - 101-8 | Land Use Code | 91 |
| Open Space: | N | DFL | N |
| Historic Property: | N | Remodel Property: | N |
| Multi-Family Redevelopment: | N | | |
| Township: | 8 | Section: | 26 |
| Range: | 37 |
Location |
| Address: | WA 99329 | Mapsco: | |
| Neighborhood: | Dixie Contig | Map ID: | |
| Neighborhood CD: | 413597 |
Owner |
| Name: | FAUVER ANTHONY D | Owner ID: | 63766 |
| Mailing Address: | PO BOX 69 DIXIE, WA 99329 | % Ownership: | 100.0000000000% |
| | | Exemptions: | |
Taxes and Assessment Details
Property Tax Information as of
02/21/2026
Click on "Statement Details" to expand or collapse a tax statement.
* Please enter a valid date ** Please enter a valid date *
Statement Details |
| | TOTAL: | $0.00 | $0.00 | $0.00 | $0.00 | $0.00 | $0.00 |
|
| | $0.00 | $0.00 | $0.00 | $0.00 | $0.00 | $0.00 |
Values
| (+) Improvement Homesite Value: | + | $0 | |
| (+) Improvement Non-Homesite Value: | + | $0 | |
| (+) Land Homesite Value: | + | $0 | |
| (+) Land Non-Homesite Value: | + | $15,210 | |
| (+) Curr Use (HS): | + | $0 | $0 |
| (+) Curr Use (NHS): | + | $0 | $0 |
| | | -------------------------- | |
| (=) Market Value: | = | $15,210 | |
| (–) Productivity Loss: | – | $0 | |
| | | -------------------------- | |
| (=) Subtotal: | = | $15,210 | |
| (+) Senior Appraised Value: | + | $0 | |
| (+) Non-Senior Appraised Value: | + | $15,210 | |
| | | -------------------------- | |
| (=) Total Appraised Value: | = | $15,210 | |
| (–) Senior Exemption Loss: | – | $0 | |
| (–) Exemption Loss: | – | $0 | |
| | | -------------------------- | |
| (=) Taxable Value: | = | $15,210 | |
Taxing Jurisdiction
| Owner: | FAUVER ANTHONY D | | |
| % Ownership: | 100.0000000000% | | |
| Total Value: | $15,210 | | |
| Tax Area: | 310 - 101-8 |
| CERFD | CURRENT EXPENSE REFUND 010 | 0.0000000000 | $15,210 | $15,210 | $0.00 | | |
| CURREXP | CURRENT EXPENSE 010 | 0.9851088983 | $15,210 | $15,210 | $14.98 | | |
| HUMNSERV | HUMAN SERVICES 119 | 0.0250000000 | $15,210 | $15,210 | $0.38 | | |
| SLDREL | SOLDIERS RELIEF 121 | 0.0155990000 | $15,210 | $15,210 | $0.24 | | |
| EMERGSER | EMS 147 | 0.3676811629 | $15,210 | $15,210 | $5.59 | | |
| EMSRFD | EMS REFUND 147 | 0.0000000000 | $15,210 | $15,210 | $0.00 | | |
| FD8EXP | FD #8 EXPENSE 697 | 1.0864716428 | $15,210 | $15,210 | $16.53 | | |
| RLBRFD | RURAL LIBRARY REFUND 623 | 0.0000000000 | $15,210 | $15,210 | $0.00 | | |
| RURALLIB | RURAL LIBRARY 623 | 0.3601547782 | $15,210 | $15,210 | $5.48 | | |
| PORTRFD | PORT REFUND 640 | 0.0000000000 | $15,210 | $15,210 | $0.00 | | |
| PORTWWGEN | PORT OF WW 640 | 0.2344301070 | $15,210 | $15,210 | $3.57 | | |
| SD101CAP | SD #101 CAP 752 | 0.5278383419 | $15,210 | $15,210 | $8.03 | | |
| SD101GEN | SD #101 GENERAL 750 | 0.7380758990 | $15,210 | $15,210 | $11.23 | | |
| ST2 | STATE SCHOOL PART 2 600 | 0.8853714103 | $15,210 | $15,210 | $13.47 | | |
| STATESCHL | STATE SCHOOL 600 | 1.6424571473 | $15,210 | $15,210 | $24.98 | | |
| STREFUND | STATE REFUND LEVY 603 | 0.0000000000 | $15,210 | $15,210 | $0.00 | | |
| COROAD | COUNTY ROAD 115 | 1.6137667997 | $15,210 | $15,210 | $24.55 | | |
| CRPRD | COUNTY ROAD REFUND 115 | 0.0000000000 | $15,210 | $15,210 | $0.00 | | |
| | Total Tax Rate: | 8.4819551874 | | | | | |
| | | | | Taxes w/Current Exemptions: | $129.03 | | |
| | | | | Taxes w/o Exemptions: | $129.03 | | |
Improvement / Building
Sketch
| No sketches available for this property. |
Property Image
Land
| 1 | RES 1 | Converted: Residential | 0.3987 | 17367.00 | 0.00 | 0.00 | 1.00 | $15,210 | $0 |
Roll Value History
| 2026 | N/A | N/A | N/A | N/A | N/A |
| 2025 | $0 | $15,210 | $0 | $15,210 | $15,210 |
| 2024 | $0 | $15,210 | $0 | $15,210 | $15,210 |
| 2023 | $0 | $15,210 | $0 | $15,210 | $15,210 |
| 2022 | $0 | $7,290 | $0 | $7,290 | $7,290 |
| 2021 | $0 | $7,290 | $0 | $7,290 | $7,290 |
| 2020 | $0 | $7,290 | $0 | $7,290 | $7,290 |
| 2019 | $0 | $7,290 | $0 | $7,290 | $7,290 |
| 2018 | $0 | $7,290 | $0 | $7,290 | $7,290 |
| 2017 | $0 | $7,290 | $0 | $7,290 | $7,290 |
| 2016 | $0 | $7,290 | $0 | $7,290 | $7,290 |
| 2015 | $0 | $7,290 | $0 | $7,290 | $7,290 |
| 2014 | $0 | $7,600 | $0 | $7,600 | $7,600 |
| 2013 | $0 | $7,600 | $0 | $7,600 | $7,600 |
| 2012 | $0 | $7,600 | $0 | $0 | $0 |
| 2011 | $0 | $1,200 | $0 | $0 | $0 |
| 2010 | $0 | $1,200 | $0 | $0 | $0 |
| 2009 | $0 | $4,500 | $0 | $0 | $0 |
| 2008 | $0 | $4,500 | $0 | $0 | $0 |
| 2007 | $0 | $4,500 | $0 | $0 | $0 |
Deed and Sales History
| 1 | 07/19/2018 | QCD | QUIT CLAIM DEED | FAUVER ANTHONY | FAUVER ANTHONY D | | | $0.00 | 135344 | 2018-06736 |
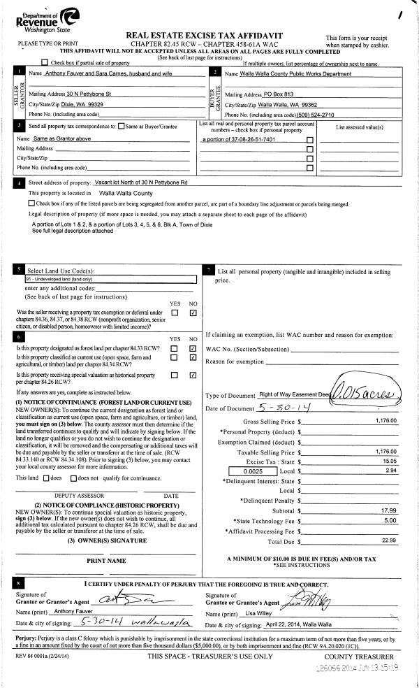
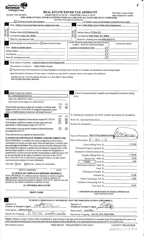
| 2 | 06/13/2014 | EASE | EASEMENT | FAUVER ANTHONY | WALLA WALLA COUNTY OF | | | | 126066 | 2014-04087 |
| 3 | 04/21/2011 | WARRANTY D | WARRANTY DEED | WHEELER, KELLY | FAUVER, ANTHONY | | | | 120031 | 2011-03236 |
| 4 | 10/26/2010 | WARRANTY D | WARRANTY DEED | WHEELER, KELLY | FAUVER ANTHONY | | | $135,000.00 | 119248 | 2010-08699 |
|   | |
| 5 | 06/30/2005 | WARRANTY D | WARRANTY DEED | BROOKS, WADE A & BARBARA J | WHEELER KELLY | | | $120,000.00 | 107855 | 2005-07944 |
|   | |
| 6 | 05/23/1997 | WARRANTY D | WARRANTY DEED | | | | | $66,000.00 | 88208 | 2529-704651 |
|   | |
Payout Agreement
| No payout information available.. |