Property
Account |
| Property ID: | 30224 | Abbreviated Legal Description: | DIXIE LOTS 3 THRU 6 BLK 15 |
| Parcel Number: | 370826511503 | Agent Code: | |
| Type: | Real | | |
| Tax Area: | 310 - 101-8 | Land Use Code | 11 |
| Open Space: | N | DFL | N |
| Historic Property: | N | Remodel Property: | N |
| Multi-Family Redevelopment: | N | | |
| Township: | 8 | Section: | 26 |
| Range: | 37 |
Location |
| Address: | 30 N PETTYBONE ST WA 99329 | Mapsco: | |
| Neighborhood: | Cycle 4 Dixie (SF) | Map ID: | |
| Neighborhood CD: | 413511 |
Owner |
| Name: | FAUVER ANTHONY D | Owner ID: | 63766 |
| Mailing Address: | PO BOX 69 DIXIE, WA 99329 | % Ownership: | 100.0000000000% |
| | | Exemptions: | |
Taxes and Assessment Details
Values
| (+) Improvement Homesite Value: | + | N/A | |
| (+) Improvement Non-Homesite Value: | + | N/A | |
| (+) Land Homesite Value: | + | N/A | |
| (+) Land Non-Homesite Value: | + | N/A | Ag / Timber Use Value |
| (+) Curr Use (HS): | + | N/A | N/A |
| (+) Curr Use (NHS): | + | N/A | N/A |
| | | -------------------------- | |
| (=) Market Value: | = | N/A | |
| (–) Productivity Loss: | – | N/A | |
| | | -------------------------- | |
| (=) Subtotal: | = | N/A | |
| (+) Senior Appraised Value: | + | N/A | |
| (+) Non-Senior Appraised Value: | + | N/A | |
| | | -------------------------- | |
| (=) Total Appraised Value: | = | N/A | |
| (–) Senior Exemption Loss: | – | N/A | |
| (–) Exemption Loss: | – | N/A | |
| | | -------------------------- | |
| (=) Taxable Value: | = | N/A | |
Taxing Jurisdiction
| Owner: | FAUVER ANTHONY D | | |
| % Ownership: | 100.0000000000% | | |
| Total Value: | N/A | | |
| Tax Area: | 310 - 101-8 |
| CERFD | CURRENT EXPENSE REFUND 010 | N/A | N/A | N/A | N/A | | |
| CURREXP | CURRENT EXPENSE 010 | N/A | N/A | N/A | N/A | | |
| HUMNSERV | HUMAN SERVICES 119 | N/A | N/A | N/A | N/A | | |
| SLDREL | SOLDIERS RELIEF 121 | N/A | N/A | N/A | N/A | | |
| EMERGSER | EMS 147 | N/A | N/A | N/A | N/A | | |
| EMSRFD | EMS REFUND 147 | N/A | N/A | N/A | N/A | | |
| FD8EXP | FD #8 EXPENSE 697 | N/A | N/A | N/A | N/A | | |
| RLBRFD | RURAL LIBRARY REFUND 623 | N/A | N/A | N/A | N/A | | |
| RURALLIB | RURAL LIBRARY 623 | N/A | N/A | N/A | N/A | | |
| PORTRFD | PORT REFUND 640 | N/A | N/A | N/A | N/A | | |
| PORTWWGEN | PORT OF WW 640 | N/A | N/A | N/A | N/A | | |
| SD101CAP | SD #101 CAP 752 | N/A | N/A | N/A | N/A | | |
| SD101GEN | SD #101 GENERAL 750 | N/A | N/A | N/A | N/A | | |
| ST2 | STATE SCHOOL PART 2 600 | N/A | N/A | N/A | N/A | | |
| STATESCHL | STATE SCHOOL 600 | N/A | N/A | N/A | N/A | | |
| STREFUND | STATE REFUND LEVY 603 | N/A | N/A | N/A | N/A | | |
| COROAD | COUNTY ROAD 115 | N/A | N/A | N/A | N/A | | |
| CRPRD | COUNTY ROAD REFUND 115 | N/A | N/A | N/A | N/A | | |
| | Total Tax Rate: | N/A | | | | | |
| | | | | Taxes w/Current Exemptions: | N/A | | |
| | | | | Taxes w/o Exemptions: | N/A | | |
Improvement / Building
| Improvement #1: | RESIDENTIAL | State Code: | 11 | 988.0 sqft | Value: | N/A |
| Exterior Wall: | PLYWOOD | Heating/Cooling: | FORCED AIR | | Number of Bathrooms: | 1 | Number of Bedrooms: | 2 | | Plumbing: | 7 | Roof Covering: | COMP SHINGLE |
|
| | Type | Description | Class CD | Sub Class CD | Year Built | Area |
| | MA | Main Area | 1 | 30 | 1975 | 988.0 |
| | SI1 | SITE IMPROVEMENT | 1 | 30 | 1975 | 1.5 |
| | CPC | COVERED CARPORT/PATIO | 1 | 30 | 1975 | 352.0 |
| | RPS | PORCH W/STEPS,ROOF | 1 | 30 | 1975 | 56.0 |
| | WOD | Wood Deck | 1 | 30 | 2011 | 200.0 |
Sketch
Property Image
Land
| 1 | RES 1 | Converted: Residential | 0.4591 | 20000.00 | 0.00 | 0.00 | 1.00 | N/A | N/A |
Roll Value History
| 2026 | N/A | N/A | N/A | N/A | N/A |
| 2025 | $141,490 | $44,200 | $0 | $185,690 | $185,690 |
| 2024 | $141,490 | $44,200 | $0 | $185,690 | $185,690 |
| 2023 | $141,490 | $44,200 | $0 | $185,690 | $185,690 |
| 2022 | $139,020 | $29,200 | $0 | $168,220 | $168,220 |
| 2021 | $132,400 | $29,200 | $0 | $161,600 | $161,600 |
| 2020 | $110,330 | $29,200 | $0 | $139,530 | $139,530 |
| 2019 | $110,330 | $29,200 | $0 | $139,530 | $139,530 |
| 2018 | $110,330 | $29,200 | $0 | $139,530 | $139,530 |
| 2017 | $110,330 | $29,200 | $0 | $139,530 | $139,530 |
| 2016 | $117,960 | $29,200 | $0 | $147,160 | $147,160 |
| 2015 | $117,960 | $29,200 | $0 | $147,160 | $147,160 |
| 2014 | $98,300 | $29,200 | $0 | $127,500 | $127,500 |
| 2013 | $98,300 | $29,200 | $0 | $127,500 | $127,500 |
| 2012 | $92,200 | $29,200 | $0 | $0 | $0 |
| 2011 | $53,700 | $29,200 | $0 | $0 | $0 |
| 2010 | $53,700 | $29,200 | $0 | $0 | $0 |
| 2009 | $64,100 | $18,800 | $0 | $0 | $0 |
| 2008 | $45,000 | $18,800 | $0 | $0 | $0 |
| 2007 | $45,000 | $18,800 | $0 | $0 | $0 |
Deed and Sales History
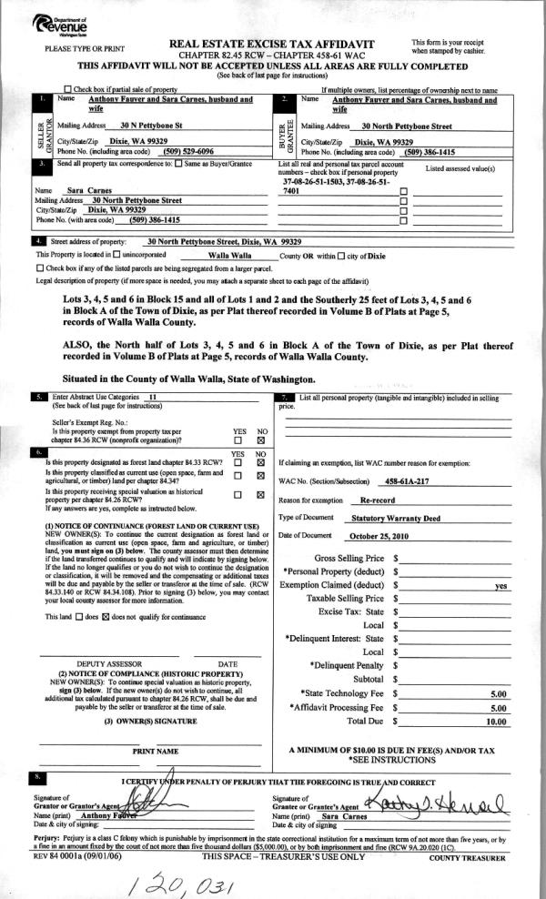
| 1 | 07/19/2018 | QCD | QUIT CLAIM DEED | FAUVER ANTHONY | FAUVER ANTHONY D | | | $0.00 | 135344 | 2018-06736 |
| 2 | 04/21/2011 | WARRANTY D | WARRANTY DEED | WHEELER, KELLY | FAUVER, ANTHONY | | | | 120031 | 2011-03236 |
| 3 | 10/26/2010 | WARRANTY D | WARRANTY DEED | WHEELER KELLY | FAUVER ANTHONY | | | $135,000.00 | 119248 | 2010-08699 |
|   | |
| 4 | 06/30/2005 | WARRANTY D | WARRANTY DEED | BROOKS WADE A & BARBARA J | WHEELER KELLY | | | $120,000.00 | 107855 | 2005-07944 |
|   | |
| 5 | 05/23/1997 | WARRANTY D | WARRANTY DEED | | | | | $66,000.00 | 88208 | 2529-704651 |
|   | |
Payout Agreement
| No payout information available.. |