Property
Account |
| Property ID: | 30160 | Abbreviated Legal Description: | MELODY PARK TERRACE WEST LOT 4 BLK 3 |
| Parcel Number: | 360716600304 | Agent Code: | |
| Type: | Real | | |
| Tax Area: | 5 - OL-140 | Land Use Code | 11 |
| Open Space: | N | DFL | N |
| Historic Property: | N | Remodel Property: | N |
| Multi-Family Redevelopment: | N | | |
| Township: | 7 | Section: | 16 |
| Range: | 36 |
Location |
| Address: | 2011 GLEN ERIN DR WA 99362 | Mapsco: | |
| Neighborhood: | A-SFR | Map ID: | |
| Neighborhood CD: | 313011 |
Owner |
| Name: | MALDONADO LEAH & MANUEL DAVID | Owner ID: | 72772 |
| Mailing Address: | 1650 RESER RD WALLA WALLA, WA 99362 | % Ownership: | 100.0000000000% |
| | | Exemptions: | |
Taxes and Assessment Details
Property Tax Information as of
02/21/2026
Click on "Statement Details" to expand or collapse a tax statement.
* Please enter a valid date ** Please enter a valid date *
Statement Details |
| | TOTAL: | $0.00 | $0.00 | $0.00 | $0.00 | $0.00 | $0.00 |
|
| | $0.00 | $0.00 | $0.00 | $0.00 | $0.00 | $0.00 |
Values
| (+) Improvement Homesite Value: | + | $0 | |
| (+) Improvement Non-Homesite Value: | + | $254,290 | |
| (+) Land Homesite Value: | + | $0 | |
| (+) Land Non-Homesite Value: | + | $90,000 | |
| (+) Curr Use (HS): | + | $0 | $0 |
| (+) Curr Use (NHS): | + | $0 | $0 |
| | | -------------------------- | |
| (=) Market Value: | = | $344,290 | |
| (–) Productivity Loss: | – | $0 | |
| | | -------------------------- | |
| (=) Subtotal: | = | $344,290 | |
| (+) Senior Appraised Value: | + | $0 | |
| (+) Non-Senior Appraised Value: | + | $344,290 | |
| | | -------------------------- | |
| (=) Total Appraised Value: | = | $344,290 | |
| (–) Senior Exemption Loss: | – | $0 | |
| (–) Exemption Loss: | – | $0 | |
| | | -------------------------- | |
| (=) Taxable Value: | = | $344,290 | |
Taxing Jurisdiction
| Owner: | MALDONADO LEAH & MANUEL DAVID | | |
| % Ownership: | 100.0000000000% | | |
| Total Value: | $344,290 | | |
| Tax Area: | 5 - OL-140 |
| CERFD | CURRENT EXPENSE REFUND 010 | 0.0000000000 | $344,290 | $344,290 | $0.00 | | |
| CURREXP | CURRENT EXPENSE 010 | 1.0175366760 | $344,290 | $344,290 | $350.33 | | |
| HUMNSERV | HUMAN SERVICES 119 | 0.0250000000 | $344,290 | $344,290 | $8.61 | | |
| SLDREL | SOLDIERS RELIEF 121 | 0.0155990005 | $344,290 | $344,290 | $5.37 | | |
| EMERGSER | EMS 147 | 0.3792580840 | $344,290 | $344,290 | $130.57 | | |
| EMSRFD | EMS REFUND 147 | 0.0000000000 | $344,290 | $344,290 | $0.00 | | |
| PORTRFD | PORT REFUND 640 | 0.0000000000 | $344,290 | $344,290 | $0.00 | | |
| PORTWWGEN | PORT OF WW 640 | 0.2460186015 | $344,290 | $344,290 | $84.70 | | |
| SD140BOND | SD #140 BOND 764 | 0.8342371393 | $344,290 | $344,290 | $287.22 | | |
| SD140GEN | SD #140 GENERAL 760 | 2.0646500647 | $344,290 | $344,290 | $710.84 | | |
| ST2 | STATE SCHOOL PART 2 600 | 0.8131451643 | $344,290 | $344,290 | $279.96 | | |
| STATESCHL | STATE SCHOOL 600 | 1.5158548041 | $344,290 | $344,290 | $521.89 | | |
| STREFUND | STATE REFUND LEVY 603 | 0.0000000000 | $344,290 | $344,290 | $0.00 | | |
| CWWBOND | C OF WW BOND 643 | 0.2760494372 | $344,290 | $344,290 | $95.04 | | |
| CWWGEN | CITY OF WW 631 | 1.6100204973 | $344,290 | $344,290 | $554.31 | | |
| CWWRFD | CITY OF WALLA WALLA REFUND 631 | 0.0000000000 | $344,290 | $344,290 | $0.00 | | |
| | Total Tax Rate: | 8.7973694689 | | | | | |
| | | | | Taxes w/Current Exemptions: | $3,028.84 | | |
| | | | | Taxes w/o Exemptions: | $3,028.84 | | |
Improvement / Building
| Improvement #1: | RESIDENTIAL | State Code: | 11 | 1120.0 sqft | Value: | $254,290 |
| Exterior Wall: | PLYWOOD | Heating/Cooling: | WARM & COOLED AIR | | Number of Bathrooms: | 3 | Number of Bedrooms: | 3 | | Plumbing: | 12 | Roof Covering: | COMP SHINGLE |
|
| | Type | Description | Class CD | Sub Class CD | Year Built | Area |
| | MA | Main Area | 1 | 30 | 1979 | 1120.0 |
| | SI1 | SITE IMPROVEMENT | 1 | 30 | 1979 | 1.5 |
| | BASE | BASEMENT | 1 | 30 | 1979 | 1120.0 |
| | BPF | BASEMENT -PARTITIONED FINISH | 1 | 30 | 1979 | 840.0 |
| | ATG | Attached Garage | 1 | 30 | 1979 | 440.0 |
| | PRC | PORCH W STEPS, ROOF,CEILED | 1 | 30 | 1979 | 24.0 |
| | RPC | OPEN PORCH W/ROOF , CEILED | 1 | 30 | 1979 | 64.0 |
Sketch
Property Image
Land
| 1 | RES 1 | Converted: Residential | 0.1997 | 8700.00 | 0.00 | 0.00 | 1.00 | $90,000 | $0 |
Roll Value History
| 2026 | N/A | N/A | N/A | N/A | N/A |
| 2025 | $254,290 | $90,000 | $0 | $344,290 | $344,290 |
| 2024 | $254,290 | $90,000 | $0 | $344,290 | $344,290 |
| 2023 | $254,290 | $90,000 | $0 | $344,290 | $344,290 |
| 2022 | $254,290 | $90,000 | $0 | $344,290 | $344,290 |
| 2021 | $191,350 | $55,000 | $0 | $246,350 | $246,350 |
| 2020 | $159,460 | $55,000 | $0 | $214,460 | $214,460 |
| 2019 | $159,460 | $55,000 | $0 | $214,460 | $214,460 |
| 2018 | $127,570 | $55,000 | $0 | $182,570 | $182,570 |
| 2017 | $127,570 | $55,000 | $0 | $182,570 | $182,570 |
| 2016 | $115,970 | $55,000 | $0 | $170,970 | $170,970 |
| 2015 | $105,600 | $55,000 | $0 | $160,600 | $160,600 |
| 2014 | $105,600 | $55,000 | $0 | $160,600 | $160,600 |
| 2013 | $105,600 | $55,000 | $0 | $160,600 | $160,600 |
| 2012 | $114,100 | $55,000 | $0 | $0 | $0 |
| 2011 | $114,100 | $55,000 | $0 | $0 | $0 |
| 2010 | $112,100 | $40,000 | $0 | $0 | $0 |
| 2009 | $129,000 | $40,000 | $0 | $0 | $0 |
| 2008 | $95,200 | $40,000 | $0 | $0 | $0 |
| 2007 | $95,200 | $40,000 | $0 | $0 | $0 |
Deed and Sales History
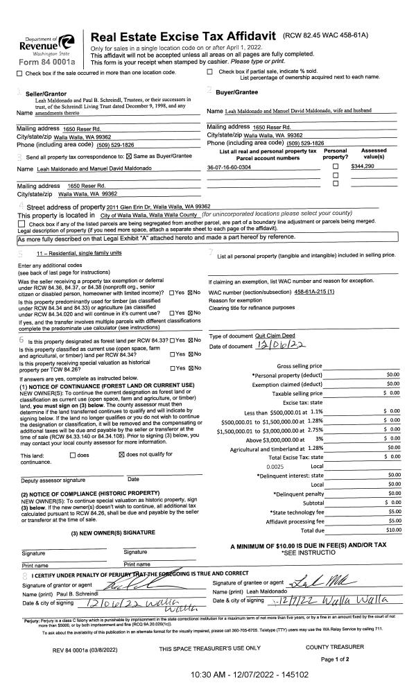
| 1 | 12/06/2022 | QCD | QUIT CLAIM DEED | SCHREINDL LIVING TRUST | MALDONADO LEAH & MANUEL DAVID | | | $0.00 | 145102 | 2022-09557 |
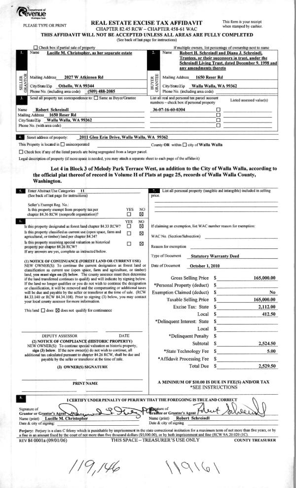
| 2 | 10/08/2010 | WARRANTY D | WARRANTY DEED | CHRISTOPHER, LUCILLE | SCHREINDL, ROBERT H & DIANA J | | | $165,000.00 | 119161 | 2010-08056 |
| 3 | 02/02/1979 | WARRANTY D | WARRANTY DEED | | | | | $50,000.00 | 0 | 9779-01068 |
Payout Agreement
| No payout information available.. |