Property
Account |
| Property ID: | 30148 | Abbreviated Legal Description: | EASTLAWN LOT 19 BLK 4 |
| Parcel Number: | 360721530419 | Agent Code: | |
| Type: | Real | | |
| Tax Area: | 1 - OL-140-F | Land Use Code | 11 |
| Open Space: | N | DFL | N |
| Historic Property: | N | Remodel Property: | N |
| Multi-Family Redevelopment: | N | | |
| Township: | 7 | Section: | 21 |
| Range: | 36 |
Location |
| Address: | 1542 HOBSON ST WA 99362 | Mapsco: | |
| Neighborhood: | A-SFR | Map ID: | |
| Neighborhood CD: | 513011 |
Owner |
| Name: | GARCIA ABELARDO Z & ANA JUAREZ RAMIRO | Owner ID: | 66498 |
| Mailing Address: | 1542 HOBSON ST WALLA WALLA, WA 99362 | % Ownership: | 100.0000000000% |
| | | Exemptions: | |
Taxes and Assessment Details
Property Tax Information as of
02/21/2026
Click on "Statement Details" to expand or collapse a tax statement.
* Please enter a valid date ** Please enter a valid date *
Statement Details |
| | TOTAL: | $0.00 | $0.00 | $0.00 | $0.00 | $0.00 | $0.00 |
|
| | $0.00 | $0.00 | $0.00 | $0.00 | $0.00 | $0.00 |
Values
| (+) Improvement Homesite Value: | + | $0 | |
| (+) Improvement Non-Homesite Value: | + | $160,190 | |
| (+) Land Homesite Value: | + | $0 | |
| (+) Land Non-Homesite Value: | + | $33,000 | |
| (+) Curr Use (HS): | + | $0 | $0 |
| (+) Curr Use (NHS): | + | $0 | $0 |
| | | -------------------------- | |
| (=) Market Value: | = | $193,190 | |
| (–) Productivity Loss: | – | $0 | |
| | | -------------------------- | |
| (=) Subtotal: | = | $193,190 | |
| (+) Senior Appraised Value: | + | $0 | |
| (+) Non-Senior Appraised Value: | + | $193,190 | |
| | | -------------------------- | |
| (=) Total Appraised Value: | = | $193,190 | |
| (–) Senior Exemption Loss: | – | $0 | |
| (–) Exemption Loss: | – | $0 | |
| | | -------------------------- | |
| (=) Taxable Value: | = | $193,190 | |
Taxing Jurisdiction
| Owner: | GARCIA ABELARDO Z & ANA JUAREZ RAMIRO | | |
| % Ownership: | 100.0000000000% | | |
| Total Value: | $193,190 | | |
| Tax Area: | 1 - OL-140-F |
| CERFD | CURRENT EXPENSE REFUND 010 | 0.0000000000 | $193,190 | $193,190 | $0.00 | | |
| CURREXP | CURRENT EXPENSE 010 | 1.0175366760 | $193,190 | $193,190 | $196.58 | | |
| HUMNSERV | HUMAN SERVICES 119 | 0.0250000000 | $193,190 | $193,190 | $4.83 | | |
| SLDREL | SOLDIERS RELIEF 121 | 0.0155990005 | $193,190 | $193,190 | $3.01 | | |
| EMERGSER | EMS 147 | 0.3792580840 | $193,190 | $193,190 | $73.27 | | |
| EMSRFD | EMS REFUND 147 | 0.0000000000 | $193,190 | $193,190 | $0.00 | | |
| PORTRFD | PORT REFUND 640 | 0.0000000000 | $193,190 | $193,190 | $0.00 | | |
| PORTWWGEN | PORT OF WW 640 | 0.2460186015 | $193,190 | $193,190 | $47.53 | | |
| SD140BOND | SD #140 BOND 764 | 0.8342371393 | $193,190 | $193,190 | $161.17 | | |
| SD140GEN | SD #140 GENERAL 760 | 2.0646500647 | $193,190 | $193,190 | $398.87 | | |
| ST2 | STATE SCHOOL PART 2 600 | 0.8131451643 | $193,190 | $193,190 | $157.09 | | |
| STATESCHL | STATE SCHOOL 600 | 1.5158548041 | $193,190 | $193,190 | $292.85 | | |
| STREFUND | STATE REFUND LEVY 603 | 0.0000000000 | $193,190 | $193,190 | $0.00 | | |
| CWWBOND | C OF WW BOND 643 | 0.2760494372 | $193,190 | $193,190 | $53.33 | | |
| CWWGEN | CITY OF WW 631 | 1.6100204973 | $193,190 | $193,190 | $311.04 | | |
| CWWRFD | CITY OF WALLA WALLA REFUND 631 | 0.0000000000 | $193,190 | $193,190 | $0.00 | | |
| | Total Tax Rate: | 8.7973694689 | | | | | |
| | | | | Taxes w/Current Exemptions: | $1,699.57 | | |
| | | | | Taxes w/o Exemptions: | $1,699.57 | | |
Improvement / Building
| Improvement #1: | RESIDENTIAL | State Code: | 11 | 1044.0 sqft | Value: | $160,190 |
| Exterior Wall: | PLYWOOD | Heating/Cooling: | BASEBOARD ELECTRIC | | Number of Bathrooms: | 2 | Number of Bedrooms: | 3 | | Plumbing: | 8 | Roof Covering: | COMP SHINGLE |
|
| | Type | Description | Class CD | Sub Class CD | Year Built | Area |
| | MA | Main Area | 4 | 20 | 1952 | 1044.0 |
| | SI1 | SITE IMPROVEMENT | 4 | 20 | 1952 | 1.0 |
| | UPFL | Upper Floor (included in main area) | 4 | 20 | 1952 | 384.0 |
| | WOD | Wood Deck | 4 | 20 | 1952 | 280.0 |
Sketch
Property Image
Land
| 1 | RES 1 | Converted: Residential | 0.1212 | 5280.00 | 0.00 | 0.00 | 1.00 | $33,000 | $0 |
Roll Value History
| 2026 | N/A | N/A | N/A | N/A | N/A |
| 2025 | $181,230 | $52,800 | $0 | $234,030 | $234,030 |
| 2024 | $139,410 | $52,800 | $0 | $192,210 | $192,210 |
| 2023 | $160,190 | $33,000 | $0 | $193,190 | $193,190 |
| 2022 | $139,300 | $33,000 | $0 | $172,300 | $172,300 |
| 2021 | $103,180 | $33,000 | $0 | $136,180 | $136,180 |
| 2020 | $85,990 | $33,000 | $0 | $118,990 | $118,990 |
| 2019 | $85,990 | $33,000 | $0 | $118,990 | $118,990 |
| 2018 | $81,890 | $33,000 | $0 | $114,890 | $114,890 |
| 2017 | $88,000 | $21,100 | $0 | $109,100 | $109,100 |
| 2016 | $55,000 | $21,100 | $0 | $76,100 | $76,100 |
| 2015 | $55,000 | $21,100 | $0 | $76,100 | $76,100 |
| 2014 | $50,000 | $21,100 | $0 | $71,100 | $71,100 |
| 2013 | $50,000 | $21,100 | $0 | $71,100 | $71,100 |
| 2012 | $97,400 | $21,100 | $0 | $0 | $0 |
| 2011 | $97,400 | $21,100 | $0 | $0 | $0 |
| 2010 | $91,800 | $21,100 | $0 | $0 | $0 |
| 2009 | $104,300 | $21,100 | $0 | $0 | $0 |
| 2008 | $54,900 | $21,100 | $0 | $0 | $0 |
| 2007 | $54,900 | $21,100 | $0 | $0 | $0 |
Deed and Sales History
| 1 | 01/06/2020 | QCD | QUIT CLAIM DEED | GARCIA ABELARDO Z | GARCIA ABELARDO Z & ANA JUAREZ RAMIRO | | | $0.00 | 138395 | 2020-00241 |
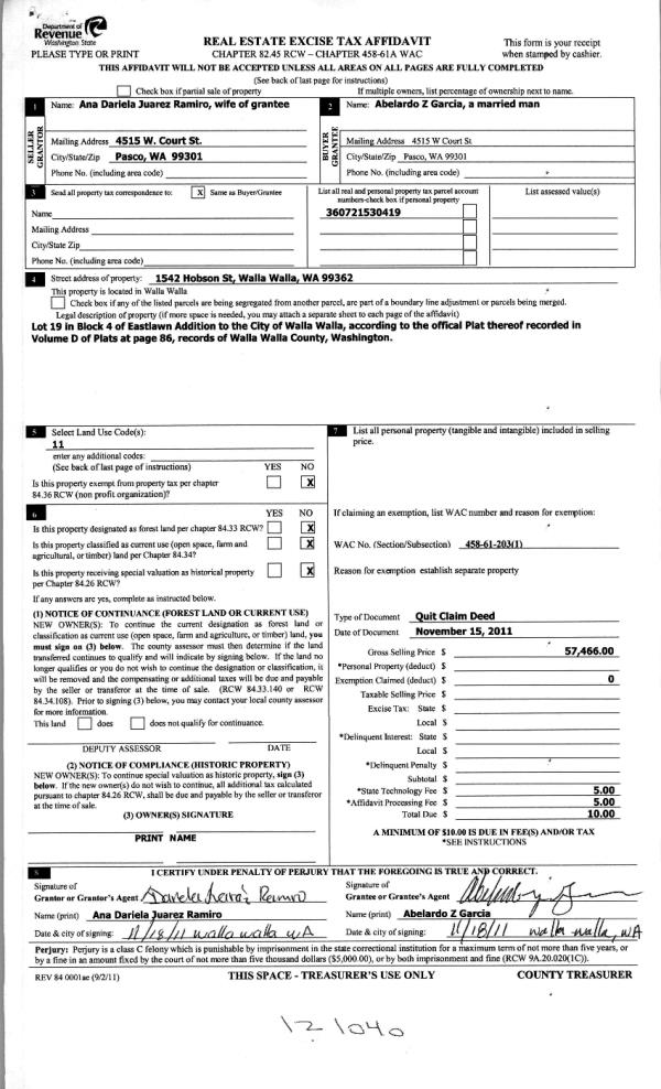
| 2 | 11/23/2011 | QCD | QUIT CLAIM DEED | ANA DARIELA JUAREZ RAMIRO | GARCIA, ABELARDO Z | | | $57,466.00 | 121040 | 2011-09244 |
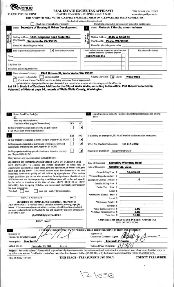
| 3 | 11/23/2011 | WARRANTY D | WARRANTY DEED | SECRETARY OF HOUSING & URBAN D | GARCIA, ABELARDO Z | | | $57,466.00 | 121038 | 2011-09241 |
| 4 | 10/18/2010 | WARRANTY D | WARRANTY DEED | WELLS FARGO BANK NA | SECRETARY OF HOUSING & URBAN D | | | $137,728.00 | 119197 | 2010-08375 |
| 5 | 09/27/2010 | WARRANTY D | WARRANTY DEED | NORTHWEST TRUSTEE SERVICES | WELLS FARGO BANK NA | | | $151,621.00 | 119067 | 2010-07605 |
| 6 | 08/28/2007 | WARRANTY D | WARRANTY DEED | WATTS, TRAVIS L | DAHL, ALLEN & HEATHER | | | $133,200.00 | 113601 | 2007-10119 |
| 7 | 01/23/2001 | WARRANTY D | WARRANTY DEED | | | | | $38,000.00 | 96506 | 3070-100667 |
Payout Agreement
| No payout information available.. |