Property
Account |
| Property ID: | 30147 | Abbreviated Legal Description: | REEDS S 50' OF LOT 1 BLK 5 (TRACT II OF SHORT PLAT 8603957) |
| Parcel Number: | 360721710516 | Agent Code: | |
| Type: | Real | | |
| Tax Area: | 1 - OL-140-F | Land Use Code | 11 |
| Open Space: | N | DFL | N |
| Historic Property: | N | Remodel Property: | N |
| Multi-Family Redevelopment: | N | | |
| Township: | 7 | Section: | 21 |
| Range: | 36 |
Location |
| Address: | 204 S MADISON ST WA 99362 | Mapsco: | |
| Neighborhood: | G-SFR | Map ID: | |
| Neighborhood CD: | 514011 |
Owner |
| Name: | HORTON CYNTHIA J | Owner ID: | 55746 |
| Mailing Address: | 204 S MADISON ST WALLA WALLA, WA 99362 | % Ownership: | 100.0000000000% |
| | | Exemptions: | |
Taxes and Assessment Details
Property Tax Information as of
02/21/2026
Click on "Statement Details" to expand or collapse a tax statement.
* Please enter a valid date ** Please enter a valid date *
Statement Details |
| | TOTAL: | $0.00 | $0.00 | $0.00 | $0.00 | $0.00 | $0.00 |
|
| | $0.00 | $0.00 | $0.00 | $0.00 | $0.00 | $0.00 |
Values
| (+) Improvement Homesite Value: | + | $0 | |
| (+) Improvement Non-Homesite Value: | + | $157,070 | |
| (+) Land Homesite Value: | + | $0 | |
| (+) Land Non-Homesite Value: | + | $21,750 | |
| (+) Curr Use (HS): | + | $0 | $0 |
| (+) Curr Use (NHS): | + | $0 | $0 |
| | | -------------------------- | |
| (=) Market Value: | = | $178,820 | |
| (–) Productivity Loss: | – | $0 | |
| | | -------------------------- | |
| (=) Subtotal: | = | $178,820 | |
| (+) Senior Appraised Value: | + | $0 | |
| (+) Non-Senior Appraised Value: | + | $178,820 | |
| | | -------------------------- | |
| (=) Total Appraised Value: | = | $178,820 | |
| (–) Senior Exemption Loss: | – | $0 | |
| (–) Exemption Loss: | – | $0 | |
| | | -------------------------- | |
| (=) Taxable Value: | = | $178,820 | |
Taxing Jurisdiction
| Owner: | HORTON CYNTHIA J | | |
| % Ownership: | 100.0000000000% | | |
| Total Value: | $178,820 | | |
| Tax Area: | 1 - OL-140-F |
| CERFD | CURRENT EXPENSE REFUND 010 | 0.0000000000 | $178,820 | $178,820 | $0.00 | | |
| CURREXP | CURRENT EXPENSE 010 | 1.0175366760 | $178,820 | $178,820 | $181.96 | | |
| HUMNSERV | HUMAN SERVICES 119 | 0.0250000000 | $178,820 | $178,820 | $4.47 | | |
| SLDREL | SOLDIERS RELIEF 121 | 0.0155990005 | $178,820 | $178,820 | $2.79 | | |
| EMERGSER | EMS 147 | 0.3792580840 | $178,820 | $178,820 | $67.82 | | |
| EMSRFD | EMS REFUND 147 | 0.0000000000 | $178,820 | $178,820 | $0.00 | | |
| PORTRFD | PORT REFUND 640 | 0.0000000000 | $178,820 | $178,820 | $0.00 | | |
| PORTWWGEN | PORT OF WW 640 | 0.2460186015 | $178,820 | $178,820 | $43.99 | | |
| SD140BOND | SD #140 BOND 764 | 0.8342371393 | $178,820 | $178,820 | $149.18 | | |
| SD140GEN | SD #140 GENERAL 760 | 2.0646500647 | $178,820 | $178,820 | $369.20 | | |
| ST2 | STATE SCHOOL PART 2 600 | 0.8131451643 | $178,820 | $178,820 | $145.41 | | |
| STATESCHL | STATE SCHOOL 600 | 1.5158548041 | $178,820 | $178,820 | $271.07 | | |
| STREFUND | STATE REFUND LEVY 603 | 0.0000000000 | $178,820 | $178,820 | $0.00 | | |
| CWWBOND | C OF WW BOND 643 | 0.2760494372 | $178,820 | $178,820 | $49.36 | | |
| CWWGEN | CITY OF WW 631 | 1.6100204973 | $178,820 | $178,820 | $287.90 | | |
| CWWRFD | CITY OF WALLA WALLA REFUND 631 | 0.0000000000 | $178,820 | $178,820 | $0.00 | | |
| | Total Tax Rate: | 8.7973694689 | | | | | |
| | | | | Taxes w/Current Exemptions: | $1,573.15 | | |
| | | | | Taxes w/o Exemptions: | $1,573.15 | | |
Improvement / Building
| Improvement #1: | RESIDENTIAL | State Code: | 11 | 692.0 sqft | Value: | $157,070 |
| Exterior Wall: | SIDING | Heating/Cooling: | FORCED AIR | | Number of Bathrooms: | 1 | Number of Bedrooms: | 2 | | Plumbing: | 6 | Roof Covering: | COMP SHINGLE |
|
| | Type | Description | Class CD | Sub Class CD | Year Built | Area |
| | MA | Main Area | 1 | 30 | 1901 | 692.0 |
| | SI1 | SITE IMPROVEMENT | 1 | 30 | 1901 | 1.0 |
| | GFP | GAS FIREPLACE | 1 | 30 | 2007 | 1.0 |
| | RESTOOL | RESIDENTIAL TOOL SHED | 1 | 30 | 1901 | 80.0 |
Sketch
Property Image
Land
| 1 | RES 1 | Converted: Residential | 0.0689 | 3000.00 | 0.00 | 0.00 | 1.00 | $21,750 | $0 |
Roll Value History
| 2026 | N/A | N/A | N/A | N/A | N/A |
| 2025 | $142,540 | $33,000 | $0 | $175,540 | $175,540 |
| 2024 | $142,540 | $33,000 | $0 | $175,540 | $175,540 |
| 2023 | $157,070 | $21,750 | $0 | $178,820 | $178,820 |
| 2022 | $142,790 | $21,750 | $0 | $164,540 | $164,540 |
| 2021 | $142,790 | $21,750 | $0 | $164,540 | $164,540 |
| 2020 | $129,810 | $21,750 | $0 | $151,560 | $151,560 |
| 2019 | $129,810 | $21,750 | $0 | $151,560 | $151,560 |
| 2018 | $129,810 | $21,750 | $0 | $151,560 | $151,560 |
| 2017 | $138,060 | $13,500 | $0 | $151,560 | $151,560 |
| 2016 | $106,200 | $13,500 | $0 | $119,700 | $119,700 |
| 2015 | $106,200 | $13,500 | $0 | $119,700 | $119,700 |
| 2014 | $59,000 | $13,500 | $0 | $72,500 | $72,500 |
| 2013 | $59,000 | $13,500 | $0 | $72,500 | $72,500 |
| 2012 | $74,500 | $13,500 | $0 | $0 | $0 |
| 2011 | $74,500 | $13,500 | $0 | $0 | $0 |
| 2010 | $70,300 | $13,500 | $0 | $0 | $0 |
| 2009 | $70,300 | $13,500 | $0 | $0 | $0 |
| 2008 | $57,800 | $12,000 | $0 | $0 | $0 |
| 2007 | $57,800 | $12,000 | $0 | $0 | $0 |
Deed and Sales History
| 1 | 11/07/2014 | SWD | STATUTORY WARRANTY DEED | MEYER JOSEPH & ERIN | HORTON CYNTHIA J | | | $125,000.00 | 126911 | 2014-08128 |
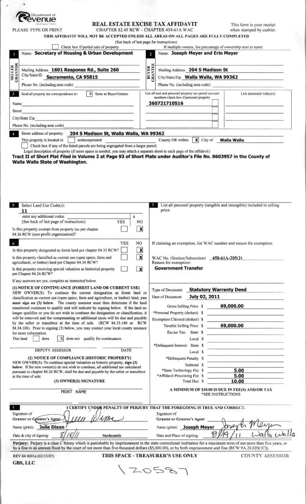
| 2 | 08/23/2011 | WARRANTY D | WARRANTY DEED | SECRETARY OF HOUSING & URBAN D | MEYER, JOSEPH & ERIN | | | $69,000.00 | 120587 | 2011-06601 |
| 3 | 10/20/2010 | WARRANTY D | WARRANTY DEED | WELLS FARGO BANK NA | SECRETARY OF HOUSING & URBAN D | | | $121,334.00 | 119219 | 2010-08488 |
| 4 | 09/30/2010 | WARRANTY D | WARRANTY DEED | NORTHWEST TRUSTEE SERVICES INC | WELLS FARGO BANK NA | | | $135,434.00 | 119102 | 2010-07780 |
| 5 | 06/18/2008 | WARRANTY D | WARRANTY DEED | MC MAHAN, TERRI | GILLUM, MATTHEW | | | $125,000.00 | 115200 | 2008-06277 |
| 6 | 12/15/2003 | QCD | QUIT CLAIM DEED | MC MAHAN, TERRI | MC MAHAN, TERRI | | | | 103726 | 2003-18922 |
| 7 | 09/11/2001 | WARRANTY D | WARRANTY DEED | | | | | $55,400.00 | 98006 | 3190-109872 |
Payout Agreement
| No payout information available.. |