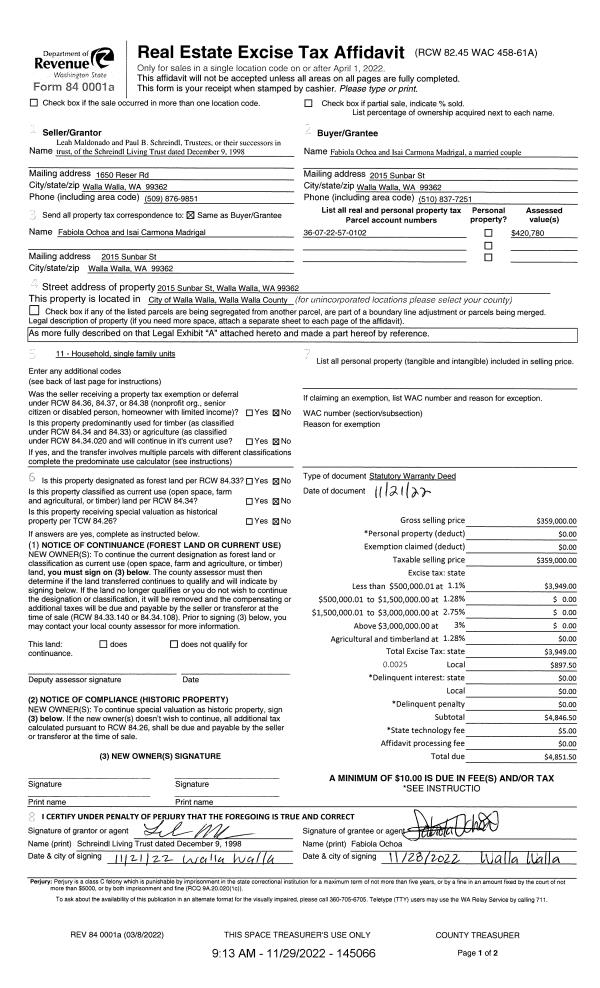
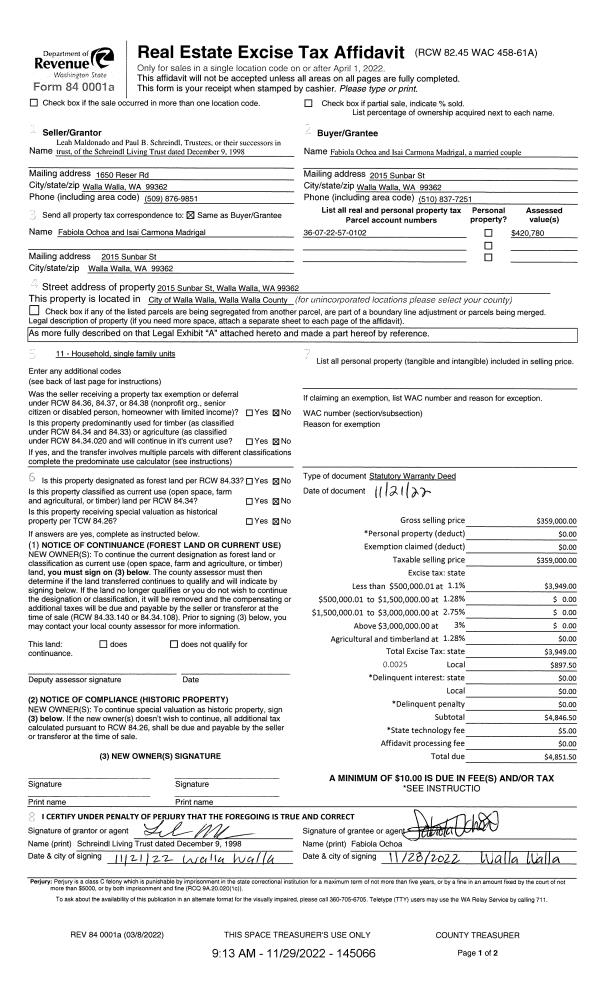
Property
Account |
| Property ID: | 30145 | Abbreviated Legal Description: | SUN BAR LOT 2 BLK 1 |
| Parcel Number: | 360722570102 | Agent Code: | |
| Type: | Real | | |
| Tax Area: | 1 - OL-140-F | Land Use Code | 11 |
| Open Space: | N | DFL | N |
| Historic Property: | N | Remodel Property: | N |
| Multi-Family Redevelopment: | N | | |
| Township: | 7 | Section: | 22 |
| Range: | 36 |
Location |
| Address: | 2015 SUNBAR ST WA 99362 | Mapsco: | |
| Neighborhood: | A SFR | Map ID: | |
| Neighborhood CD: | 413011 |
Owner |
| Name: | OCHOA FABIOLA & ISAI CAMONA MADRIGAL | Owner ID: | 72841 |
| Mailing Address: | 2015 SUNBAR ST WALLA WALLA, WA 99362 | % Ownership: | 100.0000000000% |
| | | Exemptions: | |
Taxes and Assessment Details
Values
| (+) Improvement Homesite Value: | + | $0 | |
| (+) Improvement Non-Homesite Value: | + | $349,030 | |
| (+) Land Homesite Value: | + | $0 | |
| (+) Land Non-Homesite Value: | + | $75,860 | |
| (+) Curr Use (HS): | + | $0 | $0 |
| (+) Curr Use (NHS): | + | $0 | $0 |
| | | -------------------------- | |
| (=) Market Value: | = | $424,890 | |
| (–) Productivity Loss: | – | $0 | |
| | | -------------------------- | |
| (=) Subtotal: | = | $424,890 | |
| (+) Senior Appraised Value: | + | $0 | |
| (+) Non-Senior Appraised Value: | + | $424,890 | |
| | | -------------------------- | |
| (=) Total Appraised Value: | = | $424,890 | |
| (–) Senior Exemption Loss: | – | $0 | |
| (–) Exemption Loss: | – | $0 | |
| | | -------------------------- | |
| (=) Taxable Value: | = | $424,890 | |
Taxing Jurisdiction
| Owner: | OCHOA FABIOLA & ISAI CAMONA MADRIGAL | | |
| % Ownership: | 100.0000000000% | | |
| Total Value: | $424,890 | | |
| Tax Area: | 1 - OL-140-F |
| CERFD | CURRENT EXPENSE REFUND 010 | 0.0000000000 | $424,890 | $424,890 | $0.00 | | |
| CURREXP | CURRENT EXPENSE 010 | 1.0175366760 | $424,890 | $424,890 | $432.34 | | |
| HUMNSERV | HUMAN SERVICES 119 | 0.0250000000 | $424,890 | $424,890 | $10.62 | | |
| SLDREL | SOLDIERS RELIEF 121 | 0.0155990005 | $424,890 | $424,890 | $6.63 | | |
| EMERGSER | EMS 147 | 0.3792580840 | $424,890 | $424,890 | $161.14 | | |
| EMSRFD | EMS REFUND 147 | 0.0000000000 | $424,890 | $424,890 | $0.00 | | |
| PORTRFD | PORT REFUND 640 | 0.0000000000 | $424,890 | $424,890 | $0.00 | | |
| PORTWWGEN | PORT OF WW 640 | 0.2460186015 | $424,890 | $424,890 | $104.53 | | |
| SD140BOND | SD #140 BOND 764 | 0.8342371393 | $424,890 | $424,890 | $354.46 | | |
| SD140GEN | SD #140 GENERAL 760 | 2.0646500647 | $424,890 | $424,890 | $877.25 | | |
| ST2 | STATE SCHOOL PART 2 600 | 0.8131451643 | $424,890 | $424,890 | $345.50 | | |
| STATESCHL | STATE SCHOOL 600 | 1.5158548041 | $424,890 | $424,890 | $644.07 | | |
| STREFUND | STATE REFUND LEVY 603 | 0.0000000000 | $424,890 | $424,890 | $0.00 | | |
| CWWBOND | C OF WW BOND 643 | 0.2760494372 | $424,890 | $424,890 | $117.29 | | |
| CWWGEN | CITY OF WW 631 | 1.6100204973 | $424,890 | $424,890 | $684.08 | | |
| CWWRFD | CITY OF WALLA WALLA REFUND 631 | 0.0000000000 | $424,890 | $424,890 | $0.00 | | |
| | Total Tax Rate: | 8.7973694689 | | | | | |
| | | | | Taxes w/Current Exemptions: | $3,737.91 | | |
| | | | | Taxes w/o Exemptions: | $3,737.91 | | |
Improvement / Building
| Improvement #1: | RESIDENTIAL | State Code: | 11 | 1830.0 sqft | Value: | $349,030 |
| Exterior Wall: | HARDBOARD | Heating/Cooling: | WARM & COOLED AIR | | Number of Bathrooms: | 3 | Number of Bedrooms: | 3 | | Plumbing: | 11 | Roof Covering: | COMP SHINGLE |
|
| | Type | Description | Class CD | Sub Class CD | Year Built | Area |
| | MA | Main Area | 1 | 35 | 1994 | 1830.0 |
| | SI1 | SITE IMPROVEMENT | 1 | 35 | 0 | 3.5 |
| | ATG | Attached Garage | 1 | 35 | 1994 | 576.0 |
| | WOD | Wood Deck | 1 | 35 | 1994 | 24.0 |
| | WOD | Wood Deck | 1 | 35 | 1994 | 286.0 |
Sketch
Property Image
Land
| 1 | RES 1 | Converted: Residential | 0.2177 | 9483.00 | 0.00 | 0.00 | 1.00 | $75,860 | $0 |
Roll Value History
| 2026 | N/A | N/A | N/A | N/A | N/A |
| 2025 | $349,030 | $75,860 | $0 | $424,890 | $424,890 |
| 2024 | $349,030 | $75,860 | $0 | $424,890 | $424,890 |
| 2023 | $349,030 | $75,860 | $0 | $424,890 | $424,890 |
| 2022 | $370,990 | $49,790 | $0 | $420,780 | $420,780 |
| 2021 | $247,330 | $49,790 | $0 | $297,120 | $297,120 |
| 2020 | $183,210 | $49,790 | $0 | $233,000 | $233,000 |
| 2019 | $183,210 | $49,790 | $0 | $233,000 | $233,000 |
| 2018 | $146,570 | $49,790 | $0 | $196,360 | $196,360 |
| 2017 | $146,570 | $49,790 | $0 | $196,360 | $196,360 |
| 2016 | $155,650 | $37,900 | $0 | $193,550 | $193,550 |
| 2015 | $148,240 | $37,900 | $0 | $186,140 | $186,140 |
| 2014 | $128,900 | $37,900 | $0 | $166,800 | $166,800 |
| 2013 | $128,900 | $37,900 | $0 | $166,800 | $166,800 |
| 2012 | $121,000 | $37,900 | $0 | $0 | $0 |
| 2011 | $144,000 | $37,900 | $0 | $0 | $0 |
| 2010 | $144,000 | $37,900 | $0 | $0 | $0 |
| 2009 | $164,200 | $37,900 | $0 | $0 | $0 |
| 2008 | $164,200 | $37,900 | $0 | $0 | $0 |
| 2007 | $164,200 | $37,900 | $0 | $0 | $0 |
Deed and Sales History
| 1 | 11/29/2022 | SWD | STATUTORY WARRANTY DEED | SCHREINDL LIVING TRUST | OCHOA FABIOLA & ISAI CAMONA MADRIGAL | | | $359,000.00 | 145066 | 2022-09388 |
| 2 | 10/20/2010 | WARRANTY D | WARRANTY DEED | BAKER KATHLEEN L | SCHREINDL LIVING TRUST | | | $164,300.00 | 119221 | 2010-08477 |
| 3 | 01/31/1996 | WARRANTY D | WARRANTY DEED | | BAKER KATHLEEN L | | | $145,000.00 | 85532 | 2379-600974 |
Payout Agreement
| No payout information available.. |