| 1 | 11/21/2025 | SWD | STATUTORY WARRANTY DEED | HOELSCHER WILLIAM M & AMY L | ZIMMERMAN KARISSA & TALON ADKINS | | | $570,000.00 | 150399 | 2025-07230 |
| 2 | 09/09/2016 | SWD | STATUTORY WARRANTY DEED | ARELLANO OSCAR & VERONICA | HOELSCHER WILLIAM M & AMY L | | | $275,000.00 | 130992 | 2016-07351 |
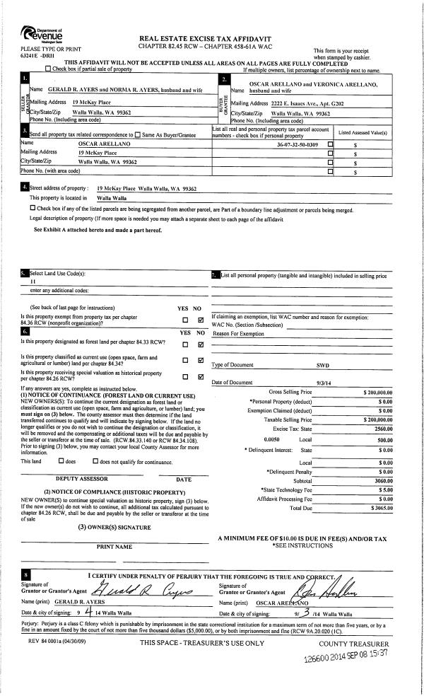
| 3 | 09/03/2014 | SWD | STATUTORY WARRANTY DEED | AYERS GERALD R & NORMA R | ARELLANO OSCAR & VERONICA | | | $200,000.00 | 126600 | 2014-06579 |
| 4 | 10/22/2010 | WARRANTY D | WARRANTY DEED | HALL, WILBUR W & DONNA M ESTAT | AYERS, GERALD R & NORMA R | | | $199,000.00 | 119237 | 2010-08598 |
| 5 | 08/15/2003 | WARRANTY D | WARRANTY DEED | HEATON, MILTON H & ETOILA | HALL, WILBUR W & DONNA M | | | $190,000.00 | 102813 | 2003-12281 |
| 6 | 08/13/2002 | WARRANTY D | WARRANTY DEED | SECRETARY OF VETERANS AFFAIRS | HEATON, MILTON H & ETOILA | | | $135,000.00 | 100143 | 2002-0009081 |