Property
Account |
| Property ID: | 30072 | Abbreviated Legal Description: | BRASH TAX 6 LOT 3 BLK 2 |
| Parcel Number: | 360728520218 | Agent Code: | |
| Type: | Real | | |
| Tax Area: | 1 - OL-140-F | Land Use Code | 11 |
| Open Space: | N | DFL | N |
| Historic Property: | N | Remodel Property: | N |
| Multi-Family Redevelopment: | N | | |
| Township: | 7 | Section: | 28 |
| Range: | 36 |
Location |
| Address: | 1328 DAKOTA ST WA 99362 | Mapsco: | |
| Neighborhood: | A Res | Map ID: | |
| Neighborhood CD: | 613011 |
Owner |
| Name: | SPENCER LEROY ESTATE OF | Owner ID: | 52293 |
| Mailing Address: | 87 HENRY RD APT 91 EASTSOUND, WA 98245-9011 | % Ownership: | 100.0000000000% |
| | | Exemptions: | |
Taxes and Assessment Details
Values
| (+) Improvement Homesite Value: | + | $0 | |
| (+) Improvement Non-Homesite Value: | + | $272,010 | |
| (+) Land Homesite Value: | + | $0 | |
| (+) Land Non-Homesite Value: | + | $70,000 | |
| (+) Curr Use (HS): | + | $0 | $0 |
| (+) Curr Use (NHS): | + | $0 | $0 |
| | | -------------------------- | |
| (=) Market Value: | = | $342,010 | |
| (–) Productivity Loss: | – | $0 | |
| | | -------------------------- | |
| (=) Subtotal: | = | $342,010 | |
| (+) Senior Appraised Value: | + | $0 | |
| (+) Non-Senior Appraised Value: | + | $342,010 | |
| | | -------------------------- | |
| (=) Total Appraised Value: | = | $342,010 | |
| (–) Senior Exemption Loss: | – | $0 | |
| (–) Exemption Loss: | – | $0 | |
| | | -------------------------- | |
| (=) Taxable Value: | = | $342,010 | |
Taxing Jurisdiction
| Owner: | SPENCER LEROY ESTATE OF | | |
| % Ownership: | 100.0000000000% | | |
| Total Value: | $342,010 | | |
| Tax Area: | 1 - OL-140-F |
| CERFD | CURRENT EXPENSE REFUND 010 | 0.0000000000 | $342,010 | $342,010 | $0.00 | | |
| CURREXP | CURRENT EXPENSE 010 | 1.0175366760 | $342,010 | $342,010 | $348.01 | | |
| HUMNSERV | HUMAN SERVICES 119 | 0.0250000000 | $342,010 | $342,010 | $8.55 | | |
| SLDREL | SOLDIERS RELIEF 121 | 0.0155990005 | $342,010 | $342,010 | $5.34 | | |
| EMERGSER | EMS 147 | 0.3792580840 | $342,010 | $342,010 | $129.71 | | |
| EMSRFD | EMS REFUND 147 | 0.0000000000 | $342,010 | $342,010 | $0.00 | | |
| PORTRFD | PORT REFUND 640 | 0.0000000000 | $342,010 | $342,010 | $0.00 | | |
| PORTWWGEN | PORT OF WW 640 | 0.2460186015 | $342,010 | $342,010 | $84.14 | | |
| SD140BOND | SD #140 BOND 764 | 0.8342371393 | $342,010 | $342,010 | $285.32 | | |
| SD140GEN | SD #140 GENERAL 760 | 2.0646500647 | $342,010 | $342,010 | $706.13 | | |
| ST2 | STATE SCHOOL PART 2 600 | 0.8131451643 | $342,010 | $342,010 | $278.10 | | |
| STATESCHL | STATE SCHOOL 600 | 1.5158548041 | $342,010 | $342,010 | $518.44 | | |
| STREFUND | STATE REFUND LEVY 603 | 0.0000000000 | $342,010 | $342,010 | $0.00 | | |
| CWWBOND | C OF WW BOND 643 | 0.2760494372 | $342,010 | $342,010 | $94.41 | | |
| CWWGEN | CITY OF WW 631 | 1.6100204973 | $342,010 | $342,010 | $550.64 | | |
| CWWRFD | CITY OF WALLA WALLA REFUND 631 | 0.0000000000 | $342,010 | $342,010 | $0.00 | | |
| | Total Tax Rate: | 8.7973694689 | | | | | |
| | | | | Taxes w/Current Exemptions: | $3,008.79 | | |
| | | | | Taxes w/o Exemptions: | $3,008.79 | | |
Improvement / Building
| Improvement #1: | RESIDENTIAL | State Code: | 11 | 1226.0 sqft | Value: | $272,010 |
| Exterior Wall: | PLYWOOD | Heating/Cooling: | FORCED AIR | | Number of Bathrooms: | 2 | Number of Bedrooms: | 3 | | Plumbing: | 10 | Roof Covering: | COMP SHINGLE |
|
| | Type | Description | Class CD | Sub Class CD | Year Built | Area |
| | MA | Main Area | 1 | 30 | 1956 | 1226.0 |
| | SI1 | SITE IMPROVEMENT | 1 | 30 | 1956 | 1.5 |
| | BASE | BASEMENT | 1 | 30 | 1956 | 1226.0 |
| | BPF | BASEMENT -PARTITIONED FINISH | 1 | 30 | 1956 | 1226.0 |
| | S1F | Single One Story Fireplace | 1 | 30 | 1956 | 1.0 |
| | SMP | SWIMMING POOL | 1 | 30 | 1956 | 1.0 |
| | RPC | OPEN PORCH W/ROOF , CEILED | 1 | 30 | 1956 | 174.0 |
| | ATG | Attached Garage | 1 | 30 | 1956 | 266.0 |
| | TOOL | TOOL SHED | 1 | 30 | 1956 | 56.0 |
Sketch
Property Image
Land
| 1 | RES 1 | Converted: Residential | 0.1680 | 7320.00 | 0.00 | 0.00 | 1.00 | $70,000 | $0 |
Roll Value History
| 2026 | N/A | N/A | N/A | N/A | N/A |
| 2025 | $434,080 | $80,520 | $0 | $514,600 | $514,600 |
| 2024 | $272,010 | $70,000 | $0 | $342,010 | $342,010 |
| 2023 | $272,010 | $70,000 | $0 | $342,010 | $342,010 |
| 2022 | $272,010 | $55,000 | $0 | $327,010 | $327,010 |
| 2021 | $187,590 | $55,000 | $0 | $242,590 | $242,590 |
| 2020 | $165,710 | $55,000 | $0 | $220,710 | $220,710 |
| 2019 | $165,710 | $55,000 | $0 | $220,710 | $220,710 |
| 2018 | $136,890 | $43,900 | $0 | $180,790 | $180,790 |
| 2017 | $105,300 | $43,900 | $0 | $149,200 | $149,200 |
| 2016 | $105,300 | $43,900 | $0 | $149,200 | $149,200 |
| 2015 | $105,300 | $43,900 | $0 | $149,200 | $149,200 |
| 2014 | $105,300 | $43,900 | $0 | $149,200 | $149,200 |
| 2013 | $105,300 | $43,900 | $0 | $149,200 | $149,200 |
| 2012 | $151,300 | $43,900 | $0 | $0 | $0 |
| 2011 | $151,300 | $43,900 | $0 | $0 | $0 |
| 2010 | $142,000 | $43,900 | $0 | $0 | $0 |
| 2009 | $162,600 | $43,900 | $0 | $0 | $0 |
| 2008 | $154,300 | $43,900 | $0 | $0 | $0 |
| 2007 | $100,700 | $22,000 | $0 | $0 | $0 |
Deed and Sales History
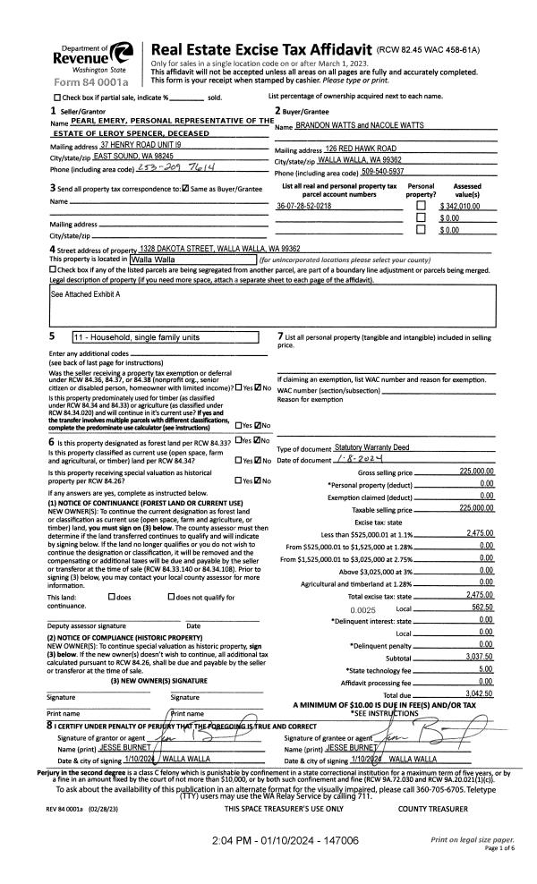
| 1 | 01/10/2024 | DPR | DEED OF PERSONAL REPRESENTATIVE | SPENCER LEROY ESTATE OF | WATTS BRANDON & NACOLE | | | $225,000.00 | 147006 | 2024-00149 |
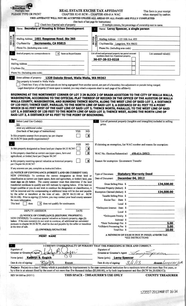
| 2 | 03/07/2013 | WARRANTY D | WARRANTY DEED | SECRETARY OF HOUSING & URBAN D | SPENCER, LEROY | | | $134,508.00 | 123557 | 2013-02129 |
| 3 | 08/29/2012 | WARRANTY D | WARRANTY DEED | BANK OF AMERICA | SECRETARY OF HOUSING & URBAN D | | | $198,969.00 | 122553 | 2012-07568 |
| 4 | 04/02/2012 | WARRANTY D | WARRANTY DEED | RECONTRUST COMPANY NA | BANK OF AMERICA | | | $198,969.00 | 121611 | 2012-02635 |
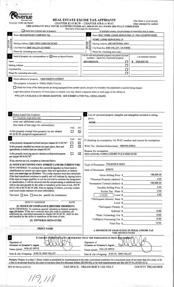
| 5 | 10/04/2010 | WARRANTY D | WARRANTY DEED | RECONTRUST COMPANY NA | GOVERNMENT NATIONAL MORTGAGE A | | | $198,969.00 | 119118 | 2010-07873 |
| 6 | 03/07/2008 | WARRANTY D | WARRANTY DEED | AKERS, SUSAN J | ORTIZ, VINSON M | | | $208,000.00 | 114638 | 2008-02158 |
| 7 | 11/12/2004 | WARRANTY D | WARRANTY DEED | APRIL, JAMES D & SANDRA L | AKERS, SUSAN J | | | $169,900.00 | 106182 | 2004-13043 |
| 8 | 01/27/1983 | WARRANTY D | WARRANTY DEED | | | | | $70,500.00 | 0 | 1368-300675 |
Payout Agreement
| No payout information available.. |