Property
Account |
| Property ID: | 30070 | Abbreviated Legal Description: | HARVEST MEADOWS ADDN LT 1 BLK 1 |
| Parcel Number: | 350601520101 | Agent Code: | |
| Type: | Real | | |
| Tax Area: | 75 - CP 250 | Land Use Code | 11 |
| Open Space: | N | DFL | N |
| Historic Property: | N | Remodel Property: | N |
| Multi-Family Redevelopment: | N | | |
| Township: | 6 | Section: | 1 |
| Range: | 35 |
Location |
| Address: | 801 SE HARVEST DR WA 99324 | Mapsco: | |
| Neighborhood: | G SFR Rural/City Inf | Map ID: | |
| Neighborhood CD: | 114012 |
Owner |
| Name: | IRONS KAREN T | Owner ID: | 64176 |
| Mailing Address: | CAROL V IRONS PO BOX 2349 WALLA WALLA, WA 99362 | % Ownership: | 100.0000000000% |
| | | Exemptions: | SNR/DSBL |
Taxes and Assessment Details
Property Tax Information as of
02/21/2026
Click on "Statement Details" to expand or collapse a tax statement.
* Please enter a valid date ** Please enter a valid date *
Statement Details |
| | TOTAL: | $0.00 | $0.00 | $0.00 | $0.00 | $0.00 | $0.00 |
|
| | $0.00 | $0.00 | $0.00 | $0.00 | $0.00 | $0.00 |
Values
| (+) Improvement Homesite Value: | + | $338,310 | |
| (+) Improvement Non-Homesite Value: | + | $0 | |
| (+) Land Homesite Value: | + | $75,000 | |
| (+) Land Non-Homesite Value: | + | $0 | |
| (+) Curr Use (HS): | + | $0 | $0 |
| (+) Curr Use (NHS): | + | $0 | $0 |
| | | -------------------------- | |
| (=) Market Value: | = | $413,310 | |
| (–) Productivity Loss: | – | $0 | |
| | | -------------------------- | |
| (=) Subtotal: | = | $413,310 | |
| (+) Senior Appraised Value: | + | $242,810 | |
| (+) Non-Senior Appraised Value: | + | $0 | |
| | | -------------------------- | |
| (=) Total Appraised Value: | = | $242,810 | |
| (–) Senior Exemption Loss: | – | $70,000 | |
| (–) Exemption Loss: | – | $0 | |
| | | -------------------------- | |
| (=) Taxable Value: | = | $172,810 | |
Taxing Jurisdiction
| Owner: | IRONS KAREN T | | |
| % Ownership: | 100.0000000000% | | |
| Total Value: | $413,310 | | |
| Tax Area: | 75 - CP 250 |
| CERFD | CURRENT EXPENSE REFUND 010 | 0.0000000000 | $413,310 | $172,810 | $0.00 | | |
| CURREXP | CURRENT EXPENSE 010 | 1.0175366760 | $413,310 | $172,810 | $175.84 | | |
| HUMNSERV | HUMAN SERVICES 119 | 0.0250000000 | $413,310 | $172,810 | $4.32 | | |
| SLDREL | SOLDIERS RELIEF 121 | 0.0155990005 | $413,310 | $172,810 | $2.70 | | |
| COLLPLBOND | C OF CP BOND 644 | 0.0000000000 | $413,310 | $0 | $0.00 | | |
| COLLPLGEN | CITY OF CP 632 | 1.4453819216 | $413,310 | $172,810 | $249.78 | | |
| EMERGSER | EMS 147 | 0.3792580840 | $413,310 | $172,810 | $65.54 | | |
| EMSRFD | EMS REFUND 147 | 0.0000000000 | $413,310 | $172,810 | $0.00 | | |
| RURALLIB | RURAL LIBRARY 623 | 0.3710609029 | $413,310 | $172,810 | $64.12 | | |
| PORTRFD | PORT REFUND 640 | 0.0000000000 | $413,310 | $172,810 | $0.00 | | |
| PORTWWGEN | PORT OF WW 640 | 0.2460186015 | $413,310 | $172,810 | $42.51 | | |
| SD250BOND | SD #250 BOND 773 | 0.0000000000 | $413,310 | $0 | $0.00 | | |
| SD250GEN | SD #250 GENERAL 770 | 0.0000000000 | $413,310 | $0 | $0.00 | | |
| ST2 | STATE SCHOOL PART 2 600 | 0.0000000000 | $413,310 | $0 | $0.00 | | |
| STATESCHL | STATE SCHOOL 600 | 1.5158548041 | $413,310 | $172,810 | $261.95 | | |
| STREFUND | STATE REFUND LEVY 603 | 0.0000000000 | $413,310 | $172,810 | $0.00 | | |
| | Total Tax Rate: | 5.0157099906 | | | | | |
| | | | | Taxes w/Current Exemptions: | $866.76 | | |
| | | | | Taxes w/o Exemptions: | $4,178.72 | | |
Improvement / Building
| Improvement #1: | RESIDENTIAL | State Code: | 11 | 1506.0 sqft | Value: | $338,310 |
| Exterior Wall: | HARDBOARD | Heating/Cooling: | WARM & COOLED AIR | | Number of Bathrooms: | 2 | Number of Bedrooms: | 3 | | Plumbing: | 10 | Roof Covering: | COMP SHINGLE |
|
| | Type | Description | Class CD | Sub Class CD | Year Built | Area |
| | MA | Main Area | 1 | 30 | 1999 | 1506.0 |
| | SI1 | SITE IMPROVEMENT | 1 | 30 | 1999 | 2.0 |
| | ATG | Attached Garage | 1 | 30 | 1999 | 400.0 |
| | RPC | OPEN PORCH W/ROOF , CEILED | 1 | 30 | 1999 | 118.0 |
Sketch
Property Image
Land
| 1 | RES 1 | Converted: Residential | 0.2509 | 10929.00 | 0.00 | 0.00 | 1.00 | $75,000 | $0 |
Roll Value History
| 2026 | N/A | N/A | N/A | N/A | N/A |
| 2025 | $270,640 | $135,000 | $0 | $405,640 | $172,810 |
| 2024 | $338,310 | $75,000 | $0 | $413,310 | $172,810 |
| 2023 | $338,310 | $75,000 | $0 | $413,310 | $172,810 |
| 2022 | $322,200 | $75,000 | $0 | $397,200 | $242,810 |
| 2021 | $201,370 | $75,000 | $0 | $276,370 | $242,810 |
| 2020 | $167,810 | $75,000 | $0 | $242,810 | $242,810 |
| 2019 | $177,810 | $65,000 | $0 | $242,810 | $242,810 |
| 2018 | $154,620 | $65,000 | $0 | $219,620 | $219,620 |
| 2017 | $140,560 | $65,000 | $0 | $205,560 | $205,560 |
| 2016 | $133,870 | $65,000 | $0 | $198,870 | $198,870 |
| 2015 | $133,870 | $65,000 | $0 | $198,870 | $198,870 |
| 2014 | $121,700 | $65,000 | $0 | $186,700 | $186,700 |
| 2013 | $121,700 | $65,000 | $0 | $186,700 | $186,700 |
| 2012 | $112,800 | $65,000 | $0 | $0 | $0 |
| 2011 | $122,200 | $65,000 | $0 | $0 | $0 |
| 2010 | $122,200 | $65,000 | $0 | $0 | $0 |
| 2009 | $143,000 | $65,000 | $0 | $0 | $0 |
| 2008 | $98,800 | $35,000 | $0 | $0 | $0 |
| 2007 | $98,800 | $35,000 | $0 | $0 | $0 |
Deed and Sales History
| 1 | 10/31/2018 | SWD | STATUTORY WARRANTY DEED | WICHER GORDON & SANDRA | IRONS KAREN T | | | $252,500.00 | 135839 | 2018-09029 |
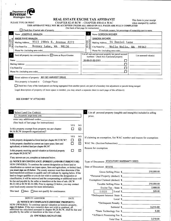
| 2 | 06/15/2015 | SWD | STATUTORY WARRANTY DEED | WHALEN JOSEPH E & ANGIE FAYE | WICHER GORDON & SANDRA | | | $210,000.00 | 128167 | 2015-05000 |
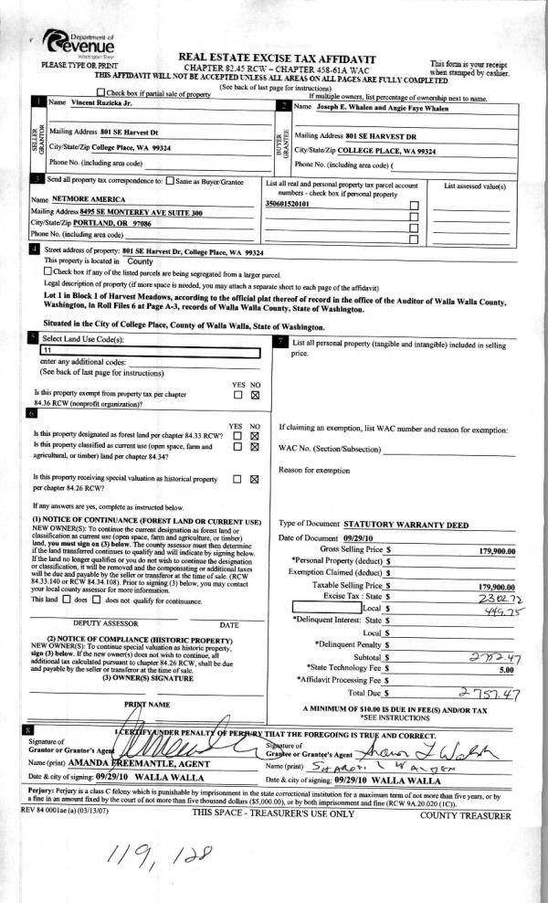
| 3 | 10/04/2010 | WARRANTY D | WARRANTY DEED | RUZICKA, VINCENT JR | WHALEN, JOSEPH E & ANGIE FAYE | | | $179,900.00 | 119128 | 2010-07963 |
| 4 | 02/12/2003 | WARRANTY D | WARRANTY DEED | DUNLAP, THOMAS E & KIRSTINE E | PRUDENTIAL RELOCATION, INC | | | $140,000.00 | 101383 | 2003-01941 |
| 5 | 02/12/2003 | WARRANTY D | WARRANTY DEED | PRUDENTIAL RELOCATION, INC | RUZICKA, VINCENT JR | | | $140,000.00 | 101384 | 2003-01942 |
| 6 | 06/03/1999 | WARRANTY D | WARRANTY DEED | | | | | $113,265.00 | 92887 | 2849-906703 |
Payout Agreement
| No payout information available.. |