Property
Account |
| Property ID: | 30062 | Abbreviated Legal Description: | N 204' OF NW4 OF BLK 1 CP#2, EXCEPTING E 215' OF NW4 BLK 1 CP#2 |
| Parcel Number: | 350736600115 | Agent Code: | |
| Type: | Real | | |
| Tax Area: | 75 - CP 250 | Land Use Code | 11 |
| Open Space: | N | DFL | N |
| Historic Property: | N | Remodel Property: | N |
| Multi-Family Redevelopment: | N | | |
| Township: | 7 | Section: | 36 |
| Range: | 35 |
Location |
| Address: | 606 SE 4TH ST WA 99324 | Mapsco: | |
| Neighborhood: | A SFR | Map ID: | |
| Neighborhood CD: | 113011 |
Owner |
| Name: | NIDEROST TARAH | Owner ID: | 69259 |
| Mailing Address: | MARIO BATALLA 606 SE 4TH ST COLLEGE PLACE, WA 99324 | % Ownership: | 100.0000000000% |
| | | Exemptions: | |
Taxes and Assessment Details
Property Tax Information as of
02/21/2026
Click on "Statement Details" to expand or collapse a tax statement.
* Please enter a valid date ** Please enter a valid date *
Statement Details |
| | TOTAL: | $0.00 | $0.00 | $0.00 | $0.00 | $0.00 | $0.00 |
|
| | $0.00 | $0.00 | $0.00 | $0.00 | $0.00 | $0.00 |
Values
| (+) Improvement Homesite Value: | + | $0 | |
| (+) Improvement Non-Homesite Value: | + | $269,350 | |
| (+) Land Homesite Value: | + | $0 | |
| (+) Land Non-Homesite Value: | + | $68,740 | |
| (+) Curr Use (HS): | + | $0 | $0 |
| (+) Curr Use (NHS): | + | $0 | $0 |
| | | -------------------------- | |
| (=) Market Value: | = | $338,090 | |
| (–) Productivity Loss: | – | $0 | |
| | | -------------------------- | |
| (=) Subtotal: | = | $338,090 | |
| (+) Senior Appraised Value: | + | $0 | |
| (+) Non-Senior Appraised Value: | + | $338,090 | |
| | | -------------------------- | |
| (=) Total Appraised Value: | = | $338,090 | |
| (–) Senior Exemption Loss: | – | $0 | |
| (–) Exemption Loss: | – | $0 | |
| | | -------------------------- | |
| (=) Taxable Value: | = | $338,090 | |
Taxing Jurisdiction
| Owner: | NIDEROST TARAH | | |
| % Ownership: | 100.0000000000% | | |
| Total Value: | $338,090 | | |
| Tax Area: | 75 - CP 250 |
| CERFD | CURRENT EXPENSE REFUND 010 | 0.0000000000 | $338,090 | $338,090 | $0.00 | | |
| CURREXP | CURRENT EXPENSE 010 | 1.0175366760 | $338,090 | $338,090 | $344.02 | | |
| HUMNSERV | HUMAN SERVICES 119 | 0.0250000000 | $338,090 | $338,090 | $8.45 | | |
| SLDREL | SOLDIERS RELIEF 121 | 0.0155990005 | $338,090 | $338,090 | $5.27 | | |
| COLLPLBOND | C OF CP BOND 644 | 0.4374241808 | $338,090 | $338,090 | $147.89 | | |
| COLLPLGEN | CITY OF CP 632 | 1.4453819216 | $338,090 | $338,090 | $488.67 | | |
| EMERGSER | EMS 147 | 0.3792580840 | $338,090 | $338,090 | $128.22 | | |
| EMSRFD | EMS REFUND 147 | 0.0000000000 | $338,090 | $338,090 | $0.00 | | |
| RURALLIB | RURAL LIBRARY 623 | 0.3710609029 | $338,090 | $338,090 | $125.45 | | |
| PORTRFD | PORT REFUND 640 | 0.0000000000 | $338,090 | $338,090 | $0.00 | | |
| PORTWWGEN | PORT OF WW 640 | 0.2460186015 | $338,090 | $338,090 | $83.18 | | |
| SD250BOND | SD #250 BOND 773 | 1.4560608159 | $338,090 | $338,090 | $492.28 | | |
| SD250GEN | SD #250 GENERAL 770 | 2.3880724087 | $338,090 | $338,090 | $807.38 | | |
| ST2 | STATE SCHOOL PART 2 600 | 0.8131451643 | $338,090 | $338,090 | $274.92 | | |
| STATESCHL | STATE SCHOOL 600 | 1.5158548041 | $338,090 | $338,090 | $512.50 | | |
| STREFUND | STATE REFUND LEVY 603 | 0.0000000000 | $338,090 | $338,090 | $0.00 | | |
| | Total Tax Rate: | 10.1104125603 | | | | | |
| | | | | Taxes w/Current Exemptions: | $3,418.23 | | |
| | | | | Taxes w/o Exemptions: | $3,418.23 | | |
Improvement / Building
| Improvement #1: | RESIDENTIAL | State Code: | 11 | 1922.0 sqft | Value: | $269,350 |
| Exterior Wall: | SIDING | Heating/Cooling: | WARM & COOLED AIR | | Number of Bathrooms: | 3 | Number of Bedrooms: | 3 | | Plumbing: | 14 | Roof Covering: | COMP SHINGLE |
|
| | Type | Description | Class CD | Sub Class CD | Year Built | Area |
| | MA | Main Area | 4 | 30 | 1920 | 1922.0 |
| | UPFL | Upper Floor (included in main area) | 4 | 30 | 1920 | 730.0 |
| | SI1 | SITE IMPROVEMENT | 4 | 30 | 1920 | 1.5 |
| | BASE | BASEMENT | 4 | 30 | 1920 | 946.0 |
| | BPF | BASEMENT -PARTITIONED FINISH | 4 | 30 | 1920 | 564.0 |
| | DTG | Detached Garage | 4 | 30 | 1920 | 400.0 |
| | RPO | OPEN PORCH W/ROOF | 4 | 30 | 1920 | 28.0 |
| | WDR | WOOD DECK W/ROOF | 4 | 30 | 1920 | 105.0 |
| | TOOL | TOOL SHED | 4 | 30 | 1920 | 400.0 |
Sketch
Property Image
Land
| 1 | RES 1 | Converted: Residential | 0.5386 | 23460.00 | 0.00 | 0.00 | 1.00 | $68,740 | $0 |
Roll Value History
| 2026 | N/A | N/A | N/A | N/A | N/A |
| 2025 | $269,350 | $106,740 | $0 | $376,090 | $376,090 |
| 2024 | $269,350 | $68,740 | $0 | $338,090 | $338,090 |
| 2023 | $269,350 | $68,740 | $0 | $338,090 | $338,090 |
| 2022 | $224,450 | $68,740 | $0 | $293,190 | $293,190 |
| 2021 | $213,770 | $68,740 | $0 | $282,510 | $282,510 |
| 2020 | $152,690 | $68,740 | $0 | $221,430 | $221,430 |
| 2019 | $162,830 | $58,600 | $0 | $221,430 | $221,430 |
| 2018 | $125,260 | $58,600 | $0 | $183,860 | $183,860 |
| 2017 | $119,290 | $58,600 | $0 | $177,890 | $177,890 |
| 2016 | $108,450 | $58,600 | $0 | $167,050 | $167,050 |
| 2015 | $94,300 | $58,600 | $0 | $152,900 | $152,900 |
| 2014 | $94,300 | $58,600 | $0 | $152,900 | $152,900 |
| 2013 | $94,300 | $58,600 | $0 | $152,900 | $152,900 |
| 2012 | $65,600 | $58,600 | $0 | $0 | $0 |
| 2011 | $132,000 | $58,600 | $0 | $0 | $0 |
| 2010 | $114,700 | $58,600 | $0 | $0 | $0 |
| 2009 | $133,900 | $58,600 | $0 | $0 | $0 |
| 2008 | $106,800 | $36,700 | $0 | $0 | $0 |
| 2007 | $106,800 | $36,700 | $0 | $0 | $0 |
Deed and Sales History
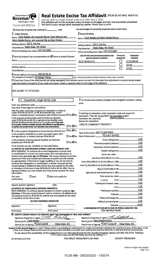
| 1 | 09/23/2025 | QCD | QUIT CLAIM DEED | NIDEROST TARAH | BATALLA TARAH & MARIO BATALLA MUNOZ | | | | 150074 | 2025-05780 |
| 2 | 04/23/2021 | SWD | STATUTORY WARRANTY DEED | ROHDE BRANDON E | NIDEROST TARAH | | | $295,000.00 | 141398 | 2021-04782 |
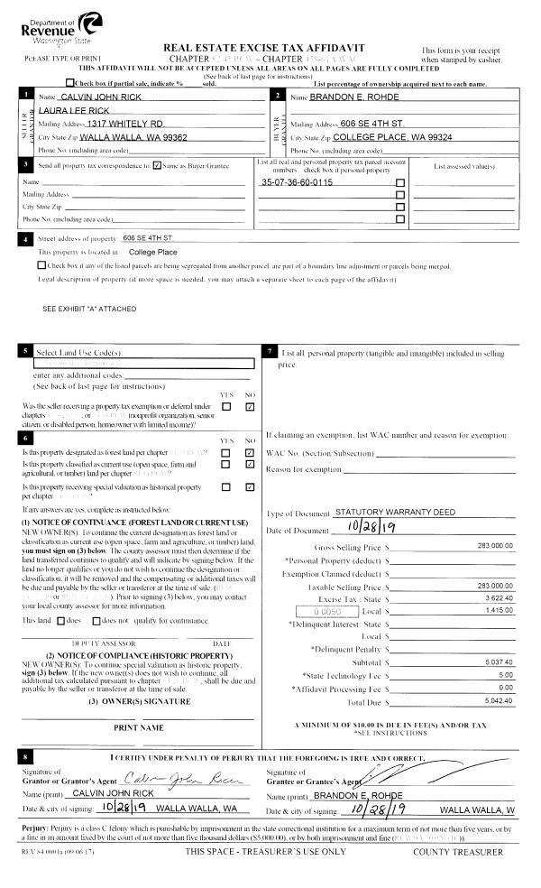
| 3 | 10/29/2019 | SWD | STATUTORY WARRANTY DEED | RICK CALVIN J & LAURA L | ROHDE BRANDON E | | | $283,000.00 | 137978 | 2019-08793 |
| 4 | 10/01/2010 | WARRANTY D | WARRANTY DEED | BANK OF AMERICA NA | RICK, CALVIN J & LAURA L | | | $111,000.00 | 119114 | 2010-07814 |
| 5 | 08/03/2009 | WARRANTY D | WARRANTY DEED | REGIONAL TRUSTEE SERVICES CORP | BANK OF AMERICA NA | | | $47,500.00 | 117110 | 2009-07857 |
| 6 | 05/29/2003 | WARRANTY D | WARRANTY DEED | HUMMEL, MARGARET D | ROOD, JIMMY W & CAROL A | | | $143,000.00 | 102195 | 2003-07898 |
| 7 | 11/30/1999 | WARRANTY D | WARRANTY DEED | | | | | $119,900.00 | 94090 | 2929-913492 |
Payout Agreement
| No payout information available.. |