Property
Account |
| Property ID: | 30045 | Abbreviated Legal Description: | CAINS LOT 4 BLK 30 |
| Parcel Number: | 360720573004 | Agent Code: | |
| Type: | Real | | |
| Tax Area: | 1 - OL-140-F | Land Use Code | 11 |
| Open Space: | N | DFL | N |
| Historic Property: | N | Remodel Property: | N |
| Multi-Family Redevelopment: | N | | |
| Township: | 7 | Section: | 20 |
| Range: | 36 |
Location |
| Address: | 410 E PINE ST WA 99362 | Mapsco: | |
| Neighborhood: | F SFR | Map ID: | |
| Neighborhood CD: | 512011 |
Owner |
| Name: | SOLIS ALEJANDRO | Owner ID: | 63429 |
| Mailing Address: | REINALDA JURADO SANCHEZ 410 E PINE ST WALLA WALLA, WA 99362 | % Ownership: | 100.0000000000% |
| | | Exemptions: | |
Taxes and Assessment Details
Property Tax Information as of
02/21/2026
Click on "Statement Details" to expand or collapse a tax statement.
* Please enter a valid date ** Please enter a valid date *
Statement Details |
| | TOTAL: | $0.00 | $0.00 | $0.00 | $0.00 | $0.00 | $0.00 |
|
| | $0.00 | $0.00 | $0.00 | $0.00 | $0.00 | $0.00 |
Values
| (+) Improvement Homesite Value: | + | $0 | |
| (+) Improvement Non-Homesite Value: | + | $205,230 | |
| (+) Land Homesite Value: | + | $0 | |
| (+) Land Non-Homesite Value: | + | $37,800 | |
| (+) Curr Use (HS): | + | $0 | $0 |
| (+) Curr Use (NHS): | + | $0 | $0 |
| | | -------------------------- | |
| (=) Market Value: | = | $243,030 | |
| (–) Productivity Loss: | – | $0 | |
| | | -------------------------- | |
| (=) Subtotal: | = | $243,030 | |
| (+) Senior Appraised Value: | + | $0 | |
| (+) Non-Senior Appraised Value: | + | $243,030 | |
| | | -------------------------- | |
| (=) Total Appraised Value: | = | $243,030 | |
| (–) Senior Exemption Loss: | – | $0 | |
| (–) Exemption Loss: | – | $0 | |
| | | -------------------------- | |
| (=) Taxable Value: | = | $243,030 | |
Taxing Jurisdiction
| Owner: | SOLIS ALEJANDRO | | |
| % Ownership: | 100.0000000000% | | |
| Total Value: | $243,030 | | |
| Tax Area: | 1 - OL-140-F |
| CERFD | CURRENT EXPENSE REFUND 010 | 0.0000000000 | $243,030 | $243,030 | $0.00 | | |
| CURREXP | CURRENT EXPENSE 010 | 1.0175366760 | $243,030 | $243,030 | $247.29 | | |
| HUMNSERV | HUMAN SERVICES 119 | 0.0250000000 | $243,030 | $243,030 | $6.08 | | |
| SLDREL | SOLDIERS RELIEF 121 | 0.0155990005 | $243,030 | $243,030 | $3.79 | | |
| EMERGSER | EMS 147 | 0.3792580840 | $243,030 | $243,030 | $92.17 | | |
| EMSRFD | EMS REFUND 147 | 0.0000000000 | $243,030 | $243,030 | $0.00 | | |
| PORTRFD | PORT REFUND 640 | 0.0000000000 | $243,030 | $243,030 | $0.00 | | |
| PORTWWGEN | PORT OF WW 640 | 0.2460186015 | $243,030 | $243,030 | $59.79 | | |
| SD140BOND | SD #140 BOND 764 | 0.8342371393 | $243,030 | $243,030 | $202.74 | | |
| SD140GEN | SD #140 GENERAL 760 | 2.0646500647 | $243,030 | $243,030 | $501.77 | | |
| ST2 | STATE SCHOOL PART 2 600 | 0.8131451643 | $243,030 | $243,030 | $197.62 | | |
| STATESCHL | STATE SCHOOL 600 | 1.5158548041 | $243,030 | $243,030 | $368.40 | | |
| STREFUND | STATE REFUND LEVY 603 | 0.0000000000 | $243,030 | $243,030 | $0.00 | | |
| CWWBOND | C OF WW BOND 643 | 0.2760494372 | $243,030 | $243,030 | $67.09 | | |
| CWWGEN | CITY OF WW 631 | 1.6100204973 | $243,030 | $243,030 | $391.28 | | |
| CWWRFD | CITY OF WALLA WALLA REFUND 631 | 0.0000000000 | $243,030 | $243,030 | $0.00 | | |
| | Total Tax Rate: | 8.7973694689 | | | | | |
| | | | | Taxes w/Current Exemptions: | $2,138.02 | | |
| | | | | Taxes w/o Exemptions: | $2,138.02 | | |
Improvement / Building
| Improvement #1: | RESIDENTIAL | State Code: | 11 | 965.0 sqft | Value: | $205,230 |
| Exterior Wall: | SIDING | Heating/Cooling: | HEAT PUMP | | Number of Bathrooms: | 1 | Number of Bedrooms: | 2 | | Plumbing: | 6 | Roof Covering: | COMP SHINGLE |
|
| | Type | Description | Class CD | Sub Class CD | Year Built | Area |
| | MA | Main Area | 1 | 30 | 1910 | 965.0 |
| | SI1 | SITE IMPROVEMENT | 1 | 30 | 1910 | 1.0 |
| | BASE | BASEMENT | 1 | 30 | 1910 | 860.0 |
| | BPF | BASEMENT -PARTITIONED FINISH | 1 | 30 | 1910 | 240.0 |
| | DTG | Detached Garage | 1 | 30 | 1910 | 400.0 |
| | RPS | PORCH W/STEPS,ROOF | 1 | 30 | 1910 | 25.0 |
| | SWP | Solid Wall Porch | 1 | 30 | 1910 | 72.0 |
Sketch
Property Image
Land
| 1 | RES 1 | Converted: Residential | 0.1653 | 7200.00 | 0.00 | 0.00 | 1.00 | $37,800 | $0 |
Roll Value History
| 2026 | N/A | N/A | N/A | N/A | N/A |
| 2025 | $238,380 | $64,800 | $0 | $303,180 | $303,180 |
| 2024 | $190,700 | $64,800 | $0 | $255,500 | $255,500 |
| 2023 | $205,230 | $37,800 | $0 | $243,030 | $243,030 |
| 2022 | $171,020 | $37,800 | $0 | $208,820 | $208,820 |
| 2021 | $122,160 | $37,800 | $0 | $159,960 | $159,960 |
| 2020 | $101,800 | $37,800 | $0 | $139,600 | $139,600 |
| 2019 | $101,800 | $37,800 | $0 | $139,600 | $139,600 |
| 2018 | $101,800 | $37,800 | $0 | $139,600 | $139,600 |
| 2017 | $100,330 | $21,600 | $0 | $121,930 | $121,930 |
| 2016 | $100,330 | $21,600 | $0 | $121,930 | $121,930 |
| 2015 | $95,550 | $21,600 | $0 | $117,150 | $117,150 |
| 2014 | $91,000 | $21,600 | $0 | $112,600 | $112,600 |
| 2013 | $91,000 | $21,600 | $0 | $112,600 | $112,600 |
| 2012 | $91,000 | $21,600 | $0 | $0 | $0 |
| 2011 | $103,500 | $21,600 | $0 | $0 | $0 |
| 2010 | $103,500 | $21,600 | $0 | $0 | $0 |
| 2009 | $117,400 | $21,600 | $0 | $0 | $0 |
| 2008 | $91,400 | $21,600 | $0 | $0 | $0 |
| 2007 | $91,400 | $21,600 | $0 | $0 | $0 |
Deed and Sales History
| 1 | 07/03/2018 | SWD | STATUTORY WARRANTY DEED | GORDON MICHAEL W | SOLIS ALEJANDRO | | | $140,000.00 | 135060 | 2018-05377 |
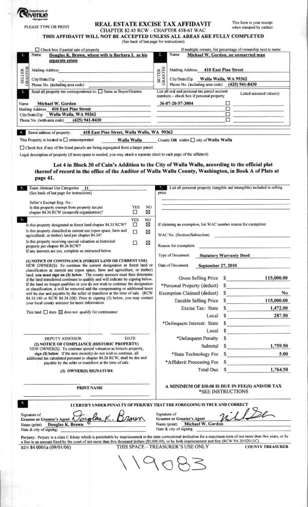
| 2 | 09/28/2010 | WARRANTY D | WARRANTY DEED | BROWN, DOUGLAS K & BARBARA I | GORDON, MICHAEL W | | | $115,000.00 | 119083 | 2010-07697 |
| 3 | 08/14/1997 | WARRANTY D | WARRANTY DEED | | | | | $67,500.00 | 88720 | 2559-707512 |
Payout Agreement
| No payout information available.. |