Property
Account |
| Property ID: | 30036 | Abbreviated Legal Description: | GREEN PARK LOTS 1 & 2 BLK 9 LESS W 18' LOT 3 BLK 9 |
| Parcel Number: | 360720510913 | Agent Code: | |
| Type: | Real | | |
| Tax Area: | 1 - OL-140-F | Land Use Code | 11 |
| Open Space: | N | DFL | N |
| Historic Property: | N | Remodel Property: | N |
| Multi-Family Redevelopment: | N | | |
| Township: | 7 | Section: | 20 |
| Range: | 36 |
Location |
| Address: | 922 BONSELLA ST WA 99362 | Mapsco: | |
| Neighborhood: | G Superior SFR | Map ID: | |
| Neighborhood CD: | 514211 |
Owner |
| Name: | TWIN PROPERTY INVESTMENTS LLC | Owner ID: | 70801 |
| Mailing Address: | 1004 RESER RD WALLA WALLA, WA 99362 | % Ownership: | 100.0000000000% |
| | | Exemptions: | |
Taxes and Assessment Details
Values
| (+) Improvement Homesite Value: | + | $0 | |
| (+) Improvement Non-Homesite Value: | + | $912,180 | |
| (+) Land Homesite Value: | + | $0 | |
| (+) Land Non-Homesite Value: | + | $77,040 | |
| (+) Curr Use (HS): | + | $0 | $0 |
| (+) Curr Use (NHS): | + | $0 | $0 |
| | | -------------------------- | |
| (=) Market Value: | = | $989,220 | |
| (–) Productivity Loss: | – | $0 | |
| | | -------------------------- | |
| (=) Subtotal: | = | $989,220 | |
| (+) Senior Appraised Value: | + | $0 | |
| (+) Non-Senior Appraised Value: | + | $989,220 | |
| | | -------------------------- | |
| (=) Total Appraised Value: | = | $989,220 | |
| (–) Senior Exemption Loss: | – | $0 | |
| (–) Exemption Loss: | – | $0 | |
| | | -------------------------- | |
| (=) Taxable Value: | = | $989,220 | |
Taxing Jurisdiction
| Owner: | TWIN PROPERTY INVESTMENTS LLC | | |
| % Ownership: | 100.0000000000% | | |
| Total Value: | $989,220 | | |
| Tax Area: | 1 - OL-140-F |
| CERFD | CURRENT EXPENSE REFUND 010 | 0.0000000000 | $989,220 | $989,220 | $0.00 | | |
| CURREXP | CURRENT EXPENSE 010 | 1.0175366760 | $989,220 | $989,220 | $1,006.57 | | |
| HUMNSERV | HUMAN SERVICES 119 | 0.0250000000 | $989,220 | $989,220 | $24.73 | | |
| SLDREL | SOLDIERS RELIEF 121 | 0.0155990005 | $989,220 | $989,220 | $15.43 | | |
| EMERGSER | EMS 147 | 0.3792580840 | $989,220 | $989,220 | $375.17 | | |
| EMSRFD | EMS REFUND 147 | 0.0000000000 | $989,220 | $989,220 | $0.00 | | |
| PORTRFD | PORT REFUND 640 | 0.0000000000 | $989,220 | $989,220 | $0.00 | | |
| PORTWWGEN | PORT OF WW 640 | 0.2460186015 | $989,220 | $989,220 | $243.37 | | |
| SD140BOND | SD #140 BOND 764 | 0.8342371393 | $989,220 | $989,220 | $825.24 | | |
| SD140GEN | SD #140 GENERAL 760 | 2.0646500647 | $989,220 | $989,220 | $2,042.39 | | |
| ST2 | STATE SCHOOL PART 2 600 | 0.8131451643 | $989,220 | $989,220 | $804.38 | | |
| STATESCHL | STATE SCHOOL 600 | 1.5158548041 | $989,220 | $989,220 | $1,499.51 | | |
| STREFUND | STATE REFUND LEVY 603 | 0.0000000000 | $989,220 | $989,220 | $0.00 | | |
| CWWBOND | C OF WW BOND 643 | 0.2760494372 | $989,220 | $989,220 | $273.07 | | |
| CWWGEN | CITY OF WW 631 | 1.6100204973 | $989,220 | $989,220 | $1,592.66 | | |
| CWWRFD | CITY OF WALLA WALLA REFUND 631 | 0.0000000000 | $989,220 | $989,220 | $0.00 | | |
| | Total Tax Rate: | 8.7973694689 | | | | | |
| | | | | Taxes w/Current Exemptions: | $8,702.52 | | |
| | | | | Taxes w/o Exemptions: | $8,702.52 | | |
Improvement / Building
| Improvement #1: | RESIDENTIAL | State Code: | 11 | 3842.0 sqft | Value: | $912,180 |
| Exterior Wall: | STUCCO | Heating/Cooling: | HEAT PUMP | | Number of Bathrooms: | 6 | Number of Bedrooms: | 5 | | Plumbing: | 21 | Roof Covering: | COMP SHINGLE |
|
| | Type | Description | Class CD | Sub Class CD | Year Built | Area |
| | MA | Main Area | 2 | 60 | 1909 | 3842.0 |
| | UPFL | Upper Floor (included in main area) | 2 | 60 | 1909 | 1921.0 |
| | SI1 | SITE IMPROVEMENT | 2 | 60 | 1909 | 6.5 |
| | BASE | BASEMENT | 2 | 60 | 1909 | 1921.0 |
| | S2F | Single 2S Fireplace | 2 | 60 | 1909 | 1.0 |
| | DTG | Detached Garage | 2 | 60 | 1909 | 576.0 |
| | WDR | WOOD DECK W/ROOF | 2 | 60 | 1909 | 480.0 |
| | RCD | WOOD DECK W/ROOF, CEILED | 2 | 60 | 1909 | 838.0 |
| | GUH | GUEST HOUSE | 2 | 60 | 1909 | 666.0 |
| | FBAT | FULL BATH | 2 | 60 | 1909 | 1.0 |
| | FIXT | AVERAGE FIXTURE | 2 | 60 | 1909 | 1.0 |
Sketch
Property Image
Land
| 1 | RES 1 | Converted: Residential | 0.4132 | 18000.00 | 0.00 | 0.00 | 1.00 | $77,040 | $0 |
Roll Value History
| 2026 | N/A | N/A | N/A | N/A | N/A |
| 2025 | $930,250 | $137,160 | $0 | $1,067,410 | $1,067,410 |
| 2024 | $861,340 | $137,160 | $0 | $998,500 | $998,500 |
| 2023 | $912,180 | $77,040 | $0 | $989,220 | $989,220 |
| 2022 | $912,180 | $77,040 | $0 | $989,220 | $989,220 |
| 2021 | $760,150 | $77,040 | $0 | $837,190 | $837,190 |
| 2020 | $633,460 | $77,040 | $0 | $710,500 | $710,500 |
| 2019 | $633,460 | $77,040 | $0 | $710,500 | $710,500 |
| 2018 | $633,460 | $77,040 | $0 | $710,500 | $710,500 |
| 2017 | $622,800 | $49,800 | $0 | $672,600 | $672,600 |
| 2016 | $622,800 | $49,800 | $0 | $672,600 | $672,600 |
| 2015 | $622,800 | $49,800 | $0 | $672,600 | $672,600 |
| 2014 | $622,800 | $49,800 | $0 | $672,600 | $672,600 |
| 2013 | $622,800 | $49,800 | $0 | $672,600 | $672,600 |
| 2012 | $613,500 | $49,800 | $0 | $0 | $0 |
| 2011 | $730,600 | $49,800 | $0 | $0 | $0 |
| 2010 | $808,500 | $49,800 | $0 | $0 | $0 |
| 2009 | $858,400 | $49,800 | $0 | $0 | $0 |
| 2008 | $603,600 | $49,800 | $0 | $0 | $0 |
| 2007 | $603,600 | $49,800 | $0 | $0 | $0 |
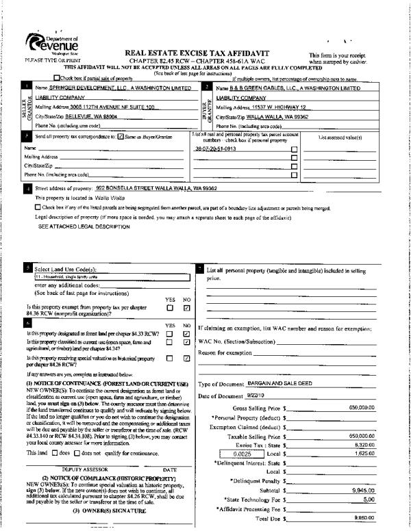
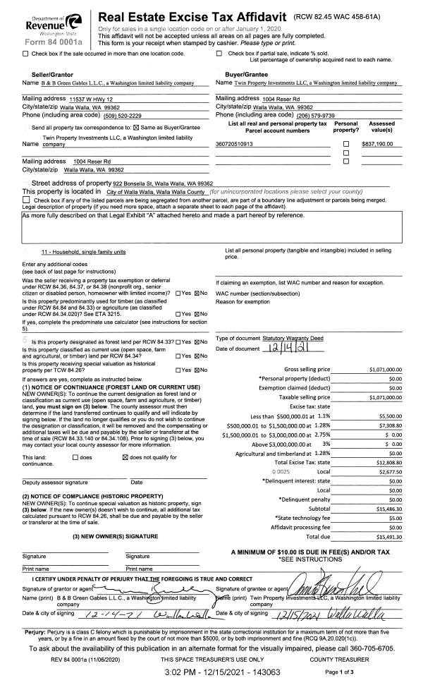
Deed and Sales History
| 1 | 12/15/2021 | SWD | STATUTORY WARRANTY DEED | B & B GREEN GABLES LLC | TWIN PROPERTY INVESTMENTS LLC | | | $1,071,000.00 | 143063 | 2021-14715 |
| 2 | 09/22/2010 | WARRANTY D | WARRANTY DEED | SPRINGER DEVELOPMENT LLC | B & B GREEN GABLES LLC | | | $650,000.00 | 119045 | 2010-07508 |
| 3 | 08/27/2010 | WARRANTY D | WARRANTY DEED | MUSARD, ALBERT E | SPRINGER DEVELOPMENT LLC | | | $551,841.00 | 118934 | 2010-06672 |
| 4 | 11/09/2007 | WARRANTY D | WARRANTY DEED | BUCHAN, JAMES R & MARGARET L | MUSARD, ALBERT E | | | $940,000.00 | 114062 | 2007-13038 |
| 5 | 08/27/1990 | WARRANTY D | WARRANTY DEED | | | | | $137,000.00 | 0 | 1849-005898 |
Payout Agreement
| No payout information available.. |