Property
Account |
| Property ID: | 30026 | Abbreviated Legal Description: | MTN VIEW LOT 12 BLK 6 |
| Parcel Number: | 360728850612 | Agent Code: | |
| Type: | Real | | |
| Tax Area: | 1 - OL-140-F | Land Use Code | 11 |
| Open Space: | N | DFL | N |
| Historic Property: | N | Remodel Property: | N |
| Multi-Family Redevelopment: | N | | |
| Township: | 7 | Section: | 28 |
| Range: | 36 |
Location |
| Address: | 529 LIBERTY ST WA 99362 | Mapsco: | |
| Neighborhood: | A Res | Map ID: | |
| Neighborhood CD: | 613011 |
Owner |
| Name: | BOECKMAN MATTHEW & REBECAH | Owner ID: | 72864 |
| Mailing Address: | 529 LIBERTY ST WALLA WALA, WA 99362 | % Ownership: | 100.0000000000% |
| | | Exemptions: | |
Taxes and Assessment Details
Values
| (+) Improvement Homesite Value: | + | $0 | |
| (+) Improvement Non-Homesite Value: | + | $229,940 | |
| (+) Land Homesite Value: | + | $0 | |
| (+) Land Non-Homesite Value: | + | $51,750 | |
| (+) Curr Use (HS): | + | $0 | $0 |
| (+) Curr Use (NHS): | + | $0 | $0 |
| | | -------------------------- | |
| (=) Market Value: | = | $281,690 | |
| (–) Productivity Loss: | – | $0 | |
| | | -------------------------- | |
| (=) Subtotal: | = | $281,690 | |
| (+) Senior Appraised Value: | + | $0 | |
| (+) Non-Senior Appraised Value: | + | $281,690 | |
| | | -------------------------- | |
| (=) Total Appraised Value: | = | $281,690 | |
| (–) Senior Exemption Loss: | – | $0 | |
| (–) Exemption Loss: | – | $0 | |
| | | -------------------------- | |
| (=) Taxable Value: | = | $281,690 | |
Taxing Jurisdiction
| Owner: | BOECKMAN MATTHEW & REBECAH | | |
| % Ownership: | 100.0000000000% | | |
| Total Value: | $281,690 | | |
| Tax Area: | 1 - OL-140-F |
| CERFD | CURRENT EXPENSE REFUND 010 | 0.0000000000 | $281,690 | $281,690 | $0.00 | | |
| CURREXP | CURRENT EXPENSE 010 | 1.0175366760 | $281,690 | $281,690 | $286.63 | | |
| HUMNSERV | HUMAN SERVICES 119 | 0.0250000000 | $281,690 | $281,690 | $7.04 | | |
| SLDREL | SOLDIERS RELIEF 121 | 0.0155990005 | $281,690 | $281,690 | $4.39 | | |
| EMERGSER | EMS 147 | 0.3792580840 | $281,690 | $281,690 | $106.83 | | |
| EMSRFD | EMS REFUND 147 | 0.0000000000 | $281,690 | $281,690 | $0.00 | | |
| PORTRFD | PORT REFUND 640 | 0.0000000000 | $281,690 | $281,690 | $0.00 | | |
| PORTWWGEN | PORT OF WW 640 | 0.2460186015 | $281,690 | $281,690 | $69.30 | | |
| SD140BOND | SD #140 BOND 764 | 0.8342371393 | $281,690 | $281,690 | $235.00 | | |
| SD140GEN | SD #140 GENERAL 760 | 2.0646500647 | $281,690 | $281,690 | $581.59 | | |
| ST2 | STATE SCHOOL PART 2 600 | 0.8131451643 | $281,690 | $281,690 | $229.05 | | |
| STATESCHL | STATE SCHOOL 600 | 1.5158548041 | $281,690 | $281,690 | $427.00 | | |
| STREFUND | STATE REFUND LEVY 603 | 0.0000000000 | $281,690 | $281,690 | $0.00 | | |
| CWWBOND | C OF WW BOND 643 | 0.2760494372 | $281,690 | $281,690 | $77.76 | | |
| CWWGEN | CITY OF WW 631 | 1.6100204973 | $281,690 | $281,690 | $453.53 | | |
| CWWRFD | CITY OF WALLA WALLA REFUND 631 | 0.0000000000 | $281,690 | $281,690 | $0.00 | | |
| | Total Tax Rate: | 8.7973694689 | | | | | |
| | | | | Taxes w/Current Exemptions: | $2,478.12 | | |
| | | | | Taxes w/o Exemptions: | $2,478.12 | | |
Improvement / Building
| Improvement #1: | RESIDENTIAL | State Code: | 11 | 1092.0 sqft | Value: | $229,940 |
| Exterior Wall: | PLYWOOD | Heating/Cooling: | BASEBOARD ELECTRIC | | Number of Bathrooms: | 1 | Number of Bedrooms: | 2 | | Plumbing: | 6 | Roof Covering: | COMP SHINGLE |
|
| | Type | Description | Class CD | Sub Class CD | Year Built | Area |
| | MA | Main Area | 1 | 30 | 1960 | 1092.0 |
| | SI1 | SITE IMPROVEMENT | 1 | 30 | 1960 | 2.0 |
| | DTG | Detached Garage | 1 | 30 | 1960 | 816.0 |
| | RPO | OPEN PORCH W/ROOF | 1 | 30 | 1960 | 30.0 |
| | S1F | Single One Story Fireplace | 1 | 30 | 1960 | 1.0 |
| | CPC | COVERED CARPORT/PATIO | 1 | 30 | 1960 | 336.0 |
Sketch
Property Image
Land
| 1 | RES 1 | Converted: Residential | 0.1320 | 5750.00 | 0.00 | 0.00 | 1.00 | $51,750 | $0 |
Roll Value History
| 2026 | N/A | N/A | N/A | N/A | N/A |
| 2025 | $230,710 | $63,250 | $0 | $293,960 | $293,960 |
| 2024 | $229,940 | $51,750 | $0 | $281,690 | $281,690 |
| 2023 | $229,940 | $51,750 | $0 | $281,690 | $281,690 |
| 2022 | $218,990 | $41,690 | $0 | $260,680 | $260,680 |
| 2021 | $182,490 | $41,690 | $0 | $224,180 | $224,180 |
| 2020 | $135,180 | $41,690 | $0 | $176,870 | $176,870 |
| 2019 | $135,180 | $41,690 | $0 | $176,870 | $176,870 |
| 2018 | $125,600 | $34,500 | $0 | $160,100 | $160,100 |
| 2017 | $114,180 | $34,500 | $0 | $148,680 | $148,680 |
| 2016 | $103,800 | $34,500 | $0 | $138,300 | $138,300 |
| 2015 | $103,800 | $34,500 | $0 | $138,300 | $138,300 |
| 2014 | $103,800 | $34,500 | $0 | $138,300 | $138,300 |
| 2013 | $103,800 | $34,500 | $0 | $138,300 | $138,300 |
| 2012 | $103,800 | $34,500 | $0 | $0 | $0 |
| 2011 | $103,800 | $34,500 | $0 | $0 | $0 |
| 2010 | $92,400 | $34,500 | $0 | $0 | $0 |
| 2009 | $106,500 | $34,500 | $0 | $0 | $0 |
| 2008 | $106,500 | $34,500 | $0 | $0 | $0 |
| 2007 | $69,900 | $17,300 | $0 | $0 | $0 |
Deed and Sales History
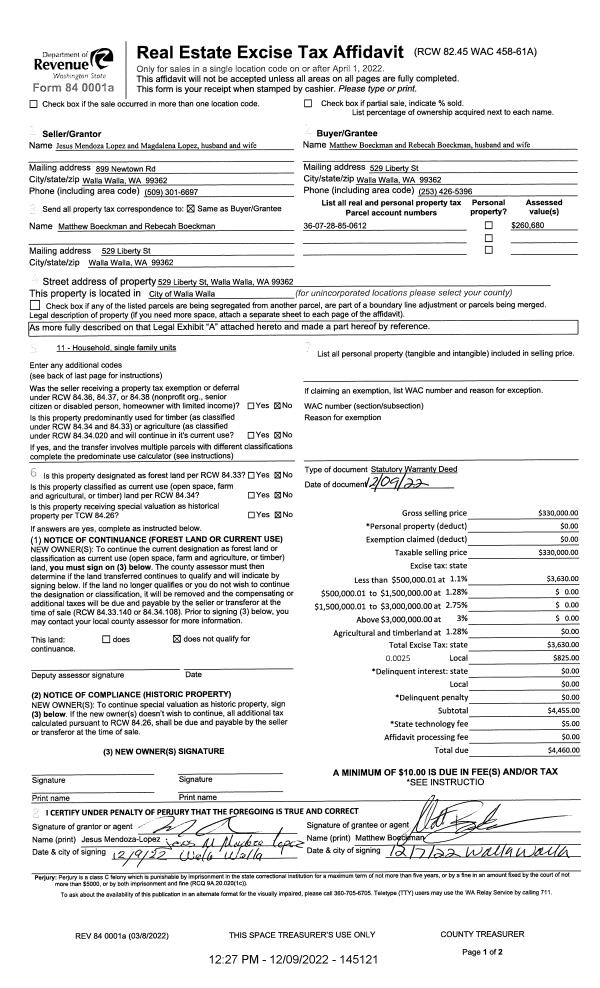
| 1 | 12/09/2022 | SWD | STATUTORY WARRANTY DEED | LOPEZ JESUS MENDOZA & MAGDALENA | BOECKMAN MATTHEW & REBECAH | | | $330,000.00 | 145121 | 2022-09603 |
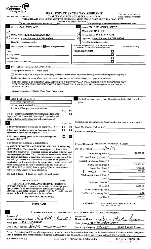
| 2 | 08/16/2019 | SWD | STATUTORY WARRANTY DEED | MC SHANE LISA L | LOPEZ JESUS MENDOZA & MAGDALENA | | | $135,200.00 | 137513 | 2019-06230 |
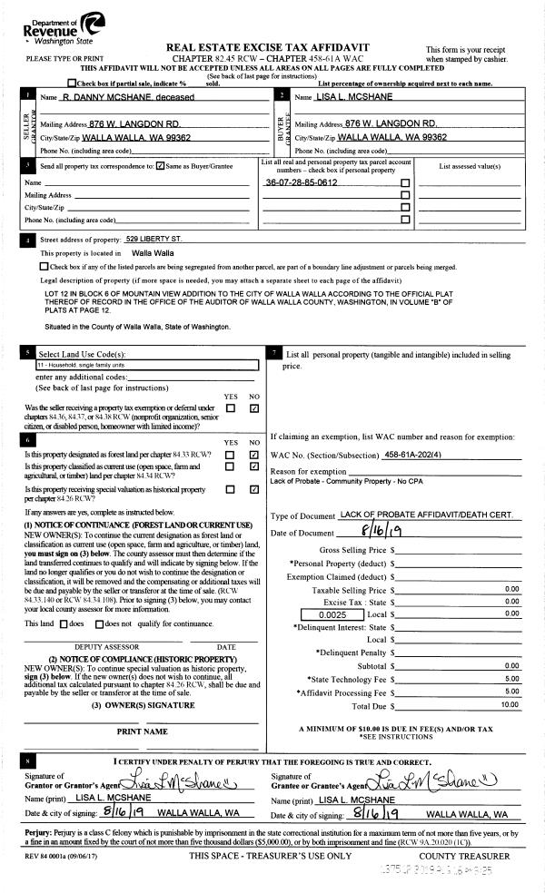
| 3 | 08/16/2019 | LOPA | LACK OF PROBATE AFFIDAVIT | MC SHANE R DANNY & LISA L | MC SHANE LISA L | | | $0.00 | 137512 | 2019-06229 |
| 4 | 04/14/1994 | WARRANTY D | WARRANTY DEED | | | | | $62,000.00 | 81422 | 2189-404427 |
Payout Agreement
| No payout information available.. |