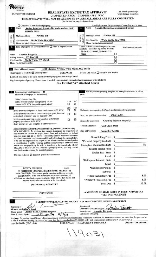
Property
Account |
| Property ID: | 30015 | Abbreviated Legal Description: | 2-6-35 TAX 30; TAX 31 |
| Parcel Number: | 350602220007 | Agent Code: | |
| Type: | Real | | |
| Tax Area: | 311 - 250-4 | Land Use Code | 11 |
| Open Space: | N | DFL | N |
| Historic Property: | N | Remodel Property: | N |
| Multi-Family Redevelopment: | N | | |
| Township: | 6 | Section: | 2 |
| Range: | 35 |
Location |
| Address: | 1584 CLARENCE AVE WA 99324 | Mapsco: | |
| Neighborhood: | G SFR Rural/City Inf | Map ID: | |
| Neighborhood CD: | 114012 |
Owner |
| Name: | BERGEVIN ANNETTE & KRISTY L OLSON | Owner ID: | 68145 |
| Mailing Address: | PO BOX 3270 WALLA WALLA, WA 99362 | % Ownership: | 100.0000000000% |
| | | Exemptions: | |
Taxes and Assessment Details
Property Tax Information as of
02/21/2026
Click on "Statement Details" to expand or collapse a tax statement.
* Please enter a valid date ** Please enter a valid date *
Statement Details |
| | TOTAL: | $0.00 | $0.00 | $0.00 | $0.00 | $0.00 | $0.00 |
|
| | $0.00 | $0.00 | $0.00 | $0.00 | $0.00 | $0.00 |
Values
| (+) Improvement Homesite Value: | + | $0 | |
| (+) Improvement Non-Homesite Value: | + | $335,200 | |
| (+) Land Homesite Value: | + | $0 | |
| (+) Land Non-Homesite Value: | + | $168,710 | |
| (+) Curr Use (HS): | + | $0 | $0 |
| (+) Curr Use (NHS): | + | $0 | $0 |
| | | -------------------------- | |
| (=) Market Value: | = | $503,910 | |
| (–) Productivity Loss: | – | $0 | |
| | | -------------------------- | |
| (=) Subtotal: | = | $503,910 | |
| (+) Senior Appraised Value: | + | $0 | |
| (+) Non-Senior Appraised Value: | + | $503,910 | |
| | | -------------------------- | |
| (=) Total Appraised Value: | = | $503,910 | |
| (–) Senior Exemption Loss: | – | $0 | |
| (–) Exemption Loss: | – | $0 | |
| | | -------------------------- | |
| (=) Taxable Value: | = | $503,910 | |
Taxing Jurisdiction
| Owner: | BERGEVIN ANNETTE & KRISTY L OLSON | | |
| % Ownership: | 100.0000000000% | | |
| Total Value: | $503,910 | | |
| Tax Area: | 311 - 250-4 |
| CERFD | CURRENT EXPENSE REFUND 010 | 0.0000000000 | $503,910 | $503,910 | $0.00 | | |
| CURREXP | CURRENT EXPENSE 010 | 0.9851088983 | $503,910 | $503,910 | $496.41 | | |
| HUMNSERV | HUMAN SERVICES 119 | 0.0250000000 | $503,910 | $503,910 | $12.60 | | |
| SLDREL | SOLDIERS RELIEF 121 | 0.0155990000 | $503,910 | $503,910 | $7.86 | | |
| EMERGSER | EMS 147 | 0.3676811629 | $503,910 | $503,910 | $185.28 | | |
| EMSRFD | EMS REFUND 147 | 0.0000000000 | $503,910 | $503,910 | $0.00 | | |
| FD4EXP | FD #4 EXPENSE 686 | 1.2367913128 | $503,910 | $503,910 | $623.23 | | |
| RLBRFD | RURAL LIBRARY REFUND 623 | 0.0000000000 | $503,910 | $503,910 | $0.00 | | |
| RURALLIB | RURAL LIBRARY 623 | 0.3601547782 | $503,910 | $503,910 | $181.49 | | |
| PORTRFD | PORT REFUND 640 | 0.0000000000 | $503,910 | $503,910 | $0.00 | | |
| PORTWWGEN | PORT OF WW 640 | 0.2344301070 | $503,910 | $503,910 | $118.13 | | |
| SD250BOND | SD #250 BOND 773 | 1.3740031235 | $503,910 | $503,910 | $692.37 | | |
| SD250GEN | SD #250 GENERAL 770 | 2.4999999988 | $503,910 | $503,910 | $1,259.77 | | |
| ST2 | STATE SCHOOL PART 2 600 | 0.8853714103 | $503,910 | $503,910 | $446.15 | | |
| STATESCHL | STATE SCHOOL 600 | 1.6424571473 | $503,910 | $503,910 | $827.65 | | |
| STREFUND | STATE REFUND LEVY 603 | 0.0000000000 | $503,910 | $503,910 | $0.00 | | |
| COROAD | COUNTY ROAD 115 | 1.6137667997 | $503,910 | $503,910 | $813.19 | | |
| CRPRD | COUNTY ROAD REFUND 115 | 0.0000000000 | $503,910 | $503,910 | $0.00 | | |
| | Total Tax Rate: | 11.2403637388 | | | | | |
| | | | | Taxes w/Current Exemptions: | $5,664.13 | | |
| | | | | Taxes w/o Exemptions: | $5,664.13 | | |
Improvement / Building
| Improvement #1: | RESIDENTIAL | State Code: | 11 | 1394.0 sqft | Value: | $335,200 |
| Exterior Wall: | HARDBOARD | Heating/Cooling: | BASEBOARD ELECTRIC | | Number of Bathrooms: | 3 | Number of Bedrooms: | 3 | | Plumbing: | 12 | Roof Covering: | COMP SHINGLE |
|
| | Type | Description | Class CD | Sub Class CD | Year Built | Area |
| | MA | Main Area | 11 | 40 | 1969 | 1394.0 |
| | SI1 | SITE IMPROVEMENT | 11 | 40 | 1969 | 3.0 |
| | BASE | BASEMENT | 11 | 40 | 1969 | 1350.0 |
| | BPF | BASEMENT -PARTITIONED FINISH | 11 | 40 | 1969 | 1000.0 |
| | ATG | Attached Garage | 11 | 40 | 1969 | 920.0 |
| | WDR | WOOD DECK W/ROOF | 11 | 40 | 1969 | 376.0 |
| | WOD | Wood Deck | 11 | 40 | 1969 | 480.0 |
| | S1F | Single One Story Fireplace | 11 | 40 | 1969 | 1.0 |
| | UTST | Utility Storage Shed | 11 | 20 | 1969 | 128.0 |
Sketch
Property Image
Land
| 1 | RES 1 | Converted: Residential | 0.7700 | 33541.00 | 0.00 | 0.00 | 1.00 | $168,710 | $0 |
Roll Value History
| 2026 | N/A | N/A | N/A | N/A | N/A |
| 2025 | $335,200 | $168,710 | $0 | $503,910 | $503,910 |
| 2024 | $394,360 | $106,800 | $0 | $501,160 | $501,160 |
| 2023 | $394,360 | $106,800 | $0 | $501,160 | $501,160 |
| 2022 | $342,920 | $106,800 | $0 | $449,720 | $449,720 |
| 2021 | $263,780 | $106,800 | $0 | $370,580 | $370,580 |
| 2020 | $202,910 | $106,800 | $0 | $309,710 | $309,710 |
| 2019 | $219,510 | $90,200 | $0 | $309,710 | $309,710 |
| 2018 | $209,060 | $90,200 | $0 | $299,260 | $299,260 |
| 2017 | $199,100 | $90,200 | $0 | $289,300 | $289,300 |
| 2016 | $199,100 | $90,200 | $0 | $289,300 | $289,300 |
| 2015 | $199,100 | $90,200 | $0 | $289,300 | $289,300 |
| 2014 | $199,100 | $90,200 | $0 | $289,300 | $289,300 |
| 2013 | $199,100 | $90,200 | $0 | $289,300 | $289,300 |
| 2012 | $199,100 | $90,200 | $0 | $0 | $0 |
| 2011 | $186,900 | $117,600 | $0 | $0 | $0 |
| 2010 | $186,900 | $117,600 | $0 | $0 | $0 |
| 2009 | $220,700 | $117,600 | $0 | $0 | $0 |
| 2008 | $178,700 | $36,100 | $0 | $0 | $0 |
| 2007 | $178,700 | $36,100 | $0 | $0 | $0 |
Deed and Sales History
| 1 | 10/21/2020 | QCD | QUIT CLAIM DEED | BERGEVIN ANNETTE | BERGEVIN ANNETTE & KRISTY L OLSON | | | | 140153 | 2020-10924 |
| 2 | 09/20/2010 | QCD | QUIT CLAIM DEED | LANE AMBER | BERGEVIN ANNETTE | | | | 119031 | 2010-07414 |
| 3 | 05/03/2002 | WARRANTY D | WARRANTY DEED | | | | | $235,000.00 | 99438 | 2002-0005311 |
|   | |
Payout Agreement
| No payout information available.. |