Property
Account |
| Property ID: | 29986 | Abbreviated Legal Description: | REEDS W 110' OF NW1/4 OF BLK 9 |
| Parcel Number: | 360721710913 | Agent Code: | |
| Type: | Real | | |
| Tax Area: | 1 - OL-140-F | Land Use Code | 11 |
| Open Space: | N | DFL | N |
| Historic Property: | N | Remodel Property: | N |
| Multi-Family Redevelopment: | N | | |
| Township: | 7 | Section: | 21 |
| Range: | 36 |
Location |
| Address: | 804 LINCOLN ST WA 99362 | Mapsco: | |
| Neighborhood: | G-SFR | Map ID: | |
| Neighborhood CD: | 514011 |
Owner |
| Name: | HUNT JACK & ANGELA GETTMANN-HUNT | Owner ID: | 63981 |
| Mailing Address: | 804 LINCOLN ST WALLA WALLA, WA 99362 | % Ownership: | 100.0000000000% |
| | | Exemptions: | |
Taxes and Assessment Details
Values
| (+) Improvement Homesite Value: | + | $0 | |
| (+) Improvement Non-Homesite Value: | + | $410,760 | |
| (+) Land Homesite Value: | + | $0 | |
| (+) Land Non-Homesite Value: | + | $76,110 | |
| (+) Curr Use (HS): | + | $0 | $0 |
| (+) Curr Use (NHS): | + | $0 | $0 |
| | | -------------------------- | |
| (=) Market Value: | = | $486,870 | |
| (–) Productivity Loss: | – | $0 | |
| | | -------------------------- | |
| (=) Subtotal: | = | $486,870 | |
| (+) Senior Appraised Value: | + | $0 | |
| (+) Non-Senior Appraised Value: | + | $486,870 | |
| | | -------------------------- | |
| (=) Total Appraised Value: | = | $486,870 | |
| (–) Senior Exemption Loss: | – | $0 | |
| (–) Exemption Loss: | – | $0 | |
| | | -------------------------- | |
| (=) Taxable Value: | = | $486,870 | |
Taxing Jurisdiction
| Owner: | HUNT JACK & ANGELA GETTMANN-HUNT | | |
| % Ownership: | 100.0000000000% | | |
| Total Value: | $486,870 | | |
| Tax Area: | 1 - OL-140-F |
| CERFD | CURRENT EXPENSE REFUND 010 | 0.0000000000 | $486,870 | $486,870 | $0.00 | | |
| CURREXP | CURRENT EXPENSE 010 | 1.0175366760 | $486,870 | $486,870 | $495.41 | | |
| HUMNSERV | HUMAN SERVICES 119 | 0.0250000000 | $486,870 | $486,870 | $12.17 | | |
| SLDREL | SOLDIERS RELIEF 121 | 0.0155990005 | $486,870 | $486,870 | $7.59 | | |
| EMERGSER | EMS 147 | 0.3792580840 | $486,870 | $486,870 | $184.65 | | |
| EMSRFD | EMS REFUND 147 | 0.0000000000 | $486,870 | $486,870 | $0.00 | | |
| PORTRFD | PORT REFUND 640 | 0.0000000000 | $486,870 | $486,870 | $0.00 | | |
| PORTWWGEN | PORT OF WW 640 | 0.2460186015 | $486,870 | $486,870 | $119.78 | | |
| SD140BOND | SD #140 BOND 764 | 0.8342371393 | $486,870 | $486,870 | $406.17 | | |
| SD140GEN | SD #140 GENERAL 760 | 2.0646500647 | $486,870 | $486,870 | $1,005.22 | | |
| ST2 | STATE SCHOOL PART 2 600 | 0.8131451643 | $486,870 | $486,870 | $395.90 | | |
| STATESCHL | STATE SCHOOL 600 | 1.5158548041 | $486,870 | $486,870 | $738.02 | | |
| STREFUND | STATE REFUND LEVY 603 | 0.0000000000 | $486,870 | $486,870 | $0.00 | | |
| CWWBOND | C OF WW BOND 643 | 0.2760494372 | $486,870 | $486,870 | $134.40 | | |
| CWWGEN | CITY OF WW 631 | 1.6100204973 | $486,870 | $486,870 | $783.87 | | |
| CWWRFD | CITY OF WALLA WALLA REFUND 631 | 0.0000000000 | $486,870 | $486,870 | $0.00 | | |
| | Total Tax Rate: | 8.7973694689 | | | | | |
| | | | | Taxes w/Current Exemptions: | $4,283.18 | | |
| | | | | Taxes w/o Exemptions: | $4,283.18 | | |
Improvement / Building
| Improvement #1: | RESIDENTIAL | State Code: | 11 | 1928.0 sqft | Value: | $410,760 |
| Exterior Wall: | SIDING | Heating/Cooling: | WARM & COOLED AIR | | Number of Bathrooms: | 3 | Number of Bedrooms: | 5 | | Plumbing: | 14 | Roof Covering: | COMP SHINGLE |
|
| | Type | Description | Class CD | Sub Class CD | Year Built | Area |
| | MA | Main Area | 4 | 40 | 1920 | 1928.0 |
| | UPFL | Upper Floor (included in main area) | 4 | 40 | 1920 | 660.0 |
| | SI1 | SITE IMPROVEMENT | 4 | 40 | 1920 | 1.5 |
| | BASE | BASEMENT | 4 | 40 | 1920 | 1320.0 |
| | BPF | BASEMENT -PARTITIONED FINISH | 4 | 40 | 1920 | 1200.0 |
| | S1F | Single One Story Fireplace | 4 | 40 | 1920 | 1.0 |
| | SMP | SWIMMING POOL | 4 | 40 | 1920 | 1.0 |
| | CPC | COVERED CARPORT/PATIO | 4 | 40 | 1920 | 270.0 |
| | RCD | WOOD DECK W/ROOF, CEILED | 4 | 40 | 1920 | 270.0 |
| | DTG | Detached Garage | 4 | 40 | 1920 | 240.0 |
| | SWP | Solid Wall Porch | 4 | 40 | 1920 | 42.0 |
Sketch
Property Image
Land
| 1 | RES 1 | Converted: Residential | 0.3765 | 16402.00 | 0.00 | 0.00 | 1.00 | $76,110 | $0 |
Roll Value History
| 2026 | N/A | N/A | N/A | N/A | N/A |
| 2025 | $350,650 | $135,810 | $0 | $486,460 | $486,460 |
| 2024 | $350,650 | $135,810 | $0 | $486,460 | $486,460 |
| 2023 | $410,760 | $76,110 | $0 | $486,870 | $486,870 |
| 2022 | $373,420 | $76,110 | $0 | $449,530 | $449,530 |
| 2021 | $324,710 | $76,110 | $0 | $400,820 | $400,820 |
| 2020 | $249,780 | $76,110 | $0 | $325,890 | $325,890 |
| 2019 | $249,780 | $76,110 | $0 | $325,890 | $325,890 |
| 2018 | $249,780 | $76,110 | $0 | $325,890 | $325,890 |
| 2017 | $225,110 | $48,800 | $0 | $273,910 | $273,910 |
| 2016 | $204,650 | $48,800 | $0 | $253,450 | $253,450 |
| 2015 | $204,650 | $48,800 | $0 | $253,450 | $253,450 |
| 2014 | $194,900 | $48,800 | $0 | $243,700 | $243,700 |
| 2013 | $194,900 | $48,800 | $0 | $243,700 | $243,700 |
| 2012 | $194,900 | $48,800 | $0 | $0 | $0 |
| 2011 | $221,800 | $49,000 | $0 | $0 | $0 |
| 2010 | $208,900 | $49,000 | $0 | $0 | $0 |
| 2009 | $237,600 | $49,000 | $0 | $0 | $0 |
| 2008 | $159,700 | $45,000 | $0 | $0 | $0 |
| 2007 | $159,700 | $45,000 | $0 | $0 | $0 |
Deed and Sales History
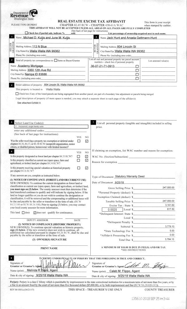
| 1 | 09/25/2018 | SWD | STATUTORY WARRANTY DEED | KULJIS MICHAEL D & JUNE M | HUNT JACK & ANGELA GETTMANN-HUNT | | | $247,000.00 | 135610 | 2018-07994 |
| 2 | 11/15/2016 | SWD | STATUTORY WARRANTY DEED | KULJIS BEVERLY J | KULJIS MICHAEL D & JUNE M | | | $157,000.00 | 131432 | 2016-09444 |
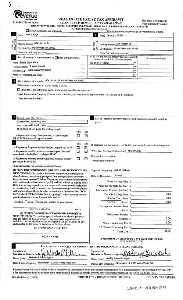
| 3 | 11/15/2016 | LOPA | LACK OF PROBATE AFFIDAVIT | KULJIS JACK A & BEVERLY J | KULJIS BEVERLY J | | | $0.00 | 131431 | 2016-09443 |
| 4 | 02/25/1980 | QCD | QUIT CLAIM DEED | | | | | $68,500.00 | 0 | 1899-103002 |
Payout Agreement
| No payout information available.. |