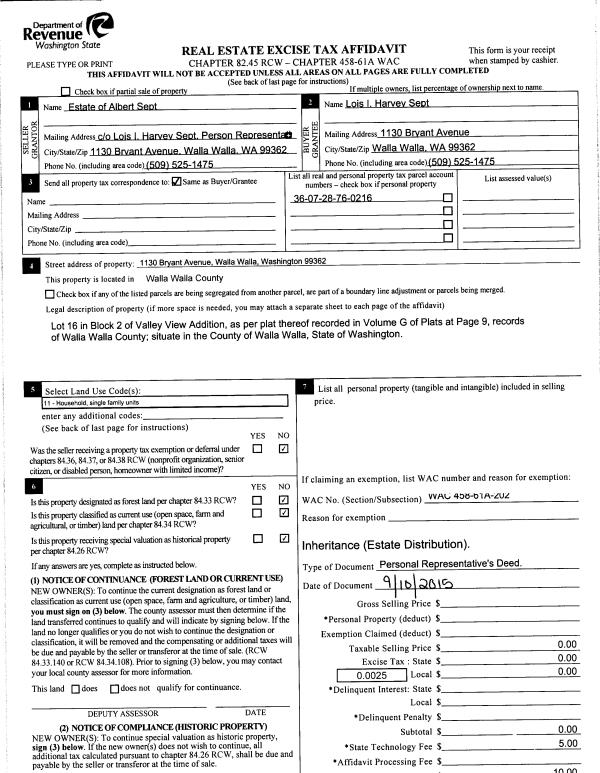
Property
Account |
| Property ID: | 29949 | Abbreviated Legal Description: | VALLEY VIEW LOT 16 BLK 2 |
| Parcel Number: | 360728760216 | Agent Code: | |
| Type: | Real | | |
| Tax Area: | 105 - 140-F-4 | Land Use Code | 11 |
| Open Space: | N | DFL | N |
| Historic Property: | N | Remodel Property: | N |
| Multi-Family Redevelopment: | N | | |
| Township: | 7 | Section: | 28 |
| Range: | 36 |
Location |
| Address: | 1130 BRYANT AVE WA 99362 | Mapsco: | |
| Neighborhood: | G Res | Map ID: | |
| Neighborhood CD: | 614011 |
Owner |
| Name: | GALLOWAY LOIS | Owner ID: | 63052 |
| Mailing Address: | 1130 BRYANT AVE WALLA WALLA, WA 99362 | % Ownership: | 100.0000000000% |
| | | Exemptions: | SNR/DSBL |
Taxes and Assessment Details
Values
| (+) Improvement Homesite Value: | + | $278,700 | |
| (+) Improvement Non-Homesite Value: | + | $0 | |
| (+) Land Homesite Value: | + | $102,370 | |
| (+) Land Non-Homesite Value: | + | $0 | |
| (+) Curr Use (HS): | + | $0 | $0 |
| (+) Curr Use (NHS): | + | $0 | $0 |
| | | -------------------------- | |
| (=) Market Value: | = | $381,070 | |
| (–) Productivity Loss: | – | $0 | |
| | | -------------------------- | |
| (=) Subtotal: | = | $381,070 | |
| (+) Senior Appraised Value: | + | $189,110 | |
| (+) Non-Senior Appraised Value: | + | $0 | |
| | | -------------------------- | |
| (=) Total Appraised Value: | = | $189,110 | |
| (–) Senior Exemption Loss: | – | $113,466 | |
| (–) Exemption Loss: | – | $0 | |
| | | -------------------------- | |
| (=) Taxable Value: | = | $75,644 | |
Taxing Jurisdiction
| Owner: | GALLOWAY LOIS | | |
| % Ownership: | 100.0000000000% | | |
| Total Value: | $381,070 | | |
| Tax Area: | 105 - 140-F-4 |
| CERFD | CURRENT EXPENSE REFUND 010 | 0.0000000000 | $381,070 | $75,644 | $0.00 | | |
| CURREXP | CURRENT EXPENSE 010 | 1.0175366760 | $381,070 | $75,644 | $76.97 | | |
| HUMNSERV | HUMAN SERVICES 119 | 0.0250000000 | $381,070 | $75,644 | $1.89 | | |
| SLDREL | SOLDIERS RELIEF 121 | 0.0155990005 | $381,070 | $75,644 | $1.18 | | |
| EMERGSER | EMS 147 | 0.3792580840 | $381,070 | $75,644 | $28.69 | | |
| EMSRFD | EMS REFUND 147 | 0.0000000000 | $381,070 | $75,644 | $0.00 | | |
| FD4EXP | FD #4 EXPENSE 686 | 0.8836993059 | $381,070 | $75,644 | $66.85 | | |
| RLBRFD | RURAL LIBRARY REFUND 623 | 0.0000000000 | $381,070 | $75,644 | $0.00 | | |
| RURALLIB | RURAL LIBRARY 623 | 0.3710609029 | $381,070 | $75,644 | $28.07 | | |
| PORTRFD | PORT REFUND 640 | 0.0000000000 | $381,070 | $75,644 | $0.00 | | |
| PORTWWGEN | PORT OF WW 640 | 0.2460186015 | $381,070 | $75,644 | $18.61 | | |
| SD140BOND | SD #140 BOND 764 | 0.0000000000 | $381,070 | $0 | $0.00 | | |
| SD140GEN | SD #140 GENERAL 760 | 0.0000000000 | $381,070 | $0 | $0.00 | | |
| ST2 | STATE SCHOOL PART 2 600 | 0.0000000000 | $381,070 | $0 | $0.00 | | |
| STATESCHL | STATE SCHOOL 600 | 1.5158548041 | $381,070 | $75,644 | $114.67 | | |
| STREFUND | STATE REFUND LEVY 603 | 0.0000000000 | $381,070 | $75,644 | $0.00 | | |
| COROAD | COUNTY ROAD 115 | 1.6549953990 | $381,070 | $75,644 | $125.19 | | |
| CRPRD | COUNTY ROAD REFUND 115 | 0.0000000000 | $381,070 | $75,644 | $0.00 | | |
| | Total Tax Rate: | 6.1090227739 | | | | | |
| | | | | Taxes w/Current Exemptions: | $462.12 | | |
| | | | | Taxes w/o Exemptions: | $3,742.51 | | |
Improvement / Building
| Improvement #1: | RESIDENTIAL | State Code: | 11 | 1323.0 sqft | Value: | $278,700 |
| Exterior Wall: | VINYL | Heating/Cooling: | HEAT PUMP | | Number of Bathrooms: | 2 | Number of Bedrooms: | 2 | | Plumbing: | 9 | Roof Covering: | COMP SHINGLE |
|
| | Type | Description | Class CD | Sub Class CD | Year Built | Area |
| | MA | Main Area | 1 | 30 | 1966 | 1323.0 |
| | SI1 | SITE IMPROVEMENT | 1 | 30 | 1966 | 1.5 |
| | GFP | GAS FIREPLACE | 1 | 30 | 1966 | 1.0 |
| | CPCD | CARPORT/DIRT FLOOR | 1 | 30 | 1966 | 160.0 |
| | SWP | Solid Wall Porch | 1 | 30 | 1966 | 301.0 |
| | ATG | Attached Garage | 1 | 30 | 1966 | 528.0 |
Sketch
Property Image
Land
| 1 | RES 1 | Converted: Residential | 0.2350 | 10237.00 | 0.00 | 0.00 | 1.00 | $102,370 | $0 |
Roll Value History
| 2026 | N/A | N/A | N/A | N/A | N/A |
| 2025 | $274,940 | $122,840 | $0 | $397,780 | $75,644 |
| 2024 | $278,700 | $102,370 | $0 | $381,070 | $75,644 |
| 2023 | $278,700 | $102,370 | $0 | $381,070 | $75,644 |
| 2022 | $253,370 | $84,460 | $0 | $337,830 | $122,921 |
| 2021 | $180,980 | $84,460 | $0 | $265,440 | $122,921 |
| 2020 | $157,370 | $84,460 | $0 | $241,830 | $122,921 |
| 2019 | $157,370 | $84,460 | $0 | $241,830 | $122,921 |
| 2018 | $141,810 | $47,300 | $0 | $189,110 | $189,110 |
| 2017 | $123,310 | $47,300 | $0 | $170,610 | $170,610 |
| 2016 | $112,100 | $47,300 | $0 | $159,400 | $63,760 |
| 2015 | $112,100 | $47,300 | $0 | $159,400 | $63,760 |
| 2014 | $112,100 | $47,300 | $0 | $159,400 | $159,400 |
| 2013 | $112,100 | $47,300 | $0 | $159,400 | $159,400 |
| 2012 | $112,100 | $47,300 | $0 | $0 | $0 |
| 2011 | $112,100 | $47,300 | $0 | $0 | $0 |
| 2010 | $97,600 | $47,300 | $0 | $0 | $0 |
| 2009 | $113,700 | $47,300 | $0 | $0 | $0 |
| 2008 | $113,700 | $47,300 | $0 | $0 | $0 |
| 2007 | $92,000 | $24,800 | $0 | $0 | $0 |
Deed and Sales History
| 1 | 05/11/2018 | SWD | STATUTORY WARRANTY DEED | SEPT LOIS I HARVEY | GALLOWAY LOIS | | | $249,000.00 | 134688 | 2018-03680 |
| 2 | 09/10/2015 | DPR | DEED OF PERSONAL REPRESENTATIVE | SEPT ALBERT | SEPT LOIS I HARVEY | | | $0.00 | 128798 | 2015-07950 |
| 3 | 04/01/1968 | WARRANTY D | WARRANTY DEED | | | | | $19,700.00 | 0 | 1899-103033 |
Payout Agreement
| No payout information available.. |