Property
Account |
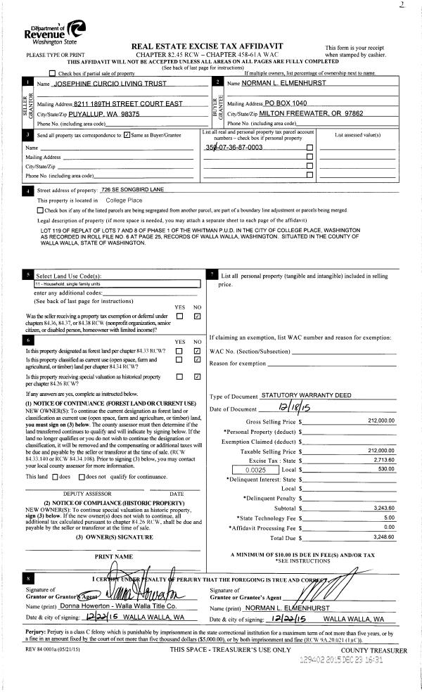
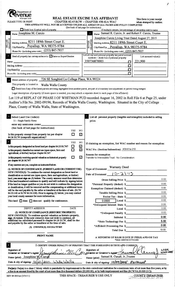
| Property ID: | 29946 | Abbreviated Legal Description: | REPLAT OF LOTS 7&8 PHASE 1 WHITMAN P.U.D. LOT 119 |
| Parcel Number: | 350736870003 | Agent Code: | |
| Type: | Real | | |
| Tax Area: | 75 - CP 250 | Land Use Code | 11 |
| Open Space: | N | DFL | N |
| Historic Property: | N | Remodel Property: | N |
| Multi-Family Redevelopment: | N | | |
| Township: | 7 | Section: | 36 |
| Range: | 35 |
Location |
| Address: | 726 SE SONGBIRD LN WA 99324 | Mapsco: | |
| Neighborhood: | G SFR | Map ID: | |
| Neighborhood CD: | 114011 |
Owner |
| Name: | ELMENHURST NORMAN L | Owner ID: | 58124 |
| Mailing Address: | PO BOX 1040 MILTON FREEWATER, OR 97862 | % Ownership: | 100.0000000000% |
| | | Exemptions: | |
Taxes and Assessment Details
Property Tax Information as of
02/21/2026
Click on "Statement Details" to expand or collapse a tax statement.
* Please enter a valid date ** Please enter a valid date *
Statement Details |
| | TOTAL: | $0.00 | $0.00 | $0.00 | $0.00 | $0.00 | $0.00 |
|
| | $0.00 | $0.00 | $0.00 | $0.00 | $0.00 | $0.00 |
Values
| (+) Improvement Homesite Value: | + | $342,380 | |
| (+) Improvement Non-Homesite Value: | + | $0 | |
| (+) Land Homesite Value: | + | $70,000 | |
| (+) Land Non-Homesite Value: | + | $0 | |
| (+) Curr Use (HS): | + | $0 | $0 |
| (+) Curr Use (NHS): | + | $0 | $0 |
| | | -------------------------- | |
| (=) Market Value: | = | $412,380 | |
| (–) Productivity Loss: | – | $0 | |
| | | -------------------------- | |
| (=) Subtotal: | = | $412,380 | |
| (+) Senior Appraised Value: | + | $0 | |
| (+) Non-Senior Appraised Value: | + | $412,380 | |
| | | -------------------------- | |
| (=) Total Appraised Value: | = | $412,380 | |
| (–) Senior Exemption Loss: | – | $0 | |
| (–) Exemption Loss: | – | $0 | |
| | | -------------------------- | |
| (=) Taxable Value: | = | $412,380 | |
Taxing Jurisdiction
| Owner: | ELMENHURST NORMAN L | | |
| % Ownership: | 100.0000000000% | | |
| Total Value: | $412,380 | | |
| Tax Area: | 75 - CP 250 |
| CERFD | CURRENT EXPENSE REFUND 010 | 0.0000000000 | $412,380 | $412,380 | $0.00 | | |
| CURREXP | CURRENT EXPENSE 010 | 1.0175366760 | $412,380 | $412,380 | $419.61 | | |
| HUMNSERV | HUMAN SERVICES 119 | 0.0250000000 | $412,380 | $412,380 | $10.31 | | |
| SLDREL | SOLDIERS RELIEF 121 | 0.0155990005 | $412,380 | $412,380 | $6.43 | | |
| COLLPLBOND | C OF CP BOND 644 | 0.4374241808 | $412,380 | $412,380 | $180.38 | | |
| COLLPLGEN | CITY OF CP 632 | 1.4453819216 | $412,380 | $412,380 | $596.05 | | |
| EMERGSER | EMS 147 | 0.3792580840 | $412,380 | $412,380 | $156.40 | | |
| EMSRFD | EMS REFUND 147 | 0.0000000000 | $412,380 | $412,380 | $0.00 | | |
| RURALLIB | RURAL LIBRARY 623 | 0.3710609029 | $412,380 | $412,380 | $153.02 | | |
| PORTRFD | PORT REFUND 640 | 0.0000000000 | $412,380 | $412,380 | $0.00 | | |
| PORTWWGEN | PORT OF WW 640 | 0.2460186015 | $412,380 | $412,380 | $101.45 | | |
| SD250BOND | SD #250 BOND 773 | 1.4560608159 | $412,380 | $412,380 | $600.45 | | |
| SD250GEN | SD #250 GENERAL 770 | 2.3880724087 | $412,380 | $412,380 | $984.79 | | |
| ST2 | STATE SCHOOL PART 2 600 | 0.8131451643 | $412,380 | $412,380 | $335.32 | | |
| STATESCHL | STATE SCHOOL 600 | 1.5158548041 | $412,380 | $412,380 | $625.11 | | |
| STREFUND | STATE REFUND LEVY 603 | 0.0000000000 | $412,380 | $412,380 | $0.00 | | |
| | Total Tax Rate: | 10.1104125603 | | | | | |
| | | | | Taxes w/Current Exemptions: | $4,169.32 | | |
| | | | | Taxes w/o Exemptions: | $4,169.32 | | |
Improvement / Building
| Improvement #1: | RESIDENTIAL | State Code: | 11 | 1687.0 sqft | Value: | $342,380 |
| Exterior Wall: | VINYL | Heating/Cooling: | WARM & COOLED AIR | | Number of Bathrooms: | 2 | Number of Bedrooms: | 3 | | Plumbing: | 12 | Roof Covering: | COMP SHINGLE |
|
| | Type | Description | Class CD | Sub Class CD | Year Built | Area |
| | MA | Main Area | 1 | 35 | 2003 | 1687.0 |
| | SI1 | SITE IMPROVEMENT | 1 | 35 | 2003 | 2.0 |
| | ATG | Attached Garage | 1 | 35 | 2003 | 625.0 |
| | GFP | GAS FIREPLACE | 1 | 35 | 2003 | 1.0 |
Sketch
Property Image
Land
| 1 | RES 1 | Converted: Residential | 0.1236 | 5383.00 | 0.00 | 0.00 | 1.00 | $70,000 | $0 |
Roll Value History
| 2026 | N/A | N/A | N/A | N/A | N/A |
| 2025 | $256,780 | $125,000 | $0 | $381,780 | $381,780 |
| 2024 | $342,380 | $70,000 | $0 | $412,380 | $412,380 |
| 2023 | $342,380 | $70,000 | $0 | $412,380 | $412,380 |
| 2022 | $326,070 | $70,000 | $0 | $396,070 | $396,070 |
| 2021 | $283,540 | $70,000 | $0 | $353,540 | $353,540 |
| 2020 | $210,030 | $70,000 | $0 | $280,030 | $280,030 |
| 2019 | $245,030 | $35,000 | $0 | $280,030 | $280,030 |
| 2018 | $204,190 | $35,000 | $0 | $239,190 | $239,190 |
| 2017 | $177,560 | $35,000 | $0 | $212,560 | $212,560 |
| 2016 | $177,560 | $35,000 | $0 | $212,560 | $212,560 |
| 2015 | $177,560 | $35,000 | $0 | $212,560 | $212,560 |
| 2014 | $186,900 | $35,000 | $0 | $221,900 | $174,000 |
| 2013 | $186,900 | $35,000 | $0 | $221,900 | $174,000 |
| 2012 | $140,500 | $65,000 | $0 | $0 | $0 |
| 2011 | $146,900 | $65,000 | $0 | $0 | $0 |
| 2010 | $146,900 | $65,000 | $0 | $0 | $0 |
| 2009 | $158,100 | $65,000 | $0 | $0 | $0 |
| 2008 | $144,000 | $30,000 | $0 | $0 | $0 |
| 2007 | $144,000 | $30,000 | $0 | $0 | $0 |
Deed and Sales History
| 1 | 12/23/2015 | QCD | QUIT CLAIM DEED | ELMENHURST PATRICIA | ELMENHURST NORMAN L | | | | 129403 | 2015-11004 |
| 2 | 12/23/2015 | SWD | STATUTORY WARRANTY DEED | JOSEHPHINE CURCIO LIVING TRUST | ELMENHURST NORMAN L | | | $212,000.00 | 129402 | 2015-11003 |
| 3 | 10/23/2015 | WARRANTY D | WARRANTY DEED | CURCIO MARY J | JOSEHPHINE CURCIO LIVING TRUST | | | $0.00 | 129401 | 2015-11002 |
| 4 | 04/07/2006 | WARRANTY D | WARRANTY DEED | CHUQUIMIA, ROBERT F | CURCIO, MARY J | | | $209,000.00 | 109990 | 2006-03996 |
| 5 | 12/16/2003 | WARRANTY D | WARRANTY DEED | CONKLIN, DAVID W & JEAN F | CHUQUIMIA, ROBERT F | | | $31,900.00 | 103740 | 2003-18989 |
Payout Agreement
| No payout information available.. |