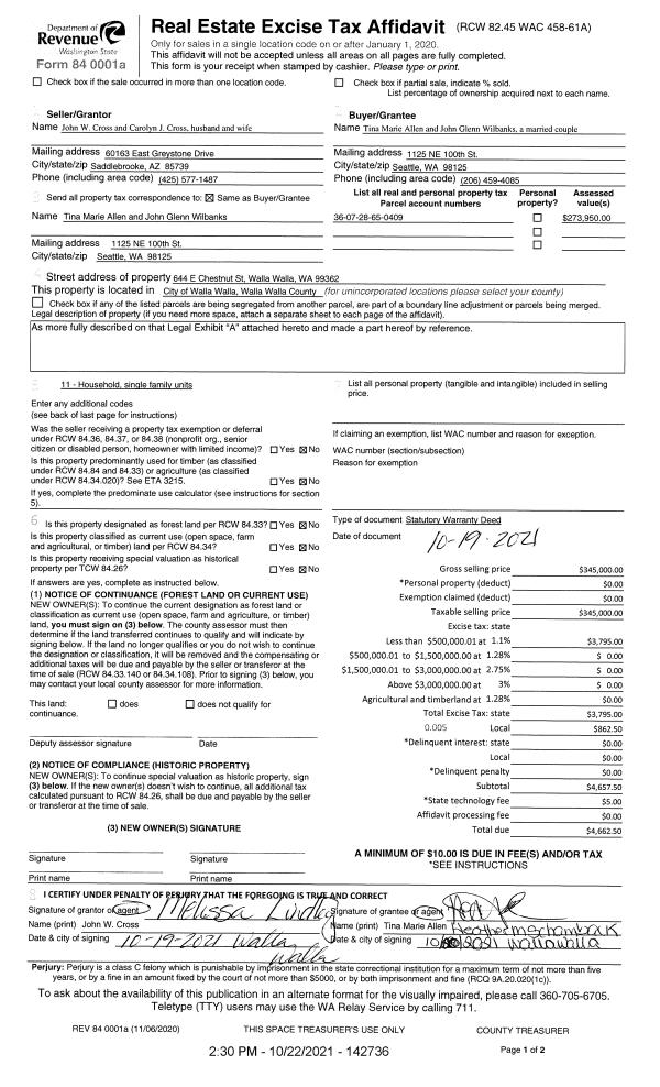
Property
Account |
| Property ID: | 29900 | Abbreviated Legal Description: | PARK ST GARDENS LOT 9 BLK 4 |
| Parcel Number: | 360728650409 | Agent Code: | |
| Type: | Real | | |
| Tax Area: | 1 - OL-140-F | Land Use Code | 11 |
| Open Space: | N | DFL | N |
| Historic Property: | N | Remodel Property: | N |
| Multi-Family Redevelopment: | N | | |
| Township: | 7 | Section: | 28 |
| Range: | 36 |
Location |
| Address: | 644 E CHESTNUT ST WA 99362 | Mapsco: | |
| Neighborhood: | A Res | Map ID: | |
| Neighborhood CD: | 613011 |
Owner |
| Name: | ALLEN TINA MARIE & JOHN GLENN WILBANKS | Owner ID: | 70491 |
| Mailing Address: | 2114 NE 100TH ST SEATTLE, WA 98125 | % Ownership: | 100.0000000000% |
| | | Exemptions: | |
Taxes and Assessment Details
Property Tax Information as of
02/21/2026
Click on "Statement Details" to expand or collapse a tax statement.
* Please enter a valid date ** Please enter a valid date *
Statement Details |
| | TOTAL: | $0.00 | $0.00 | $0.00 | $0.00 | $0.00 | $0.00 |
|
| | $0.00 | $0.00 | $0.00 | $0.00 | $0.00 | $0.00 |
Values
| (+) Improvement Homesite Value: | + | $0 | |
| (+) Improvement Non-Homesite Value: | + | $327,330 | |
| (+) Land Homesite Value: | + | $0 | |
| (+) Land Non-Homesite Value: | + | $70,000 | |
| (+) Curr Use (HS): | + | $0 | $0 |
| (+) Curr Use (NHS): | + | $0 | $0 |
| | | -------------------------- | |
| (=) Market Value: | = | $397,330 | |
| (–) Productivity Loss: | – | $0 | |
| | | -------------------------- | |
| (=) Subtotal: | = | $397,330 | |
| (+) Senior Appraised Value: | + | $0 | |
| (+) Non-Senior Appraised Value: | + | $397,330 | |
| | | -------------------------- | |
| (=) Total Appraised Value: | = | $397,330 | |
| (–) Senior Exemption Loss: | – | $0 | |
| (–) Exemption Loss: | – | $0 | |
| | | -------------------------- | |
| (=) Taxable Value: | = | $397,330 | |
Taxing Jurisdiction
| Owner: | ALLEN TINA MARIE & JOHN GLENN WILBANKS | | |
| % Ownership: | 100.0000000000% | | |
| Total Value: | $397,330 | | |
| Tax Area: | 1 - OL-140-F |
| CERFD | CURRENT EXPENSE REFUND 010 | 0.0000000000 | $397,330 | $397,330 | $0.00 | | |
| CURREXP | CURRENT EXPENSE 010 | 1.0175366760 | $397,330 | $397,330 | $404.30 | | |
| HUMNSERV | HUMAN SERVICES 119 | 0.0250000000 | $397,330 | $397,330 | $9.93 | | |
| SLDREL | SOLDIERS RELIEF 121 | 0.0155990005 | $397,330 | $397,330 | $6.20 | | |
| EMERGSER | EMS 147 | 0.3792580840 | $397,330 | $397,330 | $150.69 | | |
| EMSRFD | EMS REFUND 147 | 0.0000000000 | $397,330 | $397,330 | $0.00 | | |
| PORTRFD | PORT REFUND 640 | 0.0000000000 | $397,330 | $397,330 | $0.00 | | |
| PORTWWGEN | PORT OF WW 640 | 0.2460186015 | $397,330 | $397,330 | $97.75 | | |
| SD140BOND | SD #140 BOND 764 | 0.8342371393 | $397,330 | $397,330 | $331.47 | | |
| SD140GEN | SD #140 GENERAL 760 | 2.0646500647 | $397,330 | $397,330 | $820.35 | | |
| ST2 | STATE SCHOOL PART 2 600 | 0.8131451643 | $397,330 | $397,330 | $323.09 | | |
| STATESCHL | STATE SCHOOL 600 | 1.5158548041 | $397,330 | $397,330 | $602.29 | | |
| STREFUND | STATE REFUND LEVY 603 | 0.0000000000 | $397,330 | $397,330 | $0.00 | | |
| CWWBOND | C OF WW BOND 643 | 0.2760494372 | $397,330 | $397,330 | $109.68 | | |
| CWWGEN | CITY OF WW 631 | 1.6100204973 | $397,330 | $397,330 | $639.71 | | |
| CWWRFD | CITY OF WALLA WALLA REFUND 631 | 0.0000000000 | $397,330 | $397,330 | $0.00 | | |
| | Total Tax Rate: | 8.7973694689 | | | | | |
| | | | | Taxes w/Current Exemptions: | $3,495.46 | | |
| | | | | Taxes w/o Exemptions: | $3,495.46 | | |
Improvement / Building
| Improvement #1: | RESIDENTIAL | State Code: | 11 | 1228.0 sqft | Value: | $327,330 |
| Exterior Wall: | VINYL | Heating/Cooling: | WARM & COOLED AIR | | Number of Bathrooms: | 2 | Number of Bedrooms: | 3 | | Plumbing: | 9 | Roof Covering: | COMP SHINGLE |
|
| | Type | Description | Class CD | Sub Class CD | Year Built | Area |
| | MA | Main Area | 1 | 30 | 1922 | 1228.0 |
| | SI1 | SITE IMPROVEMENT | 1 | 30 | 1922 | 1.5 |
| | BASE | BASEMENT | 1 | 30 | 1922 | 975.0 |
| | BPF | BASEMENT -PARTITIONED FINISH | 1 | 30 | 1922 | 144.0 |
| | SWP | Solid Wall Porch | 1 | 30 | 1922 | 72.0 |
| | RCD | WOOD DECK W/ROOF, CEILED | 1 | 30 | 1922 | 72.0 |
| | DTG | Detached Garage | 1 | 30 | 1922 | 216.0 |
Sketch
Property Image
Land
| 1 | RES 1 | Converted: Residential | 0.1377 | 6000.00 | 0.00 | 0.00 | 1.00 | $70,000 | $0 |
Roll Value History
| 2026 | N/A | N/A | N/A | N/A | N/A |
| 2025 | $336,590 | $66,000 | $0 | $402,590 | $402,590 |
| 2024 | $327,330 | $70,000 | $0 | $397,330 | $397,330 |
| 2023 | $327,330 | $70,000 | $0 | $397,330 | $397,330 |
| 2022 | $284,630 | $55,000 | $0 | $339,630 | $339,630 |
| 2021 | $218,950 | $55,000 | $0 | $273,950 | $273,950 |
| 2020 | $156,390 | $55,000 | $0 | $211,390 | $211,390 |
| 2019 | $156,390 | $55,000 | $0 | $211,390 | $211,390 |
| 2018 | $145,290 | $36,000 | $0 | $181,290 | $181,290 |
| 2017 | $132,080 | $36,000 | $0 | $168,080 | $168,080 |
| 2016 | $114,860 | $36,000 | $0 | $150,860 | $150,860 |
| 2015 | $114,860 | $36,000 | $0 | $150,860 | $150,860 |
| 2014 | $120,900 | $36,000 | $0 | $156,900 | $156,900 |
| 2013 | $120,900 | $36,000 | $0 | $156,900 | $156,900 |
| 2012 | $120,900 | $36,000 | $0 | $0 | $0 |
| 2011 | $120,900 | $36,000 | $0 | $0 | $0 |
| 2010 | $100,400 | $36,000 | $0 | $0 | $0 |
| 2009 | $115,500 | $36,000 | $0 | $0 | $0 |
| 2008 | $115,500 | $36,000 | $0 | $0 | $0 |
| 2007 | $75,700 | $18,000 | $0 | $0 | $0 |
Deed and Sales History
| 1 | 10/22/2021 | SWD | STATUTORY WARRANTY DEED | CROSS JOHN W & CAROLYN J | ALLEN TINA MARIE & JOHN GLENN WILBANKS | | | $345,000.00 | 142736 | 2021-12821 |
| 2 | 07/10/2015 | SWD | STATUTORY WARRANTY DEED | BAHM MERLE E & MARY S | CROSS JOHN W & CAROLYN J | | | $152,000.00 | 128368 | 2015-05914 |
| 3 | 08/05/1991 | WARRANTY D | WARRANTY DEED | | | | | $41,000.00 | 0 | 1909-105220 |
Payout Agreement
| No payout information available.. |