Property
Account |
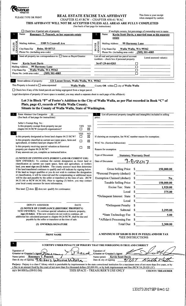
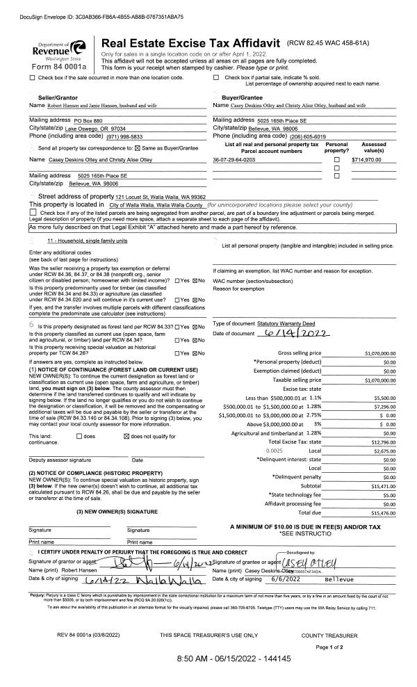
| Property ID: | 29896 | Abbreviated Legal Description: | FOSTERS LOT 3 BLK 2 |
| Parcel Number: | 360729640203 | Agent Code: | |
| Type: | Real | | |
| Tax Area: | 1 - OL-140-F | Land Use Code | 11 |
| Open Space: | N | DFL | N |
| Historic Property: | N | Remodel Property: | N |
| Multi-Family Redevelopment: | N | | |
| Township: | 7 | Section: | 29 |
| Range: | 36 |
Location |
| Address: | 121 LOCUST ST WA 99362 | Mapsco: | |
| Neighborhood: | G-SFR | Map ID: | |
| Neighborhood CD: | 514011 |
Owner |
| Name: | OTLEY CASEY DESKINS & CHRISTY ALISE | Owner ID: | 71809 |
| Mailing Address: | 121 LOCUST ST WALLA WALLA, WA 99362 | % Ownership: | 100.0000000000% |
| | | Exemptions: | |
Taxes and Assessment Details
Values
| (+) Improvement Homesite Value: | + | $0 | |
| (+) Improvement Non-Homesite Value: | + | $906,210 | |
| (+) Land Homesite Value: | + | $0 | |
| (+) Land Non-Homesite Value: | + | $58,290 | |
| (+) Curr Use (HS): | + | $0 | $0 |
| (+) Curr Use (NHS): | + | $0 | $0 |
| | | -------------------------- | |
| (=) Market Value: | = | $964,500 | |
| (–) Productivity Loss: | – | $0 | |
| | | -------------------------- | |
| (=) Subtotal: | = | $964,500 | |
| (+) Senior Appraised Value: | + | $0 | |
| (+) Non-Senior Appraised Value: | + | $964,500 | |
| | | -------------------------- | |
| (=) Total Appraised Value: | = | $964,500 | |
| (–) Senior Exemption Loss: | – | $0 | |
| (–) Exemption Loss: | – | $0 | |
| | | -------------------------- | |
| (=) Taxable Value: | = | $964,500 | |
Taxing Jurisdiction
| Owner: | OTLEY CASEY DESKINS & CHRISTY ALISE | | |
| % Ownership: | 100.0000000000% | | |
| Total Value: | $964,500 | | |
| Tax Area: | 1 - OL-140-F |
| CERFD | CURRENT EXPENSE REFUND 010 | 0.0000000000 | $964,500 | $964,500 | $0.00 | | |
| CURREXP | CURRENT EXPENSE 010 | 1.0175366760 | $964,500 | $964,500 | $981.41 | | |
| HUMNSERV | HUMAN SERVICES 119 | 0.0250000000 | $964,500 | $964,500 | $24.11 | | |
| SLDREL | SOLDIERS RELIEF 121 | 0.0155990005 | $964,500 | $964,500 | $15.05 | | |
| EMERGSER | EMS 147 | 0.3792580840 | $964,500 | $964,500 | $365.79 | | |
| EMSRFD | EMS REFUND 147 | 0.0000000000 | $964,500 | $964,500 | $0.00 | | |
| PORTRFD | PORT REFUND 640 | 0.0000000000 | $964,500 | $964,500 | $0.00 | | |
| PORTWWGEN | PORT OF WW 640 | 0.2460186015 | $964,500 | $964,500 | $237.28 | | |
| SD140BOND | SD #140 BOND 764 | 0.8342371393 | $964,500 | $964,500 | $804.62 | | |
| SD140GEN | SD #140 GENERAL 760 | 2.0646500647 | $964,500 | $964,500 | $1,991.35 | | |
| ST2 | STATE SCHOOL PART 2 600 | 0.8131451643 | $964,500 | $964,500 | $784.28 | | |
| STATESCHL | STATE SCHOOL 600 | 1.5158548041 | $964,500 | $964,500 | $1,462.04 | | |
| STREFUND | STATE REFUND LEVY 603 | 0.0000000000 | $964,500 | $964,500 | $0.00 | | |
| CWWBOND | C OF WW BOND 643 | 0.2760494372 | $964,500 | $964,500 | $266.25 | | |
| CWWGEN | CITY OF WW 631 | 1.6100204973 | $964,500 | $964,500 | $1,552.86 | | |
| CWWRFD | CITY OF WALLA WALLA REFUND 631 | 0.0000000000 | $964,500 | $964,500 | $0.00 | | |
| | Total Tax Rate: | 8.7973694689 | | | | | |
| | | | | Taxes w/Current Exemptions: | $8,485.04 | | |
| | | | | Taxes w/o Exemptions: | $8,485.04 | | |
Improvement / Building
| Improvement #1: | RESIDENTIAL | State Code: | 11 | 2176.0 sqft | Value: | $906,210 |
| Exterior Wall: | SHINGLE | Heating/Cooling: | WARM & COOLED AIR | | Number of Bathrooms: | 3.5 | Number of Bedrooms: | 4 | | Plumbing: | 17 | Roof Covering: | COMP SHINGLE |
|
| | Type | Description | Class CD | Sub Class CD | Year Built | Area |
| | MA | Main Area | 4 | 55 | 1905 | 2176.0 |
| | UPFL | Upper Floor (included in main area) | 4 | 55 | 1905 | 1018.0 |
| | SI1 | SITE IMPROVEMENT | 4 | 55 | 1905 | 7.0 |
| | BASE | BASEMENT | 4 | 55 | 1905 | 990.0 |
| | BPF | BASEMENT -PARTITIONED FINISH | 4 | 55 | 2018 | 990.0 |
| | OPS | OPEN PORCH W/STEPS | 4 | 55 | 2018 | 56.0 |
| | RCD | WOOD DECK W/ROOF, CEILED | 4 | 55 | 1905 | 224.0 |
| | DTG | Detached Garage | 4 | 55 | 2018 | 504.0 |
| | GFP | GAS FIREPLACE | 4 | 55 | 1905 | 1.0 |
Sketch
Property Image
Land
| 1 | RES 1 | Converted: Residential | 0.1846 | 8040.00 | 0.00 | 0.00 | 1.00 | $58,290 | $0 |
Roll Value History
| 2026 | N/A | N/A | N/A | N/A | N/A |
| 2025 | $855,400 | $88,440 | $0 | $943,840 | $943,840 |
| 2024 | $855,400 | $88,440 | $0 | $943,840 | $943,840 |
| 2023 | $906,210 | $58,290 | $0 | $964,500 | $964,500 |
| 2022 | $755,180 | $58,290 | $0 | $813,470 | $813,470 |
| 2021 | $656,680 | $58,290 | $0 | $714,970 | $714,970 |
| 2020 | $525,340 | $58,290 | $0 | $583,630 | $583,630 |
| 2019 | $525,340 | $58,290 | $0 | $583,630 | $583,630 |
| 2018 | $187,450 | $58,290 | $0 | $245,740 | $245,740 |
| 2017 | $131,340 | $32,200 | $0 | $163,540 | $163,540 |
| 2016 | $119,400 | $32,200 | $0 | $151,600 | $151,600 |
| 2015 | $119,400 | $32,200 | $0 | $151,600 | $151,600 |
| 2014 | $119,400 | $32,200 | $0 | $151,600 | $151,600 |
| 2013 | $119,400 | $32,200 | $0 | $151,600 | $151,600 |
| 2012 | $119,400 | $32,200 | $0 | $0 | $0 |
| 2011 | $119,400 | $32,200 | $0 | $0 | $0 |
| 2010 | $119,400 | $32,200 | $0 | $0 | $0 |
| 2009 | $136,200 | $32,200 | $0 | $0 | $0 |
| 2008 | $122,900 | $45,500 | $0 | $0 | $0 |
| 2007 | $99,900 | $16,100 | $0 | $0 | $0 |
Deed and Sales History
| 1 | 06/15/2022 | SWD | STATUTORY WARRANTY DEED | HANSEN ROBERT & JANIE | OTLEY CASEY DESKINS & CHRISTY ALISE | | | $1,070,000.00 | 144145 | 2022-05066 |
| 2 | 11/01/2018 | SWD | STATUTORY WARRANTY DEED | DAVIS KEVIN | HANSEN ROBERT & JANIE | | | $689,000.00 | 135850 | 2018-09068 |
| 3 | 09/08/2017 | QCD | QUIT CLAIM DEED | DAVIS RENAE L | DAVIS KEVIN | | | | 133174 | 2017-07058 |
| 4 | 09/08/2017 | SWD | STATUTORY WARRANTY DEED | PEACOCK HARVEY L & ROSEMARY T | DAVIS KEVIN | | | $150,000.00 | 133173 | 2017-07057 |
| 5 | 06/01/1967 | WARRANTY D | WARRANTY DEED | | | | | $12,000.00 | 0 | 3220-486294 |
Payout Agreement
| No payout information available.. |