Property
Account |
| Property ID: | 29868 | Abbreviated Legal Description: | 36 07 16 TAX 82 |
| Parcel Number: | 360716340045 | Agent Code: | |
| Type: | Real | | |
| Tax Area: | 5 - OL-140 | Land Use Code | 11 |
| Open Space: | N | DFL | N |
| Historic Property: | N | Remodel Property: | N |
| Multi-Family Redevelopment: | N | | |
| Township: | 7 | Section: | 16 |
| Range: | 36 |
Location |
| Address: | 1546 J ST WA 99362 | Mapsco: | |
| Neighborhood: | A-SFR | Map ID: | |
| Neighborhood CD: | 513011 |
Owner |
| Name: | LUSTER TERESA M | Owner ID: | 70921 |
| Mailing Address: | 1546 J ST WALLA WALLA, WA 99362 | % Ownership: | 100.0000000000% |
| | | Exemptions: | |
Taxes and Assessment Details
Values
| (+) Improvement Homesite Value: | + | $245,360 | |
| (+) Improvement Non-Homesite Value: | + | $0 | |
| (+) Land Homesite Value: | + | $43,560 | |
| (+) Land Non-Homesite Value: | + | $0 | |
| (+) Curr Use (HS): | + | $0 | $0 |
| (+) Curr Use (NHS): | + | $0 | $0 |
| | | -------------------------- | |
| (=) Market Value: | = | $288,920 | |
| (–) Productivity Loss: | – | $0 | |
| | | -------------------------- | |
| (=) Subtotal: | = | $288,920 | |
| (+) Senior Appraised Value: | + | $0 | |
| (+) Non-Senior Appraised Value: | + | $288,920 | |
| | | -------------------------- | |
| (=) Total Appraised Value: | = | $288,920 | |
| (–) Senior Exemption Loss: | – | $0 | |
| (–) Exemption Loss: | – | $0 | |
| | | -------------------------- | |
| (=) Taxable Value: | = | $288,920 | |
Taxing Jurisdiction
| Owner: | LUSTER TERESA M | | |
| % Ownership: | 100.0000000000% | | |
| Total Value: | $288,920 | | |
| Tax Area: | 5 - OL-140 |
| CERFD | CURRENT EXPENSE REFUND 010 | 0.0000000000 | $288,920 | $288,920 | $0.00 | | |
| CURREXP | CURRENT EXPENSE 010 | 1.0175366760 | $288,920 | $288,920 | $293.99 | | |
| HUMNSERV | HUMAN SERVICES 119 | 0.0250000000 | $288,920 | $288,920 | $7.22 | | |
| SLDREL | SOLDIERS RELIEF 121 | 0.0155990005 | $288,920 | $288,920 | $4.51 | | |
| EMERGSER | EMS 147 | 0.3792580840 | $288,920 | $288,920 | $109.58 | | |
| EMSRFD | EMS REFUND 147 | 0.0000000000 | $288,920 | $288,920 | $0.00 | | |
| PORTRFD | PORT REFUND 640 | 0.0000000000 | $288,920 | $288,920 | $0.00 | | |
| PORTWWGEN | PORT OF WW 640 | 0.2460186015 | $288,920 | $288,920 | $71.08 | | |
| SD140BOND | SD #140 BOND 764 | 0.8342371393 | $288,920 | $288,920 | $241.03 | | |
| SD140GEN | SD #140 GENERAL 760 | 2.0646500647 | $288,920 | $288,920 | $596.52 | | |
| ST2 | STATE SCHOOL PART 2 600 | 0.8131451643 | $288,920 | $288,920 | $234.93 | | |
| STATESCHL | STATE SCHOOL 600 | 1.5158548041 | $288,920 | $288,920 | $437.96 | | |
| STREFUND | STATE REFUND LEVY 603 | 0.0000000000 | $288,920 | $288,920 | $0.00 | | |
| CWWBOND | C OF WW BOND 643 | 0.2760494372 | $288,920 | $288,920 | $79.76 | | |
| CWWGEN | CITY OF WW 631 | 1.6100204973 | $288,920 | $288,920 | $465.17 | | |
| CWWRFD | CITY OF WALLA WALLA REFUND 631 | 0.0000000000 | $288,920 | $288,920 | $0.00 | | |
| | Total Tax Rate: | 8.7973694689 | | | | | |
| | | | | Taxes w/Current Exemptions: | $2,541.75 | | |
| | | | | Taxes w/o Exemptions: | $2,541.75 | | |
Improvement / Building
| Improvement #1: | RESIDENTIAL | State Code: | 11 | 1112.0 sqft | Value: | $245,360 |
| Exterior Wall: | SIDING | Heating/Cooling: | WARM & COOLED AIR | | Number of Bathrooms: | 1 | Number of Bedrooms: | 2 | | Plumbing: | 6 | Roof Covering: | COMP SHINGLE |
|
| | Type | Description | Class CD | Sub Class CD | Year Built | Area |
| | MA | Main Area | 1 | 30 | 1950 | 1112.0 |
| | SI1 | SITE IMPROVEMENT | 1 | 30 | 1950 | 2.0 |
| | PRC | PORCH W STEPS, ROOF,CEILED | 1 | 30 | 1950 | 20.0 |
| | SWP | Solid Wall Porch | 1 | 30 | 1950 | 368.0 |
| | ATG | Attached Garage | 1 | 30 | 1950 | 240.0 |
Sketch
Property Image
Land
| 1 | RES 1 | Converted: Residential | 0.1600 | 6969.00 | 0.00 | 0.00 | 1.00 | $43,560 | $0 |
Roll Value History
| 2026 | N/A | N/A | N/A | N/A | N/A |
| 2025 | $221,160 | $69,690 | $0 | $290,850 | $290,850 |
| 2024 | $221,160 | $69,690 | $0 | $290,850 | $290,850 |
| 2023 | $245,360 | $43,560 | $0 | $288,920 | $288,920 |
| 2022 | $245,360 | $43,560 | $0 | $288,920 | $288,920 |
| 2021 | $111,860 | $43,560 | $0 | $155,420 | $155,420 |
| 2020 | $79,900 | $43,560 | $0 | $123,460 | $123,460 |
| 2019 | $79,900 | $43,560 | $0 | $123,460 | $123,460 |
| 2018 | $79,900 | $43,560 | $0 | $123,460 | $123,460 |
| 2017 | $95,290 | $27,900 | $0 | $123,190 | $123,190 |
| 2016 | $86,630 | $27,900 | $0 | $114,530 | $114,530 |
| 2015 | $75,330 | $27,900 | $0 | $103,230 | $103,230 |
| 2014 | $83,700 | $27,900 | $0 | $111,600 | $111,600 |
| 2013 | $83,700 | $27,900 | $0 | $111,600 | $111,600 |
| 2012 | $83,700 | $27,900 | $0 | $0 | $0 |
| 2011 | $61,400 | $27,900 | $0 | $0 | $0 |
| 2010 | $57,100 | $27,900 | $0 | $0 | $0 |
| 2009 | $66,500 | $27,900 | $0 | $0 | $0 |
| 2008 | $66,500 | $27,900 | $0 | $0 | $0 |
| 2007 | $66,500 | $27,900 | $0 | $0 | $0 |
Deed and Sales History
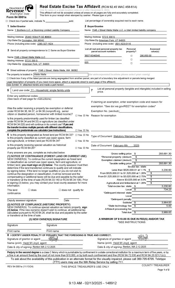
| 1 | 02/13/2025 | SWD | STATUTORY WARRANTY DEED | Y BROTHERS LLC | 1546 J STREET WALLA WALLA LLC | | | $293,691.00 | 148912 | 2025-00728 |
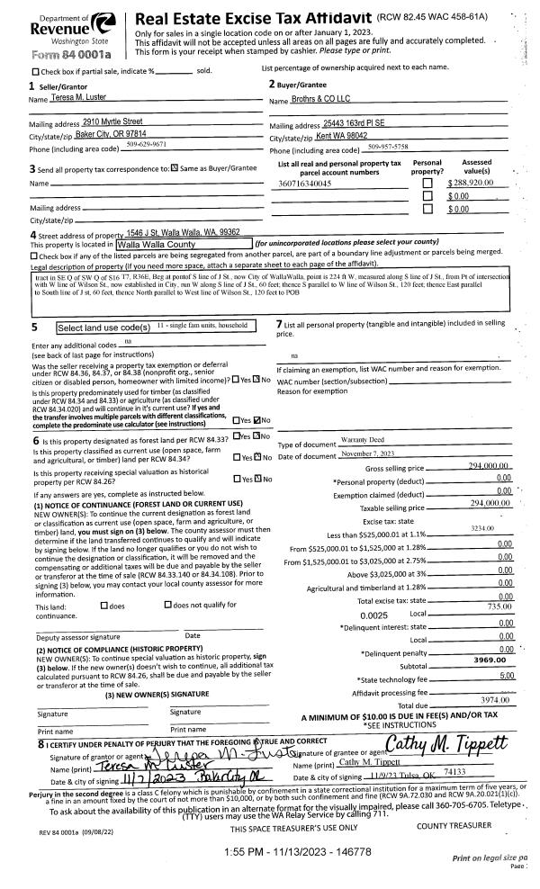
| 2 | 11/14/2023 | WARRANTY D | WARRANTY DEED | LUSTER TERESA M | Y BROTHERS LLC | | | $294,000.00 | 146778 | 2023-06639 |
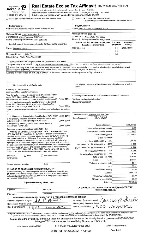
| 3 | 01/05/2022 | SWD | STATUTORY WARRANTY DEED | SMITH CODY & MEGAN | LUSTER TERESA M | | | $295,000.00 | 143190 | 2022-00157 |
| 4 | 10/30/2020 | SWP | Special Warranty Deed | US BANK TRUST NA | SMITH CODY & MEGAN | | | $145,000.00 | 140226 | 2020-11376 |
| 5 | 08/03/2020 | TRUSTEES D | TRUSTEE'S DEED | QUALITY LOAN SERVICE CORP OF WA | US BANK TRUST NA | | | $133,212.00 | 139652 | 2020-07638 |
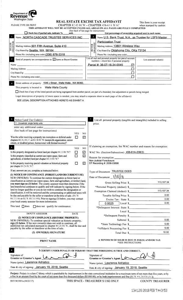
| 6 | 02/07/2018 | TRUSTEES D | TRUSTEE'S DEED | PAUL STEVE R | US BANK TRUST NA | | | $113,107.00 | 134128 | 2018-01091 |
| 7 | 05/02/1984 | WARRANTY D | WARRANTY DEED | | | | | $42,000.00 | 0 | 1939-108637 |
Payout Agreement
| No payout information available.. |