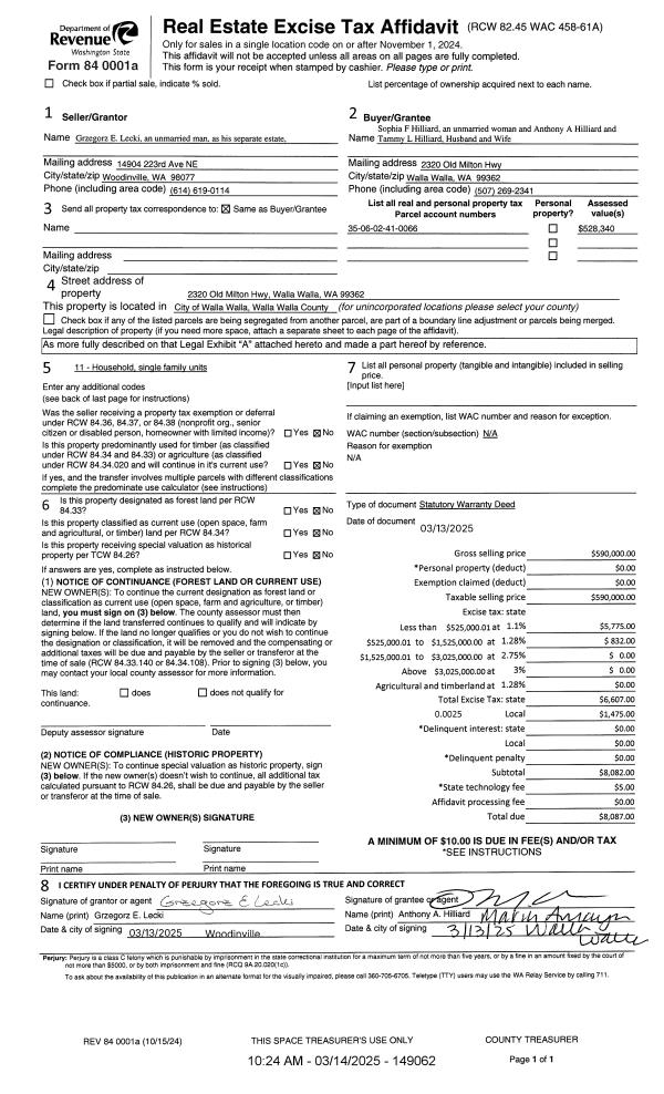
Property
Account |
| Property ID: | 29867 | Abbreviated Legal Description: | 2-6-35 SLY PT TAX 33 LESS RD ON S |
| Parcel Number: | 350602410066 | Agent Code: | |
| Type: | Real | | |
| Tax Area: | 311 - 250-4 | Land Use Code | 11 |
| Open Space: | N | DFL | N |
| Historic Property: | N | Remodel Property: | N |
| Multi-Family Redevelopment: | N | | |
| Township: | 6 | Section: | 2 |
| Range: | 35 |
Location |
| Address: | 2320 OLD MILTON HWY WA 99324 | Mapsco: | |
| Neighborhood: | VG SFR RURAL | Map ID: | |
| Neighborhood CD: | 215013 |
Owner |
| Name: | LECKI GRZEGORZ E & ANNA MATWIJOW | Owner ID: | 66809 |
| Mailing Address: | 2320 OLD MILTON HWY WALLA WALLA, WA 99362 | % Ownership: | 100.0000000000% |
| | | Exemptions: | |
Taxes and Assessment Details
Property Tax Information as of
02/21/2026
Click on "Statement Details" to expand or collapse a tax statement.
* Please enter a valid date ** Please enter a valid date *
Statement Details |
| | TOTAL: | $0.00 | $0.00 | $0.00 | $0.00 | $0.00 | $0.00 |
|
| | $0.00 | $0.00 | $0.00 | $0.00 | $0.00 | $0.00 |
Values
| (+) Improvement Homesite Value: | + | $0 | |
| (+) Improvement Non-Homesite Value: | + | $288,600 | |
| (+) Land Homesite Value: | + | $0 | |
| (+) Land Non-Homesite Value: | + | $153,160 | |
| (+) Curr Use (HS): | + | $0 | $0 |
| (+) Curr Use (NHS): | + | $0 | $0 |
| | | -------------------------- | |
| (=) Market Value: | = | $441,760 | |
| (–) Productivity Loss: | – | $0 | |
| | | -------------------------- | |
| (=) Subtotal: | = | $441,760 | |
| (+) Senior Appraised Value: | + | $0 | |
| (+) Non-Senior Appraised Value: | + | $441,760 | |
| | | -------------------------- | |
| (=) Total Appraised Value: | = | $441,760 | |
| (–) Senior Exemption Loss: | – | $0 | |
| (–) Exemption Loss: | – | $0 | |
| | | -------------------------- | |
| (=) Taxable Value: | = | $441,760 | |
Taxing Jurisdiction
| Owner: | LECKI GRZEGORZ E & ANNA MATWIJOW | | |
| % Ownership: | 100.0000000000% | | |
| Total Value: | $441,760 | | |
| Tax Area: | 311 - 250-4 |
| CERFD | CURRENT EXPENSE REFUND 010 | 0.0000000000 | $441,760 | $441,760 | $0.00 | | |
| CURREXP | CURRENT EXPENSE 010 | 1.0175366760 | $441,760 | $441,760 | $449.51 | | |
| HUMNSERV | HUMAN SERVICES 119 | 0.0250000000 | $441,760 | $441,760 | $11.04 | | |
| SLDREL | SOLDIERS RELIEF 121 | 0.0155990005 | $441,760 | $441,760 | $6.89 | | |
| EMERGSER | EMS 147 | 0.3792580840 | $441,760 | $441,760 | $167.54 | | |
| EMSRFD | EMS REFUND 147 | 0.0000000000 | $441,760 | $441,760 | $0.00 | | |
| FD4EXP | FD #4 EXPENSE 686 | 0.8836993059 | $441,760 | $441,760 | $390.38 | | |
| RLBRFD | RURAL LIBRARY REFUND 623 | 0.0000000000 | $441,760 | $441,760 | $0.00 | | |
| RURALLIB | RURAL LIBRARY 623 | 0.3710609029 | $441,760 | $441,760 | $163.92 | | |
| PORTRFD | PORT REFUND 640 | 0.0000000000 | $441,760 | $441,760 | $0.00 | | |
| PORTWWGEN | PORT OF WW 640 | 0.2460186015 | $441,760 | $441,760 | $108.68 | | |
| SD250BOND | SD #250 BOND 773 | 1.4560608159 | $441,760 | $441,760 | $643.23 | | |
| SD250GEN | SD #250 GENERAL 770 | 2.3880724087 | $441,760 | $441,760 | $1,054.95 | | |
| ST2 | STATE SCHOOL PART 2 600 | 0.8131451643 | $441,760 | $441,760 | $359.22 | | |
| STATESCHL | STATE SCHOOL 600 | 1.5158548041 | $441,760 | $441,760 | $669.64 | | |
| STREFUND | STATE REFUND LEVY 603 | 0.0000000000 | $441,760 | $441,760 | $0.00 | | |
| COROAD | COUNTY ROAD 115 | 1.6549953990 | $441,760 | $441,760 | $731.11 | | |
| CRPRD | COUNTY ROAD REFUND 115 | 0.0000000000 | $441,760 | $441,760 | $0.00 | | |
| | Total Tax Rate: | 10.7663011628 | | | | | |
| | | | | Taxes w/Current Exemptions: | $4,756.11 | | |
| | | | | Taxes w/o Exemptions: | $4,756.11 | | |
Improvement / Building
| Improvement #1: | RESIDENTIAL | State Code: | 11 | 1770.0 sqft | Value: | $288,600 |
| Exterior Wall: | PLYWOOD | Heating/Cooling: | WARM & COOLED AIR | | Number of Bathrooms: | 1.5 | Number of Bedrooms: | 2 | | Plumbing: | 9 | Roof Covering: | COMP SHINGLE |
|
| | Type | Description | Class CD | Sub Class CD | Year Built | Area |
| | MA | Main Area | 1 | 35 | 1970 | 1770.0 |
| | CPC | COVERED CARPORT/PATIO | 1 | 35 | 1970 | 840.0 |
| | SI1 | SITE IMPROVEMENT | 1 | 35 | 1970 | 3.0 |
| | WDR | WOOD DECK W/ROOF | 1 | 35 | 1970 | 108.0 |
| | OPS | OPEN PORCH W/STEPS | 1 | 35 | 1970 | 101.0 |
| | S1F | Single One Story Fireplace | 1 | 35 | 1970 | 1.0 |
Sketch
Property Image
Land
| 1 | RES 1 | Converted: Residential | 1.3000 | 0.00 | 0.00 | 0.00 | 1.00 | $153,160 | $0 |
Roll Value History
| 2026 | N/A | N/A | N/A | N/A | N/A |
| 2025 | $375,180 | $153,160 | $0 | $528,340 | $528,340 |
| 2024 | $375,180 | $153,160 | $0 | $528,340 | $528,340 |
| 2023 | $288,600 | $153,160 | $0 | $441,760 | $441,760 |
| 2022 | $262,360 | $153,160 | $0 | $415,520 | $415,520 |
| 2021 | $154,330 | $153,160 | $0 | $307,490 | $307,490 |
| 2020 | $275,200 | $91,200 | $0 | $366,400 | $366,400 |
| 2019 | $275,200 | $91,200 | $0 | $366,400 | $74,440 |
| 2018 | $196,570 | $91,200 | $0 | $287,770 | $74,440 |
| 2017 | $196,570 | $91,200 | $0 | $287,770 | $74,440 |
| 2016 | $178,700 | $91,200 | $0 | $269,900 | $74,440 |
| 2015 | $178,700 | $91,200 | $0 | $269,900 | $74,440 |
| 2014 | $178,700 | $91,200 | $0 | $269,900 | $120,965 |
| 2013 | $178,700 | $91,200 | $0 | $269,900 | $120,965 |
| 2012 | $178,700 | $91,200 | $0 | $0 | $0 |
| 2011 | $148,700 | $121,200 | $0 | $0 | $0 |
| 2010 | $148,700 | $121,200 | $0 | $0 | $0 |
| 2009 | $223,600 | $46,200 | $0 | $0 | $0 |
| 2008 | $139,900 | $46,200 | $0 | $0 | $0 |
| 2007 | $139,900 | $46,200 | $0 | $0 | $0 |
Deed and Sales History
| 1 | 03/14/2025 | SWD | STATUTORY WARRANTY DEED | LECKI GRZEGORZ | HILLIARD SOPHIA F | | | $590,000.00 | 149062 | 2025-01339 |
| 2 | 10/03/2023 | QCD | QUIT CLAIM DEED | LECKI GRZEGORZ E & ANNA MATWIJOW | LECKI GRZEGORZ | | | | 146552 | 2023-05814 |
| 3 | 02/28/2020 | SWD | STATUTORY WARRANTY DEED | MAURA BENIGNO & RUTH E | LECKI GRZEGORZ E & ANNA MATWIJOW | | | $316,000.00 | 138727 | 2020-01925 |
| 4 | 07/27/2000 | WARRANTY D | WARRANTY DEED | | | | | $159,900.00 | 95509 | 3010-007141 |
Payout Agreement
| No payout information available.. |