Property
Account |
| Property ID: | 29865 | Abbreviated Legal Description: | 35-7-36 TAX 5B |
| Parcel Number: | 350736210009 | Agent Code: | |
| Type: | Real | | |
| Tax Area: | 75 - CP 250 | Land Use Code | 11 |
| Open Space: | N | DFL | N |
| Historic Property: | N | Remodel Property: | N |
| Multi-Family Redevelopment: | N | | |
| Township: | 7 | Section: | 36 |
| Range: | 35 |
Location |
| Address: | 423 SE 4TH ST WA 99324 | Mapsco: | |
| Neighborhood: | A SFR | Map ID: | |
| Neighborhood CD: | 113011 |
Owner |
| Name: | SANDERSON ERIKA LYNN | Owner ID: | 65564 |
| Mailing Address: | 423 SE 4TH ST COLLEGE PLACE, WA 99324 | % Ownership: | 100.0000000000% |
| | | Exemptions: | |
Taxes and Assessment Details
Property Tax Information as of
02/21/2026
Click on "Statement Details" to expand or collapse a tax statement.
* Please enter a valid date ** Please enter a valid date *
Statement Details |
| | TOTAL: | $0.00 | $0.00 | $0.00 | $0.00 | $0.00 | $0.00 |
|
| | $0.00 | $0.00 | $0.00 | $0.00 | $0.00 | $0.00 |
Values
| (+) Improvement Homesite Value: | + | $0 | |
| (+) Improvement Non-Homesite Value: | + | $265,510 | |
| (+) Land Homesite Value: | + | $0 | |
| (+) Land Non-Homesite Value: | + | $58,810 | |
| (+) Curr Use (HS): | + | $0 | $0 |
| (+) Curr Use (NHS): | + | $0 | $0 |
| | | -------------------------- | |
| (=) Market Value: | = | $324,320 | |
| (–) Productivity Loss: | – | $0 | |
| | | -------------------------- | |
| (=) Subtotal: | = | $324,320 | |
| (+) Senior Appraised Value: | + | $0 | |
| (+) Non-Senior Appraised Value: | + | $324,320 | |
| | | -------------------------- | |
| (=) Total Appraised Value: | = | $324,320 | |
| (–) Senior Exemption Loss: | – | $0 | |
| (–) Exemption Loss: | – | $0 | |
| | | -------------------------- | |
| (=) Taxable Value: | = | $324,320 | |
Taxing Jurisdiction
| Owner: | SANDERSON ERIKA LYNN | | |
| % Ownership: | 100.0000000000% | | |
| Total Value: | $324,320 | | |
| Tax Area: | 75 - CP 250 |
| CERFD | CURRENT EXPENSE REFUND 010 | 0.0000000000 | $324,320 | $324,320 | $0.00 | | |
| CURREXP | CURRENT EXPENSE 010 | 1.0175366760 | $324,320 | $324,320 | $330.01 | | |
| HUMNSERV | HUMAN SERVICES 119 | 0.0250000000 | $324,320 | $324,320 | $8.11 | | |
| SLDREL | SOLDIERS RELIEF 121 | 0.0155990005 | $324,320 | $324,320 | $5.06 | | |
| COLLPLBOND | C OF CP BOND 644 | 0.4374241808 | $324,320 | $324,320 | $141.87 | | |
| COLLPLGEN | CITY OF CP 632 | 1.4453819216 | $324,320 | $324,320 | $468.77 | | |
| EMERGSER | EMS 147 | 0.3792580840 | $324,320 | $324,320 | $123.00 | | |
| EMSRFD | EMS REFUND 147 | 0.0000000000 | $324,320 | $324,320 | $0.00 | | |
| RURALLIB | RURAL LIBRARY 623 | 0.3710609029 | $324,320 | $324,320 | $120.34 | | |
| PORTRFD | PORT REFUND 640 | 0.0000000000 | $324,320 | $324,320 | $0.00 | | |
| PORTWWGEN | PORT OF WW 640 | 0.2460186015 | $324,320 | $324,320 | $79.79 | | |
| SD250BOND | SD #250 BOND 773 | 1.4560608159 | $324,320 | $324,320 | $472.23 | | |
| SD250GEN | SD #250 GENERAL 770 | 2.3880724087 | $324,320 | $324,320 | $774.50 | | |
| ST2 | STATE SCHOOL PART 2 600 | 0.8131451643 | $324,320 | $324,320 | $263.72 | | |
| STATESCHL | STATE SCHOOL 600 | 1.5158548041 | $324,320 | $324,320 | $491.62 | | |
| STREFUND | STATE REFUND LEVY 603 | 0.0000000000 | $324,320 | $324,320 | $0.00 | | |
| | Total Tax Rate: | 10.1104125603 | | | | | |
| | | | | Taxes w/Current Exemptions: | $3,279.02 | | |
| | | | | Taxes w/o Exemptions: | $3,279.02 | | |
Improvement / Building
| Improvement #1: | RESIDENTIAL | State Code: | 11 | 1380.0 sqft | Value: | $265,510 |
| Exterior Wall: | VINYL | Heating/Cooling: | FORCED AIR | | Number of Bathrooms: | 1 | Number of Bedrooms: | 3 | | Plumbing: | 6 | Roof Covering: | COMP SHINGLE |
|
| | Type | Description | Class CD | Sub Class CD | Year Built | Area |
| | MA | Main Area | 1 | 30 | 1957 | 1380.0 |
| | SI1 | SITE IMPROVEMENT | 1 | 30 | 1957 | 1.0 |
| | S1F | Single One Story Fireplace | 1 | 30 | 1957 | 1.0 |
| | TOOL | TOOL SHED | 1 | 30 | 1957 | 64.0 |
| | CPCS | CARPORT/SHED OR FLAT ROOF | 1 | 30 | 1957 | 405.0 |
Sketch
Property Image
Land
| 1 | RES 1 | Converted: Residential | 0.2000 | 8712.00 | 0.00 | 0.00 | 1.00 | $58,810 | $0 |
Roll Value History
| 2026 | N/A | N/A | N/A | N/A | N/A |
| 2025 | $252,230 | $87,120 | $0 | $339,350 | $339,350 |
| 2024 | $265,510 | $58,810 | $0 | $324,320 | $324,320 |
| 2023 | $265,510 | $58,810 | $0 | $324,320 | $324,320 |
| 2022 | $265,510 | $58,810 | $0 | $324,320 | $324,320 |
| 2021 | $189,650 | $58,810 | $0 | $248,460 | $248,460 |
| 2020 | $140,480 | $58,810 | $0 | $199,290 | $199,290 |
| 2019 | $153,290 | $46,000 | $0 | $199,290 | $199,290 |
| 2018 | $139,360 | $46,000 | $0 | $185,360 | $40,280 |
| 2017 | $107,200 | $46,000 | $0 | $153,200 | $40,280 |
| 2016 | $93,210 | $46,000 | $0 | $139,210 | $40,280 |
| 2015 | $84,740 | $46,000 | $0 | $130,740 | $40,280 |
| 2014 | $89,200 | $46,000 | $0 | $135,200 | $50,700 |
| 2013 | $89,200 | $46,000 | $0 | $135,200 | $50,700 |
| 2012 | $89,200 | $46,000 | $0 | $0 | $0 |
| 2011 | $89,200 | $46,000 | $0 | $0 | $0 |
| 2010 | $82,800 | $46,000 | $0 | $0 | $0 |
| 2009 | $97,100 | $46,000 | $0 | $0 | $0 |
| 2008 | $77,100 | $23,600 | $0 | $0 | $0 |
| 2007 | $77,100 | $23,600 | $0 | $0 | $0 |
Deed and Sales History
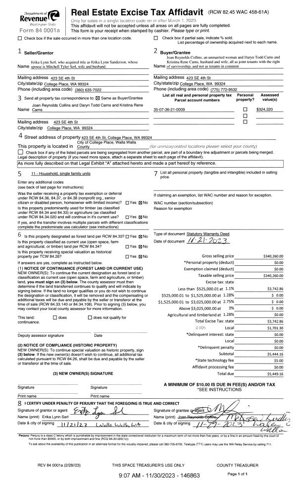
| 1 | 11/30/2023 | SWD | STATUTORY WARRANTY DEED | SANDERSON ERIKA LYNN | COLLINS JOAN REYNOLDS | | | $340,260.00 | 146863 | 2023-06910 |
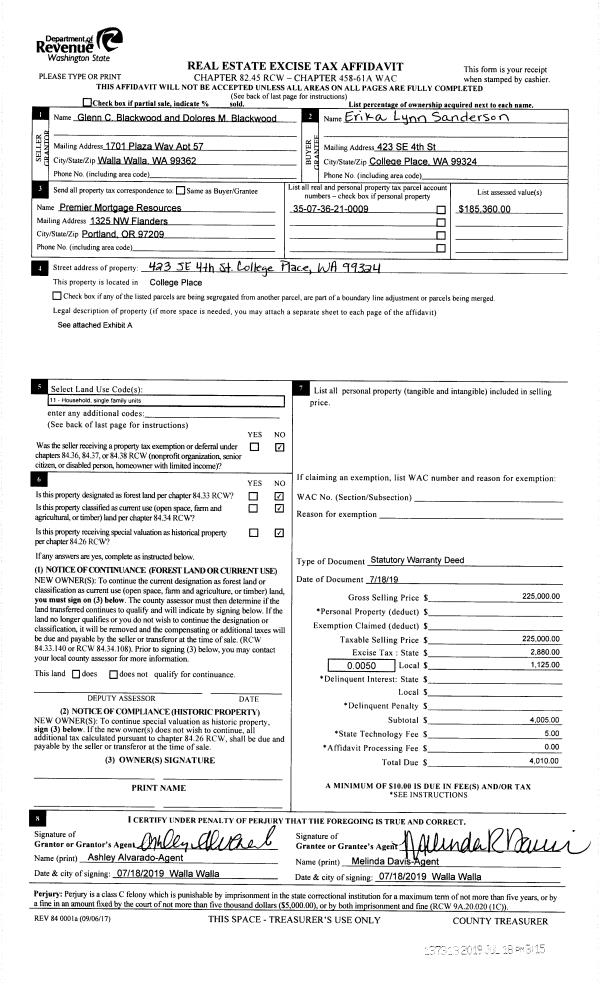
| 2 | 07/18/2019 | SWD | STATUTORY WARRANTY DEED | BLACKWOOD GLENN C & DOLORES M | SANDERSON ERIKA LYNN | | | $225,000.00 | 137313 | 2019-05228 |
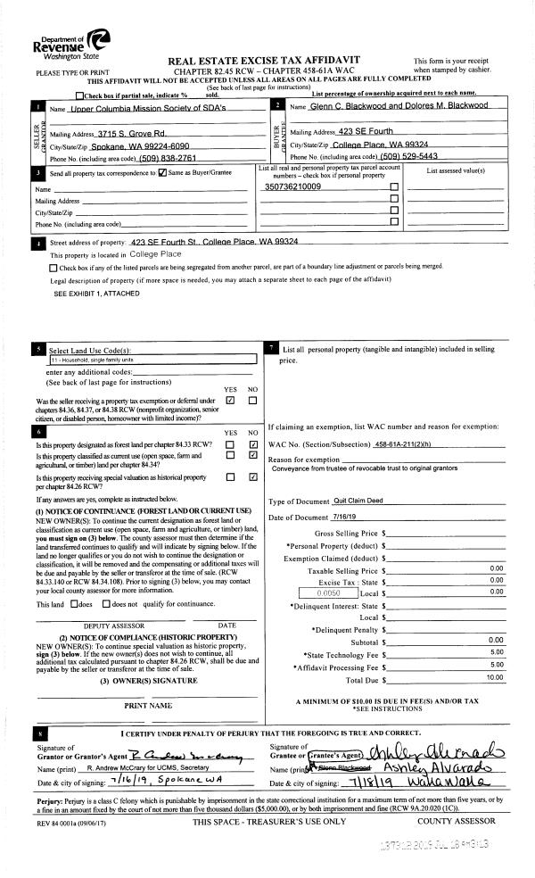
| 3 | 07/18/2019 | QCD | QUIT CLAIM DEED | BLACKWOOD GLENN C UCMS | BLACKWOOD GLENN C & DOLORES M | | | $0.00 | 137312 | 2019-05227 |
| 4 | 08/06/1976 | QCD | QUIT CLAIM DEED | | | | | $17,250.00 | 0 | 4505-56572 |
Payout Agreement
| No payout information available.. |