Property
Account |
| Property ID: | 29856 | Abbreviated Legal Description: | 25-7-35 TAX 105 |
| Parcel Number: | 350725240044 | Agent Code: | |
| Type: | Real | | |
| Tax Area: | 313 - 250-F-4 | Land Use Code | 11 |
| Open Space: | N | DFL | N |
| Historic Property: | N | Remodel Property: | N |
| Multi-Family Redevelopment: | N | | |
| Township: | 7 | Section: | 25 |
| Range: | 35 |
Location |
| Address: | 52 WALLULA AVE WA 99324 | Mapsco: | |
| Neighborhood: | A SFR Rural/City Infl | Map ID: | |
| Neighborhood CD: | 313012 |
Owner |
| Name: | JOHNSTON JESSE & PATRICIA | Owner ID: | 62469 |
| Mailing Address: | 52 WALLULA AVE WALLA WALLA, WA 99362 | % Ownership: | 100.0000000000% |
| | | Exemptions: | |
Taxes and Assessment Details
Values
| (+) Improvement Homesite Value: | + | $0 | |
| (+) Improvement Non-Homesite Value: | + | $262,080 | |
| (+) Land Homesite Value: | + | $0 | |
| (+) Land Non-Homesite Value: | + | $64,210 | |
| (+) Curr Use (HS): | + | $0 | $0 |
| (+) Curr Use (NHS): | + | $0 | $0 |
| | | -------------------------- | |
| (=) Market Value: | = | $326,290 | |
| (–) Productivity Loss: | – | $0 | |
| | | -------------------------- | |
| (=) Subtotal: | = | $326,290 | |
| (+) Senior Appraised Value: | + | $0 | |
| (+) Non-Senior Appraised Value: | + | $326,290 | |
| | | -------------------------- | |
| (=) Total Appraised Value: | = | $326,290 | |
| (–) Senior Exemption Loss: | – | $0 | |
| (–) Exemption Loss: | – | $0 | |
| | | -------------------------- | |
| (=) Taxable Value: | = | $326,290 | |
Taxing Jurisdiction
| Owner: | JOHNSTON JESSE & PATRICIA | | |
| % Ownership: | 100.0000000000% | | |
| Total Value: | $326,290 | | |
| Tax Area: | 313 - 250-F-4 |
| CERFD | CURRENT EXPENSE REFUND 010 | 0.0000000000 | $326,290 | $326,290 | $0.00 | | |
| CURREXP | CURRENT EXPENSE 010 | 1.0175366760 | $326,290 | $326,290 | $332.01 | | |
| HUMNSERV | HUMAN SERVICES 119 | 0.0250000000 | $326,290 | $326,290 | $8.16 | | |
| SLDREL | SOLDIERS RELIEF 121 | 0.0155990005 | $326,290 | $326,290 | $5.09 | | |
| EMERGSER | EMS 147 | 0.3792580840 | $326,290 | $326,290 | $123.75 | | |
| EMSRFD | EMS REFUND 147 | 0.0000000000 | $326,290 | $326,290 | $0.00 | | |
| FD4EXP | FD #4 EXPENSE 686 | 0.8836993059 | $326,290 | $326,290 | $288.34 | | |
| RLBRFD | RURAL LIBRARY REFUND 623 | 0.0000000000 | $326,290 | $326,290 | $0.00 | | |
| RURALLIB | RURAL LIBRARY 623 | 0.3710609029 | $326,290 | $326,290 | $121.07 | | |
| PORTRFD | PORT REFUND 640 | 0.0000000000 | $326,290 | $326,290 | $0.00 | | |
| PORTWWGEN | PORT OF WW 640 | 0.2460186015 | $326,290 | $326,290 | $80.27 | | |
| SD250BOND | SD #250 BOND 773 | 1.4560608159 | $326,290 | $326,290 | $475.10 | | |
| SD250GEN | SD #250 GENERAL 770 | 2.3880724087 | $326,290 | $326,290 | $779.20 | | |
| ST2 | STATE SCHOOL PART 2 600 | 0.8131451643 | $326,290 | $326,290 | $265.32 | | |
| STATESCHL | STATE SCHOOL 600 | 1.5158548041 | $326,290 | $326,290 | $494.61 | | |
| STREFUND | STATE REFUND LEVY 603 | 0.0000000000 | $326,290 | $326,290 | $0.00 | | |
| COROAD | COUNTY ROAD 115 | 1.6549953990 | $326,290 | $326,290 | $540.01 | | |
| CRPRD | COUNTY ROAD REFUND 115 | 0.0000000000 | $326,290 | $326,290 | $0.00 | | |
| | Total Tax Rate: | 10.7663011628 | | | | | |
| | | | | Taxes w/Current Exemptions: | $3,512.93 | | |
| | | | | Taxes w/o Exemptions: | $3,512.93 | | |
Improvement / Building
| Improvement #1: | RESIDENTIAL | State Code: | 11 | 1051.0 sqft | Value: | $262,080 |
| Exterior Wall: | VINYL | Heating/Cooling: | WARM & COOLED AIR | | Number of Bathrooms: | 2 | Number of Bedrooms: | 2 | | Plumbing: | 10 | Roof Covering: | COMP SHINGLE |
|
| | Type | Description | Class CD | Sub Class CD | Year Built | Area |
| | MA | Main Area | 1 | 30 | 1932 | 1051.0 |
| | SI1 | SITE IMPROVEMENT | 1 | 30 | 0 | 1.5 |
| | BASE | BASEMENT | 1 | 30 | 1932 | 1051.0 |
| | BPF | BASEMENT -PARTITIONED FINISH | 1 | 30 | 1932 | 790.0 |
| | RPC | OPEN PORCH W/ROOF , CEILED | 1 | 30 | 1932 | 49.0 |
| | CPC | COVERED CARPORT/PATIO | 1 | 30 | 1932 | 252.0 |
| | POL3 | POLE BUILDING-CON,ELEC,INSU | 1 | 30 | 1932 | 600.0 |
Sketch
Property Image
Land
| 1 | RES 1 | Converted: Residential | 0.2000 | 8712.00 | 0.00 | 0.00 | 1.00 | $64,210 | $0 |
Roll Value History
| 2026 | N/A | N/A | N/A | N/A | N/A |
| 2025 | $262,080 | $64,210 | $0 | $326,290 | $326,290 |
| 2024 | $262,080 | $64,210 | $0 | $326,290 | $326,290 |
| 2023 | $262,080 | $64,210 | $0 | $326,290 | $326,290 |
| 2022 | $207,660 | $64,210 | $0 | $271,870 | $271,870 |
| 2021 | $177,320 | $46,000 | $0 | $223,320 | $223,320 |
| 2020 | $147,770 | $46,000 | $0 | $193,770 | $193,770 |
| 2019 | $147,770 | $46,000 | $0 | $193,770 | $193,770 |
| 2018 | $134,340 | $46,000 | $0 | $180,340 | $180,340 |
| 2017 | $127,940 | $46,000 | $0 | $173,940 | $173,940 |
| 2016 | $121,850 | $46,000 | $0 | $167,850 | $167,850 |
| 2015 | $106,200 | $46,000 | $0 | $152,200 | $152,200 |
| 2014 | $106,200 | $46,000 | $0 | $152,200 | $152,200 |
| 2013 | $106,200 | $46,000 | $0 | $152,200 | $152,200 |
| 2012 | $106,200 | $46,000 | $0 | $0 | $0 |
| 2011 | $106,200 | $46,000 | $0 | $0 | $0 |
| 2010 | $165,400 | $23,600 | $0 | $0 | $0 |
| 2009 | $186,400 | $23,600 | $0 | $0 | $0 |
| 2008 | $99,900 | $23,600 | $0 | $0 | $0 |
| 2007 | $99,900 | $23,600 | $0 | $0 | $0 |
Deed and Sales History
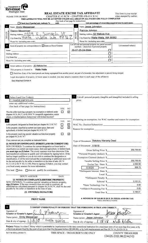
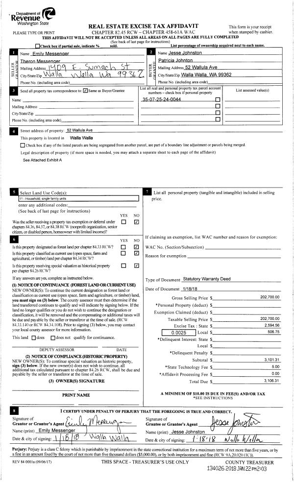
| 1 | 01/22/2018 | SWD | STATUTORY WARRANTY DEED | MESSENGER THERON & EMILY | JOHNSTON JESSE & PATRICIA | | | $202,700.00 | 134026 | 2018-00610 |
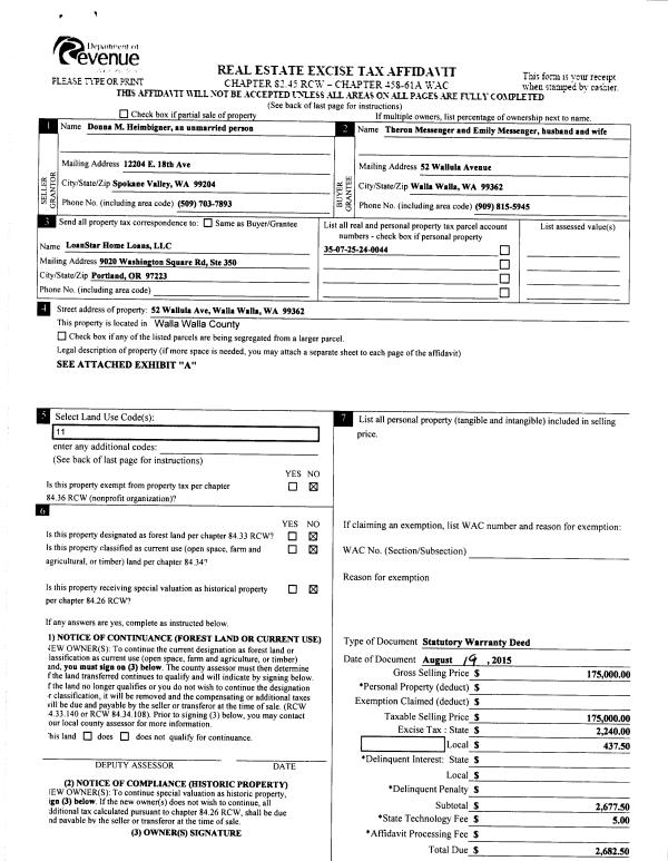
| 2 | 09/02/2015 | SWD | STATUTORY WARRANTY DEED | HEIMBIGNER DONNA MARIE | MESSENGER THERON & EMILY | | | $175,000.00 | 128756 | 2015-07763 |
| 3 | 01/26/1978 | WARRANTY D | WARRANTY DEED | | | | | $28,500.00 | 0 | 7578-00718 |
Payout Agreement
| No payout information available.. |