Property
Account |
| Property ID: | 29850 | Abbreviated Legal Description: | SPRING GROVE #2 W1/2 OF LOTS 42 THRU 46 BLK 1 |
| Parcel Number: | 360728720148 | Agent Code: | |
| Type: | Real | | |
| Tax Area: | 1 - OL-140-F | Land Use Code | 11 |
| Open Space: | N | DFL | N |
| Historic Property: | N | Remodel Property: | N |
| Multi-Family Redevelopment: | N | | |
| Township: | 7 | Section: | 28 |
| Range: | 36 |
Location |
| Address: | 836 PLEASANT ST WA 99362 | Mapsco: | |
| Neighborhood: | A Res | Map ID: | |
| Neighborhood CD: | 613011 |
Owner |
| Name: | RUBON ASHELY | Owner ID: | 72914 |
| Mailing Address: | TERA DAVIS 836 PLEASANT ST WALLA WALLA, WA 99362 | % Ownership: | 100.0000000000% |
| | | Exemptions: | |
Taxes and Assessment Details
Property Tax Information as of
02/21/2026
Click on "Statement Details" to expand or collapse a tax statement.
* Please enter a valid date ** Please enter a valid date *
Statement Details |
| | TOTAL: | $0.00 | $0.00 | $0.00 | $0.00 | $0.00 | $0.00 |
|
| | $0.00 | $0.00 | $0.00 | $0.00 | $0.00 | $0.00 |
Values
| (+) Improvement Homesite Value: | + | $0 | |
| (+) Improvement Non-Homesite Value: | + | $249,180 | |
| (+) Land Homesite Value: | + | $0 | |
| (+) Land Non-Homesite Value: | + | $73,130 | |
| (+) Curr Use (HS): | + | $0 | $0 |
| (+) Curr Use (NHS): | + | $0 | $0 |
| | | -------------------------- | |
| (=) Market Value: | = | $322,310 | |
| (–) Productivity Loss: | – | $0 | |
| | | -------------------------- | |
| (=) Subtotal: | = | $322,310 | |
| (+) Senior Appraised Value: | + | $0 | |
| (+) Non-Senior Appraised Value: | + | $322,310 | |
| | | -------------------------- | |
| (=) Total Appraised Value: | = | $322,310 | |
| (–) Senior Exemption Loss: | – | $0 | |
| (–) Exemption Loss: | – | $0 | |
| | | -------------------------- | |
| (=) Taxable Value: | = | $322,310 | |
Taxing Jurisdiction
| Owner: | RUBON ASHELY | | |
| % Ownership: | 100.0000000000% | | |
| Total Value: | $322,310 | | |
| Tax Area: | 1 - OL-140-F |
| CERFD | CURRENT EXPENSE REFUND 010 | 0.0000000000 | $322,310 | $322,310 | $0.00 | | |
| CURREXP | CURRENT EXPENSE 010 | 1.0175366760 | $322,310 | $322,310 | $327.96 | | |
| HUMNSERV | HUMAN SERVICES 119 | 0.0250000000 | $322,310 | $322,310 | $8.06 | | |
| SLDREL | SOLDIERS RELIEF 121 | 0.0155990005 | $322,310 | $322,310 | $5.03 | | |
| EMERGSER | EMS 147 | 0.3792580840 | $322,310 | $322,310 | $122.24 | | |
| EMSRFD | EMS REFUND 147 | 0.0000000000 | $322,310 | $322,310 | $0.00 | | |
| PORTRFD | PORT REFUND 640 | 0.0000000000 | $322,310 | $322,310 | $0.00 | | |
| PORTWWGEN | PORT OF WW 640 | 0.2460186015 | $322,310 | $322,310 | $79.29 | | |
| SD140BOND | SD #140 BOND 764 | 0.8342371393 | $322,310 | $322,310 | $268.88 | | |
| SD140GEN | SD #140 GENERAL 760 | 2.0646500647 | $322,310 | $322,310 | $665.46 | | |
| ST2 | STATE SCHOOL PART 2 600 | 0.8131451643 | $322,310 | $322,310 | $262.08 | | |
| STATESCHL | STATE SCHOOL 600 | 1.5158548041 | $322,310 | $322,310 | $488.58 | | |
| STREFUND | STATE REFUND LEVY 603 | 0.0000000000 | $322,310 | $322,310 | $0.00 | | |
| CWWBOND | C OF WW BOND 643 | 0.2760494372 | $322,310 | $322,310 | $88.97 | | |
| CWWGEN | CITY OF WW 631 | 1.6100204973 | $322,310 | $322,310 | $518.93 | | |
| CWWRFD | CITY OF WALLA WALLA REFUND 631 | 0.0000000000 | $322,310 | $322,310 | $0.00 | | |
| | Total Tax Rate: | 8.7973694689 | | | | | |
| | | | | Taxes w/Current Exemptions: | $2,835.48 | | |
| | | | | Taxes w/o Exemptions: | $2,835.48 | | |
Improvement / Building
| Improvement #1: | RESIDENTIAL | State Code: | 11 | 1197.0 sqft | Value: | $249,180 |
| Exterior Wall: | VINYL | Heating/Cooling: | BASEBOARD ELECTRIC | | Number of Bathrooms: | 1.5 | Number of Bedrooms: | 3 | | Plumbing: | 9 | Roof Covering: | COMP SHINGLE |
|
| | Type | Description | Class CD | Sub Class CD | Year Built | Area |
| | MA | Main Area | 1 | 25 | 1952 | 1197.0 |
| | SI1 | SITE IMPROVEMENT | 1 | 25 | 1952 | 1.5 |
| | CPCD | CARPORT/DIRT FLOOR | 1 | 25 | 1952 | 64.0 |
| | UTST | Utility Storage Shed | 1 | 25 | 1952 | 80.0 |
| | CPC | COVERED CARPORT/PATIO | 1 | 25 | 1952 | 252.0 |
| | ATG | Attached Garage | 1 | 25 | 1952 | 211.0 |
Sketch
Property Image
Land
| 1 | RES 1 | Converted: Residential | 0.1865 | 8125.00 | 0.00 | 0.00 | 1.00 | $73,130 | $0 |
Roll Value History
| 2026 | N/A | N/A | N/A | N/A | N/A |
| 2025 | $230,340 | $89,380 | $0 | $319,720 | $319,720 |
| 2024 | $249,180 | $73,130 | $0 | $322,310 | $322,310 |
| 2023 | $249,180 | $73,130 | $0 | $322,310 | $322,310 |
| 2022 | $199,340 | $58,910 | $0 | $258,250 | $258,250 |
| 2021 | $166,120 | $58,910 | $0 | $225,030 | $225,030 |
| 2020 | $123,050 | $58,910 | $0 | $181,960 | $181,960 |
| 2019 | $123,050 | $58,910 | $0 | $181,960 | $181,960 |
| 2018 | $106,600 | $45,500 | $0 | $152,100 | $152,100 |
| 2017 | $96,910 | $45,500 | $0 | $142,410 | $142,410 |
| 2016 | $92,290 | $45,500 | $0 | $137,790 | $137,790 |
| 2015 | $92,290 | $45,500 | $0 | $137,790 | $137,790 |
| 2014 | $83,900 | $45,500 | $0 | $129,400 | $129,400 |
| 2013 | $83,900 | $45,500 | $0 | $129,400 | $129,400 |
| 2012 | $72,100 | $45,500 | $0 | $0 | $0 |
| 2011 | $72,100 | $45,500 | $0 | $0 | $0 |
| 2010 | $72,100 | $45,500 | $0 | $0 | $0 |
| 2009 | $85,200 | $45,500 | $0 | $0 | $0 |
| 2008 | $85,200 | $45,500 | $0 | $0 | $0 |
| 2007 | $59,300 | $23,000 | $0 | $0 | $0 |
Deed and Sales History
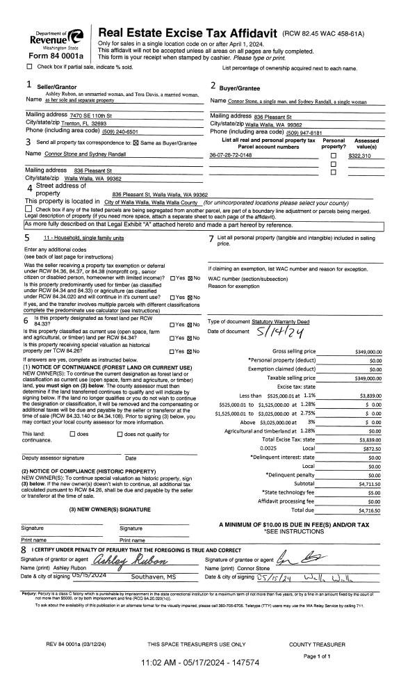
| 1 | 05/17/2024 | SWD | STATUTORY WARRANTY DEED | RUBON ASHELY | STONE CONNOR | | | $349,000.00 | 147574 | 2024-02630 |
| 2 | 12/09/2022 | QCD | QUIT CLAIM DEED | DAVIS DONALD | DAVIS TERA | | | | 145120 | 2022-09600 |
| 3 | 12/09/2022 | SWD | STATUTORY WARRANTY DEED | MILLER MICAH J & BRITTANY N | RUBON ASHELY | | | $339,000.00 | 145119 | 2022-09599 |
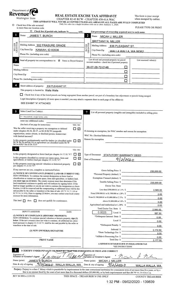
| 4 | 09/02/2020 | SWD | STATUTORY WARRANTY DEED | BURCH JAMES T | MILLER MICAH J & BRITTANY N | | | $235,000.00 | 139839 | 2020-08910 |
| 5 | 09/30/2011 | WARRANTY D | WARRANTY DEED | ECCLES, WILDA A ESTATE OF | BURCH, JAMES T | | | $129,950.00 | 120771 | 2011-07683 |
| 6 | 03/13/1989 | WARRANTY D | WARRANTY DEED | | | | | $40,000.00 | 0 | 1758-901512 |
Payout Agreement
| No payout information available.. |