Property
Account |
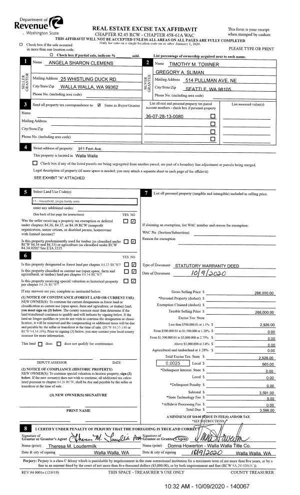
| Property ID: | 29817 | Abbreviated Legal Description: | 28-7-36 TAX 147D |
| Parcel Number: | 360728130080 | Agent Code: | |
| Type: | Real | | |
| Tax Area: | 6 - OL-140-F-FB | Land Use Code | 11 |
| Open Space: | N | DFL | N |
| Historic Property: | N | Remodel Property: | N |
| Multi-Family Redevelopment: | N | | |
| Township: | 7 | Section: | 28 |
| Range: | 36 |
Location |
| Address: | 911 FERN AVE WA 99362 | Mapsco: | |
| Neighborhood: | G Res | Map ID: | |
| Neighborhood CD: | 614011 |
Owner |
| Name: | TOWNER TIMOTHY M | Owner ID: | 45961 |
| Mailing Address: | GREGORY A SLIMAN 5014 PULLMAN AVE NE SEATTLE, WA 98105 | % Ownership: | 100.0000000000% |
| | | Exemptions: | |
Taxes and Assessment Details
Property Tax Information as of
02/21/2026
Click on "Statement Details" to expand or collapse a tax statement.
* Please enter a valid date ** Please enter a valid date *
Statement Details |
| | TOTAL: | $0.00 | $0.00 | $0.00 | $0.00 | $0.00 | $0.00 |
|
| | $0.00 | $0.00 | $0.00 | $0.00 | $0.00 | $0.00 |
Values
| (+) Improvement Homesite Value: | + | $179,560 | |
| (+) Improvement Non-Homesite Value: | + | $0 | |
| (+) Land Homesite Value: | + | $121,010 | |
| (+) Land Non-Homesite Value: | + | $0 | |
| (+) Curr Use (HS): | + | $0 | $0 |
| (+) Curr Use (NHS): | + | $0 | $0 |
| | | -------------------------- | |
| (=) Market Value: | = | $300,570 | |
| (–) Productivity Loss: | – | $0 | |
| | | -------------------------- | |
| (=) Subtotal: | = | $300,570 | |
| (+) Senior Appraised Value: | + | $0 | |
| (+) Non-Senior Appraised Value: | + | $300,570 | |
| | | -------------------------- | |
| (=) Total Appraised Value: | = | $300,570 | |
| (–) Senior Exemption Loss: | – | $0 | |
| (–) Exemption Loss: | – | $0 | |
| | | -------------------------- | |
| (=) Taxable Value: | = | $300,570 | |
Taxing Jurisdiction
| Owner: | TOWNER TIMOTHY M | | |
| % Ownership: | 100.0000000000% | | |
| Total Value: | $300,570 | | |
| Tax Area: | 6 - OL-140-F-FB |
| CERFD | CURRENT EXPENSE REFUND 010 | 0.0000000000 | $300,570 | $300,570 | $0.00 | | |
| CURREXP | CURRENT EXPENSE 010 | 1.0175366760 | $300,570 | $300,570 | $305.84 | | |
| HUMNSERV | HUMAN SERVICES 119 | 0.0250000000 | $300,570 | $300,570 | $7.51 | | |
| SLDREL | SOLDIERS RELIEF 121 | 0.0155990005 | $300,570 | $300,570 | $4.69 | | |
| EMERGSER | EMS 147 | 0.3792580840 | $300,570 | $300,570 | $113.99 | | |
| EMSRFD | EMS REFUND 147 | 0.0000000000 | $300,570 | $300,570 | $0.00 | | |
| PORTRFD | PORT REFUND 640 | 0.0000000000 | $300,570 | $300,570 | $0.00 | | |
| PORTWWGEN | PORT OF WW 640 | 0.2460186015 | $300,570 | $300,570 | $73.95 | | |
| SD140BOND | SD #140 BOND 764 | 0.8342371393 | $300,570 | $300,570 | $250.75 | | |
| SD140GEN | SD #140 GENERAL 760 | 2.0646500647 | $300,570 | $300,570 | $620.57 | | |
| ST2 | STATE SCHOOL PART 2 600 | 0.8131451643 | $300,570 | $300,570 | $244.41 | | |
| STATESCHL | STATE SCHOOL 600 | 1.5158548041 | $300,570 | $300,570 | $455.62 | | |
| STREFUND | STATE REFUND LEVY 603 | 0.0000000000 | $300,570 | $300,570 | $0.00 | | |
| CWWBOND | C OF WW BOND 643 | 0.2760494372 | $300,570 | $300,570 | $82.97 | | |
| CWWGEN | CITY OF WW 631 | 1.6100204973 | $300,570 | $300,570 | $483.92 | | |
| CWWRFD | CITY OF WALLA WALLA REFUND 631 | 0.0000000000 | $300,570 | $300,570 | $0.00 | | |
| | Total Tax Rate: | 8.7973694689 | | | | | |
| | | | | Taxes w/Current Exemptions: | $2,644.22 | | |
| | | | | Taxes w/o Exemptions: | $2,644.22 | | |
Improvement / Building
| Improvement #1: | RESIDENTIAL | State Code: | 11 | 1156.0 sqft | Value: | $179,560 |
| Exterior Wall: | VINYL | Heating/Cooling: | WARM & COOLED AIR | | Number of Bathrooms: | 2 | Number of Bedrooms: | 2 | | Plumbing: | 9 | Roof Covering: | COMP SHINGLE |
|
| | Type | Description | Class CD | Sub Class CD | Year Built | Area |
| | MA | Main Area | 1 | 30 | 1945 | 1156.0 |
| | SI1 | SITE IMPROVEMENT | 1 | 30 | 1945 | 1.5 |
| | S1F | Single One Story Fireplace | 1 | 30 | 1945 | 1.0 |
| | RPS | PORCH W/STEPS,ROOF | 1 | 30 | 1945 | 28.0 |
| | RPO | OPEN PORCH W/ROOF | 1 | 30 | 1945 | 42.0 |
| | CPC | COVERED CARPORT/PATIO | 1 | 30 | 1945 | 320.0 |
| | DTG | Detached Garage | 1 | 30 | 1945 | 320.0 |
Sketch
Property Image
Land
| 1 | RES 1 | Converted: Residential | 0.3000 | 13068.00 | 0.00 | 0.00 | 1.00 | $121,010 | $0 |
Roll Value History
| 2026 | N/A | N/A | N/A | N/A | N/A |
| 2025 | $155,700 | $144,920 | $0 | $300,620 | $300,620 |
| 2024 | $179,560 | $121,010 | $0 | $300,570 | $300,570 |
| 2023 | $179,560 | $121,010 | $0 | $300,570 | $300,570 |
| 2022 | $179,560 | $99,710 | $0 | $279,270 | $279,270 |
| 2021 | $163,240 | $99,710 | $0 | $262,950 | $262,950 |
| 2020 | $130,590 | $99,710 | $0 | $230,300 | $230,300 |
| 2019 | $130,590 | $99,710 | $0 | $230,300 | $59,720 |
| 2018 | $120,520 | $49,700 | $0 | $170,220 | $59,720 |
| 2017 | $109,560 | $49,700 | $0 | $159,260 | $59,720 |
| 2016 | $99,600 | $49,700 | $0 | $149,300 | $59,720 |
| 2015 | $99,600 | $49,700 | $0 | $149,300 | $59,720 |
| 2014 | $99,600 | $49,700 | $0 | $149,300 | $149,300 |
| 2013 | $99,600 | $49,700 | $0 | $149,300 | $149,300 |
| 2012 | $97,000 | $49,700 | $0 | $0 | $0 |
| 2011 | $97,000 | $49,700 | $0 | $0 | $0 |
| 2010 | $84,900 | $49,700 | $0 | $0 | $0 |
| 2009 | $99,900 | $49,700 | $0 | $0 | $0 |
| 2008 | $99,900 | $49,700 | $0 | $0 | $0 |
| 2007 | $69,900 | $27,200 | $0 | $0 | $0 |
Deed and Sales History
| 1 | 10/09/2020 | SWD | STATUTORY WARRANTY DEED | CLEMENS ANGELA SHARON | TOWNER TIMOTHY M | | | $266,000.00 | 140067 | 2020-10424 |
Payout Agreement
| No payout information available.. |