Property
Account |
| Property ID: | 29814 | Abbreviated Legal Description: | MTN VIEW TAX 3 BLK 27 LESS SWLY PTN TO CITY OF WW FOR 2ND AVE |
| Parcel Number: | 360729852704 | Agent Code: | |
| Type: | Real | | |
| Tax Area: | 1 - OL-140-F | Land Use Code | 11 |
| Open Space: | N | DFL | N |
| Historic Property: | N | Remodel Property: | N |
| Multi-Family Redevelopment: | N | | |
| Township: | 7 | Section: | 29 |
| Range: | 36 |
Location |
| Address: | 101 EDWARDS DR WA 99362 | Mapsco: | |
| Neighborhood: | A Res | Map ID: | |
| Neighborhood CD: | 613011 |
Owner |
| Name: | BURRAGE AMY L & WILLIAM J | Owner ID: | 70313 |
| Mailing Address: | 101 EDWARDS DR WALLA WALLA, WA 99362 | % Ownership: | 100.0000000000% |
| | | Exemptions: | |
Taxes and Assessment Details
Values
| (+) Improvement Homesite Value: | + | $426,130 | |
| (+) Improvement Non-Homesite Value: | + | $0 | |
| (+) Land Homesite Value: | + | $91,180 | |
| (+) Land Non-Homesite Value: | + | $0 | |
| (+) Curr Use (HS): | + | $0 | $0 |
| (+) Curr Use (NHS): | + | $0 | $0 |
| | | -------------------------- | |
| (=) Market Value: | = | $517,310 | |
| (–) Productivity Loss: | – | $0 | |
| | | -------------------------- | |
| (=) Subtotal: | = | $517,310 | |
| (+) Senior Appraised Value: | + | $0 | |
| (+) Non-Senior Appraised Value: | + | $517,310 | |
| | | -------------------------- | |
| (=) Total Appraised Value: | = | $517,310 | |
| (–) Senior Exemption Loss: | – | $0 | |
| (–) Exemption Loss: | – | $0 | |
| | | -------------------------- | |
| (=) Taxable Value: | = | $517,310 | |
Taxing Jurisdiction
| Owner: | BURRAGE AMY L & WILLIAM J | | |
| % Ownership: | 100.0000000000% | | |
| Total Value: | $517,310 | | |
| Tax Area: | 1 - OL-140-F |
| CERFD | CURRENT EXPENSE REFUND 010 | 0.0000000000 | $517,310 | $517,310 | $0.00 | | |
| CURREXP | CURRENT EXPENSE 010 | 1.0175366760 | $517,310 | $517,310 | $526.38 | | |
| HUMNSERV | HUMAN SERVICES 119 | 0.0250000000 | $517,310 | $517,310 | $12.93 | | |
| SLDREL | SOLDIERS RELIEF 121 | 0.0155990005 | $517,310 | $517,310 | $8.07 | | |
| EMERGSER | EMS 147 | 0.3792580840 | $517,310 | $517,310 | $196.19 | | |
| EMSRFD | EMS REFUND 147 | 0.0000000000 | $517,310 | $517,310 | $0.00 | | |
| PORTRFD | PORT REFUND 640 | 0.0000000000 | $517,310 | $517,310 | $0.00 | | |
| PORTWWGEN | PORT OF WW 640 | 0.2460186015 | $517,310 | $517,310 | $127.27 | | |
| SD140BOND | SD #140 BOND 764 | 0.8342371393 | $517,310 | $517,310 | $431.56 | | |
| SD140GEN | SD #140 GENERAL 760 | 2.0646500647 | $517,310 | $517,310 | $1,068.06 | | |
| ST2 | STATE SCHOOL PART 2 600 | 0.8131451643 | $517,310 | $517,310 | $420.65 | | |
| STATESCHL | STATE SCHOOL 600 | 1.5158548041 | $517,310 | $517,310 | $784.17 | | |
| STREFUND | STATE REFUND LEVY 603 | 0.0000000000 | $517,310 | $517,310 | $0.00 | | |
| CWWBOND | C OF WW BOND 643 | 0.2760494372 | $517,310 | $517,310 | $142.80 | | |
| CWWGEN | CITY OF WW 631 | 1.6100204973 | $517,310 | $517,310 | $832.88 | | |
| CWWRFD | CITY OF WALLA WALLA REFUND 631 | 0.0000000000 | $517,310 | $517,310 | $0.00 | | |
| | Total Tax Rate: | 8.7973694689 | | | | | |
| | | | | Taxes w/Current Exemptions: | $4,550.96 | | |
| | | | | Taxes w/o Exemptions: | $4,550.96 | | |
Improvement / Building
| Improvement #1: | RESIDENTIAL | State Code: | 11 | 2075.0 sqft | Value: | $426,130 |
| Exterior Wall: | MASONRY VENEER | Heating/Cooling: | WARM & COOLED AIR | | Number of Bathrooms: | 3 | Number of Bedrooms: | 3 | | Plumbing: | 13 | Roof Covering: | COMP SHINGLE |
|
| | Type | Description | Class CD | Sub Class CD | Year Built | Area |
| | MA | Main Area | 1 | 40 | 1949 | 2075.0 |
| | SI1 | SITE IMPROVEMENT | 1 | 40 | 1949 | 2.5 |
| | ATG | Attached Garage | 1 | 40 | 1949 | 506.0 |
| | RPO | OPEN PORCH W/ROOF | 1 | 40 | 1949 | 40.0 |
| | S1F | Single One Story Fireplace | 1 | 40 | 1949 | 1.0 |
| | CPC | COVERED CARPORT/PATIO | 1 | 40 | 1949 | 93.0 |
Sketch
Property Image
Land
| 1 | RES 1 | Converted: Residential | 0.2677 | 11660.00 | 0.00 | 0.00 | 1.00 | $91,180 | $0 |
Roll Value History
| 2026 | N/A | N/A | N/A | N/A | N/A |
| 2025 | $374,680 | $111,470 | $0 | $486,150 | $486,150 |
| 2024 | $426,130 | $91,180 | $0 | $517,310 | $517,310 |
| 2023 | $426,130 | $91,180 | $0 | $517,310 | $517,310 |
| 2022 | $387,390 | $73,340 | $0 | $460,730 | $460,730 |
| 2021 | $322,830 | $73,340 | $0 | $396,170 | $396,170 |
| 2020 | $258,260 | $73,340 | $0 | $331,600 | $331,600 |
| 2019 | $258,260 | $73,340 | $0 | $331,600 | $92,320 |
| 2018 | $220,580 | $48,500 | $0 | $269,080 | $230,800 |
| 2017 | $200,530 | $48,500 | $0 | $249,030 | $249,030 |
| 2016 | $182,300 | $48,500 | $0 | $230,800 | $92,320 |
| 2015 | $182,300 | $48,500 | $0 | $230,800 | $160,800 |
| 2014 | $182,300 | $48,500 | $0 | $230,800 | $230,800 |
| 2013 | $182,300 | $48,500 | $0 | $230,800 | $160,800 |
| 2012 | $187,500 | $48,500 | $0 | $0 | $0 |
| 2011 | $187,500 | $48,500 | $0 | $0 | $0 |
| 2010 | $168,000 | $48,500 | $0 | $0 | $0 |
| 2009 | $192,000 | $48,500 | $0 | $0 | $0 |
| 2008 | $192,000 | $48,500 | $0 | $0 | $0 |
| 2007 | $158,400 | $26,000 | $0 | $0 | $0 |
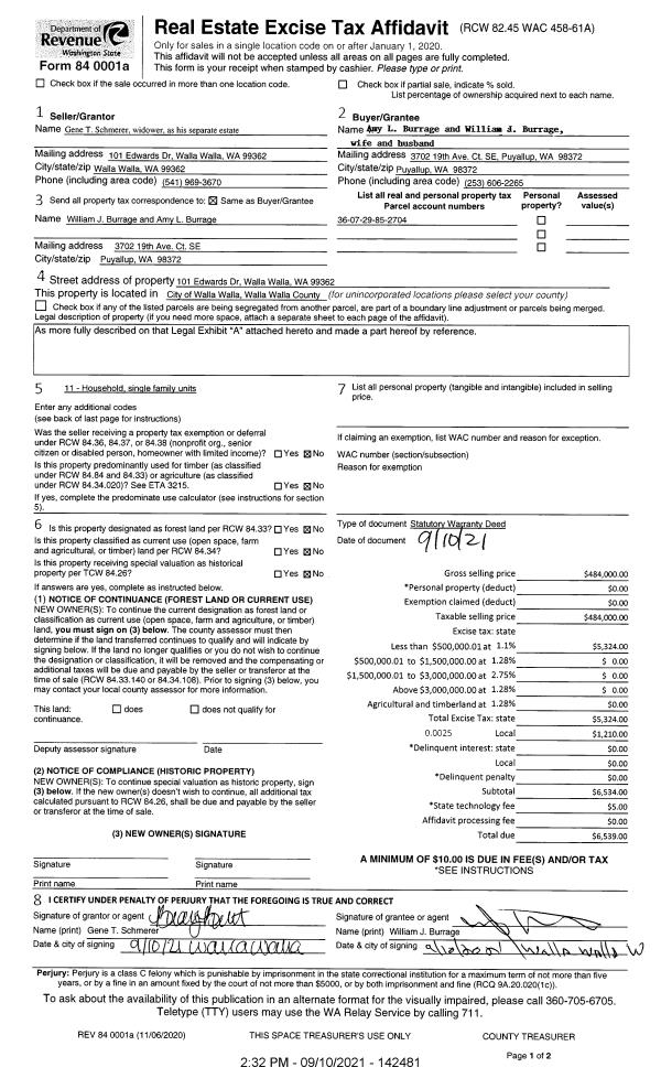
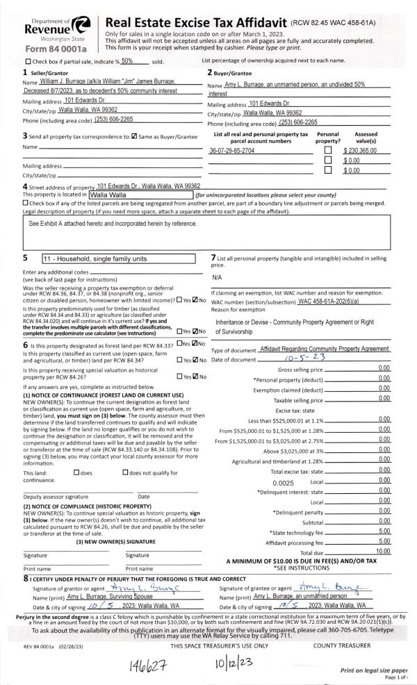
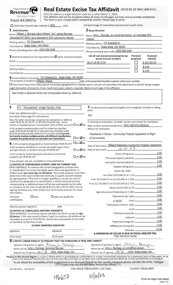
Deed and Sales History
| 1 | 10/12/2023 | LOPA | LACK OF PROBATE AFFIDAVIT | BURRAGE AMY L & WILLIAM J | BURRAGE AMY L | | | | 146627 | 2023-06016 |
| 2 | 09/10/2021 | SWD | STATUTORY WARRANTY DEED | SCHMERER GENE T | BURRAGE AMY L & WILLIAM J | | | $484,000.00 | 142481 | 2021-11174 |
| 3 | 09/10/2021 | LOPA | LACK OF PROBATE AFFIDAVIT | SCHMERER GENE T & WILMA J | SCHMERER GENE T | | | $0.00 | 142480 | 2021-11173 |
| 4 | 08/05/1999 | WARRANTY D | WARRANTY DEED | | | | | $150,900.00 | 93326 | 2879-909163 |
Payout Agreement
| No payout information available.. |