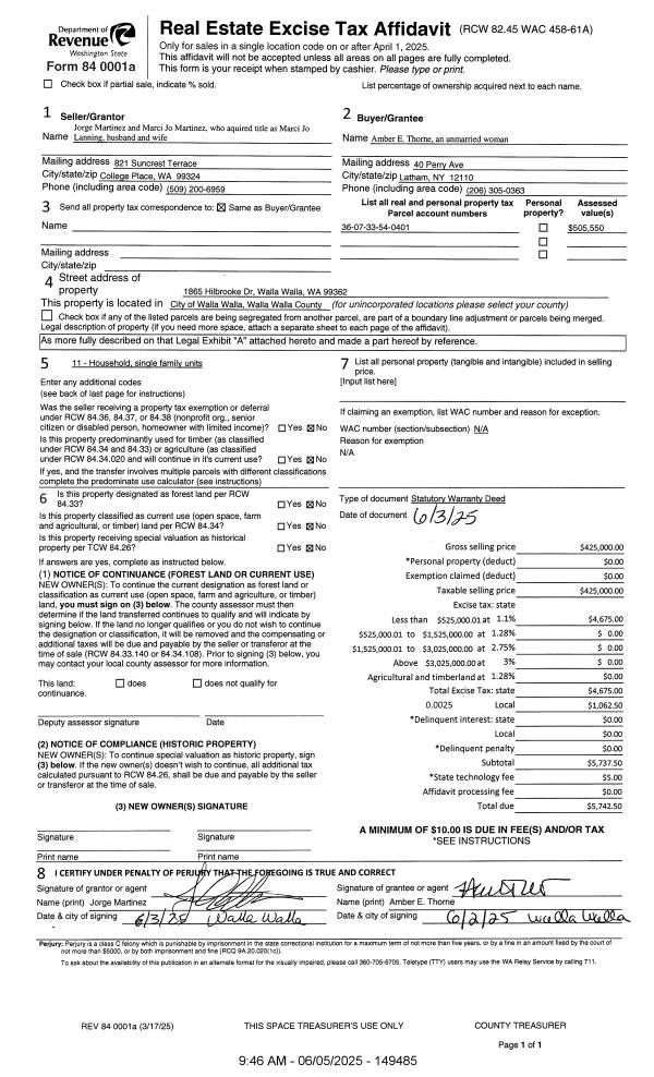
Property
Account |
| Property ID: | 29807 | Abbreviated Legal Description: | MT VIEW REPLAT LOT 1 BLK 4 |
| Parcel Number: | 360733540401 | Agent Code: | |
| Type: | Real | | |
| Tax Area: | 1 - OL-140-F | Land Use Code | 11 |
| Open Space: | N | DFL | N |
| Historic Property: | N | Remodel Property: | N |
| Multi-Family Redevelopment: | N | | |
| Township: | 7 | Section: | 33 |
| Range: | 36 |
Location |
| Address: | 1865 HILBROOKE DR WA 99362 | Mapsco: | |
| Neighborhood: | G Res | Map ID: | |
| Neighborhood CD: | 614011 |
Owner |
| Name: | MARTINEZ JORGE & MARCI JO LANNING | Owner ID: | 65336 |
| Mailing Address: | 1865 HILBROOKE DR WALLA WALLA, WA 99362 | % Ownership: | 100.0000000000% |
| | | Exemptions: | |
Taxes and Assessment Details
Values
| (+) Improvement Homesite Value: | + | $397,550 | |
| (+) Improvement Non-Homesite Value: | + | $0 | |
| (+) Land Homesite Value: | + | $108,000 | |
| (+) Land Non-Homesite Value: | + | $0 | |
| (+) Curr Use (HS): | + | $0 | $0 |
| (+) Curr Use (NHS): | + | $0 | $0 |
| | | -------------------------- | |
| (=) Market Value: | = | $505,550 | |
| (–) Productivity Loss: | – | $0 | |
| | | -------------------------- | |
| (=) Subtotal: | = | $505,550 | |
| (+) Senior Appraised Value: | + | $0 | |
| (+) Non-Senior Appraised Value: | + | $505,550 | |
| | | -------------------------- | |
| (=) Total Appraised Value: | = | $505,550 | |
| (–) Senior Exemption Loss: | – | $0 | |
| (–) Exemption Loss: | – | $0 | |
| | | -------------------------- | |
| (=) Taxable Value: | = | $505,550 | |
Taxing Jurisdiction
| Owner: | MARTINEZ JORGE & MARCI JO LANNING | | |
| % Ownership: | 100.0000000000% | | |
| Total Value: | $505,550 | | |
| Tax Area: | 1 - OL-140-F |
| CERFD | CURRENT EXPENSE REFUND 010 | 0.0000000000 | $505,550 | $505,550 | $0.00 | | |
| CURREXP | CURRENT EXPENSE 010 | 1.0175366760 | $505,550 | $505,550 | $514.42 | | |
| HUMNSERV | HUMAN SERVICES 119 | 0.0250000000 | $505,550 | $505,550 | $12.64 | | |
| SLDREL | SOLDIERS RELIEF 121 | 0.0155990005 | $505,550 | $505,550 | $7.89 | | |
| EMERGSER | EMS 147 | 0.3792580840 | $505,550 | $505,550 | $191.73 | | |
| EMSRFD | EMS REFUND 147 | 0.0000000000 | $505,550 | $505,550 | $0.00 | | |
| PORTRFD | PORT REFUND 640 | 0.0000000000 | $505,550 | $505,550 | $0.00 | | |
| PORTWWGEN | PORT OF WW 640 | 0.2460186015 | $505,550 | $505,550 | $124.37 | | |
| SD140BOND | SD #140 BOND 764 | 0.8342371393 | $505,550 | $505,550 | $421.75 | | |
| SD140GEN | SD #140 GENERAL 760 | 2.0646500647 | $505,550 | $505,550 | $1,043.78 | | |
| ST2 | STATE SCHOOL PART 2 600 | 0.8131451643 | $505,550 | $505,550 | $411.09 | | |
| STATESCHL | STATE SCHOOL 600 | 1.5158548041 | $505,550 | $505,550 | $766.34 | | |
| STREFUND | STATE REFUND LEVY 603 | 0.0000000000 | $505,550 | $505,550 | $0.00 | | |
| CWWBOND | C OF WW BOND 643 | 0.2760494372 | $505,550 | $505,550 | $139.56 | | |
| CWWGEN | CITY OF WW 631 | 1.6100204973 | $505,550 | $505,550 | $813.95 | | |
| CWWRFD | CITY OF WALLA WALLA REFUND 631 | 0.0000000000 | $505,550 | $505,550 | $0.00 | | |
| | Total Tax Rate: | 8.7973694689 | | | | | |
| | | | | Taxes w/Current Exemptions: | $4,447.52 | | |
| | | | | Taxes w/o Exemptions: | $4,447.52 | | |
Improvement / Building
| Improvement #1: | RESIDENTIAL | State Code: | 11 | 1952.0 sqft | Value: | $397,550 |
| Exterior Wall: | SIDING | Heating/Cooling: | FORCED AIR | | Number of Bathrooms: | 2 | Number of Bedrooms: | 2 | | Plumbing: | 9 | Roof Covering: | COMP SHINGLE |
|
| | Type | Description | Class CD | Sub Class CD | Year Built | Area |
| | MA | Main Area | 1 | 30 | 1949 | 1952.0 |
| | SI1 | SITE IMPROVEMENT | 1 | 30 | 1949 | 3.0 |
| | BASE | BASEMENT | 1 | 30 | 1949 | 680.0 |
| | CPCS | CARPORT/SHED OR FLAT ROOF | 1 | 30 | 1949 | 315.0 |
| | S1F | Single One Story Fireplace | 1 | 30 | 1949 | 2.0 |
| | CPC | COVERED CARPORT/PATIO | 1 | 30 | 1949 | 285.0 |
| | RPC | OPEN PORCH W/ROOF , CEILED | 1 | 30 | 1949 | 25.0 |
| | OUT | OUTSIDE BASEMENT ENTRY | 1 | 30 | 1949 | 1.0 |
Sketch
Property Image
Land
| 1 | RES 1 | Converted: Residential | 0.2479 | 10800.00 | 0.00 | 0.00 | 1.00 | $108,000 | $0 |
Roll Value History
| 2026 | N/A | N/A | N/A | N/A | N/A |
| 2025 | $298,020 | $129,600 | $0 | $427,620 | $427,620 |
| 2024 | $397,550 | $108,000 | $0 | $505,550 | $505,550 |
| 2023 | $397,550 | $108,000 | $0 | $505,550 | $505,550 |
| 2022 | $361,410 | $89,100 | $0 | $450,510 | $450,510 |
| 2021 | $200,780 | $89,100 | $0 | $289,880 | $289,880 |
| 2020 | $167,320 | $89,100 | $0 | $256,420 | $256,420 |
| 2019 | $167,320 | $89,100 | $0 | $256,420 | $256,420 |
| 2018 | $180,580 | $47,800 | $0 | $228,380 | $228,380 |
| 2017 | $164,160 | $47,800 | $0 | $211,960 | $211,960 |
| 2016 | $136,800 | $47,800 | $0 | $184,600 | $55,200 |
| 2015 | $136,800 | $47,800 | $0 | $184,600 | $55,200 |
| 2014 | $136,800 | $47,800 | $0 | $184,600 | $55,200 |
| 2013 | $136,800 | $47,800 | $0 | $184,600 | $88,000 |
| 2012 | $146,500 | $47,800 | $0 | $0 | $0 |
| 2011 | $146,500 | $47,800 | $0 | $0 | $0 |
| 2010 | $137,200 | $47,800 | $0 | $0 | $0 |
| 2009 | $157,700 | $47,800 | $0 | $0 | $0 |
| 2008 | $157,700 | $47,800 | $0 | $0 | $0 |
| 2007 | $112,700 | $25,300 | $0 | $0 | $0 |
Deed and Sales History
| 1 | 06/05/2025 | SWD | STATUTORY WARRANTY DEED | MARTINEZ JORGE & MARCI JO LANNING | THORNE AMBER E | | | $425,000.00 | 149485 | 2025-03148 |
| 2 | 06/27/2019 | SWD | STATUTORY WARRANTY DEED | SLAUGHTER CHARLES WESLEY | MARTINEZ JORGE & MARCI JO LANNING | | | $248,000.00 | 137166 | 2019-04563 |
| 3 | 04/27/2018 | LOPA | LACK OF PROBATE AFFIDAVIT | SLAUGHTER WESLEY M | SLAUGHTER CHARLES WESLEY | | | $0.00 | 134574 | 2018-03289 |
| 4 | | DEATH CERT | DEATH CERTIFICATE | SLAUGHTER WESLEY M | | | | | 0 | |
| 5 | 01/01/1957 | QCD | QUIT CLAIM DEED | | | | | $0.00 | 0 | 2810-394611 |
Payout Agreement
| No payout information available.. |