Property
Account |
| Property ID: | 29802 | Abbreviated Legal Description: | PROSPECT HEIGHTS (PARCEL 3 OF SURVEY) LOT 10 & WLY PTN LOT 9 LESSS 50' PLUS PTN VAC ST BLOCK 2 |
| Parcel Number: | 360732570228 | Agent Code: | |
| Type: | Real | | |
| Tax Area: | 105 - 140-F-4 | Land Use Code | 11 |
| Open Space: | N | DFL | N |
| Historic Property: | N | Remodel Property: | N |
| Multi-Family Redevelopment: | N | | |
| Township: | 7 | Section: | 32 |
| Range: | 36 |
Location |
| Address: | 491 AYCOCK ACRES LN WALLA WALLA, WA 99362 | Mapsco: | |
| Neighborhood: | G MH Rural/City Inf | Map ID: | |
| Neighborhood CD: | 614062 |
Owner |
| Name: | CUMMINS DONNA | Owner ID: | 71534 |
| Mailing Address: | 457 PROSPECT AVE WALLA WALLA, WA 99362 | % Ownership: | 100.0000000000% |
| | | Exemptions: | |
Taxes and Assessment Details
Values
| (+) Improvement Homesite Value: | + | $209,800 | |
| (+) Improvement Non-Homesite Value: | + | $0 | |
| (+) Land Homesite Value: | + | $110,000 | |
| (+) Land Non-Homesite Value: | + | $0 | |
| (+) Curr Use (HS): | + | $0 | $0 |
| (+) Curr Use (NHS): | + | $0 | $0 |
| | | -------------------------- | |
| (=) Market Value: | = | $319,800 | |
| (–) Productivity Loss: | – | $0 | |
| | | -------------------------- | |
| (=) Subtotal: | = | $319,800 | |
| (+) Senior Appraised Value: | + | $0 | |
| (+) Non-Senior Appraised Value: | + | $319,800 | |
| | | -------------------------- | |
| (=) Total Appraised Value: | = | $319,800 | |
| (–) Senior Exemption Loss: | – | $0 | |
| (–) Exemption Loss: | – | $0 | |
| | | -------------------------- | |
| (=) Taxable Value: | = | $319,800 | |
Taxing Jurisdiction
| Owner: | CUMMINS DONNA | | |
| % Ownership: | 100.0000000000% | | |
| Total Value: | $319,800 | | |
| Tax Area: | 105 - 140-F-4 |
| CERFD | CURRENT EXPENSE REFUND 010 | 0.0000000000 | $319,800 | $319,800 | $0.00 | | |
| CURREXP | CURRENT EXPENSE 010 | 1.0175366760 | $319,800 | $319,800 | $325.41 | | |
| HUMNSERV | HUMAN SERVICES 119 | 0.0250000000 | $319,800 | $319,800 | $8.00 | | |
| SLDREL | SOLDIERS RELIEF 121 | 0.0155990005 | $319,800 | $319,800 | $4.99 | | |
| EMERGSER | EMS 147 | 0.3792580840 | $319,800 | $319,800 | $121.29 | | |
| EMSRFD | EMS REFUND 147 | 0.0000000000 | $319,800 | $319,800 | $0.00 | | |
| FD4EXP | FD #4 EXPENSE 686 | 0.8836993059 | $319,800 | $319,800 | $282.61 | | |
| RLBRFD | RURAL LIBRARY REFUND 623 | 0.0000000000 | $319,800 | $319,800 | $0.00 | | |
| RURALLIB | RURAL LIBRARY 623 | 0.3710609029 | $319,800 | $319,800 | $118.67 | | |
| PORTRFD | PORT REFUND 640 | 0.0000000000 | $319,800 | $319,800 | $0.00 | | |
| PORTWWGEN | PORT OF WW 640 | 0.2460186015 | $319,800 | $319,800 | $78.68 | | |
| SD140BOND | SD #140 BOND 764 | 0.8342371393 | $319,800 | $319,800 | $266.79 | | |
| SD140GEN | SD #140 GENERAL 760 | 2.0646500647 | $319,800 | $319,800 | $660.28 | | |
| ST2 | STATE SCHOOL PART 2 600 | 0.8131451643 | $319,800 | $319,800 | $260.04 | | |
| STATESCHL | STATE SCHOOL 600 | 1.5158548041 | $319,800 | $319,800 | $484.77 | | |
| STREFUND | STATE REFUND LEVY 603 | 0.0000000000 | $319,800 | $319,800 | $0.00 | | |
| COROAD | COUNTY ROAD 115 | 1.6549953990 | $319,800 | $319,800 | $529.27 | | |
| CRPRD | COUNTY ROAD REFUND 115 | 0.0000000000 | $319,800 | $319,800 | $0.00 | | |
| | Total Tax Rate: | 9.8210551422 | | | | | |
| | | | | Taxes w/Current Exemptions: | $3,140.80 | | |
| | | | | Taxes w/o Exemptions: | $3,140.80 | | |
Improvement / Building
| Improvement #1: | MANUFACTURED HOME | State Code: | 11 | 2400.0 sqft | Value: | $209,800 |
| Exterior Wall: | PLYWOOD | Heating/Cooling: | REV-HEAT-PUMP-W/DUCT | | Number of Bathrooms: | 2 | Number of Bedrooms: | 3 | | Plumbing: | 10 | Roof Covering: | COMP SHINGLE |
|
| | Type | Description | Class CD | Sub Class CD | Year Built | Area |
| | MOBHOME | MANUFACTURD HOMES | 1 | 40 | 2008 | 2400.0 |
| | GFP | GAS FIREPLACE | 1 | 40 | 2008 | 1.0 |
| | MI1 | MH SET-UP COSTS | 1 | 40 | 2008 | 1.0 |
| | WDR | WOOD DECK W/ROOF | 1 | 40 | 2011 | 176.0 |
| | OPS | OPEN PORCH W/STEPS | 1 | 40 | 2008 | 9.0 |
| | WOD | Wood Deck | 1 | 40 | 2011 | 110.0 |
| | DTG | Detached Garage | 1 | 40 | 2008 | 576.0 |
Sketch
Property Image
Land
| 1 | RES 1 | Converted: Residential | 1.0000 | 0.00 | 0.00 | 0.00 | 1.00 | $110,000 | $0 |
Roll Value History
| 2026 | N/A | N/A | N/A | N/A | N/A |
| 2025 | $213,390 | $170,000 | $0 | $383,390 | $383,390 |
| 2024 | $209,800 | $110,000 | $0 | $319,800 | $319,800 |
| 2023 | $209,800 | $110,000 | $0 | $319,800 | $319,800 |
| 2022 | $209,800 | $90,000 | $0 | $299,800 | $299,800 |
| 2021 | $199,810 | $90,000 | $0 | $289,810 | $289,810 |
| 2020 | $166,510 | $90,000 | $0 | $256,510 | $153,000 |
| 2019 | $166,510 | $90,000 | $0 | $256,510 | $153,000 |
| 2018 | $166,510 | $75,000 | $0 | $241,510 | $153,000 |
| 2017 | $158,580 | $75,000 | $0 | $233,580 | $89,200 |
| 2016 | $151,030 | $75,000 | $0 | $226,030 | $89,200 |
| 2015 | $137,300 | $75,000 | $0 | $212,300 | $84,920 |
| 2014 | $137,300 | $75,000 | $0 | $212,300 | $142,300 |
| 2013 | $137,300 | $75,000 | $0 | $212,300 | $142,300 |
| 2012 | $128,400 | $75,000 | $0 | $0 | $0 |
| 2011 | $109,900 | $75,000 | $0 | $0 | $0 |
| 2010 | $109,900 | $75,000 | $0 | $0 | $0 |
| 2009 | $130,400 | $75,000 | $0 | $0 | $0 |
| 2008 | $0 | $8,000 | $0 | $0 | $0 |
| 2007 | $137,300 | $75,000 | $0 | $0 | $0 |
Deed and Sales History
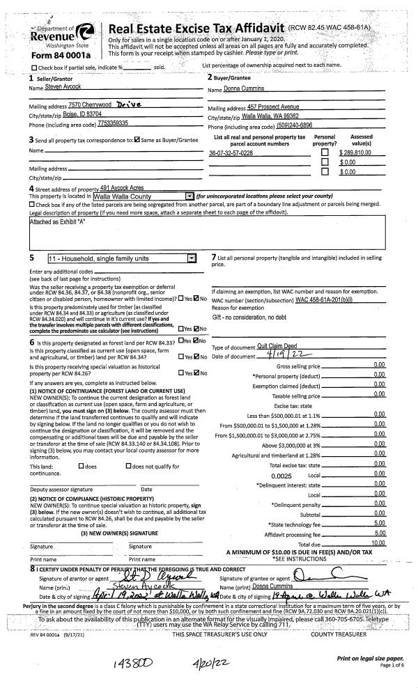
| 1 | 04/19/2022 | QCD | QUIT CLAIM DEED | CUMMINS DONNA | CUMMINS DONNA | | | $0.00 | 143800 | 2022-03365 |
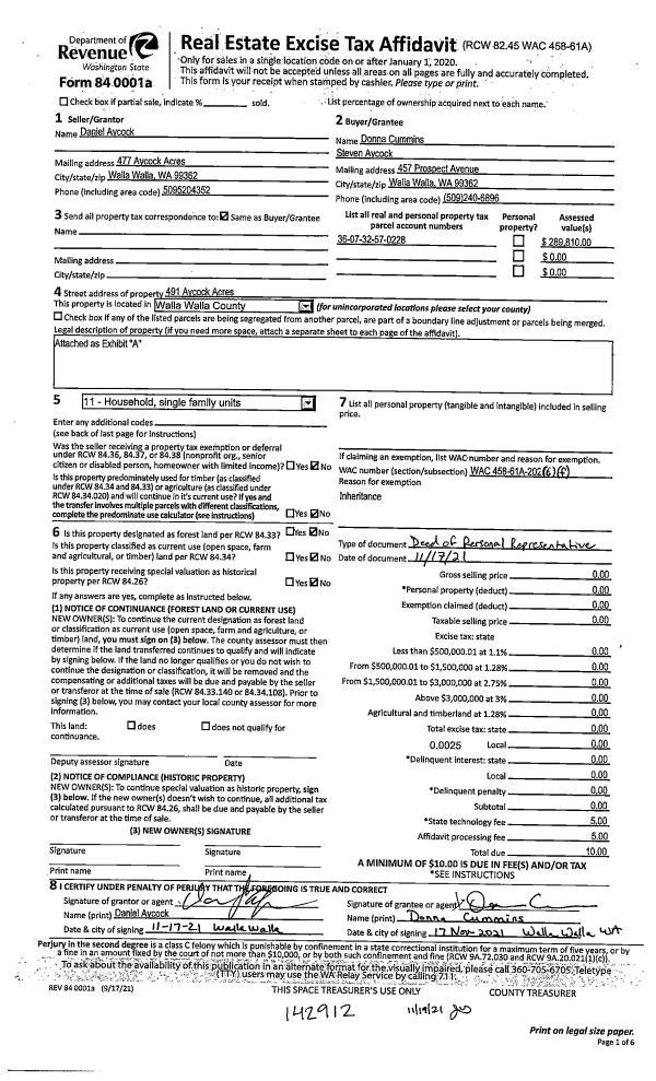
| 2 | 11/19/2021 | DPR | DEED OF PERSONAL REPRESENTATIVE | AYCOCK JACK T ESTATE OF | CUMMINS DONNA | | | $0.00 | 142912 | 2021-13794 |
Payout Agreement
| No payout information available.. |