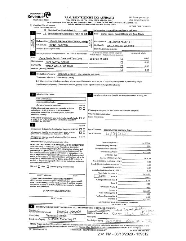
Property
Account |
| Property ID: | 29800 | Abbreviated Legal Description: | 21-7-36 TAX 66D |
| Parcel Number: | 360721440008 | Agent Code: | |
| Type: | Real | | |
| Tax Area: | 1 - OL-140-F | Land Use Code | 11 |
| Open Space: | N | DFL | N |
| Historic Property: | N | Remodel Property: | N |
| Multi-Family Redevelopment: | N | | |
| Township: | 7 | Section: | 21 |
| Range: | 36 |
Location |
| Address: | 1572 E ALDER ST WA 99362 | Mapsco: | |
| Neighborhood: | A-SFR | Map ID: | |
| Neighborhood CD: | 513011 |
Owner |
| Name: | DAVIS CARTER | Owner ID: | 67387 |
| Mailing Address: | DONALD DAVIS & TERA DAVIS 1572 E ALDER ST WALLA WALLA, WA 99362 | % Ownership: | 100.0000000000% |
| | | Exemptions: | |
Taxes and Assessment Details
Property Tax Information as of
02/21/2026
Click on "Statement Details" to expand or collapse a tax statement.
* Please enter a valid date ** Please enter a valid date *
Statement Details |
| | TOTAL: | $0.00 | $0.00 | $0.00 | $0.00 | $0.00 | $0.00 |
|
| | $0.00 | $0.00 | $0.00 | $0.00 | $0.00 | $0.00 |
Values
| (+) Improvement Homesite Value: | + | $0 | |
| (+) Improvement Non-Homesite Value: | + | $154,800 | |
| (+) Land Homesite Value: | + | $0 | |
| (+) Land Non-Homesite Value: | + | $43,560 | |
| (+) Curr Use (HS): | + | $0 | $0 |
| (+) Curr Use (NHS): | + | $0 | $0 |
| | | -------------------------- | |
| (=) Market Value: | = | $198,360 | |
| (–) Productivity Loss: | – | $0 | |
| | | -------------------------- | |
| (=) Subtotal: | = | $198,360 | |
| (+) Senior Appraised Value: | + | $0 | |
| (+) Non-Senior Appraised Value: | + | $198,360 | |
| | | -------------------------- | |
| (=) Total Appraised Value: | = | $198,360 | |
| (–) Senior Exemption Loss: | – | $0 | |
| (–) Exemption Loss: | – | $0 | |
| | | -------------------------- | |
| (=) Taxable Value: | = | $198,360 | |
Taxing Jurisdiction
| Owner: | DAVIS CARTER | | |
| % Ownership: | 100.0000000000% | | |
| Total Value: | $198,360 | | |
| Tax Area: | 1 - OL-140-F |
| CERFD | CURRENT EXPENSE REFUND 010 | 0.0000000000 | $198,360 | $198,360 | $0.00 | | |
| CURREXP | CURRENT EXPENSE 010 | 1.0175366760 | $198,360 | $198,360 | $201.84 | | |
| HUMNSERV | HUMAN SERVICES 119 | 0.0250000000 | $198,360 | $198,360 | $4.96 | | |
| SLDREL | SOLDIERS RELIEF 121 | 0.0155990005 | $198,360 | $198,360 | $3.09 | | |
| EMERGSER | EMS 147 | 0.3792580840 | $198,360 | $198,360 | $75.23 | | |
| EMSRFD | EMS REFUND 147 | 0.0000000000 | $198,360 | $198,360 | $0.00 | | |
| PORTRFD | PORT REFUND 640 | 0.0000000000 | $198,360 | $198,360 | $0.00 | | |
| PORTWWGEN | PORT OF WW 640 | 0.2460186015 | $198,360 | $198,360 | $48.80 | | |
| SD140BOND | SD #140 BOND 764 | 0.8342371393 | $198,360 | $198,360 | $165.48 | | |
| SD140GEN | SD #140 GENERAL 760 | 2.0646500647 | $198,360 | $198,360 | $409.54 | | |
| ST2 | STATE SCHOOL PART 2 600 | 0.8131451643 | $198,360 | $198,360 | $161.30 | | |
| STATESCHL | STATE SCHOOL 600 | 1.5158548041 | $198,360 | $198,360 | $300.68 | | |
| STREFUND | STATE REFUND LEVY 603 | 0.0000000000 | $198,360 | $198,360 | $0.00 | | |
| CWWBOND | C OF WW BOND 643 | 0.2760494372 | $198,360 | $198,360 | $54.76 | | |
| CWWGEN | CITY OF WW 631 | 1.6100204973 | $198,360 | $198,360 | $319.36 | | |
| CWWRFD | CITY OF WALLA WALLA REFUND 631 | 0.0000000000 | $198,360 | $198,360 | $0.00 | | |
| | Total Tax Rate: | 8.7973694689 | | | | | |
| | | | | Taxes w/Current Exemptions: | $1,745.04 | | |
| | | | | Taxes w/o Exemptions: | $1,745.04 | | |
Improvement / Building
| Improvement #1: | RESIDENTIAL | State Code: | 11 | 848.0 sqft | Value: | $154,800 |
| Exterior Wall: | STUCCO | Heating/Cooling: | FLOOR FURNACE | | Number of Bathrooms: | 1 | Number of Bedrooms: | 2 | | Plumbing: | 6 | Roof Covering: | COMP SHINGLE |
|
| | Type | Description | Class CD | Sub Class CD | Year Built | Area |
| | MA | Main Area | 1 | 20 | 1940 | 848.0 |
| | SI1 | SITE IMPROVEMENT | 1 | 20 | 1940 | 1.0 |
| | BASE | BASEMENT | 1 | 20 | 1940 | 315.0 |
| | BMF | BASEMENT - MIN FINISH | 1 | 20 | 1940 | 155.0 |
| | OPS | OPEN PORCH W/STEPS | 1 | 20 | 1940 | 25.0 |
| | DTG | Detached Garage | 1 | 20 | 1940 | 500.0 |
| | DTG | Detached Garage | 1 | 20 | 1940 | 180.0 |
Sketch
Property Image
Land
| 1 | RES 1 | Converted: Residential | 0.1600 | 6970.00 | 0.00 | 0.00 | 1.00 | $43,560 | $0 |
Roll Value History
| 2026 | N/A | N/A | N/A | N/A | N/A |
| 2025 | $130,120 | $69,700 | $0 | $199,820 | $199,820 |
| 2024 | $130,120 | $69,700 | $0 | $199,820 | $199,820 |
| 2023 | $154,800 | $43,560 | $0 | $198,360 | $198,360 |
| 2022 | $154,800 | $43,560 | $0 | $198,360 | $198,360 |
| 2021 | $86,000 | $43,560 | $0 | $129,560 | $129,560 |
| 2020 | $78,180 | $43,560 | $0 | $121,740 | $121,740 |
| 2019 | $78,180 | $43,560 | $0 | $121,740 | $121,740 |
| 2018 | $78,180 | $43,560 | $0 | $121,740 | $121,740 |
| 2017 | $82,150 | $27,900 | $0 | $110,050 | $110,050 |
| 2016 | $78,240 | $27,900 | $0 | $106,140 | $106,140 |
| 2015 | $78,240 | $27,900 | $0 | $106,140 | $106,140 |
| 2014 | $65,200 | $27,900 | $0 | $93,100 | $93,100 |
| 2013 | $65,200 | $27,900 | $0 | $93,100 | $93,100 |
| 2012 | $69,700 | $27,900 | $0 | $0 | $0 |
| 2011 | $69,700 | $27,900 | $0 | $0 | $0 |
| 2010 | $69,700 | $27,900 | $0 | $0 | $0 |
| 2009 | $80,500 | $27,900 | $0 | $0 | $0 |
| 2008 | $62,400 | $27,900 | $0 | $0 | $0 |
| 2007 | $62,400 | $27,900 | $0 | $0 | $0 |
Deed and Sales History
| 1 | 06/18/2020 | SWP | Special Warranty Deed | RMAC TRUST SERIES 2016-CTT | DAVIS CARTER | | | $134,000.00 | 139312 | 2020-05574 |
| 2 | 05/20/2020 | QCD | QUIT CLAIM DEED | LSF9 MASTER PARTICIPATION TRUST | RMAC TRUST SERIES 2016-CTT | | | $0.00 | 139311 | 2020-05573 |
| 3 | 12/20/2019 | SHERIFFS D | SHERIFFS DEED | | | | | | 138594 | |
| 4 | 03/18/2020 | SHERIFFS D | SHERIFFS DEED | WILDER HERSCHEL | LSF9 MASTER PARTICIPATION TRUST | | | $0.00 | 138839 | 2020-02593 |
| 5 | 04/11/2006 | QCD | QUIT CLAIM DEED | WILDER, HERSCHEL (SURVIVING | WILDER, HERSCHEL | | | | 110012 | 2006-04109 |
| 6 | 08/11/1995 | WARRANTY D | WARRANTY DEED | | | | | $74,500.00 | 84544 | 2329-507597 |
Payout Agreement
| No payout information available.. |