Property
Account |
| Property ID: | 29799 | Abbreviated Legal Description: | HORTON HEIGHTS LOT 1 BLK 2 |
| Parcel Number: | 360729690201 | Agent Code: | |
| Type: | Real | | |
| Tax Area: | 1 - OL-140-F | Land Use Code | 11 |
| Open Space: | N | DFL | N |
| Historic Property: | N | Remodel Property: | N |
| Multi-Family Redevelopment: | N | | |
| Township: | 7 | Section: | 29 |
| Range: | 36 |
Location |
| Address: | 1404 MODOC ST WA 99362 | Mapsco: | |
| Neighborhood: | A Res | Map ID: | |
| Neighborhood CD: | 613011 |
Owner |
| Name: | LUND LISA J | Owner ID: | 64230 |
| Mailing Address: | 514 AMERICAS WAY PMB 23271 BOX ELDER, SD 57719 | % Ownership: | 100.0000000000% |
| | | Exemptions: | |
Taxes and Assessment Details
Values
| (+) Improvement Homesite Value: | + | $240,710 | |
| (+) Improvement Non-Homesite Value: | + | $0 | |
| (+) Land Homesite Value: | + | $72,900 | |
| (+) Land Non-Homesite Value: | + | $0 | |
| (+) Curr Use (HS): | + | $0 | $0 |
| (+) Curr Use (NHS): | + | $0 | $0 |
| | | -------------------------- | |
| (=) Market Value: | = | $313,610 | |
| (–) Productivity Loss: | – | $0 | |
| | | -------------------------- | |
| (=) Subtotal: | = | $313,610 | |
| (+) Senior Appraised Value: | + | $0 | |
| (+) Non-Senior Appraised Value: | + | $313,610 | |
| | | -------------------------- | |
| (=) Total Appraised Value: | = | $313,610 | |
| (–) Senior Exemption Loss: | – | $0 | |
| (–) Exemption Loss: | – | $0 | |
| | | -------------------------- | |
| (=) Taxable Value: | = | $313,610 | |
Taxing Jurisdiction
| Owner: | LUND LISA J | | |
| % Ownership: | 100.0000000000% | | |
| Total Value: | $313,610 | | |
| Tax Area: | 1 - OL-140-F |
| CERFD | CURRENT EXPENSE REFUND 010 | 0.0000000000 | $313,610 | $313,610 | $0.00 | | |
| CURREXP | CURRENT EXPENSE 010 | 1.0175366760 | $313,610 | $313,610 | $319.11 | | |
| HUMNSERV | HUMAN SERVICES 119 | 0.0250000000 | $313,610 | $313,610 | $7.84 | | |
| SLDREL | SOLDIERS RELIEF 121 | 0.0155990005 | $313,610 | $313,610 | $4.89 | | |
| EMERGSER | EMS 147 | 0.3792580840 | $313,610 | $313,610 | $118.94 | | |
| EMSRFD | EMS REFUND 147 | 0.0000000000 | $313,610 | $313,610 | $0.00 | | |
| PORTRFD | PORT REFUND 640 | 0.0000000000 | $313,610 | $313,610 | $0.00 | | |
| PORTWWGEN | PORT OF WW 640 | 0.2460186015 | $313,610 | $313,610 | $77.15 | | |
| SD140BOND | SD #140 BOND 764 | 0.8342371393 | $313,610 | $313,610 | $261.63 | | |
| SD140GEN | SD #140 GENERAL 760 | 2.0646500647 | $313,610 | $313,610 | $647.49 | | |
| ST2 | STATE SCHOOL PART 2 600 | 0.8131451643 | $313,610 | $313,610 | $255.01 | | |
| STATESCHL | STATE SCHOOL 600 | 1.5158548041 | $313,610 | $313,610 | $475.39 | | |
| STREFUND | STATE REFUND LEVY 603 | 0.0000000000 | $313,610 | $313,610 | $0.00 | | |
| CWWBOND | C OF WW BOND 643 | 0.2760494372 | $313,610 | $313,610 | $86.57 | | |
| CWWGEN | CITY OF WW 631 | 1.6100204973 | $313,610 | $313,610 | $504.92 | | |
| CWWRFD | CITY OF WALLA WALLA REFUND 631 | 0.0000000000 | $313,610 | $313,610 | $0.00 | | |
| | Total Tax Rate: | 8.7973694689 | | | | | |
| | | | | Taxes w/Current Exemptions: | $2,758.94 | | |
| | | | | Taxes w/o Exemptions: | $2,758.94 | | |
Improvement / Building
| Improvement #1: | RESIDENTIAL | State Code: | 11 | 1284.0 sqft | Value: | $240,710 |
| Exterior Wall: | HARDBOARD | Heating/Cooling: | WARM & COOLED AIR | | Number of Bathrooms: | 2 | Number of Bedrooms: | 3 | | Plumbing: | 10 | Roof Covering: | COMP SHINGLE |
|
| | Type | Description | Class CD | Sub Class CD | Year Built | Area |
| | MA | Main Area | 1 | 30 | 1973 | 1284.0 |
| | SI1 | SITE IMPROVEMENT | 1 | 30 | 1973 | 1.5 |
| | ATG | Attached Garage | 1 | 30 | 1973 | 572.0 |
| | RPO | OPEN PORCH W/ROOF | 1 | 30 | 1973 | 12.0 |
| | RPS | PORCH W/STEPS,ROOF | 1 | 30 | 1973 | 15.0 |
| | WDR | WOOD DECK W/ROOF | 1 | 30 | 1973 | 256.0 |
Sketch
Property Image
Land
| 1 | RES 1 | Converted: Residential | 0.1860 | 8100.00 | 0.00 | 0.00 | 1.00 | $72,900 | $0 |
Roll Value History
| 2026 | N/A | N/A | N/A | N/A | N/A |
| 2025 | $270,610 | $89,100 | $0 | $359,710 | $359,710 |
| 2024 | $240,710 | $72,900 | $0 | $313,610 | $313,610 |
| 2023 | $240,710 | $72,900 | $0 | $313,610 | $313,610 |
| 2022 | $240,710 | $58,730 | $0 | $299,440 | $299,440 |
| 2021 | $200,590 | $58,730 | $0 | $259,320 | $259,320 |
| 2020 | $160,470 | $58,730 | $0 | $219,200 | $219,200 |
| 2019 | $160,470 | $58,730 | $0 | $219,200 | $219,200 |
| 2018 | $115,110 | $45,500 | $0 | $160,610 | $160,610 |
| 2017 | $115,110 | $45,500 | $0 | $160,610 | $58,840 |
| 2016 | $104,650 | $45,500 | $0 | $150,150 | $58,840 |
| 2015 | $104,650 | $45,500 | $0 | $150,150 | $58,840 |
| 2014 | $101,600 | $45,500 | $0 | $147,100 | $95,615 |
| 2013 | $101,600 | $45,500 | $0 | $147,100 | $147,100 |
| 2012 | $93,200 | $45,500 | $0 | $0 | $0 |
| 2011 | $93,200 | $45,500 | $0 | $0 | $0 |
| 2010 | $93,200 | $45,500 | $0 | $0 | $0 |
| 2009 | $108,600 | $45,500 | $0 | $0 | $0 |
| 2008 | $108,600 | $45,500 | $0 | $0 | $0 |
| 2007 | $86,300 | $23,000 | $0 | $0 | $0 |
Deed and Sales History
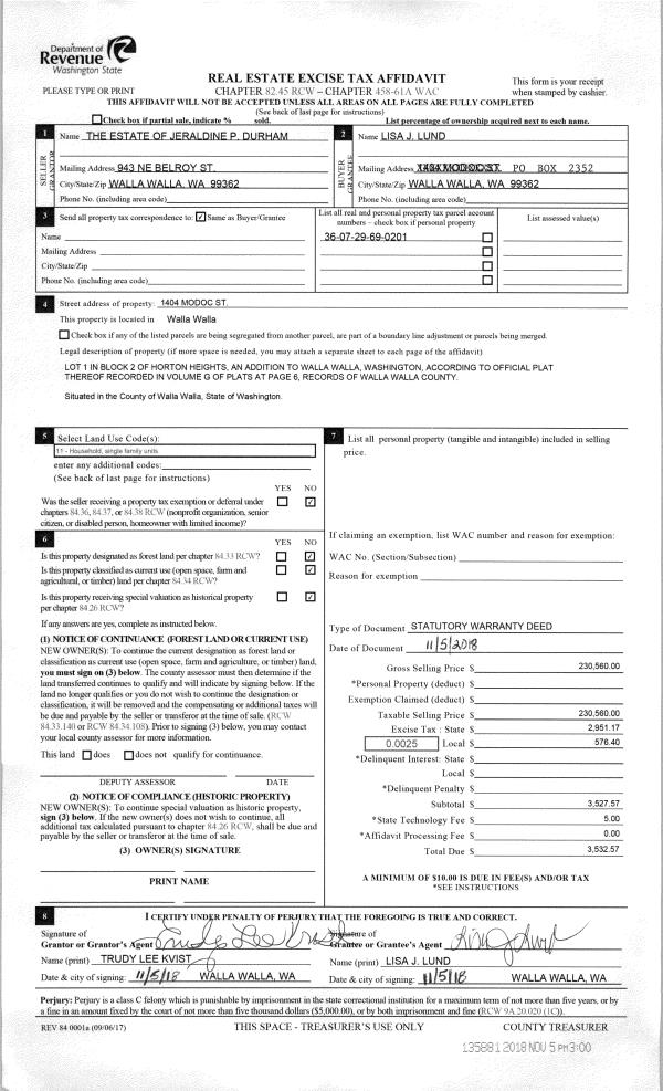
| 1 | 11/05/2018 | SWD | STATUTORY WARRANTY DEED | DURHAM JERALDINE P ESTATE OF | LUND LISA J | | | $230,560.00 | 135881 | 2018-09181 |
| 2 | 07/30/1993 | WARRANTY D | WARRANTY DEED | | | | | $91,500.00 | 79637 | 2099-307814 |
Payout Agreement
| No payout information available.. |