Property
Account |
| Property ID: | 29767 | Abbreviated Legal Description: | MEADOW VIEW LOT 6 BLK 1 |
| Parcel Number: | 360732550106 | Agent Code: | |
| Type: | Real | | |
| Tax Area: | 1 - OL-140-F | Land Use Code | 11 |
| Open Space: | N | DFL | N |
| Historic Property: | N | Remodel Property: | N |
| Multi-Family Redevelopment: | N | | |
| Township: | 7 | Section: | 32 |
| Range: | 36 |
Location |
| Address: | 119 LEONARD ST WA 99362 | Mapsco: | |
| Neighborhood: | A Res | Map ID: | |
| Neighborhood CD: | 613011 |
Owner |
| Name: | LEISLE JAMEY C | Owner ID: | 74083 |
| Mailing Address: | 119 LEONARD ST WALLA WALLA, WA 99362 | % Ownership: | 100.0000000000% |
| | | Exemptions: | |
Taxes and Assessment Details
Property Tax Information as of
02/21/2026
Click on "Statement Details" to expand or collapse a tax statement.
* Please enter a valid date ** Please enter a valid date *
Statement Details |
| | TOTAL: | $0.00 | $0.00 | $0.00 | $0.00 | $0.00 | $0.00 |
|
| | $0.00 | $0.00 | $0.00 | $0.00 | $0.00 | $0.00 |
Values
| (+) Improvement Homesite Value: | + | $275,970 | |
| (+) Improvement Non-Homesite Value: | + | $0 | |
| (+) Land Homesite Value: | + | $69,300 | |
| (+) Land Non-Homesite Value: | + | $0 | |
| (+) Curr Use (HS): | + | $0 | $0 |
| (+) Curr Use (NHS): | + | $0 | $0 |
| | | -------------------------- | |
| (=) Market Value: | = | $345,270 | |
| (–) Productivity Loss: | – | $0 | |
| | | -------------------------- | |
| (=) Subtotal: | = | $345,270 | |
| (+) Senior Appraised Value: | + | $0 | |
| (+) Non-Senior Appraised Value: | + | $345,270 | |
| | | -------------------------- | |
| (=) Total Appraised Value: | = | $345,270 | |
| (–) Senior Exemption Loss: | – | $0 | |
| (–) Exemption Loss: | – | $0 | |
| | | -------------------------- | |
| (=) Taxable Value: | = | $345,270 | |
Taxing Jurisdiction
| Owner: | LEISLE JAMEY C | | |
| % Ownership: | 100.0000000000% | | |
| Total Value: | $345,270 | | |
| Tax Area: | 1 - OL-140-F |
| CERFD | CURRENT EXPENSE REFUND 010 | 0.0000000000 | $345,270 | $345,270 | $0.00 | | |
| CURREXP | CURRENT EXPENSE 010 | 1.0175366760 | $345,270 | $345,270 | $351.32 | | |
| HUMNSERV | HUMAN SERVICES 119 | 0.0250000000 | $345,270 | $345,270 | $8.63 | | |
| SLDREL | SOLDIERS RELIEF 121 | 0.0155990005 | $345,270 | $345,270 | $5.39 | | |
| EMERGSER | EMS 147 | 0.3792580840 | $345,270 | $345,270 | $130.95 | | |
| EMSRFD | EMS REFUND 147 | 0.0000000000 | $345,270 | $345,270 | $0.00 | | |
| PORTRFD | PORT REFUND 640 | 0.0000000000 | $345,270 | $345,270 | $0.00 | | |
| PORTWWGEN | PORT OF WW 640 | 0.2460186015 | $345,270 | $345,270 | $84.94 | | |
| SD140BOND | SD #140 BOND 764 | 0.8342371393 | $345,270 | $345,270 | $288.04 | | |
| SD140GEN | SD #140 GENERAL 760 | 2.0646500647 | $345,270 | $345,270 | $712.86 | | |
| ST2 | STATE SCHOOL PART 2 600 | 0.8131451643 | $345,270 | $345,270 | $280.75 | | |
| STATESCHL | STATE SCHOOL 600 | 1.5158548041 | $345,270 | $345,270 | $523.38 | | |
| STREFUND | STATE REFUND LEVY 603 | 0.0000000000 | $345,270 | $345,270 | $0.00 | | |
| CWWBOND | C OF WW BOND 643 | 0.2760494372 | $345,270 | $345,270 | $95.31 | | |
| CWWGEN | CITY OF WW 631 | 1.6100204973 | $345,270 | $345,270 | $555.89 | | |
| CWWRFD | CITY OF WALLA WALLA REFUND 631 | 0.0000000000 | $345,270 | $345,270 | $0.00 | | |
| | Total Tax Rate: | 8.7973694689 | | | | | |
| | | | | Taxes w/Current Exemptions: | $3,037.46 | | |
| | | | | Taxes w/o Exemptions: | $3,037.46 | | |
Improvement / Building
| Improvement #1: | RESIDENTIAL | State Code: | 11 | 1092.0 sqft | Value: | $275,970 |
| Exterior Wall: | METAL/STEEL | Heating/Cooling: | WARM & COOLED AIR | | Number of Bathrooms: | 1 | Number of Bedrooms: | 3 | | Plumbing: | 6 | Roof Covering: | COMP SHINGLE |
|
| | Type | Description | Class CD | Sub Class CD | Year Built | Area |
| | MA | Main Area | 1 | 30 | 1957 | 1092.0 |
| | SI1 | SITE IMPROVEMENT | 1 | 30 | 1957 | 1.5 |
| | BASE | BASEMENT | 1 | 30 | 1957 | 550.0 |
| | BPF | BASEMENT -PARTITIONED FINISH | 1 | 30 | 1957 | 550.0 |
| | ATG | Attached Garage | 1 | 30 | 1957 | 252.0 |
| | OSP | Open | 1 | 30 | 1957 | 25.0 |
| | WDR | WOOD DECK W/ROOF | 1 | 30 | 1957 | 504.0 |
| | S1F | Single One Story Fireplace | 1 | 30 | 1957 | 1.0 |
| | TOOL | TOOL SHED | 1 | 30 | 1957 | 140.0 |
Sketch
Property Image
Land
| 1 | RES 1 | Converted: Residential | 0.1768 | 7700.00 | 0.00 | 0.00 | 1.00 | $69,300 | $0 |
Roll Value History
| 2026 | N/A | N/A | N/A | N/A | N/A |
| 2025 | $288,950 | $84,700 | $0 | $373,650 | $373,650 |
| 2024 | $275,970 | $69,300 | $0 | $345,270 | $345,270 |
| 2023 | $275,970 | $69,300 | $0 | $345,270 | $345,270 |
| 2022 | $239,970 | $55,830 | $0 | $295,800 | $155,400 |
| 2021 | $208,670 | $55,830 | $0 | $264,500 | $155,400 |
| 2020 | $154,570 | $55,830 | $0 | $210,400 | $155,400 |
| 2019 | $154,570 | $55,830 | $0 | $210,400 | $62,160 |
| 2018 | $128,140 | $45,200 | $0 | $173,340 | $62,160 |
| 2017 | $122,040 | $45,200 | $0 | $167,240 | $62,160 |
| 2016 | $101,700 | $45,200 | $0 | $146,900 | $58,760 |
| 2015 | $101,700 | $45,200 | $0 | $146,900 | $58,760 |
| 2014 | $101,700 | $45,200 | $0 | $146,900 | $58,760 |
| 2013 | $101,700 | $45,200 | $0 | $146,900 | $58,760 |
| 2012 | $101,700 | $45,200 | $0 | $0 | $0 |
| 2011 | $101,700 | $45,200 | $0 | $0 | $0 |
| 2010 | $94,700 | $45,200 | $0 | $0 | $0 |
| 2009 | $110,200 | $45,200 | $0 | $0 | $0 |
| 2008 | $110,200 | $45,200 | $0 | $0 | $0 |
| 2007 | $87,000 | $22,700 | $0 | $0 | $0 |
Deed and Sales History
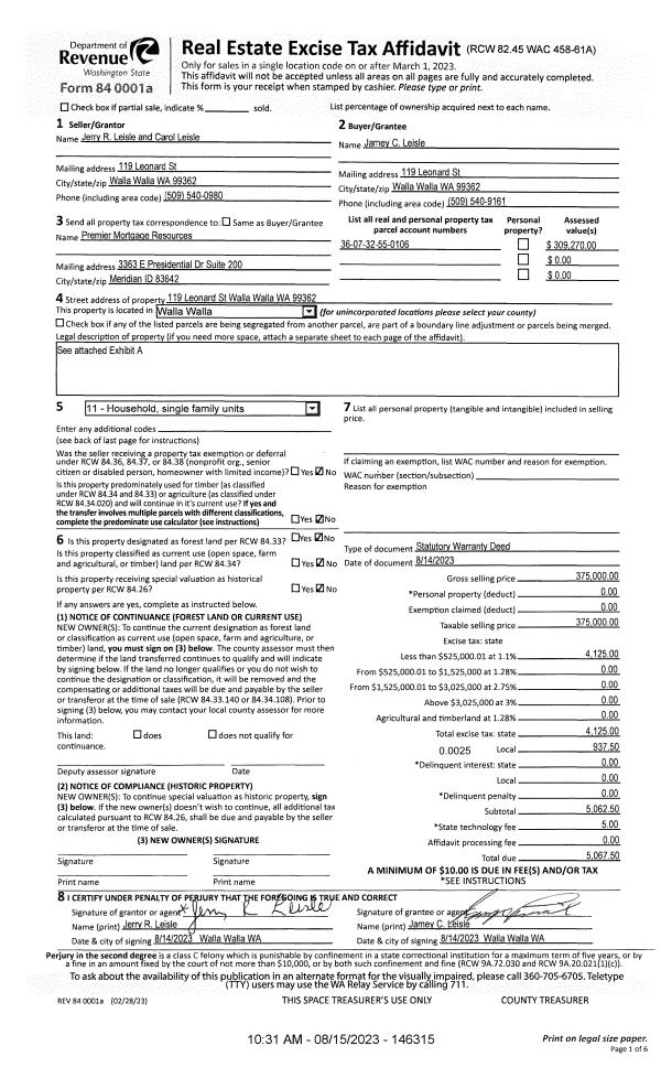
| 1 | 08/15/2023 | SWD | STATUTORY WARRANTY DEED | LEISLE JERRY R & CAROL | LEISLE JAMEY C | | | $375,000.00 | 146315 | 2023-04695 |
| 2 | 04/07/2020 | QCD | QUIT CLAIM DEED | LEISLE JERRY R | LEISLE JERRY R & CAROL | | | $0.00 | 141481 | 2021-05282 |
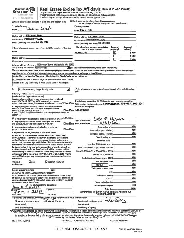
| 3 | 04/27/2021 | LOPA | LACK OF PROBATE AFFIDAVIT | LEISLE JERRY R & NORMA | LEISLE JERRY R | | | $0.00 | 141480 | 2021-05281 |
| 4 | 11/14/2007 | WARRANTY D | WARRANTY DEED | RINGHOFFER, WINNIFRED | LEISLE, JERRY R & NORMA | | | $169,900.00 | 114081 | 2007-13118 |
| 5 | 08/28/1990 | WARRANTY D | WARRANTY DEED | | | | | $68,500.00 | 0 | 1849-005936 |
Payout Agreement
| No payout information available.. |