Property
Account |
| Property ID: | 29763 | Abbreviated Legal Description: | WATERTOWN LOT 2 BLK 5 |
| Parcel Number: | 360721730502 | Agent Code: | |
| Type: | Real | | |
| Tax Area: | 1 - OL-140-F | Land Use Code | 11 |
| Open Space: | N | DFL | N |
| Historic Property: | N | Remodel Property: | N |
| Multi-Family Redevelopment: | N | | |
| Township: | 7 | Section: | 21 |
| Range: | 36 |
Location |
| Address: | 1154 E ALDER ST WA 99362 | Mapsco: | |
| Neighborhood: | A-SFR | Map ID: | |
| Neighborhood CD: | 513011 |
Owner |
| Name: | CHAPMAN WILLIAM & LORRI | Owner ID: | 20148 |
| Mailing Address: | 209 AVERY WALLA WALLA, WA 99362 | % Ownership: | 100.0000000000% |
| | | Exemptions: | |
Taxes and Assessment Details
Property Tax Information as of
02/21/2026
Click on "Statement Details" to expand or collapse a tax statement.
* Please enter a valid date ** Please enter a valid date *
Statement Details |
| | TOTAL: | $0.00 | $0.00 | $0.00 | $0.00 | $0.00 | $0.00 |
|
| | $0.00 | $0.00 | $0.00 | $0.00 | $0.00 | $0.00 |
Values
| (+) Improvement Homesite Value: | + | $214,910 | |
| (+) Improvement Non-Homesite Value: | + | $0 | |
| (+) Land Homesite Value: | + | $46,880 | |
| (+) Land Non-Homesite Value: | + | $0 | |
| (+) Curr Use (HS): | + | $0 | $0 |
| (+) Curr Use (NHS): | + | $0 | $0 |
| | | -------------------------- | |
| (=) Market Value: | = | $261,790 | |
| (–) Productivity Loss: | – | $0 | |
| | | -------------------------- | |
| (=) Subtotal: | = | $261,790 | |
| (+) Senior Appraised Value: | + | $0 | |
| (+) Non-Senior Appraised Value: | + | $261,790 | |
| | | -------------------------- | |
| (=) Total Appraised Value: | = | $261,790 | |
| (–) Senior Exemption Loss: | – | $0 | |
| (–) Exemption Loss: | – | $0 | |
| | | -------------------------- | |
| (=) Taxable Value: | = | $261,790 | |
Taxing Jurisdiction
| Owner: | CHAPMAN WILLIAM & LORRI | | |
| % Ownership: | 100.0000000000% | | |
| Total Value: | $261,790 | | |
| Tax Area: | 1 - OL-140-F |
| CERFD | CURRENT EXPENSE REFUND 010 | 0.0000000000 | $261,790 | $261,790 | $0.00 | | |
| CURREXP | CURRENT EXPENSE 010 | 1.0175366760 | $261,790 | $261,790 | $266.38 | | |
| HUMNSERV | HUMAN SERVICES 119 | 0.0250000000 | $261,790 | $261,790 | $6.54 | | |
| SLDREL | SOLDIERS RELIEF 121 | 0.0155990005 | $261,790 | $261,790 | $4.08 | | |
| EMERGSER | EMS 147 | 0.3792580840 | $261,790 | $261,790 | $99.29 | | |
| EMSRFD | EMS REFUND 147 | 0.0000000000 | $261,790 | $261,790 | $0.00 | | |
| PORTRFD | PORT REFUND 640 | 0.0000000000 | $261,790 | $261,790 | $0.00 | | |
| PORTWWGEN | PORT OF WW 640 | 0.2460186015 | $261,790 | $261,790 | $64.41 | | |
| SD140BOND | SD #140 BOND 764 | 0.8342371393 | $261,790 | $261,790 | $218.39 | | |
| SD140GEN | SD #140 GENERAL 760 | 2.0646500647 | $261,790 | $261,790 | $540.50 | | |
| ST2 | STATE SCHOOL PART 2 600 | 0.8131451643 | $261,790 | $261,790 | $212.87 | | |
| STATESCHL | STATE SCHOOL 600 | 1.5158548041 | $261,790 | $261,790 | $396.84 | | |
| STREFUND | STATE REFUND LEVY 603 | 0.0000000000 | $261,790 | $261,790 | $0.00 | | |
| CWWBOND | C OF WW BOND 643 | 0.2760494372 | $261,790 | $261,790 | $72.27 | | |
| CWWGEN | CITY OF WW 631 | 1.6100204973 | $261,790 | $261,790 | $421.49 | | |
| CWWRFD | CITY OF WALLA WALLA REFUND 631 | 0.0000000000 | $261,790 | $261,790 | $0.00 | | |
| | Total Tax Rate: | 8.7973694689 | | | | | |
| | | | | Taxes w/Current Exemptions: | $2,303.06 | | |
| | | | | Taxes w/o Exemptions: | $2,303.06 | | |
Improvement / Building
| Improvement #1: | RESIDENTIAL | State Code: | 11 | 1160.0 sqft | Value: | $214,910 |
| Exterior Wall: | VINYL | Heating/Cooling: | WARM & COOLED AIR | | Number of Bathrooms: | 2 | Number of Bedrooms: | 2 | | Plumbing: | 9 | Roof Covering: | COMP SHINGLE |
|
| | Type | Description | Class CD | Sub Class CD | Year Built | Area |
| | MA | Main Area | 1 | 30 | 1955 | 1160.0 |
| | SI1 | SITE IMPROVEMENT | 1 | 30 | 1955 | 1.0 |
| | OSP | Open | 1 | 30 | 1955 | 16.0 |
| | POL3 | POLE BUILDING-CON,ELEC,INSU | 1 | 30 | 1955 | 672.0 |
| | DTG | Detached Garage | 1 | 30 | 1955 | 308.0 |
| | WOD | Wood Deck | 1 | 30 | 1955 | 192.0 |
Sketch
Property Image
Land
| 1 | RES 1 | Converted: Residential | 0.1722 | 7500.00 | 0.00 | 0.00 | 1.00 | $46,880 | $0 |
Roll Value History
| 2026 | N/A | N/A | N/A | N/A | N/A |
| 2025 | $224,820 | $75,000 | $0 | $299,820 | $299,820 |
| 2024 | $187,350 | $75,000 | $0 | $262,350 | $262,350 |
| 2023 | $214,910 | $46,880 | $0 | $261,790 | $261,790 |
| 2022 | $214,910 | $46,880 | $0 | $261,790 | $261,790 |
| 2021 | $179,090 | $46,880 | $0 | $225,970 | $225,970 |
| 2020 | $123,510 | $46,880 | $0 | $170,390 | $170,390 |
| 2019 | $123,510 | $46,880 | $0 | $170,390 | $170,390 |
| 2018 | $117,630 | $46,880 | $0 | $164,510 | $164,510 |
| 2017 | $104,150 | $30,000 | $0 | $134,150 | $134,150 |
| 2016 | $94,680 | $30,000 | $0 | $124,680 | $124,680 |
| 2015 | $94,680 | $30,000 | $0 | $124,680 | $49,872 |
| 2014 | $105,200 | $30,000 | $0 | $135,200 | $54,080 |
| 2013 | $105,200 | $30,000 | $0 | $135,200 | $135,200 |
| 2012 | $105,200 | $30,000 | $0 | $0 | $0 |
| 2011 | $112,300 | $30,000 | $0 | $0 | $0 |
| 2010 | $105,500 | $30,000 | $0 | $0 | $0 |
| 2009 | $120,500 | $30,000 | $0 | $0 | $0 |
| 2008 | $90,400 | $30,000 | $0 | $0 | $0 |
| 2007 | $90,400 | $30,000 | $0 | $0 | $0 |
Deed and Sales History
| 1 | 04/21/2017 | DPR | DEED OF PERSONAL REPRESENTATIVE | BUCKHAM SUE M | CHAPMAN WILLIAM & LORRI | | | $0.00 | 132353 | 2017-03524 |
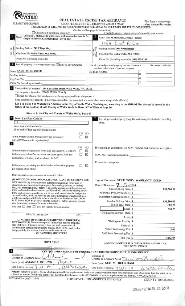
| 2 | 07/21/2014 | SWD | STATUTORY WARRANTY DEED | MILLER LORRAINE I LIFE ESTATE | BUCKHAM SUE M | | | $131,500.00 | 126284 | 2014-05070 |
| 3 | 02/06/2007 | QCD | QUIT CLAIM DEED | MILLER, LORRIAINE I A SINGLE P | MILLER, LORRAINE I LIFE ESTATE | | | | 112199 | 2007-01505 |
| 4 | 04/25/1986 | WARRANTY D | WARRANTY DEED | | | | | $38,000.00 | 0 | 3280-497614 |
Payout Agreement
| No payout information available.. |