Property
Account |
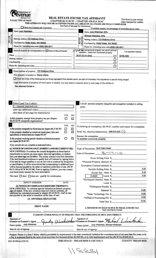
| Property ID: | 29755 | Abbreviated Legal Description: | ABBOTT ACRES LOT 1 LESS LAND SOLD |
| Parcel Number: | 360733510042 | Agent Code: | |
| Type: | Real | | |
| Tax Area: | 1 - OL-140-F | Land Use Code | 11 |
| Open Space: | N | DFL | N |
| Historic Property: | N | Remodel Property: | N |
| Multi-Family Redevelopment: | N | | |
| Township: | 7 | Section: | 33 |
| Range: | 36 |
Location |
| Address: | 723 WALLOWA DR WA 99362 | Mapsco: | |
| Neighborhood: | G Res | Map ID: | |
| Neighborhood CD: | 614011 |
Owner |
| Name: | WISKIRKEN JUDY | Owner ID: | 60550 |
| Mailing Address: | MICHAEL WISKIRKEN 723 WALLOWA DR WALLA WALLA, WA 99362 | % Ownership: | 100.0000000000% |
| | | Exemptions: | |
Taxes and Assessment Details
Values
| (+) Improvement Homesite Value: | + | $0 | |
| (+) Improvement Non-Homesite Value: | + | $190,970 | |
| (+) Land Homesite Value: | + | $0 | |
| (+) Land Non-Homesite Value: | + | $133,550 | |
| (+) Curr Use (HS): | + | $0 | $0 |
| (+) Curr Use (NHS): | + | $0 | $0 |
| | | -------------------------- | |
| (=) Market Value: | = | $324,520 | |
| (–) Productivity Loss: | – | $0 | |
| | | -------------------------- | |
| (=) Subtotal: | = | $324,520 | |
| (+) Senior Appraised Value: | + | $0 | |
| (+) Non-Senior Appraised Value: | + | $324,520 | |
| | | -------------------------- | |
| (=) Total Appraised Value: | = | $324,520 | |
| (–) Senior Exemption Loss: | – | $0 | |
| (–) Exemption Loss: | – | $0 | |
| | | -------------------------- | |
| (=) Taxable Value: | = | $324,520 | |
Taxing Jurisdiction
| Owner: | WISKIRKEN JUDY | | |
| % Ownership: | 100.0000000000% | | |
| Total Value: | $324,520 | | |
| Tax Area: | 1 - OL-140-F |
| CERFD | CURRENT EXPENSE REFUND 010 | 0.0000000000 | $324,520 | $324,520 | $0.00 | | |
| CURREXP | CURRENT EXPENSE 010 | 1.0175366760 | $324,520 | $324,520 | $330.21 | | |
| HUMNSERV | HUMAN SERVICES 119 | 0.0250000000 | $324,520 | $324,520 | $8.11 | | |
| SLDREL | SOLDIERS RELIEF 121 | 0.0155990005 | $324,520 | $324,520 | $5.06 | | |
| EMERGSER | EMS 147 | 0.3792580840 | $324,520 | $324,520 | $123.08 | | |
| EMSRFD | EMS REFUND 147 | 0.0000000000 | $324,520 | $324,520 | $0.00 | | |
| PORTRFD | PORT REFUND 640 | 0.0000000000 | $324,520 | $324,520 | $0.00 | | |
| PORTWWGEN | PORT OF WW 640 | 0.2460186015 | $324,520 | $324,520 | $79.84 | | |
| SD140BOND | SD #140 BOND 764 | 0.8342371393 | $324,520 | $324,520 | $270.73 | | |
| SD140GEN | SD #140 GENERAL 760 | 2.0646500647 | $324,520 | $324,520 | $670.02 | | |
| ST2 | STATE SCHOOL PART 2 600 | 0.8131451643 | $324,520 | $324,520 | $263.88 | | |
| STATESCHL | STATE SCHOOL 600 | 1.5158548041 | $324,520 | $324,520 | $491.93 | | |
| STREFUND | STATE REFUND LEVY 603 | 0.0000000000 | $324,520 | $324,520 | $0.00 | | |
| CWWBOND | C OF WW BOND 643 | 0.2760494372 | $324,520 | $324,520 | $89.58 | | |
| CWWGEN | CITY OF WW 631 | 1.6100204973 | $324,520 | $324,520 | $522.48 | | |
| CWWRFD | CITY OF WALLA WALLA REFUND 631 | 0.0000000000 | $324,520 | $324,520 | $0.00 | | |
| | Total Tax Rate: | 8.7973694689 | | | | | |
| | | | | Taxes w/Current Exemptions: | $2,854.92 | | |
| | | | | Taxes w/o Exemptions: | $2,854.92 | | |
Improvement / Building
| Improvement #1: | RESIDENTIAL | State Code: | 11 | 1456.0 sqft | Value: | $190,970 |
| Exterior Wall: | STUCCO | Heating/Cooling: | WARM & COOLED AIR | | Number of Bathrooms: | 1 | Number of Bedrooms: | 2 | | Plumbing: | 6 | Roof Covering: | COMP SHINGLE |
|
| | Type | Description | Class CD | Sub Class CD | Year Built | Area |
| | MA | Main Area | 4 | 30 | 1916 | 1456.0 |
| | UPFL | Upper Floor (included in main area) | 4 | 30 | 1916 | 350.0 |
| | SI1 | SITE IMPROVEMENT | 4 | 30 | 1916 | 2.5 |
| | BASE | BASEMENT | 4 | 30 | 1916 | 1072.0 |
| | DTG | Detached Garage | 4 | 30 | 1916 | 672.0 |
| | WOD | Wood Deck | 4 | 30 | 1916 | 30.0 |
| | PRC | PORCH W STEPS, ROOF,CEILED | 4 | 30 | 1916 | 30.0 |
Sketch
Property Image
Land
| 1 | RES 1 | Converted: Residential | 0.6000 | 26134.00 | 0.00 | 0.00 | 1.00 | $133,550 | $0 |
Roll Value History
| 2026 | N/A | N/A | N/A | N/A | N/A |
| 2025 | $214,040 | $155,500 | $0 | $369,540 | $369,540 |
| 2024 | $190,970 | $133,550 | $0 | $324,520 | $324,520 |
| 2023 | $190,970 | $133,550 | $0 | $324,520 | $324,520 |
| 2022 | $190,970 | $108,460 | $0 | $299,430 | $299,430 |
| 2021 | $119,360 | $108,460 | $0 | $227,820 | $227,820 |
| 2020 | $79,570 | $108,460 | $0 | $188,030 | $188,030 |
| 2019 | $79,570 | $108,460 | $0 | $188,030 | $188,030 |
| 2018 | $106,920 | $60,800 | $0 | $167,720 | $167,720 |
| 2017 | $106,920 | $60,800 | $0 | $167,720 | $167,720 |
| 2016 | $106,920 | $60,800 | $0 | $167,720 | $167,720 |
| 2015 | $106,920 | $60,800 | $0 | $167,720 | $167,720 |
| 2014 | $97,200 | $60,800 | $0 | $158,000 | $158,000 |
| 2013 | $97,200 | $60,800 | $0 | $158,000 | $158,000 |
| 2012 | $97,200 | $60,800 | $0 | $0 | $0 |
| 2011 | $97,200 | $60,800 | $0 | $0 | $0 |
| 2010 | $97,200 | $60,800 | $0 | $0 | $0 |
| 2009 | $114,700 | $60,800 | $0 | $0 | $0 |
| 2008 | $114,700 | $60,800 | $0 | $0 | $0 |
| 2007 | $71,200 | $38,300 | $0 | $0 | $0 |
Deed and Sales History
| 1 | 03/24/2017 | DEATH CERT | DEATH CERTIFICATE | LUSK LEROY ELMER | | | | | 0 | 2017-02277 |
| 2 | 08/18/2010 | QCD | QUIT CLAIM DEED | WISKIRKEN, JUDY | WISKIRKEN, MICHAEL | | | | 118881 | 2010-06378 |
| 3 | 01/01/1953 | WARRANTY D | WARRANTY DEED | | | | | $0.00 | 0 | 6100-34920 |
Payout Agreement
| No payout information available.. |