Property
Account |
| Property ID: | 29754 | Abbreviated Legal Description: | STONE CREEK PHASE 4 LOT 1 BLK 3 |
| Parcel Number: | 360732740301 | Agent Code: | |
| Type: | Real | | |
| Tax Area: | 1 - OL-140-F | Land Use Code | 11 |
| Open Space: | N | DFL | N |
| Historic Property: | N | Remodel Property: | N |
| Multi-Family Redevelopment: | N | | |
| Township: | 7 | Section: | 32 |
| Range: | 36 |
Location |
| Address: | 2021 GEMSTONE DR WA 99362 | Mapsco: | |
| Neighborhood: | G Res | Map ID: | |
| Neighborhood CD: | 614011 |
Owner |
| Name: | GARRETT ROBERT WENDELL & CAROLYN | Owner ID: | 67713 |
| Mailing Address: | 2021 GEMSTONE DR WALLA WALLA, WA 99362 | % Ownership: | 100.0000000000% |
| | | Exemptions: | |
Taxes and Assessment Details
Values
| (+) Improvement Homesite Value: | + | $0 | |
| (+) Improvement Non-Homesite Value: | + | $338,680 | |
| (+) Land Homesite Value: | + | $0 | |
| (+) Land Non-Homesite Value: | + | $97,910 | |
| (+) Curr Use (HS): | + | $0 | $0 |
| (+) Curr Use (NHS): | + | $0 | $0 |
| | | -------------------------- | |
| (=) Market Value: | = | $436,590 | |
| (–) Productivity Loss: | – | $0 | |
| | | -------------------------- | |
| (=) Subtotal: | = | $436,590 | |
| (+) Senior Appraised Value: | + | $0 | |
| (+) Non-Senior Appraised Value: | + | $436,590 | |
| | | -------------------------- | |
| (=) Total Appraised Value: | = | $436,590 | |
| (–) Senior Exemption Loss: | – | $0 | |
| (–) Exemption Loss: | – | $0 | |
| | | -------------------------- | |
| (=) Taxable Value: | = | $436,590 | |
Taxing Jurisdiction
| Owner: | GARRETT ROBERT WENDELL & CAROLYN | | |
| % Ownership: | 100.0000000000% | | |
| Total Value: | $436,590 | | |
| Tax Area: | 1 - OL-140-F |
| CERFD | CURRENT EXPENSE REFUND 010 | 0.0000000000 | $436,590 | $436,590 | $0.00 | | |
| CURREXP | CURRENT EXPENSE 010 | 1.0175366760 | $436,590 | $436,590 | $444.25 | | |
| HUMNSERV | HUMAN SERVICES 119 | 0.0250000000 | $436,590 | $436,590 | $10.91 | | |
| SLDREL | SOLDIERS RELIEF 121 | 0.0155990005 | $436,590 | $436,590 | $6.81 | | |
| EMERGSER | EMS 147 | 0.3792580840 | $436,590 | $436,590 | $165.58 | | |
| EMSRFD | EMS REFUND 147 | 0.0000000000 | $436,590 | $436,590 | $0.00 | | |
| PORTRFD | PORT REFUND 640 | 0.0000000000 | $436,590 | $436,590 | $0.00 | | |
| PORTWWGEN | PORT OF WW 640 | 0.2460186015 | $436,590 | $436,590 | $107.41 | | |
| SD140BOND | SD #140 BOND 764 | 0.8342371393 | $436,590 | $436,590 | $364.22 | | |
| SD140GEN | SD #140 GENERAL 760 | 2.0646500647 | $436,590 | $436,590 | $901.41 | | |
| ST2 | STATE SCHOOL PART 2 600 | 0.8131451643 | $436,590 | $436,590 | $355.01 | | |
| STATESCHL | STATE SCHOOL 600 | 1.5158548041 | $436,590 | $436,590 | $661.81 | | |
| STREFUND | STATE REFUND LEVY 603 | 0.0000000000 | $436,590 | $436,590 | $0.00 | | |
| CWWBOND | C OF WW BOND 643 | 0.2760494372 | $436,590 | $436,590 | $120.52 | | |
| CWWGEN | CITY OF WW 631 | 1.6100204973 | $436,590 | $436,590 | $702.92 | | |
| CWWRFD | CITY OF WALLA WALLA REFUND 631 | 0.0000000000 | $436,590 | $436,590 | $0.00 | | |
| | Total Tax Rate: | 8.7973694689 | | | | | |
| | | | | Taxes w/Current Exemptions: | $3,840.85 | | |
| | | | | Taxes w/o Exemptions: | $3,840.85 | | |
Improvement / Building
| Improvement #1: | RESIDENTIAL | State Code: | 11 | 1827.0 sqft | Value: | $338,680 |
| Exterior Wall: | SIDING | Heating/Cooling: | WARM & COOLED AIR | | Number of Bathrooms: | 2 | Number of Bedrooms: | 3 | | Plumbing: | 9 | Roof Covering: | COMP SHINGLE |
|
| | Type | Description | Class CD | Sub Class CD | Year Built | Area |
| | MA | Main Area | 1 | 35 | 1996 | 1827.0 |
| | SI1 | SITE IMPROVEMENT | 1 | 35 | 1996 | 2.0 |
| | ATG | Attached Garage | 1 | 35 | 1996 | 576.0 |
| | RPS | PORCH W/STEPS,ROOF | 1 | 35 | 1996 | 80.0 |
| | S1F | Single One Story Fireplace | 1 | 35 | 1996 | 1.0 |
Sketch
Property Image
Land
| 1 | RES 1 | Converted: Residential | 0.2248 | 9791.00 | 0.00 | 0.00 | 1.00 | $97,910 | $0 |
Roll Value History
| 2026 | N/A | N/A | N/A | N/A | N/A |
| 2025 | $313,080 | $125,000 | $0 | $438,080 | $438,080 |
| 2024 | $338,680 | $97,910 | $0 | $436,590 | $436,590 |
| 2023 | $338,680 | $97,910 | $0 | $436,590 | $436,590 |
| 2022 | $338,680 | $71,000 | $0 | $409,680 | $409,680 |
| 2021 | $270,950 | $71,000 | $0 | $341,950 | $341,950 |
| 2020 | $200,700 | $71,000 | $0 | $271,700 | $271,700 |
| 2019 | $200,700 | $71,000 | $0 | $271,700 | $271,700 |
| 2018 | $209,440 | $46,900 | $0 | $256,340 | $256,340 |
| 2017 | $199,470 | $46,900 | $0 | $246,370 | $246,370 |
| 2016 | $189,970 | $46,900 | $0 | $236,870 | $236,870 |
| 2015 | $189,970 | $46,900 | $0 | $236,870 | $236,870 |
| 2014 | $172,700 | $46,900 | $0 | $219,600 | $219,600 |
| 2013 | $172,700 | $46,900 | $0 | $219,600 | $219,600 |
| 2012 | $165,600 | $46,900 | $0 | $0 | $0 |
| 2011 | $165,600 | $46,900 | $0 | $0 | $0 |
| 2010 | $165,600 | $46,900 | $0 | $0 | $0 |
| 2009 | $186,100 | $50,000 | $0 | $0 | $0 |
| 2008 | $186,100 | $50,000 | $0 | $0 | $0 |
| 2007 | $131,500 | $30,000 | $0 | $0 | $0 |
Deed and Sales History
| 1 | 08/18/2020 | SWD | STATUTORY WARRANTY DEED | MAILOLO EDITH F | GARRETT ROBERT WENDELL & CAROLYN | | | $310,000.00 | 139725 | 2020-08198 |
| 2 | 12/16/2019 | DEATH CERT | DEATH CERTIFICATE | MAILOLO WILLIAM K JR (JTWRS) | MAILOLO EDITH F | | | | 0 | 2019-10388 |
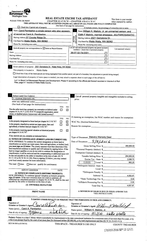
| 3 | 09/13/2016 | SWD | STATUTORY WARRANTY DEED | PEMBERTON CAROL | MAILOLO WILLIAM K JR (JTWRS) | | | $264,900.00 | 131018 | 2016-07465 |
| 4 | 08/28/1995 | WARRANTY D | WARRANTY DEED | | | | | $147,546.00 | 84625 | 2339-508162 |
Payout Agreement
| No payout information available.. |