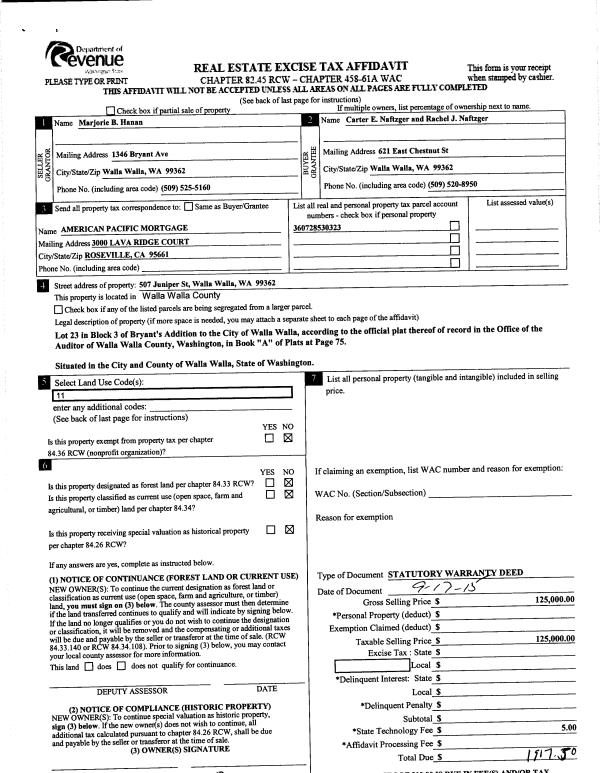
Property
Account |
| Property ID: | 29744 | Abbreviated Legal Description: | BRYANTS LOT 23 BLK 3 |
| Parcel Number: | 360728530323 | Agent Code: | |
| Type: | Real | | |
| Tax Area: | 1 - OL-140-F | Land Use Code | 11 |
| Open Space: | N | DFL | N |
| Historic Property: | N | Remodel Property: | N |
| Multi-Family Redevelopment: | N | | |
| Township: | 7 | Section: | 28 |
| Range: | 36 |
Location |
| Address: | 507 JUNIPER ST WA 99362 | Mapsco: | |
| Neighborhood: | A Res | Map ID: | |
| Neighborhood CD: | 613011 |
Owner |
| Name: | NAFTZGER CARTER E & RACHEL J | Owner ID: | 57550 |
| Mailing Address: | 507 JUNIPER ST WALLA WALLA, WA 99362 | % Ownership: | 100.0000000000% |
| | | Exemptions: | |
Taxes and Assessment Details
Property Tax Information as of
02/21/2026
Click on "Statement Details" to expand or collapse a tax statement.
* Please enter a valid date ** Please enter a valid date *
Statement Details |
| | TOTAL: | $0.00 | $0.00 | $0.00 | $0.00 | $0.00 | $0.00 |
|
| | $0.00 | $0.00 | $0.00 | $0.00 | $0.00 | $0.00 |
Values
| (+) Improvement Homesite Value: | + | $178,080 | |
| (+) Improvement Non-Homesite Value: | + | $0 | |
| (+) Land Homesite Value: | + | $70,000 | |
| (+) Land Non-Homesite Value: | + | $0 | |
| (+) Curr Use (HS): | + | $0 | $0 |
| (+) Curr Use (NHS): | + | $0 | $0 |
| | | -------------------------- | |
| (=) Market Value: | = | $248,080 | |
| (–) Productivity Loss: | – | $0 | |
| | | -------------------------- | |
| (=) Subtotal: | = | $248,080 | |
| (+) Senior Appraised Value: | + | $0 | |
| (+) Non-Senior Appraised Value: | + | $248,080 | |
| | | -------------------------- | |
| (=) Total Appraised Value: | = | $248,080 | |
| (–) Senior Exemption Loss: | – | $0 | |
| (–) Exemption Loss: | – | $0 | |
| | | -------------------------- | |
| (=) Taxable Value: | = | $248,080 | |
Taxing Jurisdiction
| Owner: | NAFTZGER CARTER E & RACHEL J | | |
| % Ownership: | 100.0000000000% | | |
| Total Value: | $248,080 | | |
| Tax Area: | 1 - OL-140-F |
| CERFD | CURRENT EXPENSE REFUND 010 | 0.0000000000 | $248,080 | $248,080 | $0.00 | | |
| CURREXP | CURRENT EXPENSE 010 | 1.0175366760 | $248,080 | $248,080 | $252.43 | | |
| HUMNSERV | HUMAN SERVICES 119 | 0.0250000000 | $248,080 | $248,080 | $6.20 | | |
| SLDREL | SOLDIERS RELIEF 121 | 0.0155990005 | $248,080 | $248,080 | $3.87 | | |
| EMERGSER | EMS 147 | 0.3792580840 | $248,080 | $248,080 | $94.09 | | |
| EMSRFD | EMS REFUND 147 | 0.0000000000 | $248,080 | $248,080 | $0.00 | | |
| PORTRFD | PORT REFUND 640 | 0.0000000000 | $248,080 | $248,080 | $0.00 | | |
| PORTWWGEN | PORT OF WW 640 | 0.2460186015 | $248,080 | $248,080 | $61.03 | | |
| SD140BOND | SD #140 BOND 764 | 0.8342371393 | $248,080 | $248,080 | $206.96 | | |
| SD140GEN | SD #140 GENERAL 760 | 2.0646500647 | $248,080 | $248,080 | $512.20 | | |
| ST2 | STATE SCHOOL PART 2 600 | 0.8131451643 | $248,080 | $248,080 | $201.73 | | |
| STATESCHL | STATE SCHOOL 600 | 1.5158548041 | $248,080 | $248,080 | $376.05 | | |
| STREFUND | STATE REFUND LEVY 603 | 0.0000000000 | $248,080 | $248,080 | $0.00 | | |
| CWWBOND | C OF WW BOND 643 | 0.2760494372 | $248,080 | $248,080 | $68.48 | | |
| CWWGEN | CITY OF WW 631 | 1.6100204973 | $248,080 | $248,080 | $399.41 | | |
| CWWRFD | CITY OF WALLA WALLA REFUND 631 | 0.0000000000 | $248,080 | $248,080 | $0.00 | | |
| | Total Tax Rate: | 8.7973694689 | | | | | |
| | | | | Taxes w/Current Exemptions: | $2,182.45 | | |
| | | | | Taxes w/o Exemptions: | $2,182.45 | | |
Improvement / Building
| Improvement #1: | RESIDENTIAL | State Code: | 11 | 1038.0 sqft | Value: | $178,080 |
| Exterior Wall: | METAL/STEEL | Heating/Cooling: | WARM & COOLED AIR | | Number of Bathrooms: | 1 | Number of Bedrooms: | 2 | | Plumbing: | 7 | Roof Covering: | COMP SHINGLE |
|
| | Type | Description | Class CD | Sub Class CD | Year Built | Area |
| | MA | Main Area | 1 | 30 | 1913 | 1038.0 |
| | SI1 | SITE IMPROVEMENT | 1 | 30 | 1913 | 1.0 |
| | S1F | Single One Story Fireplace | 1 | 30 | 1913 | 1.0 |
| | RPS | PORCH W/STEPS,ROOF | 1 | 30 | 1913 | 84.0 |
| | WDR | WOOD DECK W/ROOF | 1 | 30 | 1913 | 252.0 |
| | CPCG | CARPORT/ GABLE ROOF | 1 | 30 | 1913 | 432.0 |
Sketch
Property Image
Land
| 1 | RES 1 | Converted: Residential | 0.1377 | 6000.00 | 0.00 | 0.00 | 1.00 | $70,000 | $0 |
Roll Value History
| 2026 | N/A | N/A | N/A | N/A | N/A |
| 2025 | $192,400 | $66,000 | $0 | $258,400 | $258,400 |
| 2024 | $178,080 | $70,000 | $0 | $248,080 | $248,080 |
| 2023 | $178,080 | $70,000 | $0 | $248,080 | $248,080 |
| 2022 | $178,080 | $55,000 | $0 | $233,080 | $233,080 |
| 2021 | $136,980 | $55,000 | $0 | $191,980 | $191,980 |
| 2020 | $105,370 | $55,000 | $0 | $160,370 | $160,370 |
| 2019 | $105,370 | $55,000 | $0 | $160,370 | $160,370 |
| 2018 | $91,960 | $36,000 | $0 | $127,960 | $127,960 |
| 2017 | $91,960 | $36,000 | $0 | $127,960 | $127,960 |
| 2016 | $91,960 | $36,000 | $0 | $127,960 | $127,960 |
| 2015 | $91,960 | $36,000 | $0 | $127,960 | $127,960 |
| 2014 | $83,600 | $36,000 | $0 | $119,600 | $19,800 |
| 2013 | $83,600 | $36,000 | $0 | $119,600 | $19,800 |
| 2012 | $83,600 | $36,000 | $0 | $0 | $0 |
| 2011 | $83,600 | $36,000 | $0 | $0 | $0 |
| 2010 | $73,700 | $36,000 | $0 | $0 | $0 |
| 2009 | $85,900 | $36,000 | $0 | $0 | $0 |
| 2008 | $85,900 | $36,000 | $0 | $0 | $0 |
| 2007 | $64,500 | $18,000 | $0 | $0 | $0 |
Deed and Sales History
| 1 | 09/18/2015 | SWD | STATUTORY WARRANTY DEED | HANAN MARJORIE B | NAFTZGER CARTER E & RACHEL J | | | $125,000.00 | 128854 | 2015-08207 |
| 2 | 02/05/1974 | WARRANTY D | WARRANTY DEED | | | | | $13,500.00 | 0 | 1205-34724 |
Payout Agreement
| No payout information available.. |