Property
Account |
| Property ID: | 29727 | Abbreviated Legal Description: | EASTLAWN LOT 9 BLK 5 |
| Parcel Number: | 360721530509 | Agent Code: | |
| Type: | Real | | |
| Tax Area: | 1 - OL-140-F | Land Use Code | 11 |
| Open Space: | N | DFL | N |
| Historic Property: | N | Remodel Property: | N |
| Multi-Family Redevelopment: | N | | |
| Township: | 7 | Section: | 21 |
| Range: | 36 |
Location |
| Address: | 1501 E ALDER ST WA 99362 | Mapsco: | |
| Neighborhood: | A-SFR | Map ID: | |
| Neighborhood CD: | 513011 |
Owner |
| Name: | MOTTRAM ROBERT | Owner ID: | 74056 |
| Mailing Address: | 1501 E ALDER ST WALLA WALLA, WA 99362 | % Ownership: | 100.0000000000% |
| | | Exemptions: | |
Taxes and Assessment Details
Property Tax Information as of
02/21/2026
Click on "Statement Details" to expand or collapse a tax statement.
* Please enter a valid date ** Please enter a valid date *
Statement Details |
| | TOTAL: | $0.00 | $0.00 | $0.00 | $0.00 | $0.00 | $0.00 |
|
| | $0.00 | $0.00 | $0.00 | $0.00 | $0.00 | $0.00 |
Values
| (+) Improvement Homesite Value: | + | $256,640 | |
| (+) Improvement Non-Homesite Value: | + | $0 | |
| (+) Land Homesite Value: | + | $31,500 | |
| (+) Land Non-Homesite Value: | + | $0 | |
| (+) Curr Use (HS): | + | $0 | $0 |
| (+) Curr Use (NHS): | + | $0 | $0 |
| | | -------------------------- | |
| (=) Market Value: | = | $288,140 | |
| (–) Productivity Loss: | – | $0 | |
| | | -------------------------- | |
| (=) Subtotal: | = | $288,140 | |
| (+) Senior Appraised Value: | + | $0 | |
| (+) Non-Senior Appraised Value: | + | $288,140 | |
| | | -------------------------- | |
| (=) Total Appraised Value: | = | $288,140 | |
| (–) Senior Exemption Loss: | – | $0 | |
| (–) Exemption Loss: | – | $0 | |
| | | -------------------------- | |
| (=) Taxable Value: | = | $288,140 | |
Taxing Jurisdiction
| Owner: | MOTTRAM ROBERT | | |
| % Ownership: | 100.0000000000% | | |
| Total Value: | $288,140 | | |
| Tax Area: | 1 - OL-140-F |
| CERFD | CURRENT EXPENSE REFUND 010 | 0.0000000000 | $288,140 | $288,140 | $0.00 | | |
| CURREXP | CURRENT EXPENSE 010 | 1.0175366760 | $288,140 | $288,140 | $293.19 | | |
| HUMNSERV | HUMAN SERVICES 119 | 0.0250000000 | $288,140 | $288,140 | $7.20 | | |
| SLDREL | SOLDIERS RELIEF 121 | 0.0155990005 | $288,140 | $288,140 | $4.49 | | |
| EMERGSER | EMS 147 | 0.3792580840 | $288,140 | $288,140 | $109.28 | | |
| EMSRFD | EMS REFUND 147 | 0.0000000000 | $288,140 | $288,140 | $0.00 | | |
| PORTRFD | PORT REFUND 640 | 0.0000000000 | $288,140 | $288,140 | $0.00 | | |
| PORTWWGEN | PORT OF WW 640 | 0.2460186015 | $288,140 | $288,140 | $70.89 | | |
| SD140BOND | SD #140 BOND 764 | 0.8342371393 | $288,140 | $288,140 | $240.38 | | |
| SD140GEN | SD #140 GENERAL 760 | 2.0646500647 | $288,140 | $288,140 | $594.91 | | |
| ST2 | STATE SCHOOL PART 2 600 | 0.8131451643 | $288,140 | $288,140 | $234.30 | | |
| STATESCHL | STATE SCHOOL 600 | 1.5158548041 | $288,140 | $288,140 | $436.78 | | |
| STREFUND | STATE REFUND LEVY 603 | 0.0000000000 | $288,140 | $288,140 | $0.00 | | |
| CWWBOND | C OF WW BOND 643 | 0.2760494372 | $288,140 | $288,140 | $79.54 | | |
| CWWGEN | CITY OF WW 631 | 1.6100204973 | $288,140 | $288,140 | $463.91 | | |
| CWWRFD | CITY OF WALLA WALLA REFUND 631 | 0.0000000000 | $288,140 | $288,140 | $0.00 | | |
| | Total Tax Rate: | 8.7973694689 | | | | | |
| | | | | Taxes w/Current Exemptions: | $2,534.87 | | |
| | | | | Taxes w/o Exemptions: | $2,534.87 | | |
Improvement / Building
| Improvement #1: | RESIDENTIAL | State Code: | 11 | 840.0 sqft | Value: | $256,640 |
| Exterior Wall: | STUCCO | Heating/Cooling: | WARM & COOLED AIR | | Number of Bathrooms: | 1 | Number of Bedrooms: | 2 | | Plumbing: | 6 | Roof Covering: | COMP SHINGLE |
|
| | Type | Description | Class CD | Sub Class CD | Year Built | Area |
| | MA | Main Area | 1 | 30 | 1938 | 840.0 |
| | SI1 | SITE IMPROVEMENT | 1 | 30 | 1938 | 1.5 |
| | BASE | BASEMENT | 1 | 30 | 1938 | 630.0 |
| | OPS | OPEN PORCH W/STEPS | 1 | 30 | 1938 | 20.0 |
| | BIG | Built In Garage | 1 | 30 | 1938 | 180.0 |
| | CPC | COVERED CARPORT/PATIO | 1 | 30 | 1938 | 180.0 |
| | S1F | Single One Story Fireplace | 1 | 30 | 1938 | 1.0 |
Sketch
Property Image
Land
| 1 | RES 1 | Converted: Residential | 0.1157 | 5040.00 | 0.00 | 0.00 | 1.00 | $31,500 | $0 |
Roll Value History
| 2026 | N/A | N/A | N/A | N/A | N/A |
| 2025 | $257,740 | $50,400 | $0 | $308,140 | $308,140 |
| 2024 | $257,740 | $50,400 | $0 | $308,140 | $308,140 |
| 2023 | $256,640 | $31,500 | $0 | $288,140 | $288,140 |
| 2022 | $213,870 | $31,500 | $0 | $245,370 | $245,370 |
| 2021 | $171,090 | $31,500 | $0 | $202,590 | $202,590 |
| 2020 | $122,210 | $31,500 | $0 | $153,710 | $153,710 |
| 2019 | $122,210 | $31,500 | $0 | $153,710 | $153,710 |
| 2018 | $122,210 | $31,500 | $0 | $153,710 | $153,710 |
| 2017 | $125,290 | $20,200 | $0 | $145,490 | $0 |
| 2016 | $113,900 | $20,200 | $0 | $134,100 | $0 |
| 2015 | $108,480 | $20,200 | $0 | $128,680 | $0 |
| 2014 | $90,400 | $20,200 | $0 | $110,600 | $0 |
| 2013 | $90,400 | $20,200 | $0 | $110,600 | $0 |
| 2012 | $90,400 | $20,200 | $0 | $0 | $0 |
| 2011 | $90,400 | $20,200 | $0 | $0 | $0 |
| 2010 | $85,100 | $20,200 | $0 | $0 | $0 |
| 2009 | $96,800 | $20,200 | $0 | $0 | $0 |
| 2008 | $73,400 | $20,200 | $0 | $0 | $0 |
| 2007 | $73,400 | $20,200 | $0 | $0 | $0 |
Deed and Sales History
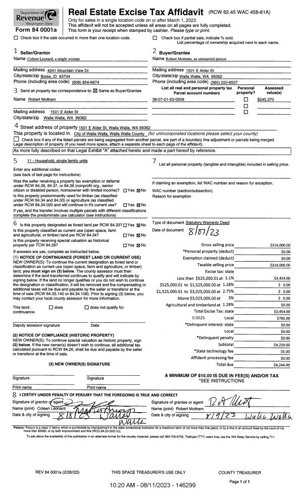
| 1 | 08/11/2023 | SWD | STATUTORY WARRANTY DEED | LEONARD COLEEN | MOTTRAM ROBERT | | | $314,000.00 | 146299 | 2023-04629 |
| 2 | 11/23/2020 | SWD | STATUTORY WARRANTY DEED | CHAPMAN KRISTIN E | LEONARD COLEEN | | | $205,000.00 | 140405 | 2020-12355 |
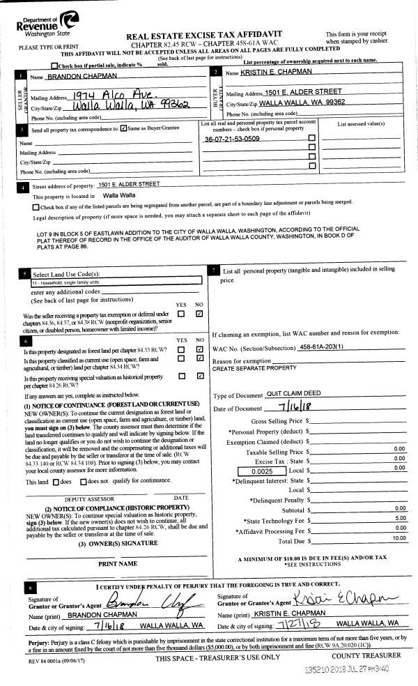
| 3 | 07/27/2018 | QCD | QUIT CLAIM DEED | CHAPMAN BRANDON | CHAPMAN KRISTIN E | | | | 135210 | 2018-06120 |
| 4 | 07/27/2018 | SWD | STATUTORY WARRANTY DEED | MISANDER TERRI D | CHAPMAN KRISTIN E | | | $149,000.00 | 135209 | 2018-06119 |
| 5 | 12/14/1987 | WARRANTY D | WARRANTY DEED | | | | | $28,500.00 | 0 | 1688-709065 |
Payout Agreement
| No payout information available.. |