Property
Account |
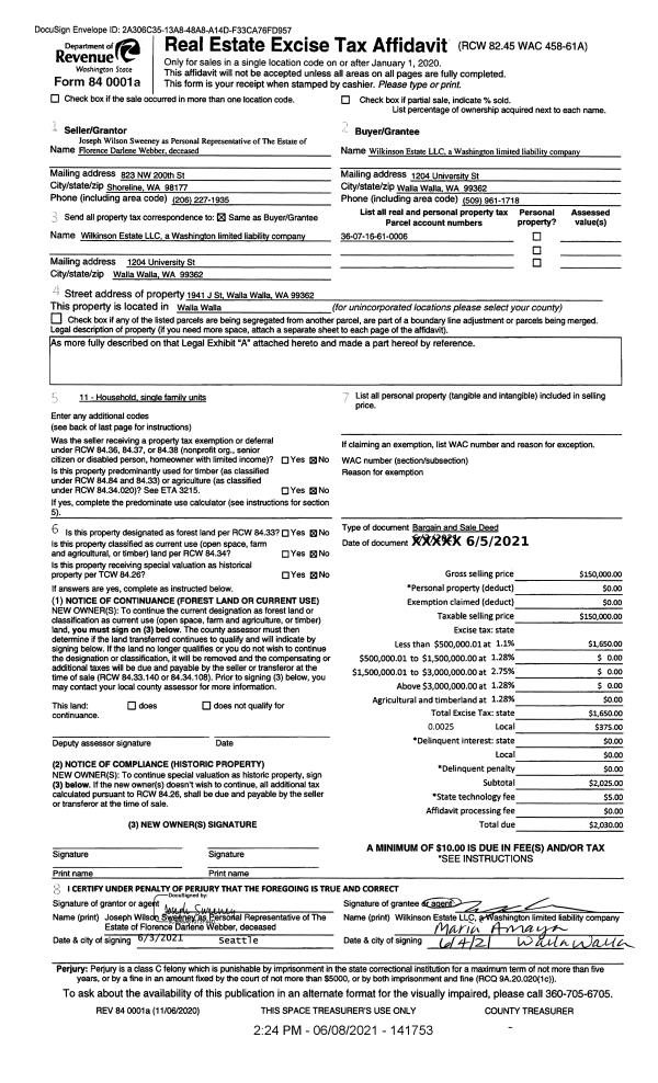
| Property ID: | 29723 | Abbreviated Legal Description: | EASTGATE NORTH PARCEL 6 |
| Parcel Number: | 360716610006 | Agent Code: | |
| Type: | Real | | |
| Tax Area: | 5 - OL-140 | Land Use Code | 11 |
| Open Space: | N | DFL | N |
| Historic Property: | N | Remodel Property: | N |
| Multi-Family Redevelopment: | N | | |
| Township: | 7 | Section: | 16 |
| Range: | 36 |
Location |
| Address: | 1941 J ST WA 99362 | Mapsco: | |
| Neighborhood: | A-SFR | Map ID: | |
| Neighborhood CD: | 513011 |
Owner |
| Name: | PEASE JOHN & MORGAN | Owner ID: | 69915 |
| Mailing Address: | 1941 J ST WALLA WALLA, WA 99362 | % Ownership: | 100.0000000000% |
| | | Exemptions: | |
Taxes and Assessment Details
Values
| (+) Improvement Homesite Value: | + | $188,920 | |
| (+) Improvement Non-Homesite Value: | + | $0 | |
| (+) Land Homesite Value: | + | $37,610 | |
| (+) Land Non-Homesite Value: | + | $0 | |
| (+) Curr Use (HS): | + | $0 | $0 |
| (+) Curr Use (NHS): | + | $0 | $0 |
| | | -------------------------- | |
| (=) Market Value: | = | $226,530 | |
| (–) Productivity Loss: | – | $0 | |
| | | -------------------------- | |
| (=) Subtotal: | = | $226,530 | |
| (+) Senior Appraised Value: | + | $0 | |
| (+) Non-Senior Appraised Value: | + | $226,530 | |
| | | -------------------------- | |
| (=) Total Appraised Value: | = | $226,530 | |
| (–) Senior Exemption Loss: | – | $0 | |
| (–) Exemption Loss: | – | $0 | |
| | | -------------------------- | |
| (=) Taxable Value: | = | $226,530 | |
Taxing Jurisdiction
| Owner: | PEASE JOHN & MORGAN | | |
| % Ownership: | 100.0000000000% | | |
| Total Value: | $226,530 | | |
| Tax Area: | 5 - OL-140 |
| CERFD | CURRENT EXPENSE REFUND 010 | 0.0000000000 | $226,530 | $226,530 | $0.00 | | |
| CURREXP | CURRENT EXPENSE 010 | 1.0175366760 | $226,530 | $226,530 | $230.50 | | |
| HUMNSERV | HUMAN SERVICES 119 | 0.0250000000 | $226,530 | $226,530 | $5.66 | | |
| SLDREL | SOLDIERS RELIEF 121 | 0.0155990005 | $226,530 | $226,530 | $3.53 | | |
| EMERGSER | EMS 147 | 0.3792580840 | $226,530 | $226,530 | $85.91 | | |
| EMSRFD | EMS REFUND 147 | 0.0000000000 | $226,530 | $226,530 | $0.00 | | |
| PORTRFD | PORT REFUND 640 | 0.0000000000 | $226,530 | $226,530 | $0.00 | | |
| PORTWWGEN | PORT OF WW 640 | 0.2460186015 | $226,530 | $226,530 | $55.73 | | |
| SD140BOND | SD #140 BOND 764 | 0.8342371393 | $226,530 | $226,530 | $188.98 | | |
| SD140GEN | SD #140 GENERAL 760 | 2.0646500647 | $226,530 | $226,530 | $467.71 | | |
| ST2 | STATE SCHOOL PART 2 600 | 0.8131451643 | $226,530 | $226,530 | $184.20 | | |
| STATESCHL | STATE SCHOOL 600 | 1.5158548041 | $226,530 | $226,530 | $343.39 | | |
| STREFUND | STATE REFUND LEVY 603 | 0.0000000000 | $226,530 | $226,530 | $0.00 | | |
| CWWBOND | C OF WW BOND 643 | 0.2760494372 | $226,530 | $226,530 | $62.53 | | |
| CWWGEN | CITY OF WW 631 | 1.6100204973 | $226,530 | $226,530 | $364.72 | | |
| CWWRFD | CITY OF WALLA WALLA REFUND 631 | 0.0000000000 | $226,530 | $226,530 | $0.00 | | |
| | Total Tax Rate: | 8.7973694689 | | | | | |
| | | | | Taxes w/Current Exemptions: | $1,992.86 | | |
| | | | | Taxes w/o Exemptions: | $1,992.86 | | |
Improvement / Building
| Improvement #1: | RESIDENTIAL | State Code: | 11 | 1026.0 sqft | Value: | $188,920 |
| Exterior Wall: | VINYL | Heating/Cooling: | WARM & COOLED AIR | | Number of Bathrooms: | 2 | Number of Bedrooms: | 2 | | Plumbing: | 9 | Roof Covering: | COMP SHINGLE |
|
| | Type | Description | Class CD | Sub Class CD | Year Built | Area |
| | MA | Main Area | 1 | 20 | 1977 | 1026.0 |
| | CPC | COVERED CARPORT/PATIO | 1 | 20 | 0 | 108.0 |
| | CPC | COVERED CARPORT/PATIO | 1 | 20 | 0 | 206.0 |
| | SI1 | SITE IMPROVEMENT | 1 | 20 | 0 | 1.0 |
| | RPS | PORCH W/STEPS,ROOF | 1 | 20 | 1977 | 30.0 |
| | UTST | Utility Storage Shed | 1 | 20 | 1977 | 116.0 |
Sketch
Property Image
Land
| 1 | RES 1 | Converted: Residential | 0.1382 | 6018.00 | 0.00 | 0.00 | 1.00 | $37,610 | $0 |
Roll Value History
| 2026 | N/A | N/A | N/A | N/A | N/A |
| 2025 | $181,280 | $60,180 | $0 | $241,460 | $241,460 |
| 2024 | $164,800 | $60,180 | $0 | $224,980 | $224,980 |
| 2023 | $188,920 | $37,610 | $0 | $226,530 | $226,530 |
| 2022 | $188,920 | $37,610 | $0 | $226,530 | $226,530 |
| 2021 | $134,940 | $37,610 | $0 | $172,550 | $172,550 |
| 2020 | $103,800 | $37,610 | $0 | $141,410 | $141,410 |
| 2019 | $103,800 | $37,610 | $0 | $141,410 | $0 |
| 2018 | $103,800 | $37,610 | $0 | $141,410 | $0 |
| 2017 | $108,280 | $24,100 | $0 | $132,380 | $0 |
| 2016 | $103,120 | $24,100 | $0 | $127,220 | $0 |
| 2015 | $98,210 | $24,100 | $0 | $122,310 | $0 |
| 2014 | $85,400 | $24,100 | $0 | $109,500 | $3,200 |
| 2013 | $85,400 | $24,100 | $0 | $109,500 | $3,200 |
| 2012 | $96,300 | $24,100 | $0 | $0 | $0 |
| 2011 | $96,300 | $24,100 | $0 | $0 | $0 |
| 2010 | $96,300 | $24,100 | $0 | $0 | $0 |
| 2009 | $109,700 | $24,100 | $0 | $0 | $0 |
| 2008 | $97,500 | $24,100 | $0 | $0 | $0 |
| 2007 | $97,500 | $24,100 | $0 | $0 | $0 |
Deed and Sales History
| 1 | 07/28/2021 | SWD | STATUTORY WARRANTY DEED | WILKINSON ESTATE LLC | PEASE JOHN & MORGAN | | | $235,000.00 | 142137 | 2021-09187 |
| 2 | 06/08/2021 | SWD | STATUTORY WARRANTY DEED | WEBBER DARLENE | WILKINSON ESTATE LLC | | | $150,000.00 | 141753 | 2021-06964 |
| 3 | 10/30/1989 | WARRANTY D | WARRANTY DEED | | | | | $34,000.00 | 0 | 1798-907024 |
Payout Agreement
| No payout information available.. |