Property
Account |
| Property ID: | 29722 | Abbreviated Legal Description: | WILSON'S 2ND TAX 1 BLK 2 |
| Parcel Number: | 360716590213 | Agent Code: | |
| Type: | Real | | |
| Tax Area: | 5 - OL-140 | Land Use Code | 11 |
| Open Space: | N | DFL | N |
| Historic Property: | N | Remodel Property: | N |
| Multi-Family Redevelopment: | N | | |
| Township: | 7 | Section: | 16 |
| Range: | 36 |
Location |
| Address: | 1635 MELROSE ST WA 99362 | Mapsco: | |
| Neighborhood: | A-SFR | Map ID: | |
| Neighborhood CD: | 513011 |
Owner |
| Name: | CERVANTES MONICA ANNABELL | Owner ID: | 69613 |
| Mailing Address: | 1635 MELROSE ST WALLA WALLA, WA 99362 | % Ownership: | 100.0000000000% |
| | | Exemptions: | |
Taxes and Assessment Details
Values
| (+) Improvement Homesite Value: | + | $0 | |
| (+) Improvement Non-Homesite Value: | + | $292,790 | |
| (+) Land Homesite Value: | + | $0 | |
| (+) Land Non-Homesite Value: | + | $34,380 | |
| (+) Curr Use (HS): | + | $0 | $0 |
| (+) Curr Use (NHS): | + | $0 | $0 |
| | | -------------------------- | |
| (=) Market Value: | = | $327,170 | |
| (–) Productivity Loss: | – | $0 | |
| | | -------------------------- | |
| (=) Subtotal: | = | $327,170 | |
| (+) Senior Appraised Value: | + | $0 | |
| (+) Non-Senior Appraised Value: | + | $327,170 | |
| | | -------------------------- | |
| (=) Total Appraised Value: | = | $327,170 | |
| (–) Senior Exemption Loss: | – | $0 | |
| (–) Exemption Loss: | – | $0 | |
| | | -------------------------- | |
| (=) Taxable Value: | = | $327,170 | |
Taxing Jurisdiction
| Owner: | CERVANTES MONICA ANNABELL | | |
| % Ownership: | 100.0000000000% | | |
| Total Value: | $327,170 | | |
| Tax Area: | 5 - OL-140 |
| CERFD | CURRENT EXPENSE REFUND 010 | 0.0000000000 | $327,170 | $327,170 | $0.00 | | |
| CURREXP | CURRENT EXPENSE 010 | 1.0175366760 | $327,170 | $327,170 | $332.91 | | |
| HUMNSERV | HUMAN SERVICES 119 | 0.0250000000 | $327,170 | $327,170 | $8.18 | | |
| SLDREL | SOLDIERS RELIEF 121 | 0.0155990005 | $327,170 | $327,170 | $5.10 | | |
| EMERGSER | EMS 147 | 0.3792580840 | $327,170 | $327,170 | $124.08 | | |
| EMSRFD | EMS REFUND 147 | 0.0000000000 | $327,170 | $327,170 | $0.00 | | |
| PORTRFD | PORT REFUND 640 | 0.0000000000 | $327,170 | $327,170 | $0.00 | | |
| PORTWWGEN | PORT OF WW 640 | 0.2460186015 | $327,170 | $327,170 | $80.49 | | |
| SD140BOND | SD #140 BOND 764 | 0.8342371393 | $327,170 | $327,170 | $272.94 | | |
| SD140GEN | SD #140 GENERAL 760 | 2.0646500647 | $327,170 | $327,170 | $675.49 | | |
| ST2 | STATE SCHOOL PART 2 600 | 0.8131451643 | $327,170 | $327,170 | $266.04 | | |
| STATESCHL | STATE SCHOOL 600 | 1.5158548041 | $327,170 | $327,170 | $495.94 | | |
| STREFUND | STATE REFUND LEVY 603 | 0.0000000000 | $327,170 | $327,170 | $0.00 | | |
| CWWBOND | C OF WW BOND 643 | 0.2760494372 | $327,170 | $327,170 | $90.32 | | |
| CWWGEN | CITY OF WW 631 | 1.6100204973 | $327,170 | $327,170 | $526.75 | | |
| CWWRFD | CITY OF WALLA WALLA REFUND 631 | 0.0000000000 | $327,170 | $327,170 | $0.00 | | |
| | Total Tax Rate: | 8.7973694689 | | | | | |
| | | | | Taxes w/Current Exemptions: | $2,878.24 | | |
| | | | | Taxes w/o Exemptions: | $2,878.24 | | |
Improvement / Building
| Improvement #1: | RESIDENTIAL | State Code: | 11 | 1048.0 sqft | Value: | $292,790 |
| Exterior Wall: | SIDING | Heating/Cooling: | WARM & COOLED AIR | | Number of Bathrooms: | 2.5 | Number of Bedrooms: | 3 | | Plumbing: | 11 | Roof Covering: | COMP SHINGLE |
|
| | Type | Description | Class CD | Sub Class CD | Year Built | Area |
| | MA | Main Area | 1 | 30 | 1964 | 1048.0 |
| | CPC | COVERED CARPORT/PATIO | 1 | 30 | 1964 | 560.0 |
| | SI1 | SITE IMPROVEMENT | 1 | 30 | 1964 | 1.5 |
| | BASE | BASEMENT | 1 | 30 | 1964 | 1048.0 |
| | BPF | BASEMENT -PARTITIONED FINISH | 1 | 30 | 2021 | 1048.0 |
| | RPO | OPEN PORCH W/ROOF | 1 | 30 | 1964 | 36.0 |
| | SWP | Solid Wall Porch | 1 | 30 | 1964 | 56.0 |
Sketch
Property Image
Land
| 1 | RES 1 | Converted: Residential | 0.1263 | 5500.00 | 0.00 | 0.00 | 1.00 | $34,380 | $0 |
Roll Value History
| 2026 | N/A | N/A | N/A | N/A | N/A |
| 2025 | $297,070 | $55,000 | $0 | $352,070 | $352,070 |
| 2024 | $297,070 | $55,000 | $0 | $352,070 | $352,070 |
| 2023 | $292,790 | $34,380 | $0 | $327,170 | $327,170 |
| 2022 | $292,790 | $34,380 | $0 | $327,170 | $327,170 |
| 2021 | $209,590 | $34,380 | $0 | $243,970 | $243,970 |
| 2020 | $155,250 | $34,380 | $0 | $189,630 | $189,630 |
| 2019 | $155,250 | $34,380 | $0 | $189,630 | $189,630 |
| 2018 | $135,000 | $34,380 | $0 | $169,380 | $169,380 |
| 2017 | $141,930 | $22,000 | $0 | $163,930 | $163,930 |
| 2016 | $135,170 | $22,000 | $0 | $157,170 | $157,170 |
| 2015 | $128,730 | $22,000 | $0 | $150,730 | $150,730 |
| 2014 | $122,600 | $22,000 | $0 | $144,600 | $144,600 |
| 2013 | $122,600 | $22,000 | $0 | $144,600 | $144,600 |
| 2012 | $127,200 | $22,000 | $0 | $0 | $0 |
| 2011 | $127,200 | $22,000 | $0 | $0 | $0 |
| 2010 | $120,100 | $22,000 | $0 | $0 | $0 |
| 2009 | $135,900 | $22,000 | $0 | $0 | $0 |
| 2008 | $109,600 | $22,000 | $0 | $0 | $0 |
| 2007 | $109,600 | $22,000 | $0 | $0 | $0 |
Deed and Sales History
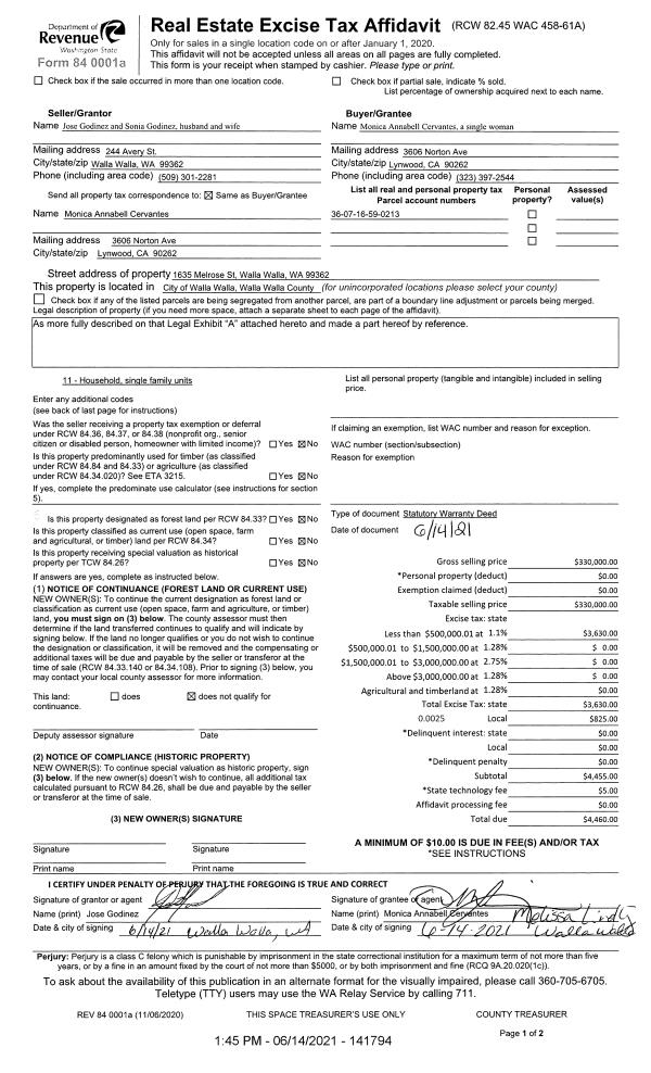
| 1 | 06/14/2021 | SWD | STATUTORY WARRANTY DEED | GODINEZ JOSE & SONIA GUADALUPE | CERVANTES MONICA ANNABELL | | | $330,000.00 | 141794 | 2021-07233 |
| 2 | 01/25/2021 | SWP | Special Warranty Deed | REVERSE MORTGAGE SOLUTIONS INC | GODINEZ JOSE & SONIA GUADALUPE | | | $162,000.00 | 140795 | 2021-00967 |
| 3 | 11/02/2020 | SWD | STATUTORY WARRANTY DEED | REVERSE MORTGAGE SOLUTIONS INC | GAGE RICHARD ESTATE OF | | | | 140241 | 2020-11428 |
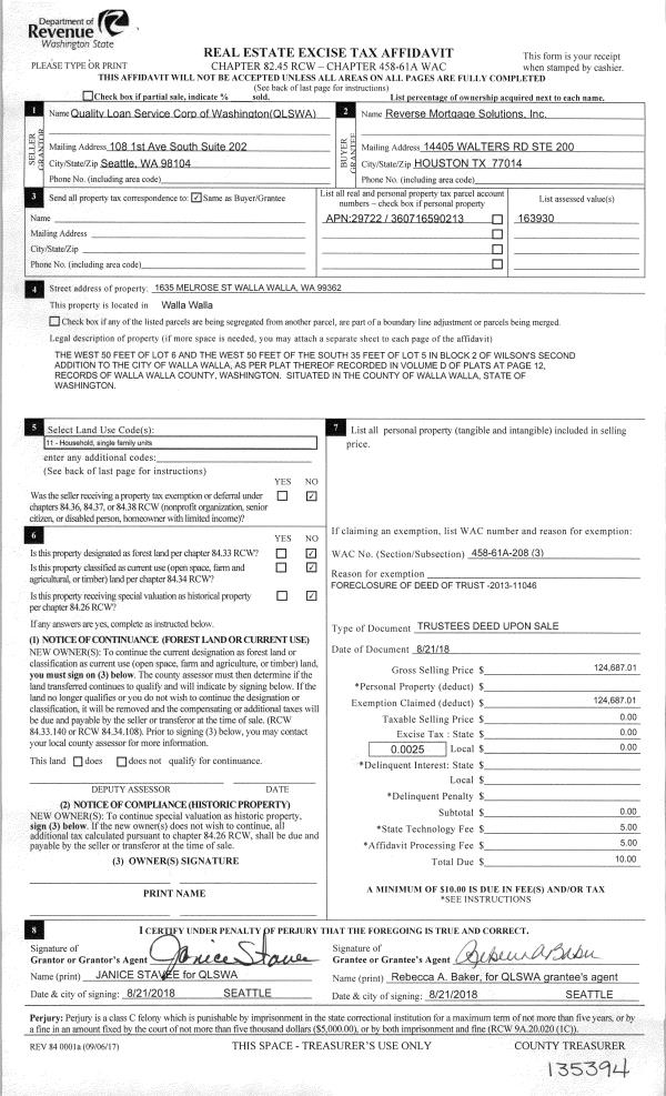
| 4 | 08/23/2018 | TRUSTEES D | TRUSTEE'S DEED | GAGE RICHARD L | REVERSE MORTGAGE SOLUTIONS INC | | | $124,687.00 | 135394 | 2018-06978 |
| 5 | 08/01/1965 | WARRANTY D | WARRANTY DEED | | | | | $14,750.00 | 0 | 3150-469688 |
Payout Agreement
| No payout information available.. |