Property
Account |
| Property ID: | 29720 | Abbreviated Legal Description: | GARDEN CITY HGTS SUB LOT 6 & 7 BLK 1 |
| Parcel Number: | 360716520106 | Agent Code: | |
| Type: | Real | | |
| Tax Area: | 5 - OL-140 | Land Use Code | 11 |
| Open Space: | N | DFL | N |
| Historic Property: | N | Remodel Property: | N |
| Multi-Family Redevelopment: | N | | |
| Township: | 7 | Section: | 16 |
| Range: | 36 |
Location |
| Address: | 1247 BELLE ST WA 99362 | Mapsco: | |
| Neighborhood: | A-SFR | Map ID: | |
| Neighborhood CD: | 513011 |
Owner |
| Name: | CRUMPACKER STEFANIE FLERCHINGER | Owner ID: | 71002 |
| Mailing Address: | 1247 BELLE ST WALLA WALLA, WA 99362 | % Ownership: | 100.0000000000% |
| | | Exemptions: | |
Taxes and Assessment Details
Property Tax Information as of
02/21/2026
Click on "Statement Details" to expand or collapse a tax statement.
* Please enter a valid date ** Please enter a valid date *
Statement Details |
| | TOTAL: | $0.00 | $0.00 | $0.00 | $0.00 | $0.00 | $0.00 |
|
| | $0.00 | $0.00 | $0.00 | $0.00 | $0.00 | $0.00 |
Values
| (+) Improvement Homesite Value: | + | $0 | |
| (+) Improvement Non-Homesite Value: | + | $217,110 | |
| (+) Land Homesite Value: | + | $0 | |
| (+) Land Non-Homesite Value: | + | $84,000 | |
| (+) Curr Use (HS): | + | $0 | $0 |
| (+) Curr Use (NHS): | + | $0 | $0 |
| | | -------------------------- | |
| (=) Market Value: | = | $301,110 | |
| (–) Productivity Loss: | – | $0 | |
| | | -------------------------- | |
| (=) Subtotal: | = | $301,110 | |
| (+) Senior Appraised Value: | + | $0 | |
| (+) Non-Senior Appraised Value: | + | $301,110 | |
| | | -------------------------- | |
| (=) Total Appraised Value: | = | $301,110 | |
| (–) Senior Exemption Loss: | – | $0 | |
| (–) Exemption Loss: | – | $0 | |
| | | -------------------------- | |
| (=) Taxable Value: | = | $301,110 | |
Taxing Jurisdiction
| Owner: | CRUMPACKER STEFANIE FLERCHINGER | | |
| % Ownership: | 100.0000000000% | | |
| Total Value: | $301,110 | | |
| Tax Area: | 5 - OL-140 |
| CERFD | CURRENT EXPENSE REFUND 010 | 0.0000000000 | $301,110 | $301,110 | $0.00 | | |
| CURREXP | CURRENT EXPENSE 010 | 0.9851088983 | $301,110 | $301,110 | $296.63 | | |
| HUMNSERV | HUMAN SERVICES 119 | 0.0250000000 | $301,110 | $301,110 | $7.53 | | |
| SLDREL | SOLDIERS RELIEF 121 | 0.0155990000 | $301,110 | $301,110 | $4.70 | | |
| EMERGSER | EMS 147 | 0.3676811629 | $301,110 | $301,110 | $110.71 | | |
| EMSRFD | EMS REFUND 147 | 0.0000000000 | $301,110 | $301,110 | $0.00 | | |
| PORTRFD | PORT REFUND 640 | 0.0000000000 | $301,110 | $301,110 | $0.00 | | |
| PORTWWGEN | PORT OF WW 640 | 0.2344301070 | $301,110 | $301,110 | $70.59 | | |
| SD140BOND | SD #140 BOND 764 | 0.8032434458 | $301,110 | $301,110 | $241.86 | | |
| SD140CAP | SD #140 CAP 762 | 0.3840034221 | $301,110 | $301,110 | $115.63 | | |
| SD140GEN | SD #140 GENERAL 760 | 2.4999999996 | $301,110 | $301,110 | $752.78 | | |
| ST2 | STATE SCHOOL PART 2 600 | 0.8853714103 | $301,110 | $301,110 | $266.59 | | |
| STATESCHL | STATE SCHOOL 600 | 1.6424571473 | $301,110 | $301,110 | $494.56 | | |
| STREFUND | STATE REFUND LEVY 603 | 0.0000000000 | $301,110 | $301,110 | $0.00 | | |
| CWWBOND | C OF WW BOND 643 | 0.2642134255 | $301,110 | $301,110 | $79.56 | | |
| CWWGEN | CITY OF WW 631 | 1.6110494978 | $301,110 | $301,110 | $485.10 | | |
| CWWRFD | CITY OF WALLA WALLA REFUND 631 | 0.0000000000 | $301,110 | $301,110 | $0.00 | | |
| | Total Tax Rate: | 9.7181575166 | | | | | |
| | | | | Taxes w/Current Exemptions: | $2,926.24 | | |
| | | | | Taxes w/o Exemptions: | $2,926.24 | | |
Improvement / Building
| Improvement #1: | RESIDENTIAL | State Code: | 11 | 1117.0 sqft | Value: | $217,110 |
| Exterior Wall: | SIDING | Heating/Cooling: | FORCED AIR | | Number of Bathrooms: | 1 | Number of Bedrooms: | 3 | | Plumbing: | 6 | Roof Covering: | COMP SHINGLE |
|
| | Type | Description | Class CD | Sub Class CD | Year Built | Area |
| | MA | Main Area | 1 | 30 | 1950 | 1117.0 |
| | SI1 | SITE IMPROVEMENT | 1 | 30 | 1950 | 1.0 |
| | BASE | BASEMENT | 1 | 30 | 1950 | 1102.0 |
| | DTG | Detached Garage | 1 | 30 | 1950 | 280.0 |
| | RPS | PORCH W/STEPS,ROOF | 1 | 30 | 1950 | 25.0 |
| | PRC | PORCH W STEPS, ROOF,CEILED | 1 | 30 | 1950 | 50.0 |
Sketch
Property Image
Land
| 1 | RES 1 | Converted: Residential | 0.1928 | 8400.00 | 0.00 | 0.00 | 1.00 | $84,000 | $0 |
Roll Value History
| 2026 | N/A | N/A | N/A | N/A | N/A |
| 2025 | $217,110 | $84,000 | $0 | $301,110 | $301,110 |
| 2024 | $188,790 | $84,000 | $0 | $272,790 | $272,790 |
| 2023 | $174,980 | $52,500 | $0 | $227,480 | $227,480 |
| 2022 | $174,980 | $52,500 | $0 | $227,480 | $227,480 |
| 2021 | $145,820 | $52,500 | $0 | $198,320 | $198,320 |
| 2020 | $145,820 | $52,500 | $0 | $198,320 | $198,320 |
| 2019 | $145,820 | $52,500 | $0 | $198,320 | $198,320 |
| 2018 | $126,800 | $52,500 | $0 | $179,300 | $0 |
| 2017 | $137,560 | $33,600 | $0 | $171,160 | $0 |
| 2016 | $125,060 | $33,600 | $0 | $158,660 | $0 |
| 2015 | $125,060 | $33,600 | $0 | $158,660 | $0 |
| 2014 | $119,100 | $33,600 | $0 | $152,700 | $9,600 |
| 2013 | $119,100 | $33,600 | $0 | $152,700 | $9,600 |
| 2012 | $119,100 | $33,600 | $0 | $0 | $0 |
| 2011 | $119,100 | $33,600 | $0 | $0 | $0 |
| 2010 | $111,800 | $33,600 | $0 | $0 | $0 |
| 2009 | $127,900 | $33,600 | $0 | $0 | $0 |
| 2008 | $95,600 | $33,600 | $0 | $0 | $0 |
| 2007 | $95,600 | $33,600 | $0 | $0 | $0 |
Deed and Sales History
| 1 | 01/21/2022 | QCD | QUIT CLAIM DEED | CRUMPACKER-FLERCHINGER STEFANIE | CRUMPACKER STEFANIE FLERCHINGER | | | $0.00 | 143279 | 2022-00638 |
| 2 | 05/08/2020 | SWD | STATUTORY WARRANTY DEED | ESTATE OF ROSE S MEYER | CRUMPACKER-FLERCHINGER STEFANIE | | | $192,000.00 | 139054 | 2020-03935 |
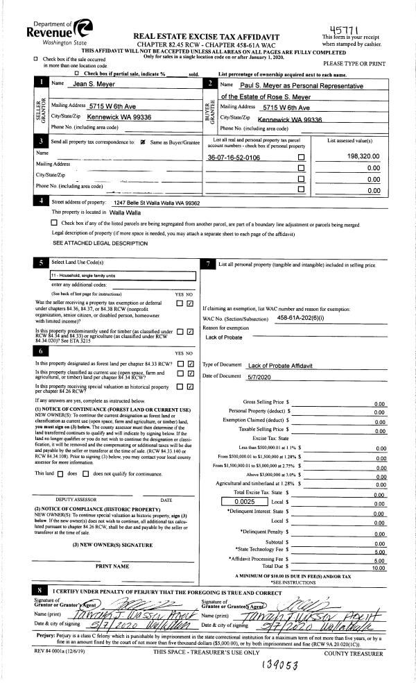
| 3 | 05/08/2020 | LOPA | LACK OF PROBATE AFFIDAVIT | MEYER JEAN S & ROSE S | ESTATE OF ROSE S MEYER | | | $0.00 | 139053 | 2020-03934 |
| 4 | 11/18/1968 | WARRANTY D | WARRANTY DEED | | | | | $2,000.00 | 0 | 3294-981000 |
|   | |
Payout Agreement
| No payout information available.. |