Property
Account |
| Property ID: | 29712 | Abbreviated Legal Description: | MOCKINGBIRD CONDOS UNIT #719 |
| Parcel Number: | 350736780001 | Agent Code: | |
| Type: | Real | | |
| Tax Area: | 75 - CP 250 | Land Use Code | 14 |
| Open Space: | N | DFL | N |
| Historic Property: | N | Remodel Property: | N |
| Multi-Family Redevelopment: | N | | |
| Township: | 7 | Section: | 36 |
| Range: | 35 |
Location |
| Address: | 719 SE MOCKINGBIRD DR WA 99324 | Mapsco: | |
| Neighborhood: | G Condo | Map ID: | |
| Neighborhood CD: | 114041 |
Owner |
| Name: | FOSTER & MARSHALL LLC | Owner ID: | 72573 |
| Mailing Address: | PO BOX 2250 LYNNWOOD, WA 98036 | % Ownership: | 100.0000000000% |
| | | Exemptions: | |
Taxes and Assessment Details
Values
| (+) Improvement Homesite Value: | + | $0 | |
| (+) Improvement Non-Homesite Value: | + | $326,480 | |
| (+) Land Homesite Value: | + | $0 | |
| (+) Land Non-Homesite Value: | + | $0 | |
| (+) Curr Use (HS): | + | $0 | $0 |
| (+) Curr Use (NHS): | + | $0 | $0 |
| | | -------------------------- | |
| (=) Market Value: | = | $326,480 | |
| (–) Productivity Loss: | – | $0 | |
| | | -------------------------- | |
| (=) Subtotal: | = | $326,480 | |
| (+) Senior Appraised Value: | + | $0 | |
| (+) Non-Senior Appraised Value: | + | $326,480 | |
| | | -------------------------- | |
| (=) Total Appraised Value: | = | $326,480 | |
| (–) Senior Exemption Loss: | – | $0 | |
| (–) Exemption Loss: | – | $0 | |
| | | -------------------------- | |
| (=) Taxable Value: | = | $326,480 | |
Taxing Jurisdiction
| Owner: | FOSTER & MARSHALL LLC | | |
| % Ownership: | 100.0000000000% | | |
| Total Value: | $326,480 | | |
| Tax Area: | 75 - CP 250 |
| CERFD | CURRENT EXPENSE REFUND 010 | 0.0000000000 | $326,480 | $326,480 | $0.00 | | |
| CURREXP | CURRENT EXPENSE 010 | 1.0175366760 | $326,480 | $326,480 | $332.21 | | |
| HUMNSERV | HUMAN SERVICES 119 | 0.0250000000 | $326,480 | $326,480 | $8.16 | | |
| SLDREL | SOLDIERS RELIEF 121 | 0.0155990005 | $326,480 | $326,480 | $5.09 | | |
| COLLPLBOND | C OF CP BOND 644 | 0.4374241808 | $326,480 | $326,480 | $142.81 | | |
| COLLPLGEN | CITY OF CP 632 | 1.4453819216 | $326,480 | $326,480 | $471.89 | | |
| EMERGSER | EMS 147 | 0.3792580840 | $326,480 | $326,480 | $123.82 | | |
| EMSRFD | EMS REFUND 147 | 0.0000000000 | $326,480 | $326,480 | $0.00 | | |
| RURALLIB | RURAL LIBRARY 623 | 0.3710609029 | $326,480 | $326,480 | $121.14 | | |
| PORTRFD | PORT REFUND 640 | 0.0000000000 | $326,480 | $326,480 | $0.00 | | |
| PORTWWGEN | PORT OF WW 640 | 0.2460186015 | $326,480 | $326,480 | $80.32 | | |
| SD250BOND | SD #250 BOND 773 | 1.4560608159 | $326,480 | $326,480 | $475.37 | | |
| SD250GEN | SD #250 GENERAL 770 | 2.3880724087 | $326,480 | $326,480 | $779.66 | | |
| ST2 | STATE SCHOOL PART 2 600 | 0.8131451643 | $326,480 | $326,480 | $265.48 | | |
| STATESCHL | STATE SCHOOL 600 | 1.5158548041 | $326,480 | $326,480 | $494.90 | | |
| STREFUND | STATE REFUND LEVY 603 | 0.0000000000 | $326,480 | $326,480 | $0.00 | | |
| | Total Tax Rate: | 10.1104125603 | | | | | |
| | | | | Taxes w/Current Exemptions: | $3,300.85 | | |
| | | | | Taxes w/o Exemptions: | $3,300.85 | | |
Improvement / Building
| Improvement #1: | RESIDENTIAL | State Code: | 14 | 1307.0 sqft | Value: | $326,480 |
| Exterior Wall: | SIDING | Heating/Cooling: | WARM & COOLED AIR | | Number of Bathrooms: | 2 | Number of Bedrooms: | 2 | | Plumbing: | 9 | Roof Covering: | COMP SHINGLE |
|
| | Type | Description | Class CD | Sub Class CD | Year Built | Area |
| | MA | Main Area | 1 | 35 | 1996 | 1307.0 |
| | SI1 | SITE IMPROVEMENT | 1 | 35 | 1996 | 11.0 |
| | ATG | Attached Garage | 1 | 35 | 1996 | 260.0 |
| | OSP | Open | 1 | 35 | 1996 | 35.0 |
| | GFP | GAS FIREPLACE | 1 | 35 | 1996 | 1.0 |
Sketch
Property Image
Land
No land segments exist for this property.
Roll Value History
| 2026 | N/A | N/A | N/A | N/A | N/A |
| 2025 | $326,480 | $0 | $0 | $326,480 | $326,480 |
| 2024 | $326,480 | $0 | $0 | $326,480 | $326,480 |
| 2023 | $326,480 | $0 | $0 | $326,480 | $326,480 |
| 2022 | $261,180 | $0 | $0 | $261,180 | $261,180 |
| 2021 | $193,470 | $0 | $0 | $193,470 | $193,470 |
| 2020 | $175,880 | $0 | $0 | $175,880 | $175,880 |
| 2019 | $175,880 | $0 | $0 | $175,880 | $175,880 |
| 2018 | $151,620 | $0 | $0 | $151,620 | $151,620 |
| 2017 | $159,600 | $0 | $0 | $159,600 | $103,740 |
| 2016 | $152,000 | $0 | $0 | $152,000 | $98,800 |
| 2015 | $152,000 | $0 | $0 | $152,000 | $98,800 |
| 2014 | $152,000 | $0 | $0 | $152,000 | $152,000 |
| 2013 | $152,000 | $0 | $0 | $152,000 | $152,000 |
| 2012 | $168,900 | $0 | $0 | $0 | $0 |
| 2011 | $168,900 | $0 | $0 | $0 | $0 |
| 2010 | $179,700 | $0 | $0 | $0 | $0 |
| 2009 | $189,200 | $0 | $0 | $0 | $0 |
| 2008 | $130,900 | $0 | $0 | $0 | $0 |
| 2007 | $130,900 | $0 | $0 | $0 | $0 |
Deed and Sales History
| 1 | 01/14/2025 | SWD | STATUTORY WARRANTY DEED | FOSTER & MARSHALL LLC | WILBURN DARRELL & KAREN | | | $340,000.00 | 148794 | 2025-00214 |
| 2 | 10/04/2022 | QCD | QUIT CLAIM DEED | BUYCO JENNIFER O | FOSTER & MARSHALL LLC | | | $0.00 | 144807 | 2022-08203 |
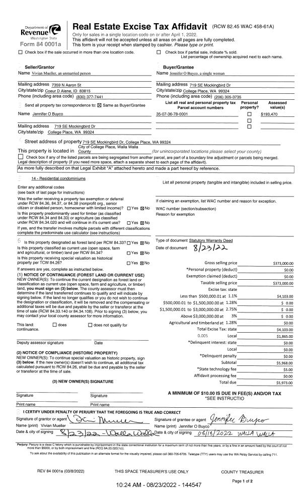
| 3 | 08/23/2022 | SWD | STATUTORY WARRANTY DEED | MUELLER VIVIAN C | BUYCO JENNIFER O | | | $373,000.00 | 144547 | 2022-07040 |
| 4 | 10/26/2018 | SWD | STATUTORY WARRANTY DEED | HEPLER VEVA | MUELLER VIVIAN C | | | $185,500.00 | 135796 | 2018-08846 |
| 5 | 07/29/2009 | WARRANTY D | WARRANTY DEED | YOUNG, LOIS JEAN ESTATE OF | HEPLER, VEVA | | | $0.00 | 117083 | 2009-07722 |
| 6 | 08/01/2001 | WARRANTY D | WARRANTY DEED | | | | | $110,500.00 | 97964 | 3190-109600 |
Payout Agreement
| No payout information available.. |