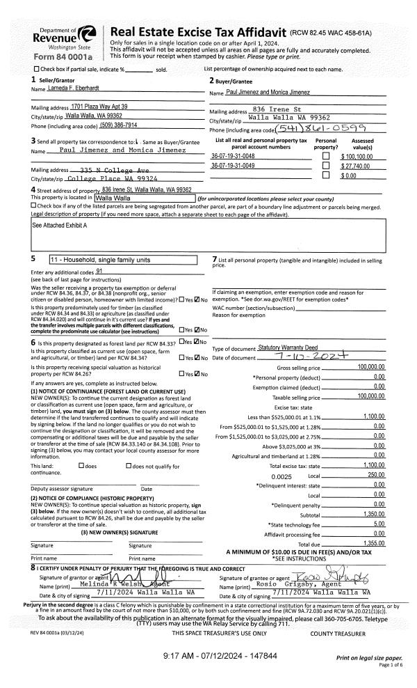
Property
Account |
| Property ID: | 29702 | Abbreviated Legal Description: | 19-7-36 PARCEL 48 TAX DISTRICT SEG |
| Parcel Number: | 360719310048 | Agent Code: | |
| Type: | Real | | |
| Tax Area: | 5 - OL-140 | Land Use Code | 11 |
| Open Space: | N | DFL | N |
| Historic Property: | N | Remodel Property: | N |
| Multi-Family Redevelopment: | N | | |
| Township: | 7 | Section: | 19 |
| Range: | 36 |
Location |
| Address: | 836 IRENE ST WA 99362 | Mapsco: | |
| Neighborhood: | A-SFR | Map ID: | |
| Neighborhood CD: | 313011 |
Owner |
| Name: | EBERHARDT LARNEDA F | Owner ID: | 69655 |
| Mailing Address: | 836 IRENE ST WALLA WALLA, WA 99362 | % Ownership: | 100.0000000000% |
| | | Exemptions: | SNR/DSBL |
Taxes and Assessment Details
Values
| (+) Improvement Homesite Value: | + | $65,040 | |
| (+) Improvement Non-Homesite Value: | + | $0 | |
| (+) Land Homesite Value: | + | $35,060 | |
| (+) Land Non-Homesite Value: | + | $0 | |
| (+) Curr Use (HS): | + | $0 | $0 |
| (+) Curr Use (NHS): | + | $0 | $0 |
| | | -------------------------- | |
| (=) Market Value: | = | $100,100 | |
| (–) Productivity Loss: | – | $0 | |
| | | -------------------------- | |
| (=) Subtotal: | = | $100,100 | |
| (+) Senior Appraised Value: | + | $57,400 | |
| (+) Non-Senior Appraised Value: | + | $0 | |
| | | -------------------------- | |
| (=) Total Appraised Value: | = | $57,400 | |
| (–) Senior Exemption Loss: | – | $57,400 | |
| (–) Exemption Loss: | – | $0 | |
| | | -------------------------- | |
| (=) Taxable Value: | = | $0 | |
Taxing Jurisdiction
| Owner: | EBERHARDT LARNEDA F | | |
| % Ownership: | 100.0000000000% | | |
| Total Value: | $100,100 | | |
| Tax Area: | 5 - OL-140 |
| CERFD | CURRENT EXPENSE REFUND 010 | 0.0000000000 | $100,100 | $0 | $0.00 | | |
| CURREXP | CURRENT EXPENSE 010 | 1.0175366760 | $100,100 | $0 | $48.42 | | |
| HUMNSERV | HUMAN SERVICES 119 | 0.0250000000 | $100,100 | $0 | $1.19 | | |
| SLDREL | SOLDIERS RELIEF 121 | 0.0155990005 | $100,100 | $0 | $0.74 | | |
| EMERGSER | EMS 147 | 0.3792580840 | $100,100 | $0 | $18.05 | | |
| EMSRFD | EMS REFUND 147 | 0.0000000000 | $100,100 | $0 | $0.00 | | |
| PORTRFD | PORT REFUND 640 | 0.0000000000 | $100,100 | $0 | $0.00 | | |
| PORTWWGEN | PORT OF WW 640 | 0.2460186015 | $100,100 | $0 | $11.71 | | |
| SD140BOND | SD #140 BOND 764 | 0.0000000000 | $100,100 | $0 | $39.70 | | |
| SD140GEN | SD #140 GENERAL 760 | 0.0000000000 | $100,100 | $0 | $98.25 | | |
| ST2 | STATE SCHOOL PART 2 600 | 0.0000000000 | $100,100 | $0 | $38.70 | | |
| STATESCHL | STATE SCHOOL 600 | 1.5158548041 | $100,100 | $0 | $72.14 | | |
| STREFUND | STATE REFUND LEVY 603 | 0.0000000000 | $100,100 | $0 | $0.00 | | |
| CWWBOND | C OF WW BOND 643 | 0.0000000000 | $100,100 | $0 | $13.14 | | |
| CWWGEN | CITY OF WW 631 | 1.6100204973 | $100,100 | $0 | $76.62 | | |
| CWWRFD | CITY OF WALLA WALLA REFUND 631 | 0.0000000000 | $100,100 | $0 | $0.00 | | |
| | Total Tax Rate: | 4.8092876634 | | | | | |
| | | | | Taxes w/Current Exemptions: | $418.66 | | |
| | | | | Taxes w/o Exemptions: | $880.62 | | |
Improvement / Building
| Improvement #1: | RESIDENTIAL | State Code: | 11 | 690.0 sqft | Value: | $65,040 |
| Exterior Wall: | SIDING | Heating/Cooling: | FLOOR FURNACE | | Number of Bathrooms: | 1 | Number of Bedrooms: | 1 | | Plumbing: | 6 | Roof Covering: | COMP SHINGLE |
|
| | Type | Description | Class CD | Sub Class CD | Year Built | Area |
| | MA | Main Area | 1 | 20 | 1913 | 690.0 |
| | SI1 | SITE IMPROVEMENT | 1 | 20 | 0 | 1.0 |
| | OSP | Open | 1 | 20 | 1913 | 25.0 |
| | OSP | Open | 1 | 20 | 1913 | 20.0 |
Sketch
Property Image
Land
| 1 | RES 1 | Converted: Residential | 0.0976 | 4250.00 | 0.00 | 0.00 | 1.00 | $35,060 | $0 |
Roll Value History
| 2026 | N/A | N/A | N/A | N/A | N/A |
| 2025 | $65,040 | $35,060 | $0 | $100,100 | $100,100 |
| 2024 | $65,040 | $35,060 | $0 | $100,100 | $100,100 |
| 2023 | $65,040 | $35,060 | $0 | $100,100 | $0 |
| 2022 | $50,030 | $35,060 | $0 | $85,090 | $0 |
| 2021 | $59,430 | $18,100 | $0 | $77,530 | $0 |
| 2020 | $42,450 | $18,100 | $0 | $60,550 | $0 |
| 2019 | $42,450 | $18,100 | $0 | $60,550 | $0 |
| 2018 | $40,430 | $18,100 | $0 | $58,530 | $0 |
| 2017 | $40,430 | $18,100 | $0 | $58,530 | $0 |
| 2016 | $38,500 | $18,100 | $0 | $56,600 | $0 |
| 2015 | $35,000 | $18,100 | $0 | $53,100 | $0 |
| 2014 | $35,000 | $18,100 | $0 | $53,100 | $0 |
| 2013 | $35,000 | $18,100 | $0 | $53,100 | $3,100 |
| 2012 | $35,000 | $18,100 | $0 | $0 | $0 |
| 2011 | $35,000 | $18,100 | $0 | $0 | $0 |
| 2010 | $36,400 | $18,100 | $0 | $0 | $0 |
| 2009 | $50,000 | $7,400 | $0 | $0 | $0 |
| 2008 | $24,500 | $7,400 | $0 | $0 | $0 |
| 2007 | $24,500 | $7,400 | $0 | $0 | $0 |
Deed and Sales History
| 1 | 07/12/2024 | SWD | STATUTORY WARRANTY DEED | EBERHARDT LARNEDA F | JIMENEZ PAUL & MONICA | | 2-PARCELS | $100,000.00 | 147844 | 2024-03748 |
|   | |
| 2 | 06/22/2021 | ADMD | ADMINISTRATOR'S DEED | EBERHARDT MARION & LARNEDA | EBERHARDT LARNEDA F | | | $0.00 | 141858 | 2021-07567 |
| 3 | | DEATH CERT | DEATH CERTIFICATE | EBERHARDT MARION EARL ESTATE | | | | | 0 | SEE IMAGES |
| 4 | 07/17/1992 | WARRANTY D | WARRANTY DEED | | | | | | 77239 | 1989-206272 |
Payout Agreement
| No payout information available.. |