Property
Account |
| Property ID: | 29698 | Abbreviated Legal Description: | SCENIC VIEW LOT 21 BLK 3 |
| Parcel Number: | 350736580321 | Agent Code: | |
| Type: | Real | | |
| Tax Area: | 75 - CP 250 | Land Use Code | 11 |
| Open Space: | N | DFL | N |
| Historic Property: | N | Remodel Property: | N |
| Multi-Family Redevelopment: | N | | |
| Township: | 7 | Section: | 36 |
| Range: | 35 |
Location |
| Address: | 317 SE SCENIC VIEW DR WA 99324 | Mapsco: | |
| Neighborhood: | A SFR | Map ID: | |
| Neighborhood CD: | 113011 |
Owner |
| Name: | MORFORD BARBARA D | Owner ID: | 55125 |
| Mailing Address: | 317 SE SCENIC VIEW DR COLLEGE PLACE, WA 99324 | % Ownership: | 100.0000000000% |
| | | Exemptions: | SNR/DSBL |
Taxes and Assessment Details
Values
| (+) Improvement Homesite Value: | + | $161,090 | |
| (+) Improvement Non-Homesite Value: | + | $0 | |
| (+) Land Homesite Value: | + | $40,500 | |
| (+) Land Non-Homesite Value: | + | $0 | |
| (+) Curr Use (HS): | + | $0 | $0 |
| (+) Curr Use (NHS): | + | $0 | $0 |
| | | -------------------------- | |
| (=) Market Value: | = | $201,590 | |
| (–) Productivity Loss: | – | $0 | |
| | | -------------------------- | |
| (=) Subtotal: | = | $201,590 | |
| (+) Senior Appraised Value: | + | $186,950 | |
| (+) Non-Senior Appraised Value: | + | $0 | |
| | | -------------------------- | |
| (=) Total Appraised Value: | = | $186,950 | |
| (–) Senior Exemption Loss: | – | $112,170 | |
| (–) Exemption Loss: | – | $0 | |
| | | -------------------------- | |
| (=) Taxable Value: | = | $74,780 | |
Taxing Jurisdiction
| Owner: | MORFORD BARBARA D | | |
| % Ownership: | 100.0000000000% | | |
| Total Value: | $201,590 | | |
| Tax Area: | 75 - CP 250 |
| CERFD | CURRENT EXPENSE REFUND 010 | 0.0000000000 | $201,590 | $74,780 | $0.00 | | |
| CURREXP | CURRENT EXPENSE 010 | 1.0175366760 | $201,590 | $74,780 | $176.22 | | |
| HUMNSERV | HUMAN SERVICES 119 | 0.0250000000 | $201,590 | $74,780 | $4.33 | | |
| SLDREL | SOLDIERS RELIEF 121 | 0.0155990005 | $201,590 | $74,780 | $2.70 | | |
| COLLPLBOND | C OF CP BOND 644 | 0.0000000000 | $201,590 | $0 | $68.42 | | |
| COLLPLGEN | CITY OF CP 632 | 1.4453819216 | $201,590 | $74,780 | $250.31 | | |
| EMERGSER | EMS 147 | 0.3792580840 | $201,590 | $74,780 | $65.68 | | |
| EMSRFD | EMS REFUND 147 | 0.0000000000 | $201,590 | $74,780 | $0.00 | | |
| RURALLIB | RURAL LIBRARY 623 | 0.3710609029 | $201,590 | $74,780 | $64.26 | | |
| PORTRFD | PORT REFUND 640 | 0.0000000000 | $201,590 | $74,780 | $0.00 | | |
| PORTWWGEN | PORT OF WW 640 | 0.2460186015 | $201,590 | $74,780 | $42.61 | | |
| SD250BOND | SD #250 BOND 773 | 0.0000000000 | $201,590 | $0 | $227.76 | | |
| SD250GEN | SD #250 GENERAL 770 | 0.0000000000 | $201,590 | $0 | $373.55 | | |
| ST2 | STATE SCHOOL PART 2 600 | 0.0000000000 | $201,590 | $0 | $127.20 | | |
| STATESCHL | STATE SCHOOL 600 | 1.5158548041 | $201,590 | $74,780 | $262.51 | | |
| STREFUND | STATE REFUND LEVY 603 | 0.0000000000 | $201,590 | $74,780 | $0.00 | | |
| | Total Tax Rate: | 5.0157099906 | | | | | |
| | | | | Taxes w/Current Exemptions: | $1,665.55 | | |
| | | | | Taxes w/o Exemptions: | $2,038.14 | | |
Improvement / Building
| Improvement #1: | RESIDENTIAL | State Code: | 11 | 812.0 sqft | Value: | $161,090 |
| Exterior Wall: | SIDING | Heating/Cooling: | BASEBOARD ELECTRIC | | Number of Bathrooms: | 1 | Number of Bedrooms: | 2 | | Plumbing: | 7 | Roof Covering: | GALVANIZED METAL |
|
| | Type | Description | Class CD | Sub Class CD | Year Built | Area |
| | MA | Main Area | 1 | 20 | 1950 | 812.0 |
| | SI1 | SITE IMPROVEMENT | 1 | 20 | 1950 | 1.0 |
| | DTG | Detached Garage | 1 | 20 | 1950 | 264.0 |
| | RPS | PORCH W/STEPS,ROOF | 1 | 20 | 1950 | 25.0 |
Sketch
Property Image
Land
| 1 | RES 1 | Converted: Residential | 0.1377 | 6000.00 | 0.00 | 0.00 | 1.00 | $40,500 | $0 |
Roll Value History
| 2026 | N/A | N/A | N/A | N/A | N/A |
| 2025 | $153,040 | $60,000 | $0 | $213,040 | $213,040 |
| 2024 | $161,090 | $40,500 | $0 | $201,590 | $201,590 |
| 2023 | $161,090 | $40,500 | $0 | $201,590 | $74,780 |
| 2022 | $161,090 | $40,500 | $0 | $201,590 | $74,780 |
| 2021 | $146,450 | $40,500 | $0 | $186,950 | $74,780 |
| 2020 | $91,530 | $40,500 | $0 | $132,030 | $132,030 |
| 2019 | $96,030 | $36,000 | $0 | $132,030 | $132,030 |
| 2018 | $73,870 | $36,000 | $0 | $109,870 | $109,870 |
| 2017 | $73,870 | $36,000 | $0 | $109,870 | $109,870 |
| 2016 | $70,350 | $36,000 | $0 | $106,350 | $106,350 |
| 2015 | $67,000 | $36,000 | $0 | $103,000 | $103,000 |
| 2014 | $67,000 | $36,000 | $0 | $103,000 | $103,000 |
| 2013 | $67,000 | $36,000 | $0 | $103,000 | $15,500 |
| 2012 | $67,000 | $36,000 | $0 | $0 | $0 |
| 2011 | $67,000 | $36,000 | $0 | $0 | $0 |
| 2010 | $57,600 | $36,000 | $0 | $0 | $0 |
| 2009 | $68,000 | $36,000 | $0 | $0 | $0 |
| 2008 | $47,500 | $18,000 | $0 | $0 | $0 |
| 2007 | $47,500 | $18,000 | $0 | $0 | $0 |
Deed and Sales History
| 1 | 12/13/2024 | SWD | STATUTORY WARRANTY DEED | MORFORD TODD M | CURNUCK IRELAND ROSE | | | $215,000.00 | 148656 | 2024-07200 |
| 2 | 03/22/2024 | QCD | QUIT CLAIM DEED | MORFORD BARBARA D | MORFORD TODD M | | | | 147283 | 2024-01406 |
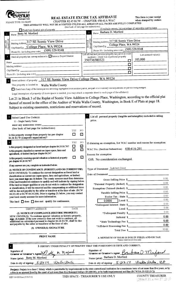
| 3 | 05/27/2014 | WARRANTY D | WARRANTY DEED | MORFORD BETTY M | MORFORD BARBARA D | | | $0.00 | 125965 | 2014-03599 |
| 4 | 05/09/2014 | WARRANTY D | WARRANTY DEED | MORFORD BETTY | MORFORD BETTY M | | | $0.00 | 125854 | 2014-03162 |
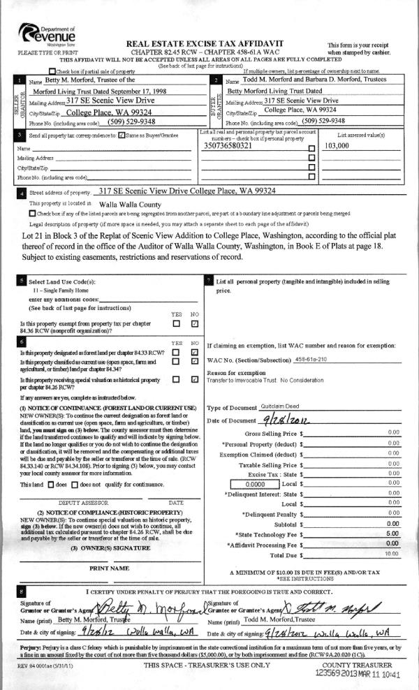
| 5 | 03/11/2013 | QCD | QUIT CLAIM DEED | MORFORD LIVING TRUST | MORFORD, BETTY | | | $0.00 | 123569 | 2013-02240 |
| 6 | 08/28/1985 | WARRANTY D | WARRANTY DEED | | | | | $28,000.00 | 0 | 1528-505967 |
Payout Agreement
| No payout information available.. |