Property
Account |
| Property ID: | 29672 | Abbreviated Legal Description: | COLUMBIA VIEW #2 LOT 1 |
| Parcel Number: | 300812540001 | Agent Code: | |
| Type: | Real | | |
| Tax Area: | 328 - 400-M-5 | Land Use Code | 11 |
| Open Space: | N | DFL | N |
| Historic Property: | N | Remodel Property: | N |
| Multi-Family Redevelopment: | N | | |
| Township: | 8 | Section: | 12 |
| Range: | 30 |
Location |
| Address: | 551 RINGHOFF RD WA 99323 | Mapsco: | |
| Neighborhood: | Burbank A MH | Map ID: | |
| Neighborhood CD: | 213761 |
Owner |
| Name: | CONTRERAS JAIME | Owner ID: | 56318 |
| Mailing Address: | 551 RINGHOFF RD BURBANK, WA 99323 | % Ownership: | 100.0000000000% |
| | | Exemptions: | |
Taxes and Assessment Details
Property Tax Information as of
02/21/2026
Click on "Statement Details" to expand or collapse a tax statement.
* Please enter a valid date ** Please enter a valid date *
Statement Details |
| | TOTAL: | $0.00 | $0.00 | $0.00 | $0.00 | $0.00 | $0.00 |
|
| | $0.00 | $0.00 | $0.00 | $0.00 | $0.00 | $0.00 |
Values
| (+) Improvement Homesite Value: | + | $141,580 | |
| (+) Improvement Non-Homesite Value: | + | $0 | |
| (+) Land Homesite Value: | + | $70,000 | |
| (+) Land Non-Homesite Value: | + | $0 | |
| (+) Curr Use (HS): | + | $0 | $0 |
| (+) Curr Use (NHS): | + | $0 | $0 |
| | | -------------------------- | |
| (=) Market Value: | = | $211,580 | |
| (–) Productivity Loss: | – | $0 | |
| | | -------------------------- | |
| (=) Subtotal: | = | $211,580 | |
| (+) Senior Appraised Value: | + | $0 | |
| (+) Non-Senior Appraised Value: | + | $211,580 | |
| | | -------------------------- | |
| (=) Total Appraised Value: | = | $211,580 | |
| (–) Senior Exemption Loss: | – | $0 | |
| (–) Exemption Loss: | – | $0 | |
| | | -------------------------- | |
| (=) Taxable Value: | = | $211,580 | |
Taxing Jurisdiction
| Owner: | CONTRERAS JAIME | | |
| % Ownership: | 100.0000000000% | | |
| Total Value: | $211,580 | | |
| Tax Area: | 328 - 400-M-5 |
| CERFD | CURRENT EXPENSE REFUND 010 | 0.0000000000 | $211,580 | $211,580 | $0.00 | | |
| CURREXP | CURRENT EXPENSE 010 | 1.0175366760 | $211,580 | $211,580 | $215.29 | | |
| HUMNSERV | HUMAN SERVICES 119 | 0.0250000000 | $211,580 | $211,580 | $5.29 | | |
| SLDREL | SOLDIERS RELIEF 121 | 0.0155990005 | $211,580 | $211,580 | $3.30 | | |
| EMERGSER | EMS 147 | 0.3792580840 | $211,580 | $211,580 | $80.24 | | |
| EMSRFD | EMS REFUND 147 | 0.0000000000 | $211,580 | $211,580 | $0.00 | | |
| FD5EXP | FD #5 EXPENSE 689 | 1.2045331840 | $211,580 | $211,580 | $254.86 | | |
| RLBRFD | RURAL LIBRARY REFUND 623 | 0.0000000000 | $211,580 | $211,580 | $0.00 | | |
| RURALLIB | RURAL LIBRARY 623 | 0.3710609029 | $211,580 | $211,580 | $78.51 | | |
| PORTRFD | PORT REFUND 640 | 0.0000000000 | $211,580 | $211,580 | $0.00 | | |
| PORTWWGEN | PORT OF WW 640 | 0.2460186015 | $211,580 | $211,580 | $52.05 | | |
| SD400BOND | SD #400 BOND 793 | 0.0000000000 | $211,580 | $211,580 | $0.00 | | |
| SD400CAP | SD #400 CP 792 | 0.3443722657 | $211,580 | $211,580 | $72.86 | | |
| SD400GEN | SD #400 GENERAL 790 | 1.9278469916 | $211,580 | $211,580 | $407.89 | | |
| ST2 | STATE SCHOOL PART 2 600 | 0.8131451643 | $211,580 | $211,580 | $172.05 | | |
| STATESCHL | STATE SCHOOL 600 | 1.5158548041 | $211,580 | $211,580 | $320.72 | | |
| STREFUND | STATE REFUND LEVY 603 | 0.0000000000 | $211,580 | $211,580 | $0.00 | | |
| COROAD | COUNTY ROAD 115 | 1.6549953990 | $211,580 | $211,580 | $350.16 | | |
| CRPRD | COUNTY ROAD REFUND 115 | 0.0000000000 | $211,580 | $211,580 | $0.00 | | |
| | Total Tax Rate: | 9.5152210736 | | | | | |
| | | | | Taxes w/Current Exemptions: | $2,013.22 | | |
| | | | | Taxes w/o Exemptions: | $2,013.22 | | |
Improvement / Building
| Improvement #1: | MANUFACTURED HOME | State Code: | 11 | 924.0 sqft | Value: | $141,580 |
| Exterior Wall: | RIBBED ALUMINUM | Heating/Cooling: | WARM & COOLED AIR | | Number of Bathrooms: | 2 | Number of Bedrooms: | 2 | | Plumbing: | 8 | Roof Covering: | GALVANIZED METAL |
|
| | Type | Description | Class CD | Sub Class CD | Year Built | Area |
| | MOBHOME | MANUFACTURD HOMES | 1 | 20 | 1975 | 924.0 |
| | MI1 | MH SET-UP COSTS | 1 | 20 | 1975 | 1.0 |
| | DTG | Detached Garage | 1 | 20 | 1975 | 780.0 |
| | TIP | MH ADDITION | 1 | 20 | 1975 | 48.0 |
| | TIP | MH ADDITION | 1 | 20 | 1975 | 48.0 |
| | WOD | Wood Deck | 1 | 20 | 1975 | 260.0 |
| | CPC | COVERED CARPORT/PATIO | 1 | 20 | 2017 | 168.0 |
Sketch
Property Image
Land
| 1 | RES 1 | Converted: Residential | 1.0000 | 0.00 | 0.00 | 0.00 | 1.00 | $70,000 | $0 |
Roll Value History
| 2026 | N/A | N/A | N/A | N/A | N/A |
| 2025 | $141,580 | $70,000 | $0 | $211,580 | $211,580 |
| 2024 | $141,580 | $70,000 | $0 | $211,580 | $211,580 |
| 2023 | $141,580 | $70,000 | $0 | $211,580 | $211,580 |
| 2022 | $141,580 | $70,000 | $0 | $211,580 | $211,580 |
| 2021 | $56,630 | $70,000 | $0 | $126,630 | $126,630 |
| 2020 | $44,980 | $38,300 | $0 | $83,280 | $83,280 |
| 2019 | $44,980 | $38,300 | $0 | $83,280 | $83,280 |
| 2018 | $32,130 | $38,300 | $0 | $70,430 | $70,430 |
| 2017 | $30,600 | $38,300 | $0 | $68,900 | $68,900 |
| 2016 | $25,500 | $38,300 | $0 | $63,800 | $63,800 |
| 2015 | $25,500 | $38,300 | $0 | $63,800 | $63,800 |
| 2014 | $25,500 | $38,300 | $0 | $63,800 | $0 |
| 2013 | $25,500 | $38,300 | $0 | $63,800 | $0 |
| 2012 | $25,500 | $38,300 | $0 | $0 | $0 |
| 2011 | $25,500 | $38,300 | $0 | $0 | $0 |
| 2010 | $25,500 | $38,300 | $0 | $0 | $0 |
| 2009 | $19,700 | $35,000 | $0 | $0 | $0 |
| 2008 | $19,700 | $35,000 | $0 | $0 | $0 |
| 2007 | $19,700 | $35,000 | $0 | $0 | $0 |
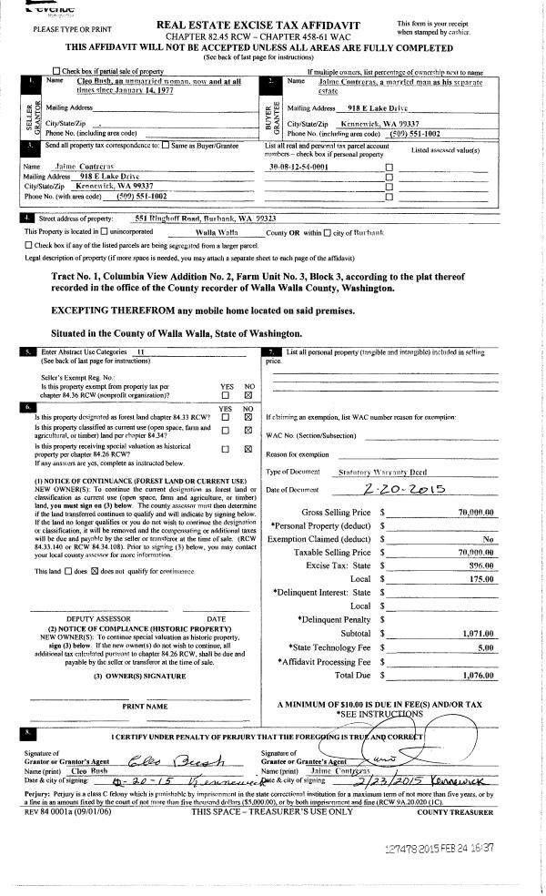
Deed and Sales History
| 1 | 02/24/2015 | QCD | QUIT CLAIM DEED | CONTRERAS LESLI | CONTRERAS JAIME | | | | 127479 | 2015-01652 |
| 2 | 02/24/2015 | SWD | STATUTORY WARRANTY DEED | BUSH CLEO | CONTRERAS JAIME | | | $70,000.00 | 127478 | 2015-01651 |
Payout Agreement
| No payout information available.. |