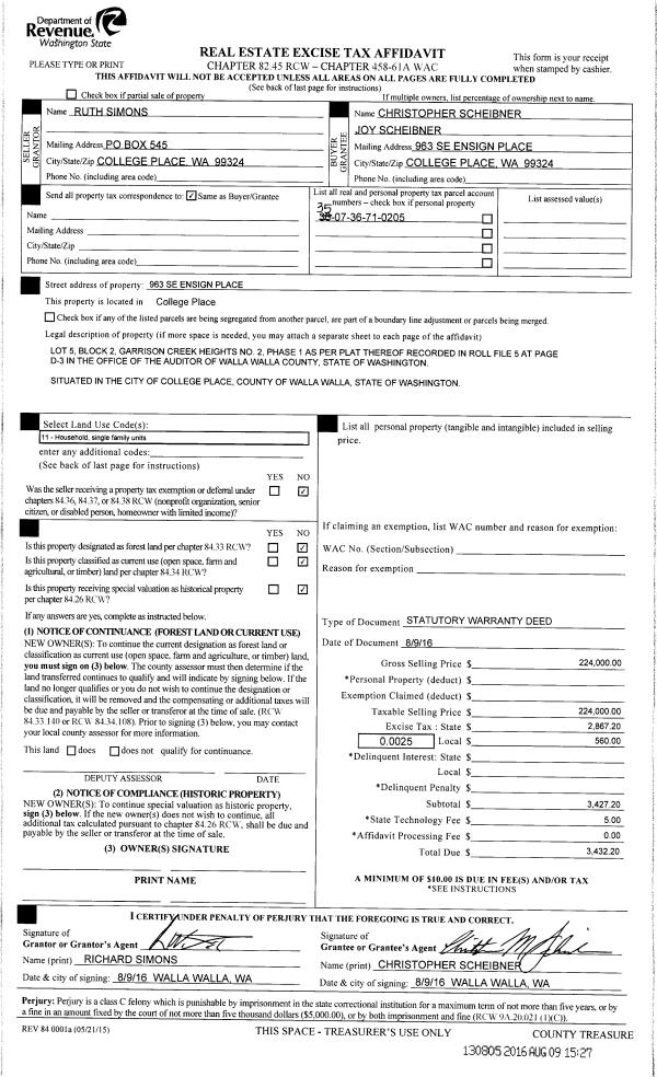
Property
Account |
| Property ID: | 29641 | Abbreviated Legal Description: | GARRISON CRK HGTS #2 PHASE 1 LOT 5 BLK 2 |
| Parcel Number: | 350736710205 | Agent Code: | |
| Type: | Real | | |
| Tax Area: | 77 - CP-250-F | Land Use Code | 11 |
| Open Space: | N | DFL | N |
| Historic Property: | N | Remodel Property: | N |
| Multi-Family Redevelopment: | N | | |
| Township: | 7 | Section: | 36 |
| Range: | 35 |
Location |
| Address: | 963 SE ENSIGN PL WA 99324 | Mapsco: | |
| Neighborhood: | G SFR | Map ID: | |
| Neighborhood CD: | 114011 |
Owner |
| Name: | SCHEIBNER CHRISTOPHER & JOY | Owner ID: | 59388 |
| Mailing Address: | 963 SE ENSIGN PL COLLEGE PLACE, WA 99324 | % Ownership: | 100.0000000000% |
| | | Exemptions: | |
Taxes and Assessment Details
Property Tax Information as of
02/21/2026
Click on "Statement Details" to expand or collapse a tax statement.
* Please enter a valid date ** Please enter a valid date *
Statement Details |
| | TOTAL: | $0.00 | $0.00 | $0.00 | $0.00 | $0.00 | $0.00 |
|
| | $0.00 | $0.00 | $0.00 | $0.00 | $0.00 | $0.00 |
Values
| (+) Improvement Homesite Value: | + | $349,970 | |
| (+) Improvement Non-Homesite Value: | + | $0 | |
| (+) Land Homesite Value: | + | $75,000 | |
| (+) Land Non-Homesite Value: | + | $0 | |
| (+) Curr Use (HS): | + | $0 | $0 |
| (+) Curr Use (NHS): | + | $0 | $0 |
| | | -------------------------- | |
| (=) Market Value: | = | $424,970 | |
| (–) Productivity Loss: | – | $0 | |
| | | -------------------------- | |
| (=) Subtotal: | = | $424,970 | |
| (+) Senior Appraised Value: | + | $0 | |
| (+) Non-Senior Appraised Value: | + | $424,970 | |
| | | -------------------------- | |
| (=) Total Appraised Value: | = | $424,970 | |
| (–) Senior Exemption Loss: | – | $0 | |
| (–) Exemption Loss: | – | $0 | |
| | | -------------------------- | |
| (=) Taxable Value: | = | $424,970 | |
Taxing Jurisdiction
| Owner: | SCHEIBNER CHRISTOPHER & JOY | | |
| % Ownership: | 100.0000000000% | | |
| Total Value: | $424,970 | | |
| Tax Area: | 77 - CP-250-F |
| CERFD | CURRENT EXPENSE REFUND 010 | 0.0000000000 | $424,970 | $424,970 | $0.00 | | |
| CURREXP | CURRENT EXPENSE 010 | 1.0175366760 | $424,970 | $424,970 | $432.42 | | |
| HUMNSERV | HUMAN SERVICES 119 | 0.0250000000 | $424,970 | $424,970 | $10.62 | | |
| SLDREL | SOLDIERS RELIEF 121 | 0.0155990005 | $424,970 | $424,970 | $6.63 | | |
| COLLPLBOND | C OF CP BOND 644 | 0.4374241808 | $424,970 | $424,970 | $185.89 | | |
| COLLPLGEN | CITY OF CP 632 | 1.4453819216 | $424,970 | $424,970 | $614.24 | | |
| EMERGSER | EMS 147 | 0.3792580840 | $424,970 | $424,970 | $161.17 | | |
| EMSRFD | EMS REFUND 147 | 0.0000000000 | $424,970 | $424,970 | $0.00 | | |
| RURALLIB | RURAL LIBRARY 623 | 0.3710609029 | $424,970 | $424,970 | $157.69 | | |
| PORTRFD | PORT REFUND 640 | 0.0000000000 | $424,970 | $424,970 | $0.00 | | |
| PORTWWGEN | PORT OF WW 640 | 0.2460186015 | $424,970 | $424,970 | $104.55 | | |
| SD250BOND | SD #250 BOND 773 | 1.4560608159 | $424,970 | $424,970 | $618.78 | | |
| SD250GEN | SD #250 GENERAL 770 | 2.3880724087 | $424,970 | $424,970 | $1,014.86 | | |
| ST2 | STATE SCHOOL PART 2 600 | 0.8131451643 | $424,970 | $424,970 | $345.56 | | |
| STATESCHL | STATE SCHOOL 600 | 1.5158548041 | $424,970 | $424,970 | $644.19 | | |
| STREFUND | STATE REFUND LEVY 603 | 0.0000000000 | $424,970 | $424,970 | $0.00 | | |
| | Total Tax Rate: | 10.1104125603 | | | | | |
| | | | | Taxes w/Current Exemptions: | $4,296.60 | | |
| | | | | Taxes w/o Exemptions: | $4,296.60 | | |
Improvement / Building
| Improvement #1: | RESIDENTIAL | State Code: | 11 | 1678.0 sqft | Value: | $349,970 |
| Exterior Wall: | PLYWOOD | Heating/Cooling: | WARM & COOLED AIR | | Number of Bathrooms: | 2 | Number of Bedrooms: | 3 | | Plumbing: | 9 | Roof Covering: | COMP SHINGLE |
|
| | Type | Description | Class CD | Sub Class CD | Year Built | Area |
| | MA | Main Area | 1 | 40 | 1994 | 1678.0 |
| | SI1 | SITE IMPROVEMENT | 1 | 40 | 1994 | 2.0 |
| | ATG | Attached Garage | 1 | 40 | 1994 | 506.0 |
| | GFP | GAS FIREPLACE | 1 | 40 | 1994 | 1.0 |
| | RPC | OPEN PORCH W/ROOF , CEILED | 1 | 40 | 1994 | 42.0 |
Sketch
Property Image
Land
| 1 | RES 1 | Converted: Residential | 0.2149 | 9362.00 | 0.00 | 0.00 | 1.00 | $75,000 | $0 |
Roll Value History
| 2026 | N/A | N/A | N/A | N/A | N/A |
| 2025 | $297,470 | $140,000 | $0 | $437,470 | $437,470 |
| 2024 | $349,970 | $75,000 | $0 | $424,970 | $424,970 |
| 2023 | $349,970 | $75,000 | $0 | $424,970 | $424,970 |
| 2022 | $291,640 | $75,000 | $0 | $366,640 | $366,640 |
| 2021 | $265,130 | $75,000 | $0 | $340,130 | $340,130 |
| 2020 | $196,390 | $75,000 | $0 | $271,390 | $271,390 |
| 2019 | $206,390 | $65,000 | $0 | $271,390 | $271,390 |
| 2018 | $158,760 | $65,000 | $0 | $223,760 | $223,760 |
| 2017 | $158,760 | $65,000 | $0 | $223,760 | $223,760 |
| 2016 | $151,200 | $65,000 | $0 | $216,200 | $216,200 |
| 2015 | $151,200 | $65,000 | $0 | $216,200 | $216,200 |
| 2014 | $151,200 | $65,000 | $0 | $216,200 | $117,195 |
| 2013 | $151,200 | $65,000 | $0 | $216,200 | $117,195 |
| 2012 | $151,200 | $65,000 | $0 | $0 | $0 |
| 2011 | $151,200 | $65,000 | $0 | $0 | $0 |
| 2010 | $151,200 | $65,000 | $0 | $0 | $0 |
| 2009 | $162,600 | $65,000 | $0 | $0 | $0 |
| 2008 | $140,300 | $40,000 | $0 | $0 | $0 |
| 2007 | $140,300 | $40,000 | $0 | $0 | $0 |
Deed and Sales History
| 1 | 08/09/2016 | SWD | STATUTORY WARRANTY DEED | SIMONS RUTH | SCHEIBNER CHRISTOPHER & JOY | | | $224,000.00 | 130805 | 2016-06364 |
| 2 | 05/18/2005 | QCD | QUIT CLAIM DEED | GEE, SHIRLEY; RICHARD SIMONS J | SIMONS, RUTH | | | | 107519 | 2005-05975 |
| 3 | 05/02/2001 | WARRANTY D | WARRANTY DEED | | | | | $167,000.00 | 97082 | 3120-104410 |
Payout Agreement
| No payout information available.. |