Property
Account |
| Property ID: | 29639 | Abbreviated Legal Description: | BLALOCK ORCHARDS TAX 21 LOT 9 BLK 44 |
| Parcel Number: | 350735524409 | Agent Code: | |
| Type: | Real | | |
| Tax Area: | 75 - CP 250 | Land Use Code | 11 |
| Open Space: | N | DFL | N |
| Historic Property: | N | Remodel Property: | N |
| Multi-Family Redevelopment: | N | | |
| Township: | 7 | Section: | 35 |
| Range: | 35 |
Location |
| Address: | 604 SW 2ND ST WA 99324 | Mapsco: | |
| Neighborhood: | A SFR | Map ID: | |
| Neighborhood CD: | 113011 |
Owner |
| Name: | STEINHOFF ANNA | Owner ID: | 67108 |
| Mailing Address: | 604 SW 2ND ST COLLEGE PLACE, WA 99324 | % Ownership: | 100.0000000000% |
| | | Exemptions: | |
Taxes and Assessment Details
Property Tax Information as of
02/21/2026
Click on "Statement Details" to expand or collapse a tax statement.
* Please enter a valid date ** Please enter a valid date *
Statement Details |
| | TOTAL: | $0.00 | $0.00 | $0.00 | $0.00 | $0.00 | $0.00 |
|
| | $0.00 | $0.00 | $0.00 | $0.00 | $0.00 | $0.00 |
Values
| (+) Improvement Homesite Value: | + | $0 | |
| (+) Improvement Non-Homesite Value: | + | $171,040 | |
| (+) Land Homesite Value: | + | $0 | |
| (+) Land Non-Homesite Value: | + | $58,810 | |
| (+) Curr Use (HS): | + | $0 | $0 |
| (+) Curr Use (NHS): | + | $0 | $0 |
| | | -------------------------- | |
| (=) Market Value: | = | $229,850 | |
| (–) Productivity Loss: | – | $0 | |
| | | -------------------------- | |
| (=) Subtotal: | = | $229,850 | |
| (+) Senior Appraised Value: | + | $0 | |
| (+) Non-Senior Appraised Value: | + | $229,850 | |
| | | -------------------------- | |
| (=) Total Appraised Value: | = | $229,850 | |
| (–) Senior Exemption Loss: | – | $0 | |
| (–) Exemption Loss: | – | $0 | |
| | | -------------------------- | |
| (=) Taxable Value: | = | $229,850 | |
Taxing Jurisdiction
| Owner: | STEINHOFF ANNA | | |
| % Ownership: | 100.0000000000% | | |
| Total Value: | $229,850 | | |
| Tax Area: | 75 - CP 250 |
| CERFD | CURRENT EXPENSE REFUND 010 | 0.0000000000 | $229,850 | $229,850 | $0.00 | | |
| CURREXP | CURRENT EXPENSE 010 | 1.0175366760 | $229,850 | $229,850 | $233.88 | | |
| HUMNSERV | HUMAN SERVICES 119 | 0.0250000000 | $229,850 | $229,850 | $5.75 | | |
| SLDREL | SOLDIERS RELIEF 121 | 0.0155990005 | $229,850 | $229,850 | $3.59 | | |
| COLLPLBOND | C OF CP BOND 644 | 0.4374241808 | $229,850 | $229,850 | $100.54 | | |
| COLLPLGEN | CITY OF CP 632 | 1.4453819216 | $229,850 | $229,850 | $332.22 | | |
| EMERGSER | EMS 147 | 0.3792580840 | $229,850 | $229,850 | $87.17 | | |
| EMSRFD | EMS REFUND 147 | 0.0000000000 | $229,850 | $229,850 | $0.00 | | |
| RURALLIB | RURAL LIBRARY 623 | 0.3710609029 | $229,850 | $229,850 | $85.29 | | |
| PORTRFD | PORT REFUND 640 | 0.0000000000 | $229,850 | $229,850 | $0.00 | | |
| PORTWWGEN | PORT OF WW 640 | 0.2460186015 | $229,850 | $229,850 | $56.55 | | |
| SD250BOND | SD #250 BOND 773 | 1.4560608159 | $229,850 | $229,850 | $334.68 | | |
| SD250GEN | SD #250 GENERAL 770 | 2.3880724087 | $229,850 | $229,850 | $548.90 | | |
| ST2 | STATE SCHOOL PART 2 600 | 0.8131451643 | $229,850 | $229,850 | $186.90 | | |
| STATESCHL | STATE SCHOOL 600 | 1.5158548041 | $229,850 | $229,850 | $348.42 | | |
| STREFUND | STATE REFUND LEVY 603 | 0.0000000000 | $229,850 | $229,850 | $0.00 | | |
| | Total Tax Rate: | 10.1104125603 | | | | | |
| | | | | Taxes w/Current Exemptions: | $2,323.89 | | |
| | | | | Taxes w/o Exemptions: | $2,323.89 | | |
Improvement / Building
| Improvement #1: | RESIDENTIAL | State Code: | 11 | 1200.0 sqft | Value: | $171,040 |
| Exterior Wall: | PLYWOOD | Heating/Cooling: | BASEBOARD ELECTRIC | | Number of Bathrooms: | 1 | Number of Bedrooms: | 3 | | Plumbing: | 6 | Roof Covering: | METAL ROOFING |
|
| | Type | Description | Class CD | Sub Class CD | Year Built | Area |
| | MA | Main Area | 1 | 25 | 1943 | 1200.0 |
| | SI1 | SITE IMPROVEMENT | 1 | 25 | 1943 | 1.5 |
| | RPO | OPEN PORCH W/ROOF | 1 | 25 | 1943 | 84.0 |
| | WOD | Wood Deck | 1 | 25 | 1943 | 18.0 |
| | GFP | GAS FIREPLACE | 1 | 25 | 1943 | 1.0 |
| | CPCS | CARPORT/SHED OR FLAT ROOF | 1 | 25 | 1943 | 351.0 |
| | TOOL | TOOL SHED | 1 | 25 | 1943 | 240.0 |
Sketch
Property Image
Land
| 1 | RES 1 | Converted: Residential | 0.2000 | 8712.00 | 0.00 | 0.00 | 1.00 | $58,810 | $0 |
Roll Value History
| 2026 | N/A | N/A | N/A | N/A | N/A |
| 2025 | $215,510 | $87,120 | $0 | $302,630 | $302,630 |
| 2024 | $179,590 | $58,810 | $0 | $238,400 | $238,400 |
| 2023 | $171,040 | $58,810 | $0 | $229,850 | $229,850 |
| 2022 | $155,490 | $58,810 | $0 | $214,300 | $214,300 |
| 2021 | $148,090 | $58,810 | $0 | $206,900 | $206,900 |
| 2020 | $87,110 | $58,810 | $0 | $145,920 | $145,920 |
| 2019 | $99,920 | $46,000 | $0 | $145,920 | $145,920 |
| 2018 | $99,920 | $46,000 | $0 | $145,920 | $145,920 |
| 2017 | $83,270 | $46,000 | $0 | $129,270 | $20,200 |
| 2016 | $79,300 | $46,000 | $0 | $125,300 | $20,200 |
| 2015 | $79,300 | $46,000 | $0 | $125,300 | $20,200 |
| 2014 | $79,300 | $46,000 | $0 | $125,300 | $30,200 |
| 2013 | $79,300 | $46,000 | $0 | $125,300 | $30,200 |
| 2012 | $79,300 | $46,000 | $0 | $0 | $0 |
| 2011 | $79,300 | $46,000 | $0 | $0 | $0 |
| 2010 | $73,300 | $46,000 | $0 | $0 | $0 |
| 2009 | $86,600 | $46,000 | $0 | $0 | $0 |
| 2008 | $56,600 | $23,600 | $0 | $0 | $0 |
| 2007 | $56,600 | $23,600 | $0 | $0 | $0 |
Deed and Sales History
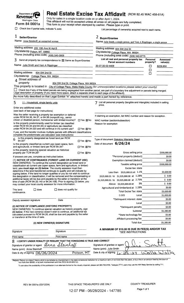
| 1 | 06/28/2024 | SWD | STATUTORY WARRANTY DEED | STEINHOFF ANNA | SMITH JULIE | | | $330,000.00 | 147785 | 2024-03464 |
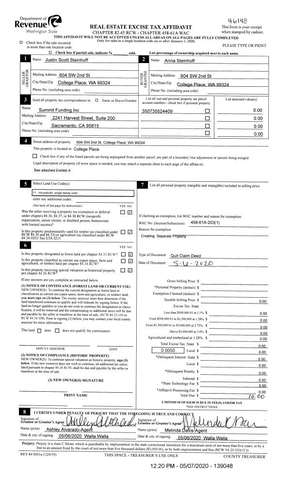
| 2 | 05/07/2020 | QCD | QUIT CLAIM DEED | STEINHOFF JUSTIN SCOTT | STEINHOFF ANNA | | | | 139048 | 2020-03921 |
| 3 | 05/07/2020 | SWD | STATUTORY WARRANTY DEED | GIARDE PAUL E | STEINHOFF ANNA | | | $210,000.00 | 139047 | 2020-03920 |
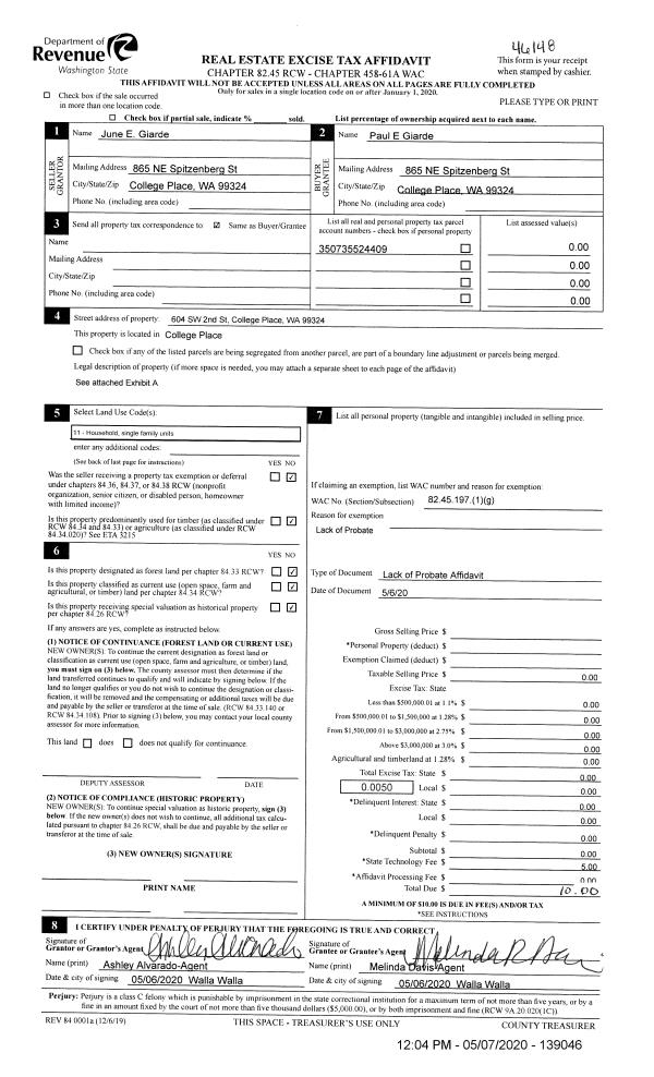
| 4 | 05/07/2020 | LOPA | LACK OF PROBATE AFFIDAVIT | GIARDE PAUL E | GIARDE PAUL E | | | | 139046 | 2020-03919 |
| 5 | 03/14/2018 | DEATH CERT | DEATH CERTIFICATE | GIARDE JUNE ELLEN | | | | | 0 | 2018-01988 |
| 6 | | COMMUNITY | COMMUNITY PROPERTY AGREEMENT | GIARDE JUNE ELLEN | GIARDE PAUL E | | | | 0 | 1990-05460 |
| 7 | 01/01/1952 | WARRANTY D | WARRANTY DEED | | | | | $0.00 | 0 | 2610-356532 |
Payout Agreement
| No payout information available.. |