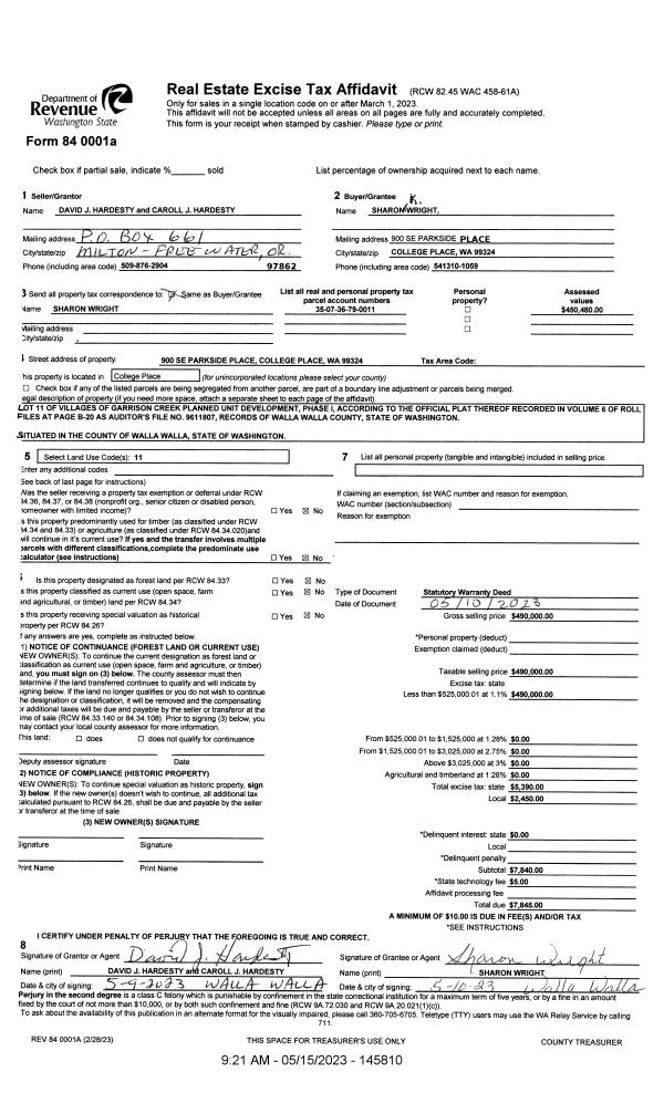
Property
Account |
| Property ID: | 29620 | Abbreviated Legal Description: | VILLAGES OF GARRISON CRK PUD PHASE 1 LOT 11 AMENDED |
| Parcel Number: | 350736790011 | Agent Code: | |
| Type: | Real | | |
| Tax Area: | 77 - CP-250-F | Land Use Code | 11 |
| Open Space: | N | DFL | N |
| Historic Property: | N | Remodel Property: | N |
| Multi-Family Redevelopment: | N | | |
| Township: | 7 | Section: | 36 |
| Range: | 35 |
Location |
| Address: | 900 SE PARKSIDE PL WA 99324 | Mapsco: | |
| Neighborhood: | G SFR | Map ID: | |
| Neighborhood CD: | 114011 |
Owner |
| Name: | WRIGHT SHARON K | Owner ID: | 73599 |
| Mailing Address: | 900 SE PARKSIDE PL COLLEGE PLACE, WA 99324 | % Ownership: | 100.0000000000% |
| | | Exemptions: | |
Taxes and Assessment Details
Property Tax Information as of
02/21/2026
Click on "Statement Details" to expand or collapse a tax statement.
* Please enter a valid date ** Please enter a valid date *
Statement Details |
| | TOTAL: | $0.00 | $0.00 | $0.00 | $0.00 | $0.00 | $0.00 |
|
| | $0.00 | $0.00 | $0.00 | $0.00 | $0.00 | $0.00 |
Values
| (+) Improvement Homesite Value: | + | $394,250 | |
| (+) Improvement Non-Homesite Value: | + | $0 | |
| (+) Land Homesite Value: | + | $75,000 | |
| (+) Land Non-Homesite Value: | + | $0 | |
| (+) Curr Use (HS): | + | $0 | $0 |
| (+) Curr Use (NHS): | + | $0 | $0 |
| | | -------------------------- | |
| (=) Market Value: | = | $469,250 | |
| (–) Productivity Loss: | – | $0 | |
| | | -------------------------- | |
| (=) Subtotal: | = | $469,250 | |
| (+) Senior Appraised Value: | + | $0 | |
| (+) Non-Senior Appraised Value: | + | $469,250 | |
| | | -------------------------- | |
| (=) Total Appraised Value: | = | $469,250 | |
| (–) Senior Exemption Loss: | – | $0 | |
| (–) Exemption Loss: | – | $0 | |
| | | -------------------------- | |
| (=) Taxable Value: | = | $469,250 | |
Taxing Jurisdiction
| Owner: | WRIGHT SHARON K | | |
| % Ownership: | 100.0000000000% | | |
| Total Value: | $469,250 | | |
| Tax Area: | 77 - CP-250-F |
| CERFD | CURRENT EXPENSE REFUND 010 | 0.0000000000 | $469,250 | $469,250 | $0.00 | | |
| CURREXP | CURRENT EXPENSE 010 | 1.0175366760 | $469,250 | $469,250 | $477.48 | | |
| HUMNSERV | HUMAN SERVICES 119 | 0.0250000000 | $469,250 | $469,250 | $11.73 | | |
| SLDREL | SOLDIERS RELIEF 121 | 0.0155990005 | $469,250 | $469,250 | $7.32 | | |
| COLLPLBOND | C OF CP BOND 644 | 0.4374241808 | $469,250 | $469,250 | $205.26 | | |
| COLLPLGEN | CITY OF CP 632 | 1.4453819216 | $469,250 | $469,250 | $678.25 | | |
| EMERGSER | EMS 147 | 0.3792580840 | $469,250 | $469,250 | $177.97 | | |
| EMSRFD | EMS REFUND 147 | 0.0000000000 | $469,250 | $469,250 | $0.00 | | |
| RURALLIB | RURAL LIBRARY 623 | 0.3710609029 | $469,250 | $469,250 | $174.12 | | |
| PORTRFD | PORT REFUND 640 | 0.0000000000 | $469,250 | $469,250 | $0.00 | | |
| PORTWWGEN | PORT OF WW 640 | 0.2460186015 | $469,250 | $469,250 | $115.44 | | |
| SD250BOND | SD #250 BOND 773 | 1.4560608159 | $469,250 | $469,250 | $683.26 | | |
| SD250GEN | SD #250 GENERAL 770 | 2.3880724087 | $469,250 | $469,250 | $1,120.60 | | |
| ST2 | STATE SCHOOL PART 2 600 | 0.8131451643 | $469,250 | $469,250 | $381.57 | | |
| STATESCHL | STATE SCHOOL 600 | 1.5158548041 | $469,250 | $469,250 | $711.31 | | |
| STREFUND | STATE REFUND LEVY 603 | 0.0000000000 | $469,250 | $469,250 | $0.00 | | |
| | Total Tax Rate: | 10.1104125603 | | | | | |
| | | | | Taxes w/Current Exemptions: | $4,744.31 | | |
| | | | | Taxes w/o Exemptions: | $4,744.31 | | |
Improvement / Building
| Improvement #1: | RESIDENTIAL | State Code: | 11 | 1735.0 sqft | Value: | $394,250 |
| Exterior Wall: | PLYWOOD | Heating/Cooling: | WARM & COOLED AIR | | Number of Bathrooms: | 2 | Number of Bedrooms: | 2 | | Plumbing: | 11 | Roof Covering: | COMP SHINGLE |
|
| | Type | Description | Class CD | Sub Class CD | Year Built | Area |
| | MA | Main Area | 1 | 40 | 1997 | 1735.0 |
| | SI1 | SITE IMPROVEMENT | 1 | 40 | 1997 | 2.5 |
| | ATG | Attached Garage | 1 | 40 | 1997 | 605.0 |
| | RPC | OPEN PORCH W/ROOF , CEILED | 1 | 40 | 1997 | 88.0 |
| | GFP | GAS FIREPLACE | 1 | 40 | 1997 | 1.0 |
Sketch
Property Image
Land
| 1 | RES 1 | Converted: Residential | 0.1288 | 5610.00 | 0.00 | 0.00 | 1.00 | $75,000 | $0 |
Roll Value History
| 2026 | N/A | N/A | N/A | N/A | N/A |
| 2025 | $360,150 | $135,000 | $0 | $495,150 | $495,150 |
| 2024 | $413,970 | $75,000 | $0 | $488,970 | $488,970 |
| 2023 | $394,250 | $75,000 | $0 | $469,250 | $469,250 |
| 2022 | $375,480 | $75,000 | $0 | $450,480 | $450,480 |
| 2021 | $300,380 | $75,000 | $0 | $375,380 | $375,380 |
| 2020 | $207,160 | $75,000 | $0 | $282,160 | $282,160 |
| 2019 | $217,160 | $65,000 | $0 | $282,160 | $282,160 |
| 2018 | $167,050 | $65,000 | $0 | $232,050 | $232,050 |
| 2017 | $167,050 | $65,000 | $0 | $232,050 | $232,050 |
| 2016 | $159,090 | $65,000 | $0 | $224,090 | $224,090 |
| 2015 | $176,770 | $65,000 | $0 | $241,770 | $241,770 |
| 2014 | $160,700 | $65,000 | $0 | $225,700 | $120,185 |
| 2013 | $160,700 | $65,000 | $0 | $225,700 | $225,700 |
| 2012 | $160,700 | $65,000 | $0 | $0 | $0 |
| 2011 | $160,700 | $65,000 | $0 | $0 | $0 |
| 2010 | $160,700 | $65,000 | $0 | $0 | $0 |
| 2009 | $172,600 | $65,000 | $0 | $0 | $0 |
| 2008 | $154,900 | $30,000 | $0 | $0 | $0 |
| 2007 | $154,900 | $30,000 | $0 | $0 | $0 |
Deed and Sales History
| 1 | 05/15/2023 | SWD | STATUTORY WARRANTY DEED | HARDESTY DAVID J & CAROLL J | WRIGHT SHARON K | | | $490,000.00 | 145810 | 2023-02564 |
| 2 | 11/18/2015 | SWD | STATUTORY WARRANTY DEED | CLARIDGE LAWRENCE L | HARDESTY DAVID J & CAROLL J | | | $225,000.00 | 129213 | 2015-10012 |
| 3 | 11/18/2015 | QCD | QUIT CLAIM DEED | CLARIDGE LAWRENCE & DELVA | CLARIDGE LAWRENCE L | | | $0.00 | 129212 | 2015-10011 |
| 4 | 01/07/1997 | WARRANTY D | WARRANTY DEED | | | | | $18,000.00 | 87513 | 2479-700154 |
Payout Agreement
| No payout information available.. |