Property
Account |
| Property ID: | 29605 | Abbreviated Legal Description: | EJ PONTI'S GREEN ACRES LOT 23 |
| Parcel Number: | 350726600023 | Agent Code: | |
| Type: | Real | | |
| Tax Area: | 75 - CP 250 | Land Use Code | 11 |
| Open Space: | N | DFL | N |
| Historic Property: | N | Remodel Property: | N |
| Multi-Family Redevelopment: | N | | |
| Township: | 7 | Section: | 26 |
| Range: | 35 |
Location |
| Address: | 152 NW DESTITO CT WA 99324 | Mapsco: | |
| Neighborhood: | A SFR | Map ID: | |
| Neighborhood CD: | 113011 |
Owner |
| Name: | LUCARELLI FAMILY TRUST | Owner ID: | 73564 |
| Mailing Address: | ANTHONY J & KELLY E LUCARELLI TRUSTEES 868 BLALOCK DR WALLA WALLA, WA 99362 | % Ownership: | 100.0000000000% |
| | | Exemptions: | |
Taxes and Assessment Details
Property Tax Information as of
02/21/2026
Click on "Statement Details" to expand or collapse a tax statement.
* Please enter a valid date ** Please enter a valid date *
Statement Details |
| | TOTAL: | $0.00 | $0.00 | $0.00 | $0.00 | $0.00 | $0.00 |
|
| | $0.00 | $0.00 | $0.00 | $0.00 | $0.00 | $0.00 |
Values
| (+) Improvement Homesite Value: | + | $0 | |
| (+) Improvement Non-Homesite Value: | + | $328,590 | |
| (+) Land Homesite Value: | + | $0 | |
| (+) Land Non-Homesite Value: | + | $70,000 | |
| (+) Curr Use (HS): | + | $0 | $0 |
| (+) Curr Use (NHS): | + | $0 | $0 |
| | | -------------------------- | |
| (=) Market Value: | = | $398,590 | |
| (–) Productivity Loss: | – | $0 | |
| | | -------------------------- | |
| (=) Subtotal: | = | $398,590 | |
| (+) Senior Appraised Value: | + | $0 | |
| (+) Non-Senior Appraised Value: | + | $398,590 | |
| | | -------------------------- | |
| (=) Total Appraised Value: | = | $398,590 | |
| (–) Senior Exemption Loss: | – | $0 | |
| (–) Exemption Loss: | – | $0 | |
| | | -------------------------- | |
| (=) Taxable Value: | = | $398,590 | |
Taxing Jurisdiction
| Owner: | LUCARELLI FAMILY TRUST | | |
| % Ownership: | 100.0000000000% | | |
| Total Value: | $398,590 | | |
| Tax Area: | 75 - CP 250 |
| CERFD | CURRENT EXPENSE REFUND 010 | 0.0000000000 | $398,590 | $398,590 | $0.00 | | |
| CURREXP | CURRENT EXPENSE 010 | 1.0175366760 | $398,590 | $398,590 | $405.58 | | |
| HUMNSERV | HUMAN SERVICES 119 | 0.0250000000 | $398,590 | $398,590 | $9.96 | | |
| SLDREL | SOLDIERS RELIEF 121 | 0.0155990005 | $398,590 | $398,590 | $6.22 | | |
| COLLPLBOND | C OF CP BOND 644 | 0.4374241808 | $398,590 | $398,590 | $174.35 | | |
| COLLPLGEN | CITY OF CP 632 | 1.4453819216 | $398,590 | $398,590 | $576.11 | | |
| EMERGSER | EMS 147 | 0.3792580840 | $398,590 | $398,590 | $151.17 | | |
| EMSRFD | EMS REFUND 147 | 0.0000000000 | $398,590 | $398,590 | $0.00 | | |
| RURALLIB | RURAL LIBRARY 623 | 0.3710609029 | $398,590 | $398,590 | $147.90 | | |
| PORTRFD | PORT REFUND 640 | 0.0000000000 | $398,590 | $398,590 | $0.00 | | |
| PORTWWGEN | PORT OF WW 640 | 0.2460186015 | $398,590 | $398,590 | $98.06 | | |
| SD250BOND | SD #250 BOND 773 | 1.4560608159 | $398,590 | $398,590 | $580.37 | | |
| SD250GEN | SD #250 GENERAL 770 | 2.3880724087 | $398,590 | $398,590 | $951.86 | | |
| ST2 | STATE SCHOOL PART 2 600 | 0.8131451643 | $398,590 | $398,590 | $324.11 | | |
| STATESCHL | STATE SCHOOL 600 | 1.5158548041 | $398,590 | $398,590 | $604.20 | | |
| STREFUND | STATE REFUND LEVY 603 | 0.0000000000 | $398,590 | $398,590 | $0.00 | | |
| | Total Tax Rate: | 10.1104125603 | | | | | |
| | | | | Taxes w/Current Exemptions: | $4,029.89 | | |
| | | | | Taxes w/o Exemptions: | $4,029.89 | | |
Improvement / Building
| Improvement #1: | RESIDENTIAL | State Code: | 11 | 1544.0 sqft | Value: | $328,590 |
| Exterior Wall: | PLYWOOD | Heating/Cooling: | WARM & COOLED AIR | | Number of Bathrooms: | 2 | Number of Bedrooms: | 2 | | Plumbing: | 9 | Roof Covering: | COMP SHINGLE |
|
| | Type | Description | Class CD | Sub Class CD | Year Built | Area |
| | MA | Main Area | 1 | 30 | 1999 | 1544.0 |
| | SI1 | SITE IMPROVEMENT | 1 | 30 | 1999 | 2.0 |
| | ATG | Attached Garage | 1 | 30 | 1999 | 528.0 |
| | RPO | OPEN PORCH W/ROOF | 1 | 30 | 1999 | 30.0 |
| | GFP | GAS FIREPLACE | 1 | 30 | 1999 | 1.0 |
| | CPC | COVERED CARPORT/PATIO | 1 | 30 | 1999 | 198.0 |
Sketch
Property Image
Land
| 1 | RES 1 | Converted: Residential | 0.1855 | 8079.00 | 0.00 | 0.00 | 1.00 | $70,000 | $0 |
Roll Value History
| 2026 | N/A | N/A | N/A | N/A | N/A |
| 2025 | $295,730 | $130,000 | $0 | $425,730 | $425,730 |
| 2024 | $328,590 | $70,000 | $0 | $398,590 | $398,590 |
| 2023 | $328,590 | $70,000 | $0 | $398,590 | $398,590 |
| 2022 | $328,590 | $70,000 | $0 | $398,590 | $398,590 |
| 2021 | $219,060 | $70,000 | $0 | $289,060 | $289,060 |
| 2020 | $156,470 | $70,000 | $0 | $226,470 | $226,470 |
| 2019 | $171,470 | $55,000 | $0 | $226,470 | $226,470 |
| 2018 | $163,300 | $55,000 | $0 | $218,300 | $72,480 |
| 2017 | $155,530 | $55,000 | $0 | $210,530 | $72,480 |
| 2016 | $141,390 | $55,000 | $0 | $196,390 | $72,480 |
| 2015 | $128,540 | $55,000 | $0 | $183,540 | $72,480 |
| 2014 | $135,300 | $55,000 | $0 | $190,300 | $117,780 |
| 2013 | $135,300 | $55,000 | $0 | $190,300 | $117,780 |
| 2012 | $135,300 | $55,000 | $0 | $0 | $0 |
| 2011 | $135,300 | $55,000 | $0 | $0 | $0 |
| 2010 | $126,200 | $55,000 | $0 | $0 | $0 |
| 2009 | $146,300 | $55,000 | $0 | $0 | $0 |
| 2008 | $108,100 | $30,000 | $0 | $0 | $0 |
| 2007 | $108,100 | $30,000 | $0 | $0 | $0 |
Deed and Sales History
| 1 | 07/01/2024 | SWD | STATUTORY WARRANTY DEED | LUCARELLI FAMILY TRUST | DANTZMAN KIRK J & KATHERINE M | | | $430,000.00 | 147791 | 2024-03501 |
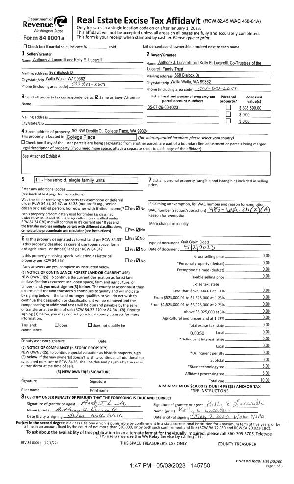
| 2 | 05/04/2023 | QCD | QUIT CLAIM DEED | LUCARELLI ANTHONY J & KELLY E | LUCARELLI FAMILY TRUST | | | $0.00 | 145750 | 2023-02342 |
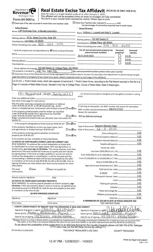
| 3 | 12/08/2021 | SWD | STATUTORY WARRANTY DEED | LSPI EXCHANGE CORP | LUCARELLI ANTHONY J & KELLY E | | | $0.00 | 143023 | 2021-14451 |
| 4 | 09/30/2021 | SWD | STATUTORY WARRANTY DEED | COFFELL RONALD & THERESA | LSPI EXCHANGE CORP | | | $422,000.00 | 142581 | 2021-11936 |
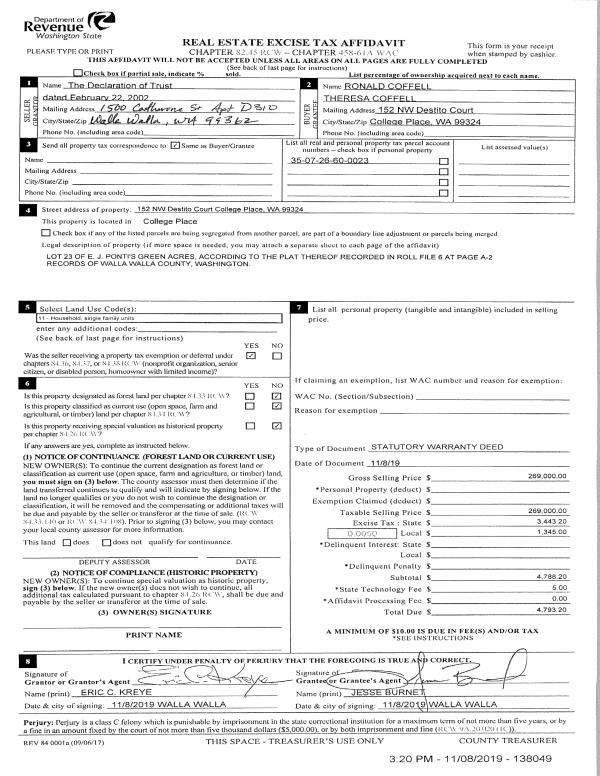
| 5 | 11/08/2019 | SWD | STATUTORY WARRANTY DEED | KREYE ERIC C & ARBUTIS TRUST | COFFELL RONALD & THERESA | | | $269,000.00 | 138049 | 2019-09207 |
| 6 | 12/12/2001 | WARRANTY D | WARRANTY DEED | | | | | $140,000.00 | 98535 | 3250-113588 |
Payout Agreement
| No payout information available.. |