Property
Account |
| Property ID: | 29581 | Abbreviated Legal Description: | STONES LOT 5 BLK 1 |
| Parcel Number: | 360729830105 | Agent Code: | |
| Type: | Real | | |
| Tax Area: | 1 - OL-140-F | Land Use Code | 11 |
| Open Space: | N | DFL | N |
| Historic Property: | N | Remodel Property: | N |
| Multi-Family Redevelopment: | N | | |
| Township: | 7 | Section: | 29 |
| Range: | 36 |
Location |
| Address: | 1227 TILLAMOOK ST WA 99362 | Mapsco: | |
| Neighborhood: | A Res | Map ID: | |
| Neighborhood CD: | 613011 |
Owner |
| Name: | HICKMAN CARLA | Owner ID: | 68657 |
| Mailing Address: | 1227 TILLAMOOK ST WALLA WALLA, WA 99362 | % Ownership: | 100.0000000000% |
| | | Exemptions: | |
Taxes and Assessment Details
Property Tax Information as of
02/21/2026
Click on "Statement Details" to expand or collapse a tax statement.
* Please enter a valid date ** Please enter a valid date *
Statement Details |
| | TOTAL: | $0.00 | $0.00 | $0.00 | $0.00 | $0.00 | $0.00 |
|
| | $0.00 | $0.00 | $0.00 | $0.00 | $0.00 | $0.00 |
Values
| (+) Improvement Homesite Value: | + | $135,590 | |
| (+) Improvement Non-Homesite Value: | + | $0 | |
| (+) Land Homesite Value: | + | $64,800 | |
| (+) Land Non-Homesite Value: | + | $0 | |
| (+) Curr Use (HS): | + | $0 | $0 |
| (+) Curr Use (NHS): | + | $0 | $0 |
| | | -------------------------- | |
| (=) Market Value: | = | $200,390 | |
| (–) Productivity Loss: | – | $0 | |
| | | -------------------------- | |
| (=) Subtotal: | = | $200,390 | |
| (+) Senior Appraised Value: | + | $0 | |
| (+) Non-Senior Appraised Value: | + | $200,390 | |
| | | -------------------------- | |
| (=) Total Appraised Value: | = | $200,390 | |
| (–) Senior Exemption Loss: | – | $0 | |
| (–) Exemption Loss: | – | $0 | |
| | | -------------------------- | |
| (=) Taxable Value: | = | $200,390 | |
Taxing Jurisdiction
| Owner: | HICKMAN CARLA | | |
| % Ownership: | 100.0000000000% | | |
| Total Value: | $200,390 | | |
| Tax Area: | 1 - OL-140-F |
| CERFD | CURRENT EXPENSE REFUND 010 | 0.0000000000 | $200,390 | $200,390 | $0.00 | | |
| CURREXP | CURRENT EXPENSE 010 | 1.0175366760 | $200,390 | $200,390 | $203.90 | | |
| HUMNSERV | HUMAN SERVICES 119 | 0.0250000000 | $200,390 | $200,390 | $5.01 | | |
| SLDREL | SOLDIERS RELIEF 121 | 0.0155990005 | $200,390 | $200,390 | $3.13 | | |
| EMERGSER | EMS 147 | 0.3792580840 | $200,390 | $200,390 | $76.00 | | |
| EMSRFD | EMS REFUND 147 | 0.0000000000 | $200,390 | $200,390 | $0.00 | | |
| PORTRFD | PORT REFUND 640 | 0.0000000000 | $200,390 | $200,390 | $0.00 | | |
| PORTWWGEN | PORT OF WW 640 | 0.2460186015 | $200,390 | $200,390 | $49.30 | | |
| SD140BOND | SD #140 BOND 764 | 0.8342371393 | $200,390 | $200,390 | $167.17 | | |
| SD140GEN | SD #140 GENERAL 760 | 2.0646500647 | $200,390 | $200,390 | $413.74 | | |
| ST2 | STATE SCHOOL PART 2 600 | 0.8131451643 | $200,390 | $200,390 | $162.95 | | |
| STATESCHL | STATE SCHOOL 600 | 1.5158548041 | $200,390 | $200,390 | $303.76 | | |
| STREFUND | STATE REFUND LEVY 603 | 0.0000000000 | $200,390 | $200,390 | $0.00 | | |
| CWWBOND | C OF WW BOND 643 | 0.2760494372 | $200,390 | $200,390 | $55.32 | | |
| CWWGEN | CITY OF WW 631 | 1.6100204973 | $200,390 | $200,390 | $322.63 | | |
| CWWRFD | CITY OF WALLA WALLA REFUND 631 | 0.0000000000 | $200,390 | $200,390 | $0.00 | | |
| | Total Tax Rate: | 8.7973694689 | | | | | |
| | | | | Taxes w/Current Exemptions: | $1,762.91 | | |
| | | | | Taxes w/o Exemptions: | $1,762.91 | | |
Improvement / Building
| Improvement #1: | RESIDENTIAL | State Code: | 11 | 844.0 sqft | Value: | $135,590 |
| Exterior Wall: | SIDING | Heating/Cooling: | WARM & COOLED AIR | | Number of Bathrooms: | 2 | Number of Bedrooms: | 2 | | Plumbing: | 9 | Roof Covering: | COMP SHINGLE |
|
| | Type | Description | Class CD | Sub Class CD | Year Built | Area |
| | MA | Main Area | 1 | 25 | 1946 | 844.0 |
| | SI1 | SITE IMPROVEMENT | 1 | 25 | 1946 | 1.0 |
| | BASE | BASEMENT | 1 | 25 | 1946 | 844.0 |
| | BMF | BASEMENT - MIN FINISH | 1 | 25 | 1946 | 844.0 |
| | ATG | Attached Garage | 1 | 25 | 1946 | 600.0 |
| | RPS | PORCH W/STEPS,ROOF | 1 | 25 | 1946 | 16.0 |
Sketch
Property Image
Land
| 1 | RES 1 | Converted: Residential | 0.1653 | 7200.00 | 0.00 | 0.00 | 1.00 | $64,800 | $0 |
Roll Value History
| 2026 | N/A | N/A | N/A | N/A | N/A |
| 2025 | $121,010 | $79,200 | $0 | $200,210 | $200,210 |
| 2024 | $135,590 | $64,800 | $0 | $200,390 | $200,390 |
| 2023 | $135,590 | $64,800 | $0 | $200,390 | $200,390 |
| 2022 | $112,990 | $52,200 | $0 | $165,190 | $165,190 |
| 2021 | $94,160 | $52,200 | $0 | $146,360 | $146,360 |
| 2020 | $85,600 | $52,200 | $0 | $137,800 | $137,800 |
| 2019 | $85,600 | $52,200 | $0 | $137,800 | $7,400 |
| 2018 | $94,600 | $43,200 | $0 | $137,800 | $7,400 |
| 2017 | $72,770 | $43,200 | $0 | $115,970 | $7,400 |
| 2016 | $66,150 | $43,200 | $0 | $109,350 | $7,400 |
| 2015 | $66,150 | $43,200 | $0 | $109,350 | $7,400 |
| 2014 | $63,000 | $43,200 | $0 | $106,200 | $7,400 |
| 2013 | $63,000 | $43,200 | $0 | $106,200 | $7,400 |
| 2012 | $69,300 | $43,200 | $0 | $0 | $0 |
| 2011 | $69,300 | $43,200 | $0 | $0 | $0 |
| 2010 | $69,300 | $43,200 | $0 | $0 | $0 |
| 2009 | $81,800 | $43,200 | $0 | $0 | $0 |
| 2008 | $81,800 | $43,200 | $0 | $0 | $0 |
| 2007 | $71,000 | $14,400 | $0 | $0 | $0 |
Deed and Sales History
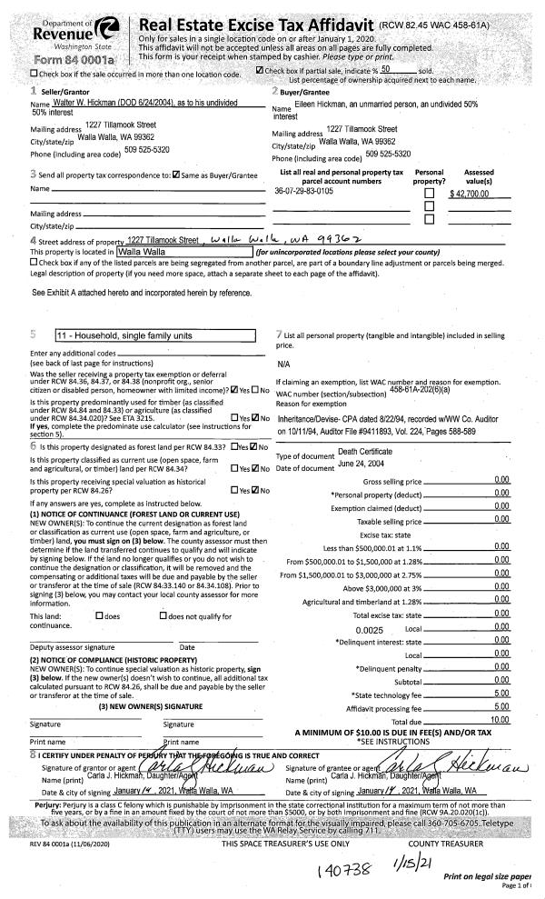
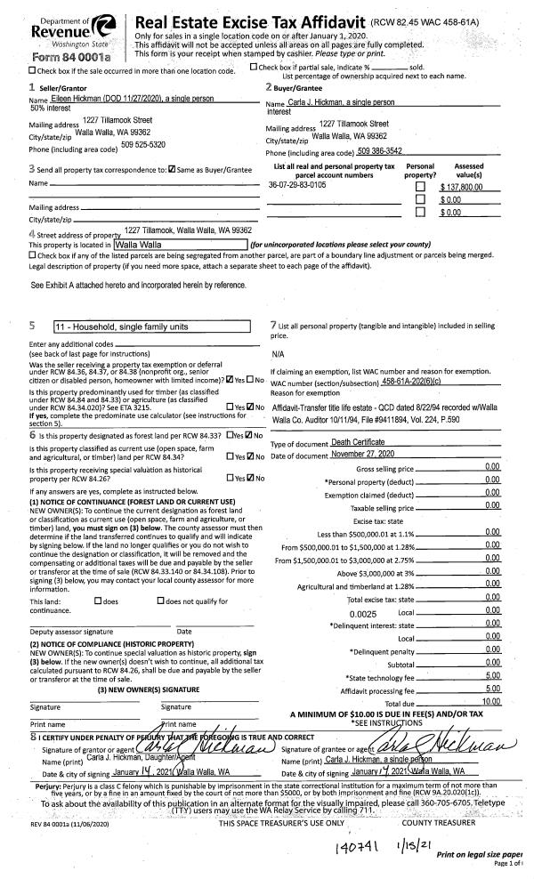
| 1 | 11/27/2020 | DEATH CERT | DEATH CERTIFICATE | HICKMAN EILEEN WILHEMINA ESTATE | HICKMAN CARLA | | | $0.00 | 140741 | 2021-00611 |
| 2 | 06/24/2004 | DEATH CERT | DEATH CERTIFICATE | HICKMAN WALTER W ESTATE | HICKMAN CARLA | | | $0.00 | 140738 | 2021-00606 |
| 3 | 03/16/1977 | WARRANTY D | WARRANTY DEED | | | | | $29,000.00 | 0 | 5605-62922 |
Payout Agreement
| No payout information available.. |