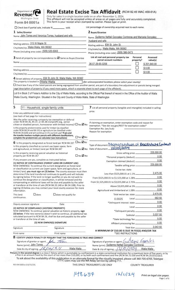
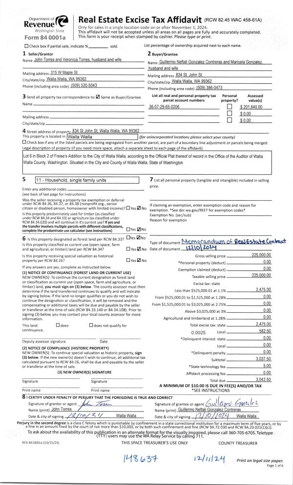
Property
Account |
| Property ID: | 29579 | Abbreviated Legal Description: | FREISE LOT 6 BLK 2 |
| Parcel Number: | 360729650206 | Agent Code: | |
| Type: | Real | | |
| Tax Area: | 1 - OL-140-F | Land Use Code | 11 |
| Open Space: | N | DFL | N |
| Historic Property: | N | Remodel Property: | N |
| Multi-Family Redevelopment: | N | | |
| Township: | 7 | Section: | 29 |
| Range: | 36 |
Location |
| Address: | 834 ST JOHN ST WA 99362 | Mapsco: | |
| Neighborhood: | A Res | Map ID: | |
| Neighborhood CD: | 613011 |
Owner |
| Name: | FRANCO LINDA LIFE ESTATE | Owner ID: | 39444 |
| Mailing Address: | JOHN & VERONICA TORRES 315 W MAPLE ST WALLA WALLA, WA 99362 | % Ownership: | 100.0000000000% |
| | | Exemptions: | SNR/DSBL |
Taxes and Assessment Details
Property Tax Information as of
02/21/2026
Click on "Statement Details" to expand or collapse a tax statement.
* Please enter a valid date ** Please enter a valid date *
Statement Details |
| | TOTAL: | $0.00 | $0.00 | $0.00 | $0.00 | $0.00 | $0.00 |
|
| | $0.00 | $0.00 | $0.00 | $0.00 | $0.00 | $0.00 |
Values
| (+) Improvement Homesite Value: | + | $136,840 | |
| (+) Improvement Non-Homesite Value: | + | $0 | |
| (+) Land Homesite Value: | + | $64,800 | |
| (+) Land Non-Homesite Value: | + | $0 | |
| (+) Curr Use (HS): | + | $0 | $0 |
| (+) Curr Use (NHS): | + | $0 | $0 |
| | | -------------------------- | |
| (=) Market Value: | = | $201,640 | |
| (–) Productivity Loss: | – | $0 | |
| | | -------------------------- | |
| (=) Subtotal: | = | $201,640 | |
| (+) Senior Appraised Value: | + | $64,700 | |
| (+) Non-Senior Appraised Value: | + | $0 | |
| | | -------------------------- | |
| (=) Total Appraised Value: | = | $64,700 | |
| (–) Senior Exemption Loss: | – | $60,000 | |
| (–) Exemption Loss: | – | $0 | |
| | | -------------------------- | |
| (=) Taxable Value: | = | $4,700 | |
Taxing Jurisdiction
| Owner: | FRANCO LINDA LIFE ESTATE | | |
| % Ownership: | 100.0000000000% | | |
| Total Value: | $201,640 | | |
| Tax Area: | 1 - OL-140-F |
| CERFD | CURRENT EXPENSE REFUND 010 | 0.0000000000 | $201,640 | $4,700 | $0.00 | | |
| CURREXP | CURRENT EXPENSE 010 | 1.0175366760 | $201,640 | $4,700 | $189.30 | | |
| HUMNSERV | HUMAN SERVICES 119 | 0.0250000000 | $201,640 | $4,700 | $4.65 | | |
| SLDREL | SOLDIERS RELIEF 121 | 0.0155990005 | $201,640 | $4,700 | $2.90 | | |
| EMERGSER | EMS 147 | 0.3792580840 | $201,640 | $4,700 | $70.56 | | |
| EMSRFD | EMS REFUND 147 | 0.0000000000 | $201,640 | $4,700 | $0.00 | | |
| PORTRFD | PORT REFUND 640 | 0.0000000000 | $201,640 | $4,700 | $0.00 | | |
| PORTWWGEN | PORT OF WW 640 | 0.2460186015 | $201,640 | $4,700 | $45.77 | | |
| SD140BOND | SD #140 BOND 764 | 0.0000000000 | $201,640 | $0 | $154.89 | | |
| SD140GEN | SD #140 GENERAL 760 | 0.0000000000 | $201,640 | $0 | $383.33 | | |
| ST2 | STATE SCHOOL PART 2 600 | 0.0000000000 | $201,640 | $0 | $150.97 | | |
| STATESCHL | STATE SCHOOL 600 | 1.5158548041 | $201,640 | $4,700 | $282.00 | | |
| STREFUND | STATE REFUND LEVY 603 | 0.0000000000 | $201,640 | $4,700 | $0.00 | | |
| CWWBOND | C OF WW BOND 643 | 0.0000000000 | $201,640 | $0 | $51.25 | | |
| CWWGEN | CITY OF WW 631 | 1.6100204973 | $201,640 | $4,700 | $299.52 | | |
| CWWRFD | CITY OF WALLA WALLA REFUND 631 | 0.0000000000 | $201,640 | $4,700 | $0.00 | | |
| | Total Tax Rate: | 4.8092876634 | | | | | |
| | | | | Taxes w/Current Exemptions: | $1,635.14 | | |
| | | | | Taxes w/o Exemptions: | $1,773.91 | | |
Improvement / Building
| Improvement #1: | RESIDENTIAL | State Code: | 11 | 1050.0 sqft | Value: | $136,840 |
| Exterior Wall: | VINYL | Heating/Cooling: | FORCED AIR | | Number of Bathrooms: | 1 | Number of Bedrooms: | 4 | | Plumbing: | 7 | Roof Covering: | COMP SHINGLE |
|
| | Type | Description | Class CD | Sub Class CD | Year Built | Area |
| | MA | Main Area | 1 | 30 | 1900 | 1050.0 |
| | SI1 | SITE IMPROVEMENT | 1 | 30 | 1900 | 1.0 |
| | BASE | BASEMENT | 1 | 30 | 1900 | 300.0 |
| | BPF | BASEMENT -PARTITIONED FINISH | 1 | 30 | 1900 | 200.0 |
| | ATG | Attached Garage | 1 | 30 | 1900 | 480.0 |
| | RPO | OPEN PORCH W/ROOF | 1 | 30 | 1900 | 108.0 |
| | RPO | OPEN PORCH W/ROOF | 1 | 30 | 1900 | 84.0 |
Sketch
Property Image
Land
| 1 | RES 1 | Converted: Residential | 0.1653 | 7200.00 | 0.00 | 0.00 | 1.00 | $64,800 | $0 |
Roll Value History
| 2026 | N/A | N/A | N/A | N/A | N/A |
| 2025 | $151,390 | $72,000 | $0 | $223,390 | $223,390 |
| 2024 | $136,840 | $64,800 | $0 | $201,640 | $201,640 |
| 2023 | $136,840 | $64,800 | $0 | $201,640 | $4,700 |
| 2022 | $114,040 | $52,200 | $0 | $166,240 | $4,700 |
| 2021 | $95,030 | $52,200 | $0 | $147,230 | $4,700 |
| 2020 | $73,100 | $52,200 | $0 | $125,300 | $4,700 |
| 2019 | $73,100 | $52,200 | $0 | $125,300 | $4,700 |
| 2018 | $67,540 | $43,200 | $0 | $110,740 | $4,700 |
| 2017 | $67,540 | $43,200 | $0 | $110,740 | $4,700 |
| 2016 | $61,400 | $43,200 | $0 | $104,600 | $4,700 |
| 2015 | $61,400 | $43,200 | $0 | $104,600 | $4,700 |
| 2014 | $61,400 | $43,200 | $0 | $104,600 | $4,700 |
| 2013 | $61,400 | $43,200 | $0 | $104,600 | $4,700 |
| 2012 | $96,200 | $43,200 | $0 | $0 | $0 |
| 2011 | $96,200 | $43,200 | $0 | $0 | $0 |
| 2010 | $89,600 | $43,200 | $0 | $0 | $0 |
| 2009 | $104,300 | $43,200 | $0 | $0 | $0 |
| 2008 | $104,300 | $43,200 | $0 | $0 | $0 |
| 2007 | $69,700 | $14,400 | $0 | $0 | $0 |
Deed and Sales History
| 1 | 12/11/2024 | REAL ESTAT | REAL ESTATE CONTRACT | TORRES JOHN & VERONICA | CONTRERAS GUILLERMO NEFTALI GONZALEZ | | | $225,000.00 | 148637 | 2024-07150 |
| 2 | 12/11/2024 | DEATH CERT | DEATH CERTIFICATE | FRANCO LINDA LIFE ESTATE | TORRES JOHN & VERONICA | | | | 0 | 2024-07149 |
| 3 | 12/22/2004 | QCD | QUIT CLAIM DEED | TORRES, JOHN M & VERONICA L | FRANCO, LINDA LIFE ESTATE | | | | 106467 | 2004-14696 |
| 4 | 10/20/2003 | QCD | QUIT CLAIM DEED | FRANCO, LINDA S | TORRES, JOHN M & VERONICA L | | | | 103311 | 2003-16207 |
| 5 | 02/16/1990 | WARRANTY D | WARRANTY DEED | | | | | $0.00 | 0 | 8903-00095 |
Payout Agreement
| No payout information available.. |