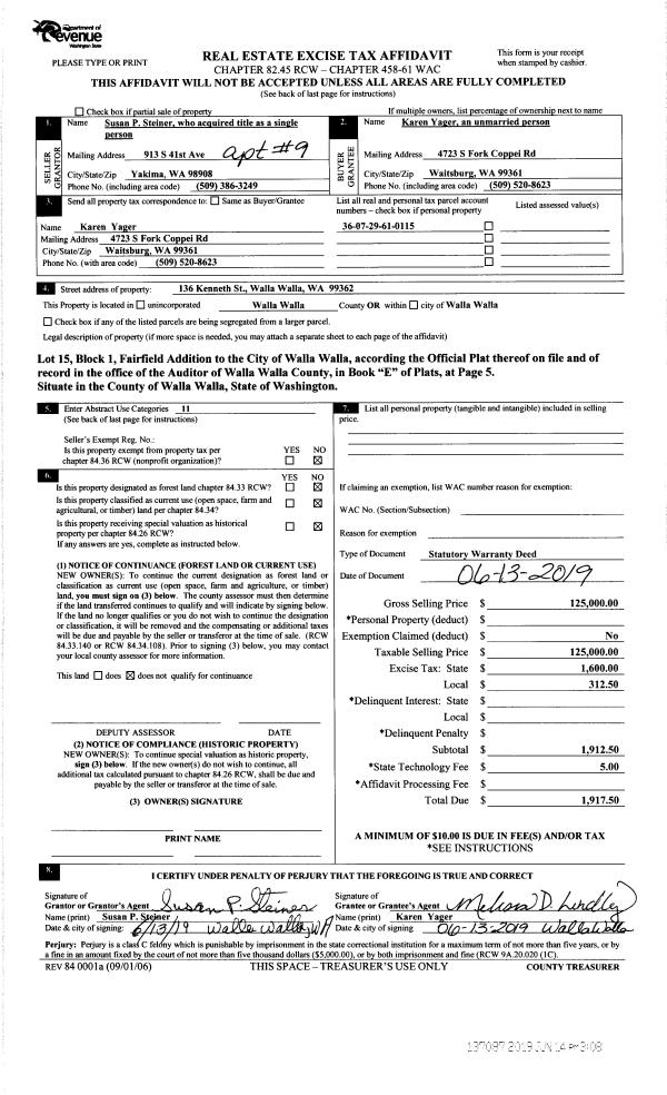
Property
Account |
| Property ID: | 29577 | Abbreviated Legal Description: | FAIRFIELD LOT 15 BLK 1 |
| Parcel Number: | 360729610115 | Agent Code: | |
| Type: | Real | | |
| Tax Area: | 1 - OL-140-F | Land Use Code | 11 |
| Open Space: | N | DFL | N |
| Historic Property: | N | Remodel Property: | N |
| Multi-Family Redevelopment: | N | | |
| Township: | 7 | Section: | 29 |
| Range: | 36 |
Location |
| Address: | 136 KENNETH ST WA 99362 | Mapsco: | |
| Neighborhood: | Fair Res | Map ID: | |
| Neighborhood CD: | 612011 |
Owner |
| Name: | YAGER KAREN M | Owner ID: | 16186 |
| Mailing Address: | C/O 532 EAST ALDER TRUST 3225 MCLEOD DR STE 777 LAS VEGAS, NV 89121 | % Ownership: | 100.0000000000% |
| | | Exemptions: | |
Taxes and Assessment Details
Property Tax Information as of
02/21/2026
Click on "Statement Details" to expand or collapse a tax statement.
* Please enter a valid date ** Please enter a valid date *
Statement Details |
| | TOTAL: | $0.00 | $0.00 | $0.00 | $0.00 | $0.00 | $0.00 |
|
| | $0.00 | $0.00 | $0.00 | $0.00 | $0.00 | $0.00 |
Values
| (+) Improvement Homesite Value: | + | $0 | |
| (+) Improvement Non-Homesite Value: | + | $137,210 | |
| (+) Land Homesite Value: | + | $0 | |
| (+) Land Non-Homesite Value: | + | $57,200 | |
| (+) Curr Use (HS): | + | $0 | $0 |
| (+) Curr Use (NHS): | + | $0 | $0 |
| | | -------------------------- | |
| (=) Market Value: | = | $194,410 | |
| (–) Productivity Loss: | – | $0 | |
| | | -------------------------- | |
| (=) Subtotal: | = | $194,410 | |
| (+) Senior Appraised Value: | + | $0 | |
| (+) Non-Senior Appraised Value: | + | $194,410 | |
| | | -------------------------- | |
| (=) Total Appraised Value: | = | $194,410 | |
| (–) Senior Exemption Loss: | – | $0 | |
| (–) Exemption Loss: | – | $0 | |
| | | -------------------------- | |
| (=) Taxable Value: | = | $194,410 | |
Taxing Jurisdiction
| Owner: | YAGER KAREN M | | |
| % Ownership: | 100.0000000000% | | |
| Total Value: | $194,410 | | |
| Tax Area: | 1 - OL-140-F |
| CERFD | CURRENT EXPENSE REFUND 010 | 0.0000000000 | $194,410 | $194,410 | $0.00 | | |
| CURREXP | CURRENT EXPENSE 010 | 1.0175366760 | $194,410 | $194,410 | $197.82 | | |
| HUMNSERV | HUMAN SERVICES 119 | 0.0250000000 | $194,410 | $194,410 | $4.86 | | |
| SLDREL | SOLDIERS RELIEF 121 | 0.0155990005 | $194,410 | $194,410 | $3.03 | | |
| EMERGSER | EMS 147 | 0.3792580840 | $194,410 | $194,410 | $73.73 | | |
| EMSRFD | EMS REFUND 147 | 0.0000000000 | $194,410 | $194,410 | $0.00 | | |
| PORTRFD | PORT REFUND 640 | 0.0000000000 | $194,410 | $194,410 | $0.00 | | |
| PORTWWGEN | PORT OF WW 640 | 0.2460186015 | $194,410 | $194,410 | $47.83 | | |
| SD140BOND | SD #140 BOND 764 | 0.8342371393 | $194,410 | $194,410 | $162.18 | | |
| SD140GEN | SD #140 GENERAL 760 | 2.0646500647 | $194,410 | $194,410 | $401.39 | | |
| ST2 | STATE SCHOOL PART 2 600 | 0.8131451643 | $194,410 | $194,410 | $158.08 | | |
| STATESCHL | STATE SCHOOL 600 | 1.5158548041 | $194,410 | $194,410 | $294.70 | | |
| STREFUND | STATE REFUND LEVY 603 | 0.0000000000 | $194,410 | $194,410 | $0.00 | | |
| CWWBOND | C OF WW BOND 643 | 0.2760494372 | $194,410 | $194,410 | $53.67 | | |
| CWWGEN | CITY OF WW 631 | 1.6100204973 | $194,410 | $194,410 | $313.00 | | |
| CWWRFD | CITY OF WALLA WALLA REFUND 631 | 0.0000000000 | $194,410 | $194,410 | $0.00 | | |
| | Total Tax Rate: | 8.7973694689 | | | | | |
| | | | | Taxes w/Current Exemptions: | $1,710.29 | | |
| | | | | Taxes w/o Exemptions: | $1,710.29 | | |
Improvement / Building
| Improvement #1: | RESIDENTIAL | State Code: | 11 | 807.0 sqft | Value: | $137,210 |
| Exterior Wall: | VINYL | Heating/Cooling: | FLOOR FURNACE | | Number of Bathrooms: | 1 | Number of Bedrooms: | 2 | | Plumbing: | 7 | Roof Covering: | COMP SHINGLE |
|
| | Type | Description | Class CD | Sub Class CD | Year Built | Area |
| | MA | Main Area | 1 | 25 | 1947 | 807.0 |
| | SI1 | SITE IMPROVEMENT | 1 | 25 | 1947 | 1.0 |
| | DTG | Detached Garage | 1 | 25 | 1947 | 396.0 |
| | RPS | PORCH W/STEPS,ROOF | 1 | 25 | 1947 | 43.0 |
| | OSP | Open | 1 | 25 | 1947 | 49.0 |
Sketch
Property Image
Land
| 1 | RES 1 | Converted: Residential | 0.1641 | 7150.00 | 0.00 | 0.00 | 1.00 | $57,200 | $0 |
Roll Value History
| 2026 | N/A | N/A | N/A | N/A | N/A |
| 2025 | $178,470 | $71,500 | $0 | $249,970 | $249,970 |
| 2024 | $137,210 | $57,200 | $0 | $194,410 | $194,410 |
| 2023 | $137,210 | $57,200 | $0 | $194,410 | $194,410 |
| 2022 | $137,210 | $44,690 | $0 | $181,900 | $181,900 |
| 2021 | $98,010 | $44,690 | $0 | $142,700 | $142,700 |
| 2020 | $98,010 | $44,690 | $0 | $142,700 | $142,700 |
| 2019 | $98,010 | $44,690 | $0 | $142,700 | $142,700 |
| 2018 | $78,900 | $42,900 | $0 | $121,800 | $0 |
| 2017 | $71,730 | $42,900 | $0 | $114,630 | $0 |
| 2016 | $62,370 | $42,900 | $0 | $105,270 | $0 |
| 2015 | $62,370 | $42,900 | $0 | $105,270 | $0 |
| 2014 | $46,200 | $42,900 | $0 | $89,100 | $0 |
| 2013 | $46,200 | $42,900 | $0 | $89,100 | $0 |
| 2012 | $46,200 | $42,900 | $0 | $0 | $0 |
| 2011 | $46,200 | $42,900 | $0 | $0 | $0 |
| 2010 | $61,900 | $42,900 | $0 | $0 | $0 |
| 2009 | $73,500 | $42,900 | $0 | $0 | $0 |
| 2008 | $73,500 | $42,900 | $0 | $0 | $0 |
| 2007 | $51,500 | $14,300 | $0 | $0 | $0 |
Deed and Sales History
| 1 | 06/14/2019 | SWD | STATUTORY WARRANTY DEED | STEINER SUSAN P | YAGER KAREN M | | | $125,000.00 | 137087 | 2019-04173 |
| 2 | 03/24/1987 | WARRANTY D | WARRANTY DEED | | | | | $32,500.00 | 0 | 1638-702177 |
Payout Agreement
| No payout information available.. |